0183 - 635011 0183 - 635011 Stel een vraag Stel een vraag
Open huis

Hoofdwal 3

GORINCHEM
€ 475.000,- k.k.
Open huis

Meld u telefonisch aan voor de kijkdag op woensdag 11 februari 2026 van 09:30 tot 12:00 uur.

  • Woonoppervlakte 140 m2
  • Perceeloppervlakte 227 m2
  • Aantal slaapkamers 3
  • Bouwjaar 1970

Omschrijving

Open Dag | Woensdag 11 februari | 09:30 – 12:00 uur & 13:00 - 14:30
Kom de woning vrijblijvend bekijken tijdens dit speciale kijkmoment met persoonlijke bezichtigingen. Bel ons vooraf om jouw tijdslot te reserveren. We ontvangen je graag voor een rustige rondleiding, in alle aandacht en op jouw tempo.

Welkom aan de Hoofdwal 3 in Gorinchem, een verrassend ruime en stijlvolle hoekwoning met maar liefst drie volwaardige woonlagen. Deze moderne woning combineert comfort, licht en een doordachte indeling met fijne buitenruimtes, waardoor binnen en buiten hier naadloos in elkaar overlopen.

Bij binnenkomst op de begane grond valt direct de royale en lichte woonkeuken op. Deze is volledig gemoderniseerd en voorzien van een luxe kook- en spoeleiland met Quooker en alle gewenste inbouwapparatuur. Aan de voorzijde is volop ruimte voor een grote eettafel, ideaal voor lange diners en gezellige momenten met familie en vrienden. Op deze gehele verdieping is vloerverwarming aangelegd, wat comfortabel gemak biedt. Aan de buitenzijde bevinden zich elektrische rolluiken die zorgen voor privacy en verkoeling in de zomer. Via de grote schuifpui bereik je de verzorgde achtertuin, waar een prettige loungeplek is gecreëerd. Achterin de tuin bevindt zich een royale overkapping met ruime opbergschuur, waardoor je het hele jaar door van het buitenleven kunt genieten. Verder vind je op deze verdieping een separaat toilet en een praktisch was- en berghok.

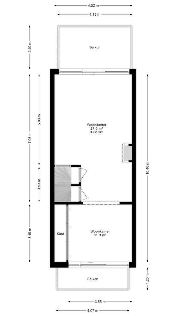
De eerste verdieping is ingericht als woonkamer en biedt een unieke, speelse indeling verdeeld over twee open ruimtes. De trap vormt een mooi centraal element en wordt stijlvol gescheiden door stalen, bronzen staatsdeuren. Het zitgedeelte is warm en sfeervol dankzij de fraaie lattenwand met ingebouwde gashaard. Op deze gehele verdieping is vloerverwarming aangelegd wat extra comfort biedt. Aan beide uiteindes van de woonkamer zorgen grote glazen schuifdeuren voor veel lichtinval en toegang tot twee balkons, waarvan het balkon aan de tuinkant voorzien is van een elektrisch zonnescherm, perfect om op verschillende momenten van de dag van de buitenlucht te genieten.

Op de tweede verdieping bevinden zich drie goed bemeten slaapkamers, die flexibel in te delen zijn als slaap-, werk- of hobbyruimte. De hoofdslaapkamer is voorzien van een brede inbouwkast en een deur naar een extra balkon. De slaapkamers zijn allemaal voorzien van elektrische rolluiken wat extra privacy en verkoeling biedt. De luxe badkamer is hoogwaardig afgewerkt en beschikt over een ligbad, een dubbele wastafel en een toilet. De ruimte is voorzien van een lichtkoepel die open kan wat zorgt voor veel lichtinval en natuurlijke ventilatie. Een comfortabele en complete ruimte om de dag ontspannen te beginnen of af te sluiten.

Highlights
* Ruime hoekwoning met drie volwaardige woonlagen
* Woonoppervlakte van ca. 140 m²
* Bouwjaar 1970
* Energielabel B
* Voorzien van 14 zonnepanelen
* Hele woning voorzien van kunststof kozijnen
* Volledig geïsoleerd
* HR++ beglazing
* Luxe en gemoderniseerde woonkeuken met kook- en spoeleiland
* Lichte woonkamer met gashaard en stijlvolle glazen taatsdeuren
* Meerdere buitenruimtes: twee balkons én een goed onderhouden achtertuin
* Royale overkapping in de tuin, het hele jaar door te gebruiken
* Drie goed bemeten slaapkamers
* Luxe badkamer met ligbad, dubbele wastafel en toilet
* Praktisch was- en berghok op de begane grond

Wonen in Gorinchem Oost betekent rustig en comfortabel wonen met alle voorzieningen binnen handbereik. Deze prettige woonwijk staat bekend om haar ruime opzet, groene karakter en kindvriendelijke sfeer. In de directe omgeving vind je scholen, sportvoorzieningen, winkels en openbaar vervoer, waardoor het dagelijks leven hier bijzonder praktisch is ingericht.
Daarnaast ligt zowel het historische stadscentrum van Gorinchem als de A15 op korte afstand. Of je nu de rust van een fijne woonwijk zoekt of juist snel onderweg wilt zijn richting Utrecht, Rotterdam of Breda: Gorinchem Oost biedt het beste van twee werelden. Een ideale plek voor gezinnen, forenzen én iedereen die comfortabel wil wonen in een goed bereikbare omgeving.

Kortom: Hoofdwal 3 is een instapklare hoekwoning met een moderne woonkeuken, een sfeervolle woonkamer, meerdere buitenruimtes en volop leefruimte verdeeld over drie woonlagen. Een heerlijke plek voor wie ruim, comfortabel en centraal wil wonen.

Lees de volledige omschrijving

Kenmerken

Overdracht

Status Beschikbaar
Aanvaarding In overleg

Bouwvorm

Soort object Woonhuis
Soort woning Eengezinswoning
Type woning Hoekwoning
Bouwjaar 1970
Bouwvorm Bestaande bouw
Ligging In een woonwijk

Indeling

Woonoppervlakte 140 m²
Perceeloppervlakte 227 m²
Inhoud 454 m³
Aantal kamers 6
Aantal slaapkamers 3
Aantal woonlagen 3

Energie

Energieklasse B
Energie einddatum maandag 14 juni 2032
Isolatie Volledig geïsoleerd
Warmwater Cv ketel
Verwarming Cv ketel, gaskachels, vloerverwarming gedeeltelijk

Buitenruimte

Tuin Achtertuin, voortuin
Hoofdtuin Achtertuin
Oppervlakte hoofdtuin 108 m²
Ligging hoofdtuin West
Achterom Ja
Kwaliteit tuin Normaal

Bergruimte

Garage Geen garage
Schuur / Berging Vrijstaand hout

Parkeergelegenheid

Voorzieningen Openbaar parkeren, op eigen terrein

Dak

Dak Plat dak

Overig

Permanente bewoning Ja
Onderhoud binnen Goed
Onderhoud buiten Goed tot uitstekend
Huidig gebruik Woonruimte
Huidige bestemming Woonruimte

Voorzieningen

Voorzieningen Mechanische ventilatie, tv kabel, airconditioning, schuifpui, zonnepanelen

Kadastrale gegevens

Gemeente Gorinchem
Sectie F
Perceelnummer 29
Oppervlakte 227 m²
Eigendomssituatie Volle eigendom
v1-20250318-8G0A1573E
Interesse in deze woning?

Robert helpt u graag

Gratis waardebepaling

U denkt erover uw woning te verkopen en wilt graag weten wat het waard is? We komen graag bij u langs en bepalen de waarde van uw woning.

Gratis waardebepaling

Deel deze woning

Uw persoonlijke adviseur in de regio

Maak kennis met de HypotheekWeter

Ligging

Afspraak maken voor een bezichtiging? Neem contact met ons op

Vergelijkbare woningen