0183 - 635011 0183 - 635011 Stel een vraag Stel een vraag
Verkocht

Keizerstraat 61

GORINCHEM
€ 475.000,- k.k.
  • Woonoppervlakte 120 m2
  • Aantal slaapkamers 3
  • Bouwjaar 2000

Omschrijving

Instapklaar wonen met zonnig dakterras, midden in de stad

Wonen in de binnenstad, maar toch genieten van rust? Dat kan aan de Keizerstraat 61. Hier woon je binnen de stadsmuren: omringd door terrassen, restaurants en winkels, en toch thuiskomen in je eigen rustige oase.

Deze ruime maisonnette (2000) voelt dankzij de eigen entree en berging op de begane grond meer als een huis dan als een appartement. Instapklaar, comfortabel en energiezuinig met HR++ glas en energielabel B – gewoon zorgeloos wonen.

Binnen
Een lichte en royale living met Frans balkon en moderne open keuken: dé plek waar gezelligheid en gemak samenkomen.

Boven
Drie slaapkamers, een strakke badkamer en – als kers op de taart – een zonnig dakterras van ca. 9 m². Perfect voor je eerste kop koffie, een avondborrel of je eigen urban jungle.

Extra’s
•Ruime berging met directe toegang naar buiten
•Ruimte genoeg voor fietsen, scooter óf een flinke voorraad kratjes

Kortom: veel ruimte, veel sfeer én een zonnig terras. Wanneer verhuis jij naar de Keizerstraat?


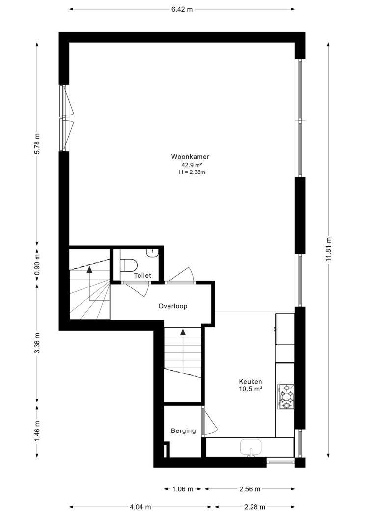
INDELING BEGANE GROND

Welkom!
Uniek voor een maisonnette: je eigen voordeur met hal, meterkast en een ruime berging van ca. 9 m². Extra handig: de berging is ook van buiten bereikbaar – ideaal voor je fiets of scooter. Vanuit de hal neem je de trap naar de woonverdieping, waardoor het geheel meer voelt als een stadswoning dan een appartement.

Woonverdieping
Via de overloop met toiletruimte kom je in het hart van de woning: het leefgedeelte. De woonkamer is royaal van formaat (ca. 43 m²) en dankzij de vele ramen én de dubbele deuren naar het Franse balkon heerlijk licht. De laminaatvloer geeft de ruimte een warme uitstraling, met genoeg plek voor een riante zithoek én een grote eettafel bij het raam.

De keuken (11 m2) ligt op de hoek van de Keizerstraat en de Poortstraat en profiteert van een prachtig hoekraam met veel lichtinval. Uitgevoerd in donkere fronten (2011) en volledig uitgerust met o.a. een 6-pits gascomfort, rvs-afzuigkap, oven, koelkast, vriezer en vaatwasser. Extra praktisch: er is ook een provisiekast/berging aanwezig – ideaal voor voorraad en keukenapparatuur.

Slaapverdieping
Op de overloop vind je een handige kast met de cv-opstelling en aansluiting voor de wasmachine. Aan het einde van de overloop stap je via een deur zó het zonnige dakterras op (zuidwesten) – een heerlijke plek om te ontspannen en van de zon te genieten.

Verder zijn er maar liefst drie slaapkamers (ca. 9, 11 en 15 m²), allemaal licht en prettig in te delen. De badkamer is in 2011 vernieuwd en een echte eyecatcher: stijlvol betegeld en voorzien van een ligbad, wastafelmeubel, tweede toilet en een ruime inloopdouche.

Highlights
•Maisonnette met eigen entree en berging
•Bouwjaar 2000
•Woonoppervlakte ca. 120 m²
•Royale woonkamer (ca. 43 m²) en keuken (ca. 11 m²)
•Drie slaapkamers
•Moderne complete badkamer (2011)
•Zonnig dakterras (ca. 9 m²)
•Rustig wonen in het centrum
•HR++ glas en energielabel B
•Cv-ketel Intergas Kombi Compact (2022)
•Voorzien van rolluiken
•VvE-bijdrage ca. € 75,- per maand
•Rustig in het centrum

Lees de volledige omschrijving

Kenmerken

Overdracht

Status Verkocht
Aanvaarding In overleg

Bouwvorm

Soort object Appartement
Bouwjaar 2000
Bouwvorm Bestaande bouw
Ligging Aan een rustige weg, in het centrum

Indeling

Woonoppervlakte 120 m²
Inhoud 431 m³
Aantal kamers 5
Aantal slaapkamers 3
Aantal woonlagen 3

Energie

Energieklasse B
Energie einddatum zondag 17 februari 2030
Isolatie Dubbel glas, volledig geïsoleerd
Warmwater Cv ketel
Verwarming Cv ketel

Buitenruimte

Tuin Zonneterras
Hoofdtuin Zonneterras
Oppervlakte hoofdtuin 9 m²
Ligging hoofdtuin Zuid-west
Achterom Nee
Kwaliteit tuin Fraai aangelegd

Bergruimte

Garage Geen garage
Schuur / Berging Inpandig

Parkeergelegenheid

Voorzieningen Betaald parkeren, parkeergarage, parkeervergunningen

Dak

Dak Plat dak

Overig

Permanente bewoning Ja
Onderhoud binnen Goed
Onderhoud buiten Goed
Huidig gebruik Woonruimte
Huidige bestemming Woonruimte

Voorzieningen

Voorzieningen Mechanische ventilatie, rolluiken, tv kabel, frans balkon

Kadastrale gegevens

Gemeente Gorinchem
Sectie C
Perceelnummer 4717
Eigendomssituatie Volle eigendom
OK-Kopie-van-v1-20250318-8G0A1414
Interesse in deze woning?

Chanel helpt u graag

Gratis waardebepaling

U denkt erover uw woning te verkopen en wilt graag weten wat het waard is? We komen graag bij u langs en bepalen de waarde van uw woning.

Gratis waardebepaling

Deel deze woning

Uw persoonlijke adviseur in de regio

Maak kennis met de HypotheekWeter

Ligging

Afspraak maken voor een bezichtiging? Neem contact met ons op

Vergelijkbare woningen