0183 - 635011 0183 - 635011 Stel een vraag Stel een vraag
Verkocht onder voorbehoud

Gerard Doustraat 5

HARDINXVELD-GIESSENDAM
€ 300.000,- k.k.
  • Woonoppervlakte 93 m2
  • Perceeloppervlakte 131 m2
  • Aantal slaapkamers 4
  • Bouwjaar 1957

Omschrijving

Welkom aan de Gerard Doustraat 5 in Hardinxveld-Giessendam
Een woning met karakter, ruimte en vooral veel potentie. Deze eengezinswoning is ideaal voor wie graag de handen uit de mouwen steekt en op zoek is naar een huis dat volledig naar eigen smaak kan worden gemoderniseerd. Met een prettige indeling, meerdere slaapkamers en een ruime tuin biedt deze woning een solide basis voor comfortabel wonen.

Bieden kan vanaf € 300.000,- k.k. Een mooie kans voor wie op zoek is naar een woning met mogelijkheden op een fijne locatie!

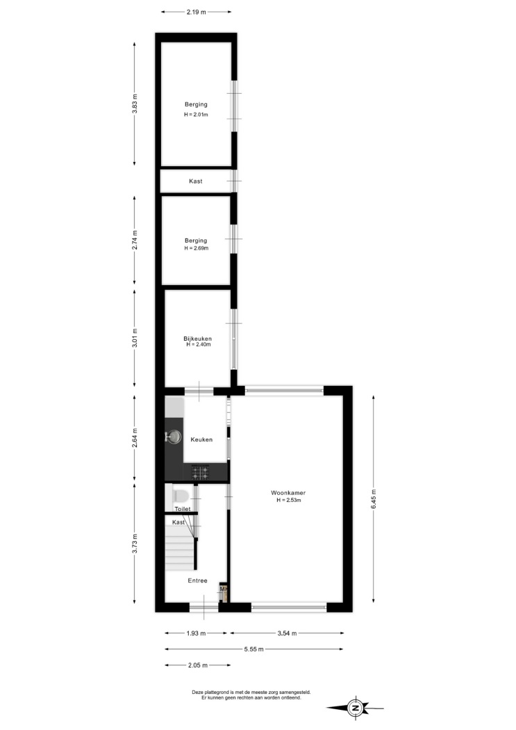
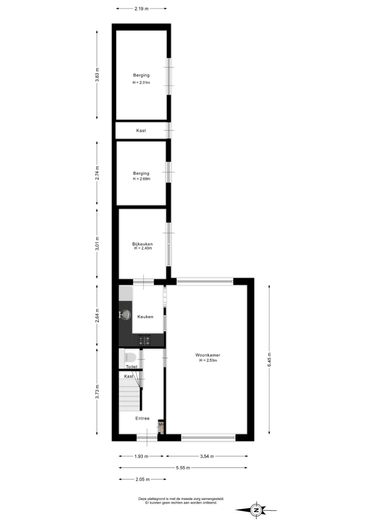
Entree & begane grond
Via de entree betreed je de woning en kom je in de hal met toegang tot de leefruimtes. De woonkamer is aangenaam licht en biedt voldoende ruimte voor een comfortabele zithoek en een eethoek. Aansluitend bevindt zich de dichte keuken, praktisch van opzet en met directe verbinding naar de bijkeuken. De bijkeuken zorgt voor extra gemak en functionaliteit. Daarnaast beschikt de woning over maar liefst twee bergingen, ideaal voor opslag, hobby’s of het stallen van fietsen en gereedschap.

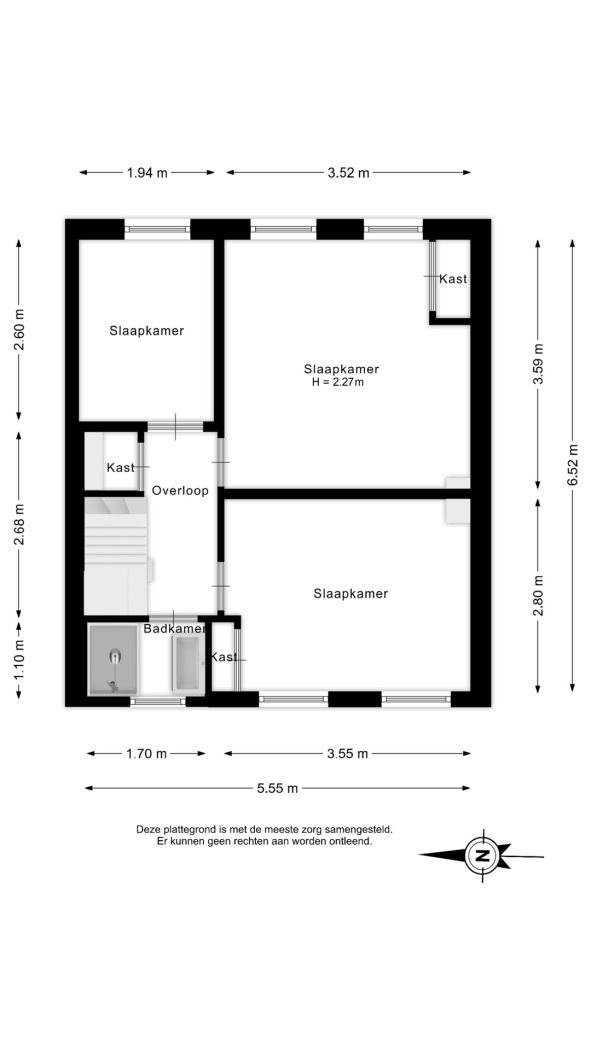
Eerste verdieping
Op de eerste verdieping bevinden zich drie prima bemeten slaapkamers, die flexibel zijn in te delen als slaap-, werk- of hobbykamer. De badkamer is voorzien van een douche en wastafel en biedt een goede basis voor vernieuwing naar eigen wens.

Zolderverdieping
De zolder biedt verrassend veel extra ruimte. Hier is niet alleen volop bergruimte aanwezig, maar ook een extra slaapkamer, waardoor de woning zeer geschikt is voor grotere gezinnen of voor wie extra kamers nodig heeft.

Tuin
De achtertuin is ruim van opzet en biedt meer dan genoeg plek voor een royale zitplek. Een fijne buitenruimte waar je, na een opknapbeurt, een heerlijke tuin van kunt maken om te ontspannen of gezellig te genieten met familie en vrienden.

Highlights
* Woning met veel potentie
* Ideaal voor kopers die willen moderniseren naar eigen smaak
* Lichte woonkamer
* Dichte keuken met aansluitende bijkeuken
* Maar liefst twee bergingen voor extra opslag
* Drie slaapkamers op de eerste verdieping
* Zolder met extra slaapkamer en veel bergruimte
* Badkamer met douche en wastafel
* Ruime achtertuin met volop mogelijkheden voor een royale zitplek
* Woonoppervlakte ca. 93 m²
* Perceeloppervlakte 131 m²
* Energielabel C
* Bouwjaar 1957
* Gelegen in een rustige woonwijk van Hardinxveld-Giessendam
* Bijzonderheden: ouderdoms- en asbestclausule, plus een niet-zelfbewoningsclausule
* Notaris: wordt aangewezen door verkoper

Kortom, Gerard Doustraat 5 is een woning met veel mogelijkheden. Een huis waar je jouw eigen woonwensen kunt realiseren en dat kan uitgroeien tot een fijn en comfortabel thuis.

Bent u benieuwd naar welke renovatie mogelijkheden door verkoper bij deze woning worden aangeboden? Neem dan contact met ons op.

Lees de volledige omschrijving

Kenmerken

Overdracht

Status Verkocht onder voorbehoud
Aanvaarding In overleg

Bouwvorm

Soort object Woonhuis
Soort woning Eengezinswoning
Type woning Tussenwoning
Bouwjaar 1957
Bouwvorm Bestaande bouw
Ligging Aan een rustige weg, in een woonwijk

Indeling

Woonoppervlakte 93 m²
Perceeloppervlakte 131 m²
Inhoud 346 m³
Aantal kamers 6
Aantal slaapkamers 4
Aantal woonlagen 3

Energie

Energieklasse C
Energie einddatum zondag 20 januari 2036
Isolatie Gedeeltelijk dubbel glas
Warmwater Cv ketel
Verwarming Cv ketel

Buitenruimte

Tuin Achtertuin, voortuin
Hoofdtuin Achtertuin
Oppervlakte hoofdtuin 34 m²
Ligging hoofdtuin Zuid-oost
Achterom Ja
Kwaliteit tuin Normaal

Bergruimte

Garage Geen garage
Schuur / Berging Aangebouwd steen

Parkeergelegenheid

Voorzieningen Openbaar parkeren

Overig

Permanente bewoning Ja
Onderhoud binnen Matig
Onderhoud buiten Matig
Huidig gebruik Woonruimte
Huidige bestemming Woonruimte

Voorzieningen

Voorzieningen Mechanische ventilatie, tv kabel

Kadastrale gegevens

Gemeente Hardinxveld-Giessendam
Sectie C
Perceelnummer 3996
Oppervlakte 131 m²
Eigendomssituatie Volle eigendom
v1-20250318-8G0A1608E
Interesse in deze woning?

Leo helpt u graag

Gratis waardebepaling

U denkt erover uw woning te verkopen en wilt graag weten wat het waard is? We komen graag bij u langs en bepalen de waarde van uw woning.

Gratis waardebepaling

Deel deze woning

Uw persoonlijke adviseur in de regio

Maak kennis met de HypotheekWeter

Ligging

Afspraak maken voor een bezichtiging? Neem contact met ons op

Vergelijkbare woningen