0183 - 635011 0183 - 635011 Stel een vraag Stel een vraag
Verkocht

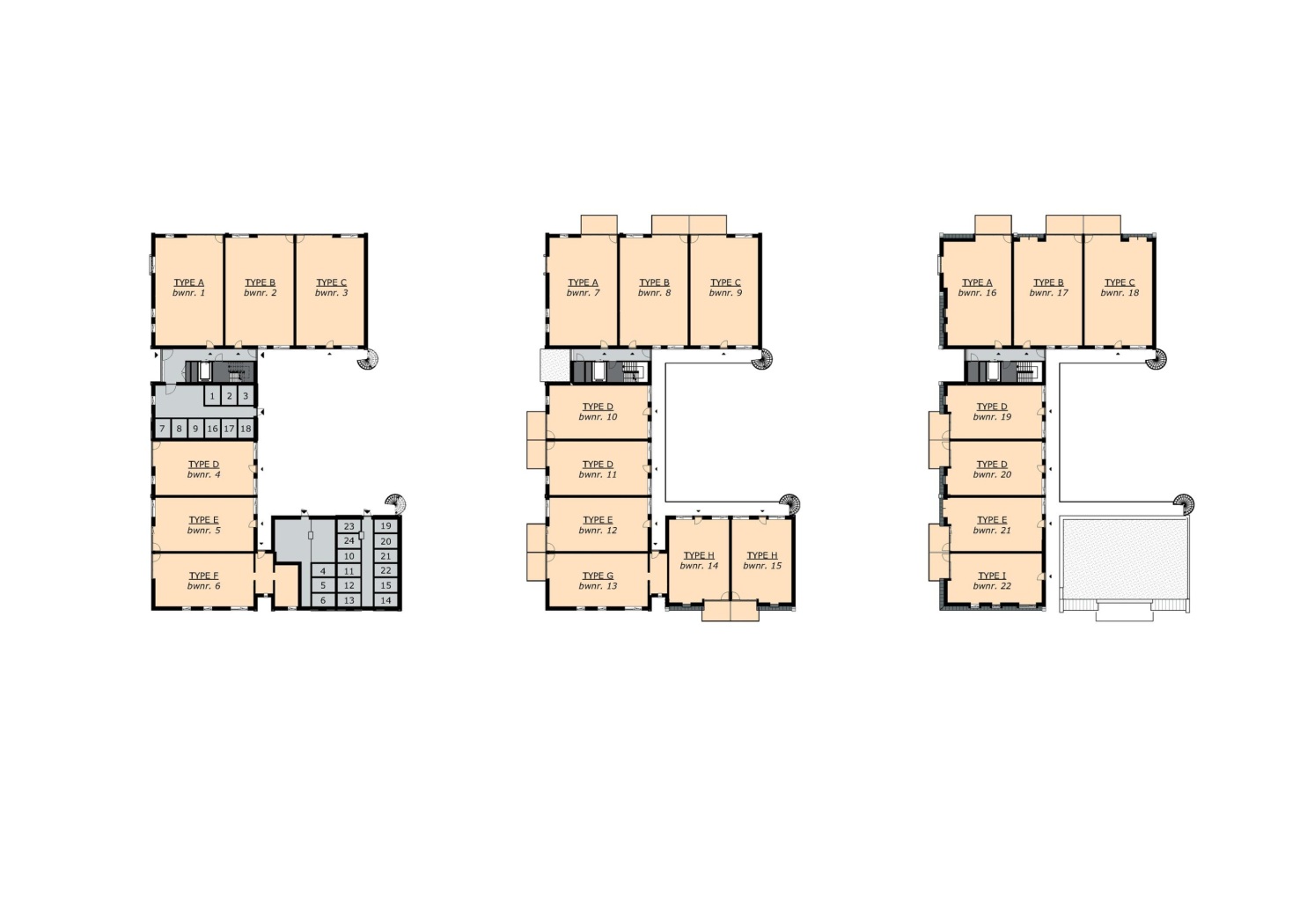
De Phoenix - Appartement 8

HANK
€ 525.000,- v.o.n.
  • Woonoppervlakte 121 m2
  • Perceeloppervlakte 0 m2
  • Aantal slaapkamers 2
  • Bouwjaar 2024

Omschrijving

Bouw is gestart, Woningborg Afbouwgarantie van toepassing.

Type B

Bouwnummer 8

- Verdieping: Eerste verdieping
- Woonoppervlakte: ca. 121 m2
- BVO balkon ca. 11 m2
- Zeer ruime woonkamer met open keuken grenzend aan terras of balkon
- Twee slaapkamers
- Badkamer met douche en wastafel
- Apart toilet
- Technische ruimte met wasmachine aansluiting
- Eigen berging op de begane grond van het complex
- Eigen parkeerplaats op binnenterrein van het complex
- Prijs inclusief energiesysteem
- Vloerverwarming als hoofdverwarming

Het is mogelijk een tweede parkeerplaats te kopen voor € 10.000,-- v.o.n.

Wonen in de Phoenix: een oase van rust
Het complex bestaat uit 22 ruime appartementen, variërend in grootte van 77 tot 121 vierkante meter. Elk appartement is zorgvuldig ontworpen om maximaal comfort en functionaliteit te bieden. Met een doordachte indeling en sfeervolle omgeving creëren deze appartementen een oase van rust. Elk appartement beschikt over een eigen balkon of terras, waardoor bewoners kunnen genieten van de prachtige omgeving en de frisse lucht. Of u nu ‘s ochtends wilt genieten van een kopje koffie op uw balkon of ‘s avonds wilt ontspannen met een goed boek, het balkon of terras biedt de perfecte buitenruimte om te ontspannen en te genieten van het uitzicht.

Omgeving en Ligging
Genieten in Nationaal Park De Biesbosch
We nemen u mee naar Hank, een charmant dorp in de provincie Noord-Brabant. Hank is omgeven door prachtige natuur en groene landschappen. Hier ontdekt u de vele fiets- en wandelpaden door groene bossen, langs schilderachtige rivieren en over uitgestrekte weilanden. Het dorp ligt aan de rivier de Maas, met de Biesbosch als 'achtertuin'.

Hank grenst aan natuurgebied De Biesbosch. Het is een nationaal park, bekend om zijn wateren, moerassen en drasland. Met zijn talrijke diersoorten is dit een heerlijke plek voor natuurliefhebbers. Hank biedt een welkome ontsnapping aan de drukte van de stad. Hier geniet u van de rust en stilte van het platteland, terwijl u toch gemakkelijk toegang hebt tot de nabijgelegen steden en voorzieningen.

Centrale ligging
De Phoenix is gelegen op de hoek van de Kerkstraat en de Sint Elisabethstraat in Hank. De Kerkstraat is de straat die het hart van het dorp doorkruist. Het is een historische straat met een unieke charme. Langs de Kerkstraat zijn diverse winkels, restaurants en andere voorzieningen te vinden. Hoewel het midden in de natuur ligt, ligt Hank gunstig ten opzichte van de nabijgelegen steden. De steden zijn goed bereikbaar doordat het dorp goed verbonden is met het wegennet zoals de A27.

Alle voorziening om de hoek
Wonen in de Phoenix biedt niet alleen comfort op het gebied van wonen. Ook de omgeving draagt hier aan bij! Voor uw dagelijkse boodschappen kunt u gemakkelijk terecht bij de supermarkt in de straat. Ook de bakker, apotheek, tandarts, slager en kapper zitten om de hoek. Zin om een hapje buiten de deur te eten? Op loopafstand bevinden zich meerdere restaurants voor u om uit te kiezen. Wanneer u een stukje fietsen niet erg vindt staat u met nog geen kwartiertje in een fantastisch restaurant in de Biesbosch. Zelfs de golfbaan zit hier in de buurt. Ideaal, toch?

Lees de volledige omschrijving

Kenmerken

Overdracht

Status Verkocht
Aanvaarding In overleg

Bouwvorm

Soort object Appartement
Bouwjaar 2024
Bouwvorm Nieuwbouw

Indeling

Woonoppervlakte 121 m²
Inhoud 351 m³
Aantal kamers 3
Aantal slaapkamers 2
Aantal woonlagen 1

Energie

Energieklasse A+++
Energie einddatum zaterdag 25 maart 2034

Buitenruimte

Tuin Geen tuin
Achterom Nee

Bergruimte

Garage Eigen parkeerplaats
Schuur / Berging Inpandig

Parkeergelegenheid

Voorzieningen Op eigen terrein

Overig

Permanente bewoning Ja
Onderhoud binnen Goed tot uitstekend
Onderhoud buiten Goed tot uitstekend

Kadastrale gegevens

Gemeente Dussen
Sectie O
Perceelnummer 372
Eigendomssituatie Volle eigendom
PLR55485
Interesse in deze woning?

Dionne helpt u graag

Uw persoonlijke adviseur in de regio

Maak kennis met de HypotheekWeter

Deel deze woning

Ligging

Vergelijkbare woningen