0183 - 635011 0183 - 635011 Stel een vraag Stel een vraag
Verkocht onder voorbehoud

IJsvogelstraat 26

HANK
€ 427.000,- k.k.
  • Woonoppervlakte 110 m2
  • Perceeloppervlakte 203 m2
  • Aantal slaapkamers 4
  • Bouwjaar 1974

Omschrijving

Een ruime, verzorgde gezinswoning met binnendoor bereikbare garage: ideaal voor wie nét dat beetje extra comfort zoekt.

Wat een heerlijk verzorgde woning op een rustige locatie! In een charmant rijtje van vier staat deze nette, instapklare eengezinswoning met een opvallend royale voortuin én een aangebouwde garage die bovendien binnendoor bereikbaar is — ideaal voor dagelijks gemak.

Binnen wacht een verrassend ruime leefruimte: een lichte woonkamer met open keuken van maar liefst ca. 40 m², perfect voor een sfeervolle zithoek en een grote eettafel. Via de tuindeur stap je zo de achtertuin in. Aangrenzend vind je een praktische bijkeuken/wasruimte: een cadeautje voor wie graag georganiseerd woont.

Op de verdieping bevinden zich vier volwaardige slaapkamers én een badkamer die gerust een plaatje genoemd mag worden — stijlvol, fris en helemaal van nu.

De tuin is verzorgd en gezellig ingericht, met een fijne berging en een aangrenzende overkapping waar je het hele jaar ontspannen kunt zitten.

Daarnaast is de woning uitstekend verzorgd en uitgerust met duurzame voorzieningen:
Energielabel B, kunststof kozijnen met HR++ K570-glas, 10 zonnepanelen, rolluiken rondom en airco. Comfort, duurzaamheid en netheid komen hier prachtig samen.

Kortom: een zeer complete, verzorgde gezinswoning op een fijne plek in Hank — helemaal klaar voor nieuwe bewoners.

Highlights
•Bouwjaar 1974
•Woonoppervlakte ca. 110 m²
•Perceeloppervlakte 203 m²
•Garage + parkeren op eigen terrein
•Woonkamer met houtkachel en open keuken (samen ca. 40 m²)
•Praktische bijkeuken/wasruimte
•Vier slaapkamers
•Moderne badkamer met inloopdouche, dubbele wastafel en toilet
•Vlizotrap naar zolder/bergruimte
•Achtertuin ca. 73 m² (8,6 × 8,6 m)
•Berging met overkapping
•Energielabel B, HR++ K570-glas en kunststof kozijnen
•Rolluiken rondom
•10 zonnepanelen
•Alarm en rookmelders
•Airconditioning
•Gelegen in een fijne, rustige straat

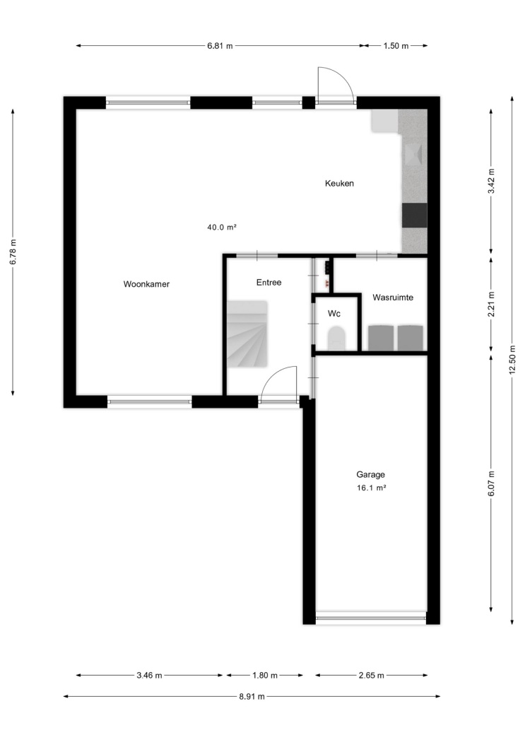
INDELING BEGANE GROND

Welkom!
De entree met luifel zorgt voor een aangename binnenkomst en leidt naar de hal met het moderne zwevende toilet, de meterkast en de trapopgang naar de verdieping. De grindvloer geeft deze ruimte een nette en onderhoudsvriendelijke uitstraling.

Garage
Extra praktisch: vanuit de hal is de aangebouwde garage met elektrische garagedeur direct binnendoor bereikbaar.

Woonkamer en keuken
De lichte L-vormige woonkamer biedt een sfeervol zitgedeelte aan de voorzijde met een gezellige houtkachel. Aan de tuinzijde is de ideale plek voor een eettafel, dicht bij de keuken. Samen vormen ze een royale leefruimte van ca. 40 m², afgewerkt met een mooie leistenen vloer.

De moderne keuken in L-opstelling is uitgevoerd met lichte kastfronten, een granieten werkblad en diverse inbouwapparatuur, waaronder een koelkast, vaatwasser, combi-oven/magnetron, 5-pits gaskookplaat en afzuigkap.

Bijkeuken / wasruimte
Direct vanuit de keuken bereik je de praktische bijkeuken, waar aansluitingen voor zowel de wasmachine als de droger aanwezig zijn — ideaal voor extra bergruimte en het organiseren van de was.

INDELING EERSTE VERDIEPING

4 slaapkamers
De woning beschikt over vier slaapkamers, twee aan de voorzijde en twee aan de achterzijde. Eén kamer is uitgerust met een praktische driedeurs schuifwandkast en een andere met een stijlvolle vitrinekast — ideaal voor extra opbergruimte.

Badkamer
De moderne badkamer is een echte blikvanger, stijlvol afgewerkt met mooie, tijdloze tegels. De royale inloopdouche is voorzien van een regendouche, handdouche en een strak betegeld zitgedeelte — comfortabel én praktisch. Ook is er een handig wandnisje voor shampoo en douchebenodigdheden. Verder vind je hier een zwevend toilet en een dubbel wastafelmeubel met grote spiegel. Een comfortabele, complete en eigentijdse ruimte.

Bergzolder
Via een vlizotrap is de praktische bergzolder bereikbaar.

Tuin
De onderhoudsvriendelijke achtertuin ligt op het noordwesten en biedt de hele dag door fijne zonnige plekjes. De tuin is netjes bestraat met sierstraatwerk en beschikt over een houten berging van ca. 8 m² met dubbele deuren en twee ramen. Aansluitend vind je een gezellige overkapping — ideaal voor een ontspannen zitplek, een zomeravond met vrienden of een heerlijke barbecue.
De schuttingen zorgen voor voldoende privacy en via de achterpoort bereik je eenvoudig de brandgang.

Wonen in Hank – IJsvogelstraat
Aan de rustige en kindvriendelijke IJsvogelstraat woon je in een fijne woonomgeving waar buren elkaar nog kennen en het dagelijks leven overzichtelijk en vriendelijk aanvoelt. Alle voorzieningen liggen op korte afstand: supermarkt, bakker, basisschool, sportclubs, kinderopvang en horeca. Hank is zo’n dorp waar je de ruimte voelt, met een ontspannen sfeer en volop mogelijkheden om buiten te leven.
De omgeving is een echte troef. Op een paar minuten fietsen sta je al in Nationaal Park De Biesbosch: ideaal om te wandelen, fietsen, kanoën of een dagje het water op te gaan. En qua bereikbaarheid zit je hier uitstekend; via de A27 rijd je zo naar Breda, Gorinchem of Utrecht.
Kortom: een prettige plek om te wonen, met natuur, rust en gemak binnen handbereik.

Lees de volledige omschrijving

Kenmerken

Overdracht

Status Verkocht onder voorbehoud
Aanvaarding In overleg

Bouwvorm

Soort object Woonhuis
Soort woning Eengezinswoning
Type woning Tussenwoning
Bouwjaar 1974
Bouwvorm Bestaande bouw
Ligging Aan een rustige weg, in een woonwijk

Indeling

Woonoppervlakte 110 m²
Perceeloppervlakte 203 m²
Inhoud 435 m³
Aantal kamers 5
Aantal slaapkamers 4
Aantal woonlagen 3

Energie

Energieklasse B
Energie einddatum zondag 23 april 2034
Isolatie Muurisolatie, dubbel glas
Warmwater Cv ketel
Verwarming Cv ketel, open haard, houtkachel

Buitenruimte

Tuin Achtertuin, voortuin
Hoofdtuin Achtertuin
Oppervlakte hoofdtuin 74 m²
Ligging hoofdtuin Noord-west
Achterom Ja
Kwaliteit tuin Fraai aangelegd

Bergruimte

Garage Aangebouwd steen, inpandig, eigen parkeerplaats
Schuur / Berging Vrijstaand hout
Voorzieningen Elektra, elektrische deur

Parkeergelegenheid

Voorzieningen Openbaar parkeren, op eigen terrein

Dak

Dak Zadeldak

Overig

Permanente bewoning Ja
Onderhoud binnen Uitstekend
Onderhoud buiten Uitstekend
Huidig gebruik Woonruimte
Huidige bestemming Woonruimte

Voorzieningen

Voorzieningen Mechanische ventilatie, alarminstallatie, rolluiken, tv kabel, airconditioning, zonnepanelen, natuurlijke ventilatie

Kadastrale gegevens

Gemeente Dussen
Sectie R
Perceelnummer 787
Oppervlakte 203 m²
Eigendomssituatie Volle eigendom
v1-20250318-8G0A1538EE
Interesse in deze woning?

Stefan helpt u graag

Gratis waardebepaling

U denkt erover uw woning te verkopen en wilt graag weten wat het waard is? We komen graag bij u langs en bepalen de waarde van uw woning.

Gratis waardebepaling

Deel deze woning

Uw persoonlijke adviseur in de regio

Maak kennis met de HypotheekWeter

Ligging

Afspraak maken voor een bezichtiging? Neem contact met ons op

Vergelijkbare woningen