0183 - 635011 0183 - 635011 Stel een vraag Stel een vraag
Beschikbaar

St. Elisabethstraat 5 C

HANK
€ 595.000,- k.k.
  • Woonoppervlakte 120 m2
  • Aantal slaapkamers 2
  • Bouwjaar 2026

Omschrijving

WONEN IN NIEUWBOUW: INSTAPKLAAR APPARTEMENT MET UITGEZOCHTE KEUKEN!
Aan de St. Elisabethstraat 5C in Hank wordt dit moderne nieuwbouwappartement opnieuw aangeboden. Een unieke kans om te wonen in een kleinschalig nieuwbouwproject, zonder de lange wachttijd én met een reeds zorgvuldig uitgezochte keuken. Hier combineer je het comfort van nieuwbouw met het gemak van een woning die al deels is voorbereid op jouw toekomst. De oplevering van de woning is in de zomer van 2026.

Meer weten over dit project? Plan een vrijblijvende afspraak in op ons kantoor in Sleeuwijk:
11 maart: 09:00-12:00

Modern en licht wonen
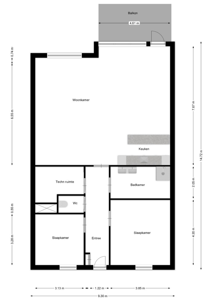
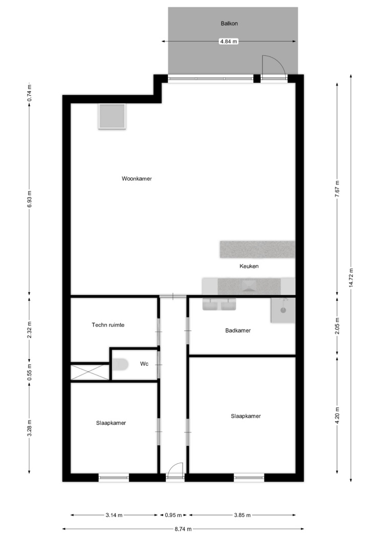
Bij binnenkomst valt direct de royale leefruimte op. De woonkamer en keuken vormen samen een open en lichte ruimte van maar liefst ca. 7,67 meter diep. Dankzij de grote raampartijen aan de balkonzijde geniet je hier van veel natuurlijk daglicht en een prettige verbinding met buiten.
De keuken is al uitgezocht en uitgevoerd in een moderne, stijlvolle opstelling met een strak kookeiland/bar. De combinatie van lichte fronten, een donker werkblad en een karaktervolle achterwand geeft het geheel een luxe uitstraling. De baropstelling maakt dit dé plek om te koken, borrelen en samen te komen.
Vanuit de woonkamer stap je zo het ruime balkon op van circa 4,84 meter breed: een heerlijke plek om buiten te zitten.

Praktische indeling
Het appartement beschikt over twee slaapkamers:
* Een ruime hoofdslaapkamer van ca. 4,20 x 3,85 m
* Een tweede slaapkamer van ca. 3,28 x 3,14 m
Ideaal als logeerkamer, werkkamer of hobbyruimte.
De badkamer is centraal gelegen en praktisch ingedeeld. Daarnaast is er een separaat toilet en een technische ruimte met plek voor installaties en extra bergruimte.
De totale breedte van het appartement bedraagt ca. 8,74 meter, wat zorgt voor een ruimtelijk gevoel en een prettige, efficiënte indeling.

Nieuwbouwcomfort & highlights
Dit appartement maakt onderdeel uit van een recent gerealiseerd nieuwbouwproject met oplevering in de zomer van 2026. Dat betekent:
* Optimale isolatie
* Energiezuinig wonen
* Lage onderhoudskosten
* Comfortabele installaties
* Geen bouwrente voor nieuwe kopers
* Oplevering is inclusief badkamer en keuken, exclusief vloer
* Eigen fietsenberging
* Eigen parkeerplaats
* Lift aanwezig
* Voorzien van vloerverwarming
* VvE kosten: EUR 250,00 per maand
* Oplevering zomer 2026
Je woont hier toekomstgericht en duurzaam, met alle voordelen die nieuwbouw te bieden heeft.

Wonen in Hank
Hank is een gemoedelijk en groen dorp, gunstig gelegen nabij uitvalswegen richting Gorinchem, Breda en Utrecht. De Biesbosch ligt praktisch om de hoek, waardoor je hier geniet van rust, natuur en ruimte, terwijl dagelijkse voorzieningen binnen handbereik zijn.

Kortom: een modern, energiezuinig nieuwbouwappartement met twee slaapkamers, ruim balkon en reeds uitgezochte luxe keuken: klaar voor een nieuwe eigenaar. Een mooie kans om zonder bouwstress te genieten van nieuw wooncomfort aan de St. Elisabethstraat 5C in Hank!

Lees de volledige omschrijving

Kenmerken

Overdracht

Status Beschikbaar
Aanvaarding In overleg

Bouwvorm

Soort object Appartement
Bouwjaar 2026
Bouwvorm Nieuwbouw
Ligging In een woonwijk, vrij uitzicht

Indeling

Woonoppervlakte 120 m²
Inhoud 312 m³
Aantal kamers 3
Aantal slaapkamers 2
Aantal woonlagen 1

Energie

Isolatie Volledig geïsoleerd
Verwarming Vloerverwarming geheel

Buitenruimte

Tuin Geen tuin
Achterom Nee

Bergruimte

Garage Geen garage

Parkeergelegenheid

Voorzieningen Parkeergarage, op eigen terrein

Dak

Dak Plat dak

Overig

Permanente bewoning Ja
Onderhoud binnen Goed
Onderhoud buiten Goed
Huidig gebruik Woonruimte
Huidige bestemming Woonruimte

Voorzieningen

Voorzieningen Mechanische ventilatie, lift

Kadastrale gegevens

Gemeente Dussen
Sectie O
Perceelnummer 372
Eigendomssituatie Volle eigendom
PLR55485
Interesse in deze woning?

Dionne helpt u graag

Gratis waardebepaling

U denkt erover uw woning te verkopen en wilt graag weten wat het waard is? We komen graag bij u langs en bepalen de waarde van uw woning.

Gratis waardebepaling

Deel deze woning

Uw persoonlijke adviseur in de regio

Maak kennis met de HypotheekWeter

Ligging

Afspraak maken voor een bezichtiging? Neem contact met ons op

Vergelijkbare woningen