0183 - 635011 0183 - 635011 Stel een vraag Stel een vraag
Beschikbaar

St. Elisabethstraat 3 H

HANK
€ 435.000,- v.o.n.
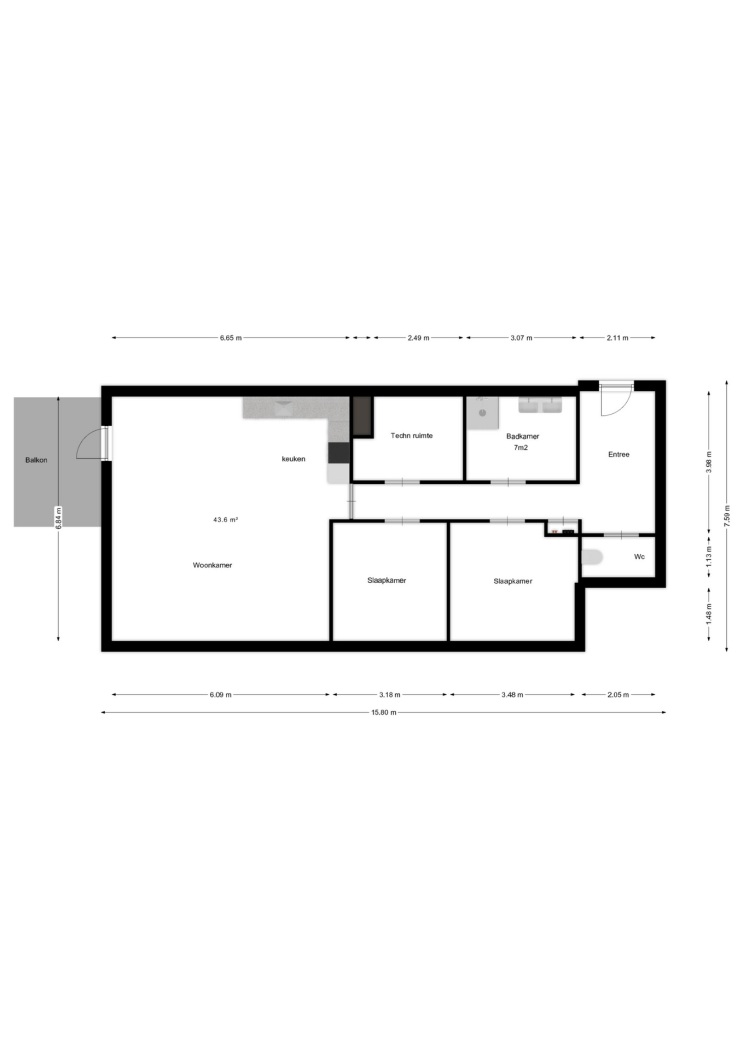
  • Woonoppervlakte 97 m2
  • Aantal slaapkamers 2
  • Bouwjaar 2025

Omschrijving

De bouw is gestart!
Woningborg Afbouwgarantie van toepassing – koop met vertrouwen.

Type G – Bouwnummer 13
Adres: St. Elisabethstraat 3H, 4273 EH Hank

Een royaal appartement op de eerste verdieping, met volop ruimte, comfort en een fijn balkon terras. Hier woont u rustig, duurzaam én zorgeloos.

• Gelegen op de eerste verdieping
• Woonoppervlakte van circa 97 m²
• Fijn balkon (BVO) van circa 9 m²
• Zeer royale woonkamer met open keuken, grenzend aan een terras of balkon
• Twee comfortabele slaapkamers
• Moderne badkamer met douche en wastafel
• Separaat toilet voor extra comfort
• Technische ruimte met aansluiting voor de wasmachine
• Eigen berging op de begane grond van het complex
• Eigen parkeerplaats op het binnenterrein
• Prijs is inclusief duurzaam energiesysteem
• Vloerverwarming als comfortabele hoofdverwarming
• Mogelijkheid tot aankoop van een tweede parkeerplaats à € 10.000,-- v.o.n.

Wonen in de Phoenix: een oase van rust
Het complex bestaat uit 22 ruime appartementen, variërend in grootte van 77 tot 121 vierkante meter. Elk appartement is zorgvuldig ontworpen om maximaal comfort en functionaliteit te bieden. Met een doordachte indeling en sfeervolle omgeving creëren deze appartementen een oase van rust. Elk appartement beschikt over een eigen balkon of terras, waardoor bewoners kunnen genieten van de prachtige omgeving en de frisse lucht. Of u nu ‘s ochtends wilt genieten van een kopje koffie op uw balkon of ‘s avonds wilt ontspannen met een goed boek, het balkon of terras biedt de perfecte buitenruimte om te ontspannen en te genieten van het uitzicht.

Omgeving en Ligging

Charmant dorp, centrale ligging
We nemen u mee naar Hank, een charmant dorp in de provincie Noord-Brabant. Hank is omgeven door prachtige natuur en groene landschappen. Hier ontdekt u de vele fiets- en wandelpaden door groene bossen, langs schilderachtige rivieren en over uitgestrekte weilanden. Het dorp ligt aan de rivier de Maas, met de Biesbosch als 'achtertuin'.

De Biesbosch als achtertuin
Hank grenst aan natuurgebied De Biesbosch. Het is een nationaal park, bekend om zijn wateren, moerassen en drasland. Met zijn talrijke diersoorten is dit een heerlijke plek voor natuurliefhebbers. Hank biedt een welkome ontsnapping aan de drukte van de stad. Hier geniet u van de rust en stilte van het platteland, terwijl u toch gemakkelijk toegang hebt tot de nabijgelegen steden en voorzieningen.

Centrale ligging
De Phoenix is gelegen op de hoek van de Kerkstraat en de Sint Elisabethstraat in Hank. De Kerkstraat is de straat die het hart van het dorp doorkruist. Het is een historische straat met een unieke charme. Langs de Kerkstraat zijn diverse winkels, restaurants en andere voorzieningen te vinden. Hoewel het midden in de natuur ligt, ligt Hank gunstig ten opzichte van de nabijgelegen steden. De steden zijn goed bereikbaar doordat het dorp goed verbonden is met het wegennet zoals de A27.

Alle voorziening om de hoek
Wonen in de Phoenix biedt niet alleen comfort op het gebied van wonen. Ook de omgeving draagt hier aan bij! Voor uw dagelijkse boodschappen kunt u gemakkelijk terecht bij de supermarkt in de straat. Ook de bakker, apotheek, tandarts, slager en kapper zitten om de hoek. Zin om een hapje buiten de deur te eten? Op loopafstand bevinden zich meerdere restaurants voor u om uit te kiezen. Wanneer u een stukje fietsen niet erg vindt staat u met nog geen kwartiertje in een fantastisch restaurant in de Biesbosch. Zelfs de golfbaan zit hier in de buurt. Ideaal, toch?

Lees de volledige omschrijving

Kenmerken

Overdracht

Status Beschikbaar
Aanvaarding In overleg

Bouwvorm

Soort object Appartement
Bouwjaar 2025
Bouwvorm Bestaande bouw
Ligging Aan een rustige weg, in een woonwijk

Indeling

Woonoppervlakte 97 m²
Inhoud 281 m³
Aantal kamers 3
Aantal slaapkamers 2
Aantal woonlagen 1

Energie

Energieklasse A+++
Energie einddatum maandag 23 april 2035
Isolatie Volledig geïsoleerd, hr glas
Verwarming Vloerverwarming geheel, warmtepomp, warmtepomp terugwininstallatie

Buitenruimte

Tuin Geen tuin
Achterom Nee

Bergruimte

Garage Eigen parkeerplaats, geen garage
Schuur / Berging Inpandig

Parkeergelegenheid

Voorzieningen Op eigen terrein

Dak

Dak Plat dak

Overig

Permanente bewoning Ja
Onderhoud binnen Uitstekend
Onderhoud buiten Uitstekend
Huidig gebruik Woonruimte
Huidige bestemming Woonruimte

Voorzieningen

Voorzieningen Mechanische ventilatie, zonnepanelen, natuurlijke ventilatie

Kadastrale gegevens

Gemeente Dussen
Sectie O
Perceelnummer 898
PLR55485
Interesse in deze woning?

Dionne helpt u graag

Gratis waardebepaling

U denkt erover uw woning te verkopen en wilt graag weten wat het waard is? We komen graag bij u langs en bepalen de waarde van uw woning.

Gratis waardebepaling

Deel deze woning

Uw persoonlijke adviseur in de regio

Maak kennis met de HypotheekWeter

Ligging

Afspraak maken voor een bezichtiging? Neem contact met ons op

Vergelijkbare woningen