0183 - 635011 0183 - 635011 Stel een vraag Stel een vraag
Open huis

Vrijheidsstraat 12

LEERDAM
€ 450.000,- k.k.
Open huis

Meld u telefonisch aan voor de kijkdag op dinsdag 10 februari 2026 van 13:15 tot 16:45 uur.

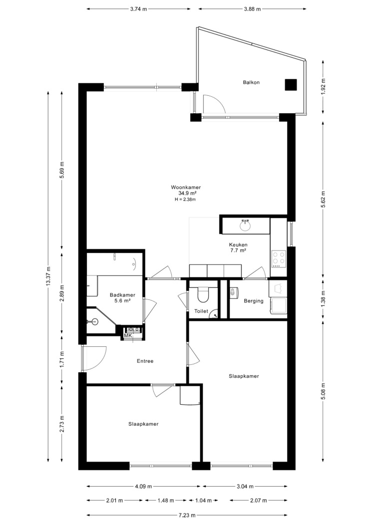
  • Woonoppervlakte 92 m2
  • Aantal slaapkamers 2
  • Bouwjaar 2000

Omschrijving

Open Dag | Dinsdag 10 februari | 13:15 – 16:45 uur
Kom de woning vrijblijvend bekijken tijdens dit speciale kijkmoment met persoonlijke bezichtigingen. Bel ons vooraf om jouw tijdslot te reserveren. We ontvangen je graag voor een rustige rondleiding, in alle aandacht en op jouw tempo.

Welkom aan de Vrijheidsstraat 12 in Leerdam: een ruim en licht appartement met een woonoppervlakte van maar liefst 92 m², gelegen op een centrale en geliefde locatie. Hier woon je comfortabel, energiezuinig en met alle dagelijkse voorzieningen binnen handbereik.

Bij binnenkomst ervaar je direct de prettige ruimte en de fijne lichtinval. De royale woonkamer van circa 35 m² vormt het hart van het appartement en biedt volop plek voor een comfortabele zithoek en een ruime eethoek. De open keuken sluit perfect aan op de woonkamer en is van alle gemakken voorzien, waardoor koken en samenzijn hier naadloos in elkaar overlopen. Aansluitend aan de keuken bevindt zich een praktische berging, ideaal als voorraadkast of extra opslagruimte.

Vanuit de woonkamer heb je directe toegang tot het ruime balkon, een heerlijke plek om te ontspannen en te genieten van de buitenlucht en het uitzicht. Het appartement beschikt over twee goed bemeten slaapkamers, die flexibel in te delen zijn als slaap-, werk- of hobbyruimte.

De moderne badkamer is compleet uitgevoerd en voorzien van een ligbad, een aparte douche en een wastafel. Het separate toilet zorgt voor extra comfort en praktisch woongemak.

Daarnaast beschikt het appartement over een extra inpandige berging. Parkeren is eenvoudig dankzij openbaar parkeren rondom het complex én de aanwezigheid van een inpandige parkeergarage met een ruime eigen parkeerplaats. Met energielabel A en een bouwjaar van 2000 is dit een comfortabel en energiezuinig appartement dat helemaal klaar is voor de toekomst.

Highlights
* Woonoppervlakte van ca. 92 m²
* Appartement op de 3e verdieping
* Ruim en licht appartement op centrale locatie in Leerdam
* Royale woonkamer van ca. 35 m² met open keuken
* Open keuken die perfect aansluit op de leefruimte
* Directe toegang tot het ruime balkon vanuit de woonkamer
* Twee goed bemeten slaapkamers
* Moderne badkamer met ligbad, aparte douche en wastafel
* Separaat toilet voor extra comfort
* Praktische berging aansluitend aan de keuken
* Extra inpandige berging
* Energielabel A
* Bouwjaar 2000
* Openbaar parkeren rondom het complex
* Inpandige parkeergarage met eigen parkeerplaats

Wonen in Leerdam
Leerdam staat bekend als een gezellige en levendige stad met een rijke historie, een charmant centrum en een prettige woonomgeving. Je vindt er een breed aanbod aan winkels, supermarkten, horecagelegenheden en culturele voorzieningen, allemaal op korte afstand. De stad is bovendien beroemd om haar glasindustrie, wat terug te zien is in het karakter en de uitstraling van Leerdam.
Dankzij de gunstige ligging en uitstekende bereikbaarheid woon je hier centraal. Met het treinstation en diverse uitvalswegen in de buurt zijn steden als Gorinchem, Utrecht en Den Bosch goed en snel bereikbaar. Daarnaast biedt Leerdam volop mogelijkheden om te ontspannen in het groen, langs de Linge of in de omliggende natuur.

Kortom: een ruim, licht en compleet appartement op een centrale locatie in Leerdam, ideaal voor wie zorgeloos en gelijkvloers wil wonen.

Lees de volledige omschrijving

Kenmerken

Overdracht

Status Beschikbaar
Aanvaarding In overleg

Bouwvorm

Soort object Appartement
Bouwjaar 2000
Bouwvorm Bestaande bouw
Ligging Aan een rustige weg, in het centrum, open ligging

Indeling

Woonoppervlakte 92 m²
Inhoud 277 m³
Aantal kamers 4
Aantal slaapkamers 2
Aantal woonlagen 1

Energie

Energieklasse A
Energie einddatum maandag 24 december 2035
Isolatie Dubbel glas
Warmwater Cv ketel
Verwarming Cv ketel

Buitenruimte

Tuin Geen tuin
Achterom Nee

Bergruimte

Garage Geen garage

Parkeergelegenheid

Voorzieningen Openbaar parkeren, parkeergarage

Dak

Dak Plat dak

Overig

Permanente bewoning Ja
Onderhoud binnen Goed
Onderhoud buiten Redelijk tot goed
Huidig gebruik Woonruimte
Huidige bestemming Woonruimte

Voorzieningen

Voorzieningen Mechanische ventilatie, tv kabel

Kadastrale gegevens

Gemeente Leerdam
Sectie C
Perceelnummer 3269
v1-20250318-8G0A1573E
Interesse in deze woning?

Robert helpt u graag

Gratis waardebepaling

U denkt erover uw woning te verkopen en wilt graag weten wat het waard is? We komen graag bij u langs en bepalen de waarde van uw woning.

Gratis waardebepaling

Deel deze woning

Uw persoonlijke adviseur in de regio

Maak kennis met de HypotheekWeter

Ligging

Afspraak maken voor een bezichtiging? Neem contact met ons op

Vergelijkbare woningen