0183 - 635011 0183 - 635011 Stel een vraag Stel een vraag
Open huis

Tulpstraat 22

LEERDAM
€ 385.000,- k.k.
Open huis

Meld u telefonisch aan voor de kijkdag op donderdag 16 april 2026 van 13:15 tot 16:45 uur.

  • Woonoppervlakte 100 m2
  • Perceeloppervlakte 164 m2
  • Aantal slaapkamers 4
  • Bouwjaar 1925

Omschrijving

Open Dag | Donderdag 16 april | 13:15 – 16:45 uur
Ontdek deze woning tijdens ons speciale kijkmoment met persoonlijke bezichtigingen. Bel ons vooraf om je eigen tijdslot te reserveren. Wij ontvangen je graag voor een rustige, ontspannen rondleiding, helemaal afgestemd op jou.

Sfeervolle, gasloze twee-onder-een-kapwoning met energielabel A+ – karakter én comfort in Leerdam-West

Sommige huizen voelen meteen goed. Dit is er zo één.

Welkom in deze charmante woning waar het karakter van vroeger perfect samenkomt met het wooncomfort van nu. Gebouwd in de jaren ’20 en voorzien van een prachtige erker aan de voorzijde, straalt deze woning direct warmte en sfeer uit. Aan de achterzijde is de woning over de volle breedte uitgebouwd, waardoor een verrassend ruime en lichte leefruimte is ontstaan.

Op de begane grond vind je een fijne woonkamer met veel lichtinval, een uitgebouwde keuken met moderne apparatuur en een schuifpui naar de tuin. Daarnaast zijn er een praktische bijkeuken, badkamer en toilet op de begane grond aanwezig – ideaal voor comfortabel wonen.

Op de eerste verdieping bevinden zich maar liefst vier slaapkamers en een wastafel. Via een vlizotrap is de bergzolder bereikbaar, perfect voor extra opslagruimte.

De woning is volledig gasloos en klaar voor de toekomst, met onder andere vloerverwarming, een warmtepomp met geïntegreerde boiler + topkoeling en 8 zonnepanelen. Comfortabel, duurzaam én energiezuinig wonen!

Gelegen in het gezellige Leerdam-West, een ruim opgezette en karaktervolle wijk met een fijne mix van woningen. Op loopafstand vind je diverse winkels, scholen, supermarkten en speciaalzaken. Een buurt waar het dorpsgevoel en voorzieningen perfect samenkomen.

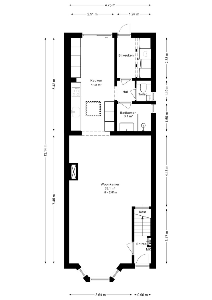
INDELING BEGANE GROND

Welkom!
Via de entree met meterkast heb je direct toegang tot de woonkamer en de trapopgang naar de eerste verdieping.

Wonen, koken en opfrissen
De woonkamer ademt sfeer en karakter, met als blikvanger de charmante erker aan de voorzijde waar het daglicht mooi naar binnen valt. De donkere plavuizen in combinatie met comfortabele vloerverwarming zorgen voor een warme en luxe uitstraling. De haardmantel, tegenwoordig stijlvol ingericht als aquarium, geeft de ruimte een speels en uniek accent en er is een handige trapkast.

Aan de achterzijde is de woning royaal uitgebouwd, waardoor een heerlijke leefkeuken is ontstaan. De keuken heeft een moderne parallel opstelling met opvallende rode kastfronten, gecombineerd met een warme houtlook kastenwand voor volop bergruimte. Uiteraard is de keuken voorzien van diverse inbouwapparatuur, waaronder een inductiekookplaat, afzuigkap, oven en koelkast. Het daklicht en de schuifpui naar de tuin zorgen voor een lichte en open sfeer, waardoor binnen en buiten naadloos in elkaar overlopen.

Via de keuken bereik je een praktische tussenhal met toegang tot het toilet en de badkamer. De badkamer is netjes afgewerkt en voorzien van een inloopdouche, wastafelmeubel en een handige badkamerkast. Daarnaast is er een ruime en functionele bijkeuken met aansluitingen voor was- en droogapparatuur, extra opbergruimte en plek voor bijvoorbeeld een vriezer. Vanuit hier is er eveneens een deur naar de tuin – ideaal voor het dagelijks gemak.

INDELING VERDIEPING

De overloop is praktisch ingericht en voorzien van een handige wastafel. Op deze verdieping bevinden zich maar liefst vier slaapkamers, verdeeld over twee kamers aan de voorzijde en twee aan de achterzijde – ideaal voor een gezin, werkruimte of hobbykamer.
Via een luik met vlizotrap is de zolderberging bereikbaar, perfect voor het opbergen van seizoensspullen en extra opslag.

Tuin – buitenruimte
De achtertuin is verzorgd aangelegd met sierbestrating en biedt een fijne, onderhoudsvriendelijke buitenruimte om van te genieten. De tuin is zowel via de keuken als de bijkeuken bereikbaar en beschikt daarnaast over een handige achterom aan de zijkant van de woning.

Dankzij de schuttingen geniet je hier volop privacy, waardoor het een heerlijke plek is om te ontspannen. Achterin de tuin bevindt zich een stenen berging over de volle breedte, ideaal voor het stallen van fietsen, het opbergen van spullen of voor de klusliefhebber.

Highlights:
•Bouwjaar: 1925
•Woonoppervlakte: ca. 100 m²
•Perceel: 164 m²
•Energielabel A+
•Sfeervolle woonkamer (33 m²) met karakteristieke erker
•Uitgebouwde keuken met apparatuur en schuifpui naar de tuin
•Badkamer, bijkeuken en toilet op de begane grond
•Eerste verdieping met 4 slaapkamers en wastafel
•Vliering met bergzolder
•De woning is voorzien van spouwmuur-, dak- en vloerisolatie
•Hardhouten kozijnen met HR, HR+ en HR++ glas
•8 zonnepanelen (2014)
•Warmtepomp met geïntegreerde boiler en topkoeling
•Betonvloer op de begane grond
•Vloerverwarming op begane grond en in de badkamer
•Groepenkast vernieuwd (2024)
•Screens en rolluiken
•Fijne tuin op het noordwesten en een ruime stenen schuur
•Recht van overpad (nr. 24) – erfdienstbaarheid van uitpad

Lees de volledige omschrijving

Kenmerken

Overdracht

Status Beschikbaar
Aanvaarding In overleg

Bouwvorm

Soort object Woonhuis
Soort woning Eengezinswoning
Type woning Twee onder één kapwoning
Bouwjaar 1925
Bouwvorm Bestaande bouw
Ligging Aan een rustige weg, in een woonwijk

Indeling

Woonoppervlakte 100 m²
Perceeloppervlakte 164 m²
Inhoud 408 m³
Aantal kamers 5
Aantal slaapkamers 4
Aantal woonlagen 3

Energie

Energieklasse A+
Energie einddatum donderdag 16 maart 2023
Isolatie Dakisolatie, muurisolatie, vloerisolatie, dubbel glas, hr glas
Verwarming Vloerverwarming gedeeltelijk, warmtepomp

Buitenruimte

Tuin Achtertuin
Hoofdtuin Achtertuin
Oppervlakte hoofdtuin 50 m²
Ligging hoofdtuin Noord-west
Achterom Ja
Kwaliteit tuin Normaal

Bergruimte

Garage Geen garage
Schuur / Berging Vrijstaand steen

Parkeergelegenheid

Voorzieningen Openbaar parkeren

Dak

Dak Zadeldak

Overig

Permanente bewoning Ja
Onderhoud binnen Goed tot uitstekend
Onderhoud buiten Goed tot uitstekend
Huidig gebruik Woonruimte
Huidige bestemming Woonruimte

Voorzieningen

Voorzieningen Mechanische ventilatie, rolluiken, tv kabel, buitenzonwering, schuifpui, dakraam, zonnepanelen, natuurlijke ventilatie

Kadastrale gegevens

Gemeente Leerdam
Sectie D
Perceelnummer 65
Oppervlakte 164 m²
Eigendomssituatie Volle eigendom
v1-20250318-8G0A1573E
Interesse in deze woning?

Robert helpt u graag

Gratis waardebepaling

U denkt erover uw woning te verkopen en wilt graag weten wat het waard is? We komen graag bij u langs en bepalen de waarde van uw woning.

Gratis waardebepaling

Deel deze woning

Uw persoonlijke adviseur in de regio

Maak kennis met de HypotheekWeter

Ligging

Afspraak maken voor een bezichtiging? Neem contact met ons op

Vergelijkbare woningen