0183 - 635011 0183 - 635011 Stel een vraag Stel een vraag
Beschikbaar

Kromme Gat 8

HARDINXVELD-GIESSENDAM
€ 389.000,- k.k.
  • Woonoppervlakte 126 m2
  • Perceeloppervlakte 295 m2
  • Aantal slaapkamers 5
  • Bouwjaar 1933

Omschrijving

Wonen met karakter en eindeloze mogelijkheden aan het Kromme Gat

Droom je van een plek waar je écht iets bijzonders van kunt maken? Onder aan de historische Rivierdijk, in het groene en rustige Kromme Gat, ligt deze karakteristieke vrijstaande woning (voorheen Rivierdijk 433) vol charme en potentie.

De woning is via een recht van overpad bereikbaar en staat op een ruim perceel van 295 m². Met een opvallende lengte van circa 17 meter en maar liefst drie schuren/bergingen is hier ruimte in overvloed – ideaal voor opslag, hobby of werk aan huis.
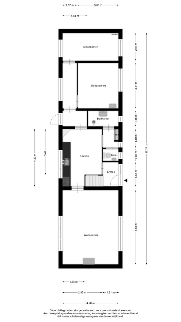
Binnen vind je een speelse en verrassende indeling met onder andere een woonkamer met schouw (ca. 23 m²), een woonkeuken (ca. 11 m²) en twee slaapkamers en een badkamer op de begane grond. De verdieping, bereikbaar via een vaste trap, biedt meerdere (slaap-/werk)kamers die met elkaar in verbinding staan en volop mogelijkheden bieden.

Hier ligt jouw kans: maak van deze plek jouw unieke thuis
Voor wie durft te dromen én aan te pakken: een unieke kans op een karaktervolle plek die het meer dan waard is om nieuw leven in te blazen.
Het Kromme Gat kenmerkt zich door een rustige, landelijke ligging met een karakteristieke mix van bebouwing en veel groen. Aan de rand van het dorp ervaar je hier volop ruimte en een heerlijk buitengevoel. Op korte afstand liggen de Rivierdijk en de Beneden-Merwede, waar je kunt genieten van het typische rivierenlandschap. De nabijgelegen watertoren geeft de omgeving extra karakter en herkenbaarheid. Daarnaast ligt de woning gunstig ten opzichte van Boven-Hardinxveld met winkels en scholen, is het treinstation op korte afstand bereikbaar en zijn de snelwegen A15 en A27 eenvoudig te bereiken.

Highlights
•Vrijstaande woning met renovatie potentie
•Bouwjaar ca. 1933
•Woonopp. ca. 126 m² | Perceel 295 m²
•Energielabel G, beneden dubbele beglazing
•Woonkamer met schouw en woonkeuken
•2 slaapkamers en badkamer op de begane grond
•Verdieping met 3 (slaap-/werk)ruimten, vrij indeelbaar
•Rustige, landelijke woonomgeving
•Nabij voorzieningen en uitvalswegen
•Niet-zelfbewoningsclausule van toepassing

Een kans als deze komt zelden voorbij — durf jij het avontuur aan?

Lees de volledige omschrijving

Kenmerken

Overdracht

Status Beschikbaar
Aanvaarding In overleg

Bouwvorm

Soort object Woonhuis
Soort woning Eengezinswoning
Type woning Vrijstaande woning
Bouwjaar 1933
Bouwvorm Bestaande bouw
Ligging Aan een rustige weg, landelijk gelegen

Indeling

Woonoppervlakte 126 m²
Perceeloppervlakte 295 m²
Inhoud 434 m³
Aantal kamers 6
Aantal slaapkamers 5
Aantal woonlagen 2

Energie

Energieklasse G
Energie einddatum woensdag 19 maart 2036
Warmwater Cv ketel
Verwarming Cv ketel

Buitenruimte

Tuin Tuin rondom
Hoofdtuin Tuin rondom
Achterom Nee

Bergruimte

Garage Geen garage
Schuur / Berging Vrijstaand steen

Parkeergelegenheid

Voorzieningen Openbaar parkeren

Dak

Dak Zadeldak

Overig

Permanente bewoning Ja
Onderhoud binnen Slecht tot matig
Onderhoud buiten Matig
Huidig gebruik Woonruimte
Huidige bestemming Woonruimte

Kadastrale gegevens

Gemeente Hardinxveld-Giessendam
Sectie C
Perceelnummer 3570
Oppervlakte 295 m²
Eigendomssituatie Zie akte
v1-20250318-8G0A1608E
Interesse in deze woning?

Leo helpt u graag

Gratis waardebepaling

U denkt erover uw woning te verkopen en wilt graag weten wat het waard is? We komen graag bij u langs en bepalen de waarde van uw woning.

Gratis waardebepaling

Deel deze woning

Uw persoonlijke adviseur in de regio

Maak kennis met de HypotheekWeter

Ligging

Afspraak maken voor een bezichtiging? Neem contact met ons op

Vergelijkbare woningen