0183 - 635011 0183 - 635011 Stel een vraag Stel een vraag
Verkocht

Koningin Emmastraat 47

GORINCHEM
€ 620.000,- k.k.
  • Woonoppervlakte 160 m2
  • Perceeloppervlakte 250 m2
  • Aantal slaapkamers 5
  • Bouwjaar 1936

Omschrijving

Heerlijke sfeer – karaktervol jaren ’30 herenhuis

Dit fraaie 2-onder-1-kap herenhuis ademt de sfeer en elegantie van de jaren ’30. De karakteristieke architectuur zie je terug in de stijlvolle daklijn, de meerdere dakkapellen, het glas-in-lood, de erker en de originele terrazzo vloer in de hal – stuk voor stuk details die deze woning tot een lust voor het oog maken.

De woning is bovendien vergroot met een uitgebouwde keuken én een praktische bijkeuken, waarvan de buitenzijde sfeervol is afgewerkt met potdekselwerk.

Via de vestibule en gang betreed je de royale woonkamer, compleet met een open haard en een houtkachel, sfeervolle erker en dubbele openslaande deuren naar de tuin. De woning biedt daarnaast maar liefst vijf comfortabele slaapkamers, tot hoog in de kap.

De fraai aangelegde tuin met vijverpartij, terrassen en weelderige beplanting biedt veel privacy en is ideaal gesitueerd op het zuiden. Hier geniet je in alle rust van zon en groen.

Deze goed onderhouden woning ligt in een geliefde, rustige woonwijk “op stand”, op korte afstand van scholen, de binnenstad, winkelcentrum Piazza, sportverenigingen en uitvalswegen.

Kom kijken en laat je hart veroveren door de sfeer en allure van deze bijzondere woning!

Highlights
•Bouwjaar: 1936
•Woonoppervlakte: ca. 160 m²
•Perceeloppervlakte: 250 m²
•Energielabel C
•De woning is deels voorzien van HR+-beglazing en deels van HR-glas
•Voorzien van 14 zonnepanelen
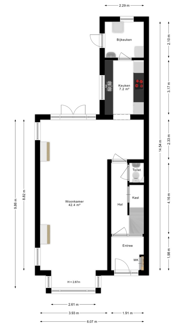
•Ruime woonkamer: ca. 42,4 m²
•Uitgebouwde keuken: ca. 7,2 m² + praktische bijkeuken
•1e verdieping: 3 slaapkamers (waarvan één met vaste kast én balkon, en één met vaste kast en wastafel)
•Badkamer: met ligbad, inloopdouche en wastafelmeubel
•Separaat toilet op de overloop
•2e verdieping: 2 slaapkamers, beide voorzien van een wastafel én directe toegang tot de recent vernieuwde doucheruimte
•Voorzien van diverse dakkapellen
•2003: complete vernieuwing vloerconstructie, inclusief laag Drowa-chips in kruipruimte ter verbetering van luchtvochtigheid
•Beide schoorstenen professioneel gevoerd met RVS buis
•Volledige spouwmuurisolatie (2023) uitgevoerd met eco parels triple+ – extra comfort en lagere energielasten
•Goed aangelegde achtertuin met vijverpartij op het zuiden
•Gelegen in een rustige en geliefde woonomgeving op stand

INDELING BEGANE GROND

Welkom!
De authentieke voordeur geeft toegang tot de vestibule, waar direct de jaren ’30 sfeer voelbaar is. Vanuit hier stap je de hal binnen, met naast de deur een fraai glas-in-loodpaneel dat voor extra licht en karakter zorgt. In de hal vind je verder de meterkast, een handige trapkast en het toilet, afgewerkt met jaren ’30 tegels en tegellambrisering. Vanuit hier bereik je het leefgedeelte.

Woonkamer
De woonkamer ademt warmte en karakter. Aan de voorzijde biedt de erker een knusse zithoek met volop natuurlijk licht, terwijl de dubbele terrasdeuren aan de achterzijde een directe verbinding met de tuin creëren. Extra ramen aan de oostzijde zorgen bovendien voor een prachtige lichtinval. Een charmant detail zijn de bovenlichten met authentiek glas-in-lood, die de ruimte extra allure geven.

Bijzonder sfeervol zijn de twee haarden: een gezellige houtkachel en een karaktervolle open haard. Ze brengen niet alleen warmte, maar ook een onweerstaanbare ambiance – ideaal voor lange avonden in goed gezelschap. Het praktische wandmeubel met dressoir blijft achter en vormt een harmonieus geheel met de ruimte.

De vloer verdient speciale aandacht: een klassiek tapis-parket, fraai in visgraat gelegd en uitgevoerd in de duurzame houtsoort Kambala. Deze tijdloze vloer geeft de woonkamer extra klasse en vormt de perfecte basis voor ieder interieur.

Keuken
De keuken is aan de achterzijde uitgebouwd en ingericht met een parallel opgestelde opstelling met strakke, witte kastfronten. Het spoelgedeelte bevindt zich onder het raam, waardoor je tijdens het koken of afwassen een prettig uitzicht hebt op de tuin. De keuken is compleet uitgerust met diverse inbouwapparatuur, waaronder een kookplaat, afzuigkap, vaatwasser, koelkast, combi-stoomoven én een praktische Quooker-kraan.

Bijkeuken
Direct grenzend aan de keuken bevindt zich de praktische bijkeuken. Hier zijn de aansluitingen voor wasmachine en droger, een spoelbak en volop extra ruimte voor bijvoorbeeld een tweede koelkast of een vriezer. Via de achterdeur stap je zo de tuin in.

INDELING EERSTE VERDIEPING

Overloop
Vanaf de overloop is er toegang tot drie slaapkamers, de badkamer en een separaat toilet. Zowel de eerste als de tweede verdieping zijn afgewerkt met marmoleum, wat zorgt voor een strakke en onderhoudsvriendelijke vloerafwerking.

3 slaapkamers
Op de eerste verdieping bevinden zich drie goed bemeten slaapkamers (2 aan de voorzijde waarvan 1 met vaste kast en deur naar het balkon en 1 kamer achterzijde heeft een kast met wastafel.

Badkamer
De moderne badkamer combineert comfort met de charme van de jaren ’30. Stijlvolle tegels en verfijnd mozaïek geven de ruimte een tijdloze uitstraling. Hier vind je alles voor een ontspannen start of afsluiting van de dag: een heerlijk ligbad, een royale inloopdouche en een strak RVS-wastafelmeubel met bijpassende spiegelkast. Een plek die niet alleen praktisch is, maar vooral uitnodigt om even helemaal tot rust te komen.

INDELING TWEEDE VERDIEPING
De topverdieping is verrassend ruim en dankzij de drie dakkapellen een volwaardige leefetage. Vanaf de overloop met handige kastruimte, een bergkast en de opstelplaats voor de cv-installatie, zijn de slaapkamers bereikbaar. Er zijn twee slaapkamers, beide voorzien van een eigen wastafel en een dakkapel aan de voor- en achterzijde.

Tussen de slaapkamers bevindt zich bovendien een recent vernieuwde, moderne doucheruimte.

Tuin & buitenruimte
Rondom de woning ligt een voor- en achtertuin, verbonden door een doorgang langs de zijkant van het huis. Zo ontstaat een prettige verbinding tussen voor- en achterzijde, elk met een eigen karakter. De achtertuin is gunstig gelegen op het zuiden en vormt een groene oase van rust. Meerdere terrassen, een sfeervolle vijverpartij met vlonderterras en weelderige, romantische beplanting zorgen het hele jaar door voor kleur en levendigheid. Het volwassen groen en de druif geven de tuin bovendien een bijna mediterrane uitstraling – een plek waar je eindeloos kunt genieten van het buitenleven.
Voor de woning is parkeergelegenheid op de openbare weg. In de voortuin bevindt zich bovendien een oplaadpunt voor een elektrische auto: comfortabel en klaar voor de toekomst.

Zijn jullie klaar voor een vleugje jaren ’30 met het comfort van nu? Dit huis wacht op jullie!

Lees de volledige omschrijving

Kenmerken

Overdracht

Status Verkocht
Aanvaarding In overleg

Bouwvorm

Soort object Woonhuis
Soort woning Herenhuis
Type woning Twee onder één kapwoning
Bouwjaar 1936
Bouwvorm Bestaande bouw
Ligging Aan een rustige weg, in een woonwijk

Indeling

Woonoppervlakte 160 m²
Perceeloppervlakte 250 m²
Inhoud 555 m³
Aantal kamers 6
Aantal slaapkamers 5
Aantal woonlagen 3

Energie

Energieklasse C
Energie einddatum zaterdag 14 juli 2035
Isolatie Dakisolatie, muurisolatie, dubbel glas, hr glas
Warmwater Cv ketel
Verwarming Cv ketel, open haard, houtkachel

Buitenruimte

Tuin Achtertuin, voortuin, zijtuin
Hoofdtuin Achtertuin
Oppervlakte hoofdtuin 123 m²
Ligging hoofdtuin Zuid
Achterom Ja
Kwaliteit tuin Fraai aangelegd

Bergruimte

Garage Geen garage

Parkeergelegenheid

Voorzieningen Openbaar parkeren

Dak

Dak Schilddak

Overig

Permanente bewoning Ja
Onderhoud binnen Goed tot uitstekend
Onderhoud buiten Goed tot uitstekend
Huidig gebruik Woonruimte
Huidige bestemming Woonruimte

Voorzieningen

Voorzieningen Tv kabel, zonnepanelen, natuurlijke ventilatie

Kadastrale gegevens

Gemeente Gorinchem
Sectie A
Perceelnummer 6077
Oppervlakte 250 m²
Eigendomssituatie Volle eigendom
v1-20250318-8G0A1573E
Interesse in deze woning?

Robert helpt u graag

Gratis waardebepaling

U denkt erover uw woning te verkopen en wilt graag weten wat het waard is? We komen graag bij u langs en bepalen de waarde van uw woning.

Gratis waardebepaling

Deel deze woning

Uw persoonlijke adviseur in de regio

Maak kennis met de HypotheekWeter

Ligging

Afspraak maken voor een bezichtiging? Neem contact met ons op

Vergelijkbare woningen