0183 - 635011 0183 - 635011 Stel een vraag Stel een vraag
Verkocht onder voorbehoud

Kerkweg 2

SCHELLUINEN
€ 350.000,- k.k.
  • Woonoppervlakte 93 m2
  • Aantal slaapkamers 2
  • Bouwjaar 2021

Omschrijving

Wonen met ruimte, comfort en een prachtig uitzicht
Aan de Kerkweg 2 bevindt zich dit ruime en moderne appartement met twee verdiepingen en een royaal dakterras, gebouwd in 2021. Een jong en goed onderhouden woning die volledig voldoet aan de eisen van nu én de toekomst. Dankzij energielabel A+, een warmtepomp en zonnepanelen is hier sprake van comfortabel en toekomstgericht wonen met een laag energieverbruik.

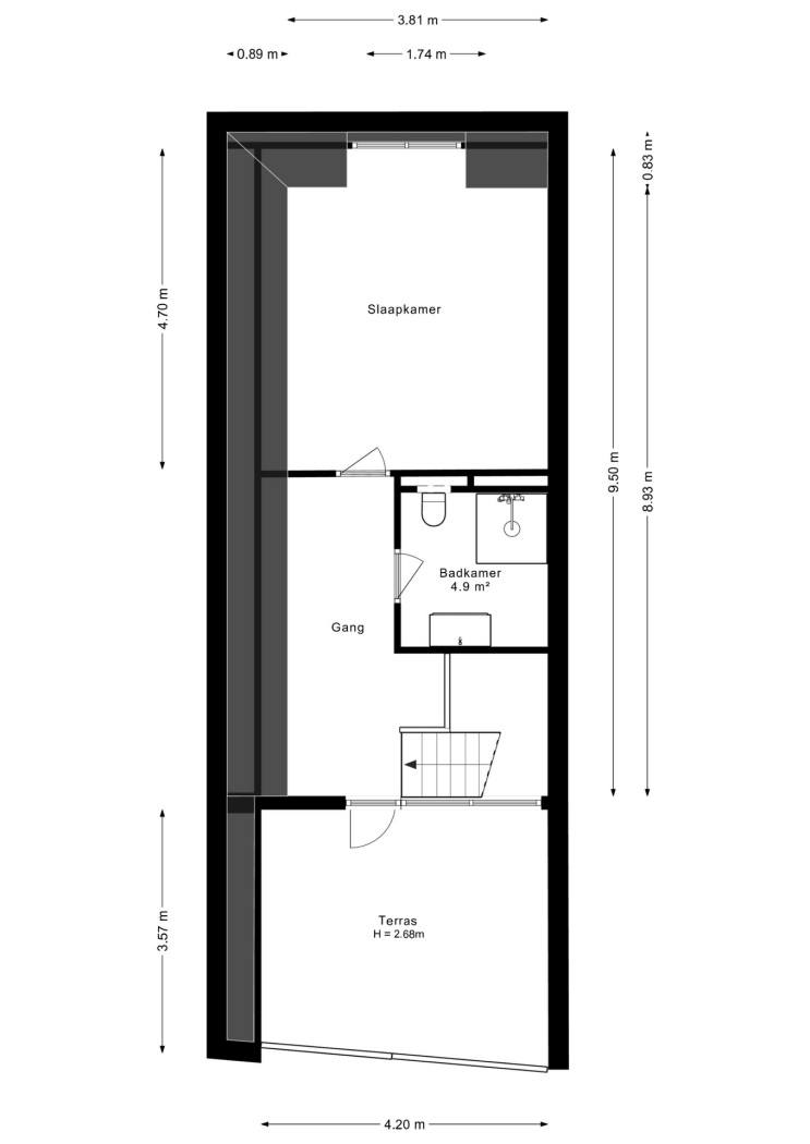
De eerste verdieping is ruim en open opgezet en vormt het hart van de woning. Hier vind je de royale woonkamer met open woonkeuken, waar zithoek, eethoek en keuken naadloos in elkaar overlopen. De zithoek is ruim van opzet en biedt alle vrijheid om deze volledig naar eigen smaak in te richten. De eettafel grenst direct aan de keuken, wat zorgt voor een fijne verbinding tussen koken, eten en samenzijn.

De keuken is strak en modern uitgevoerd en van alle gemakken voorzien. Met een kook- en spoeleiland, hoogwaardige inbouwapparatuur en zelfs een wijnkoeler ontbreekt het hier aan niets. Een plek waar koken en genieten hand in hand gaan. Op deze verdieping bevindt zich tevens een extra slaapkamer, ideaal als kinder-, werk- of hobbykamer.

Via de trap bereik je de tweede verdieping, waar je uitkomt op een ruime overloop met directe toegang tot het dakterras. Dit terras is zonder twijfel een absolute eyecatcher: een heerlijke plek om een fijne lounge te realiseren waar je in alle rust kunt ontspannen en genieten van een vrij uitzicht over Schelluinen en de omliggende polder.

Vanaf de overloop bereik je ook de ruime master bedroom. Deze lichte kamer biedt moeiteloos plaats voor een groot bed en een royale kastenwand, waardoor opbergruimte geen enkel probleem is. Dankzij de aanwezige airconditioning is het hier ook tijdens warme zomerdagen aangenaam verblijven. Daarnaast vind je op deze verdieping twee maatwerk inbouwkasten en een kast waarin de wasmachine en droger weggewerkt zijn. Erg praktisch in gebruik en fijn voor het oog

De luxe badkamer is volledig gemoderniseerd en straalt comfort uit. Voorzien van een inloopdouche met infraroodlampen, een toilet en een ruime wastafel is dit een fijne plek om de dag ontspannen te beginnen of af te sluiten.
Tot slot beschikt het appartement over een gezamenlijke berging op de begane grond van het complex, ideaal voor extra opslag en het stallen van fietsen.

Highlights
* Bouwjaar: 2021
* Woonoppervlakte: ca. 93 m²
* Energielabel A+ – toekomstgericht en energiezuinig wonen
* Zonnepanelen en warmtepomp aanwezig
* Appartement met twee verdiepingen
* Royaal dakterras met vrij uitzicht over Schelluinen en de polder
* Moderne open woonkeuken met kook- en spoeleiland
* Voorzien van hoogwaardige inbouwapparatuur én wijnkoeler
* Twee slaapkamers, flexibel in te richten
* Luxe badkamer met inloopdouche en infraroodlampen
* Airconditioning in de master bedroom
* Maatwerk inbouwkasten in de slaapkamer
* Inbouwkast voor de wasmachine en droger
* Voorzien van screens en luiken voor de ramen
* Gezamenlijke berging voor fietsen en opslag
* Openbaar parkeren in de directe omgeving
* Gelegen in het centrum van Schelluinen
* Dichtbij Gorinchem
* Goed onderhouden en instapklaar

Wonen in het centrum van Schelluinen betekent genieten van rust, ruimte en een dorpse sfeer, met alle dagelijkse voorzieningen binnen handbereik. Schelluinen is een kleinschalig en gemoedelijk dorp, omringd door groen en polderlandschap, waar je prettig en ontspannen woont.
Tegelijkertijd ligt Gorinchem op korte afstand. Binnen enkele minuten sta je in het bruisende stadscentrum met een uitgebreid aanbod aan winkels, horeca, scholen en culturele voorzieningen. Ook de uitvalswegen richting de A15 en A27 zijn snel bereikbaar, wat deze locatie ideaal maakt voor zowel forenzen als mensen die rust willen combineren met stedelijk gemak.

Kortom: een jong, modern en instapklaar appartement, een uniek dakterras en een prachtig vrij uitzicht: klaar voor de toekomst en direct te betrekken.

Lees de volledige omschrijving

Kenmerken

Overdracht

Status Verkocht onder voorbehoud
Aanvaarding In overleg

Bouwvorm

Soort object Appartement
Bouwjaar 2021
Bouwvorm Bestaande bouw
Ligging In het centrum, vrij uitzicht

Indeling

Woonoppervlakte 93 m²
Inhoud 329 m³
Aantal kamers 3
Aantal slaapkamers 2
Aantal woonlagen 2

Energie

Energieklasse A+
Energie einddatum zaterdag 19 april 2031
Isolatie Volledig geïsoleerd
Verwarming Vloerverwarming gedeeltelijk, warmtepomp

Buitenruimte

Tuin Geen tuin
Achterom Nee

Bergruimte

Garage Geen garage

Parkeergelegenheid

Voorzieningen Openbaar parkeren

Dak

Dak Zadeldak

Overig

Permanente bewoning Ja
Onderhoud binnen Goed tot uitstekend
Onderhoud buiten Goed tot uitstekend
Huidig gebruik Woonruimte
Huidige bestemming Woonruimte

Voorzieningen

Voorzieningen Mechanische ventilatie, tv kabel, airconditioning, zonnepanelen

Kadastrale gegevens

Gemeente Schelluinen
Sectie B
Perceelnummer 2810
Eigendomssituatie Volle eigendom
v1-20250318-8G0A1608E
Interesse in deze woning?

Leo helpt u graag

Gratis waardebepaling

U denkt erover uw woning te verkopen en wilt graag weten wat het waard is? We komen graag bij u langs en bepalen de waarde van uw woning.

Gratis waardebepaling

Deel deze woning

Uw persoonlijke adviseur in de regio

Maak kennis met de HypotheekWeter

Ligging

Afspraak maken voor een bezichtiging? Neem contact met ons op

Vergelijkbare woningen