0183 - 635011 0183 - 635011 Stel een vraag Stel een vraag
Verkocht onder voorbehoud

Bohanstraat 7

SCHELLUINEN
€ 385.000,- k.k.
  • Woonoppervlakte 105 m2
  • Perceeloppervlakte 215 m2
  • Aantal slaapkamers 4
  • Bouwjaar 1968

Omschrijving

Ben jij op zoek naar een woning waar je jouw eigen draai aan kunt geven? Dan is Bohanstraat 7 in Schelluinen precies wat je zoekt! Deze ruime hoekwoning met een woonoppervlakte van ca. 105 m² biedt volop mogelijkheden voor wie niet bang is om de handen uit de mouwen te steken. Een ideale kans om jouw droomhuis te realiseren op een fijne en rustige locatie.

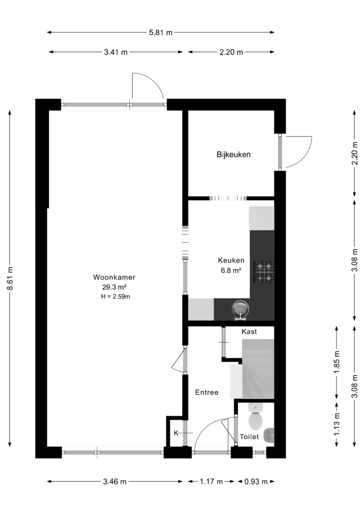
Bij binnenkomst valt direct de lichte en ruime opzet van de begane grond op. Dankzij de grote raampartijen aan beide zijden geniet de woonkamer van een prettige hoeveelheid daglicht. De royale leefruimte biedt alle mogelijkheden voor het creëren van een comfortabele zithoek en een gezellige eethoek.

De halfopen keuken sluit aan op de woonkamer en is functioneel ingericht. Hoewel de keuken wat gedateerd is, is de inbouwapparatuur vernieuwd in 2015 en nog in goede staat. Vanuit de keuken bereik je de praktische bijkeuken, die tevens toegang biedt tot de achtertuin.

De achtertuin is een echte eyecatcher van deze woning. De combinatie van groen en bestrating zorgt voor een fijne balans tussen sfeer en gebruiksgemak. Hier vind je volop ruimte voor een loungeplek of eettafel om heerlijk buiten te genieten. Achterin de tuin staat een stenen berging, ideaal voor fietsen en tuinspullen, en dankzij de achterom is de tuin ook praktisch in gebruik. Parkeren doe je eenvoudig op de eigen oprit naast de woning.

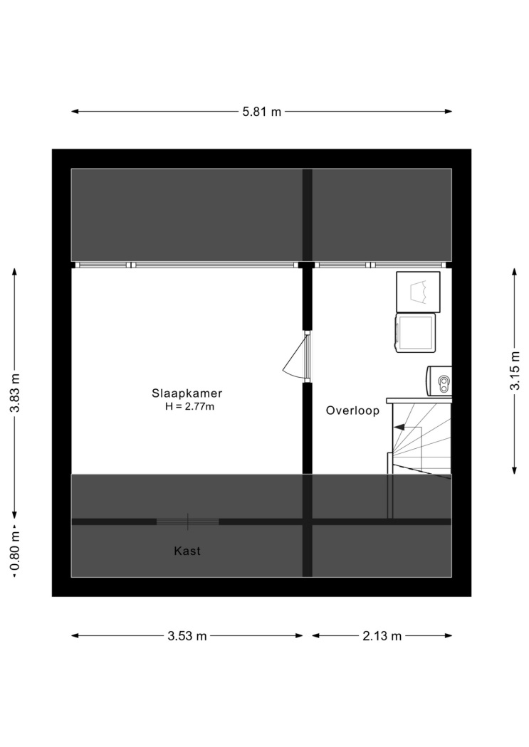
Op de eerste verdieping bevinden zich drie slaapkamers van goed formaat. De grote ramen zorgen niet alleen voor veel lichtinval, maar ook voor natuurlijke ventilatie. De badkamer is gedateerd, maar compleet ingericht met een douche en wastafelmeubel.

De tweede verdieping biedt nog eens extra ruimte met een ruime overloop voorzien van aansluitingen voor wasmachine en droger. Daarnaast vind je hier een vierde slaapkamer, die ook perfect kan dienen als werk- of hobbyruimte. Ook aan bergruimte is op deze verdieping geen gebrek.

De woning is gelegen in een rustige straat waar je geniet van een vrij gevoel en een prettige woonomgeving.

Highlights:
* Hoekwoning met veel potentie
* Woonoppervlakte ca. 105 m²
* Lichte en ruime woonkamer met grote raampartijen
* Halfopen keuken met vernieuwde inbouwapparatuur (2015)
* Praktische bijkeuken met toegang tot de tuin
* Royale achtertuin met groen, terras en achterom
* Stenen berging voor fietsen en opslag
* Parkeren op eigen oprit
* 4 slaapkamers
* Veel bergruimte op de tweede verdieping
* Gelegen in een rustige en vrije woonomgeving

Wonen in Schelluinen
Schelluinen is een charmant en rustig dorp, gelegen in de gemeente Molenlanden. Hier woon je in een groene en gemoedelijke omgeving, terwijl je toch profiteert van de nabijheid van grotere plaatsen zoals Gorinchem. Voor dagelijkse voorzieningen, scholen en sportfaciliteiten kun je terecht in de directe omgeving. Daarnaast zijn uitvalswegen zoals de A15 en A27 snel bereikbaar, wat zorgt voor een uitstekende verbinding richting steden als Rotterdam, Utrecht en Breda.

Het dorp staat bekend om zijn landelijke karakter en prettige leefomgeving, ideaal voor wie rustig wil wonen met alle gemakken binnen handbereik.

Kortom: een ruime hoekwoning met volop mogelijkheden, een fijne tuin en een rustige ligging: dé kans om jouw ideale thuis te creëren!

Lees de volledige omschrijving

Kenmerken

Overdracht

Status Verkocht onder voorbehoud
Aanvaarding In overleg

Bouwvorm

Soort object Woonhuis
Soort woning Eengezinswoning
Type woning Hoekwoning
Bouwjaar 1968
Bouwvorm Bestaande bouw
Ligging Aan een rustige weg, in een woonwijk, open ligging

Indeling

Woonoppervlakte 105 m²
Perceeloppervlakte 215 m²
Inhoud 376 m³
Aantal kamers 5
Aantal slaapkamers 4
Aantal woonlagen 3

Energie

Energieklasse D
Energie einddatum dinsdag 1 oktober 2030
Isolatie Dakisolatie, dubbel glas
Warmwater Cv ketel
Verwarming Cv ketel

Buitenruimte

Tuin Achtertuin, voortuin
Hoofdtuin Achtertuin
Oppervlakte hoofdtuin 50 m²
Ligging hoofdtuin Noord
Achterom Ja
Kwaliteit tuin Normaal

Bergruimte

Garage Geen garage
Schuur / Berging Vrijstaand steen

Parkeergelegenheid

Voorzieningen Openbaar parkeren, op eigen terrein

Dak

Dak Zadeldak

Overig

Permanente bewoning Ja
Onderhoud binnen Redelijk
Onderhoud buiten Redelijk tot goed
Huidig gebruik Woonruimte
Huidige bestemming Woonruimte

Voorzieningen

Voorzieningen Tv kabel, zonnepanelen

Kadastrale gegevens

Gemeente Schelluinen
Sectie B
Perceelnummer 1650
Oppervlakte 215 m²
Eigendomssituatie Volle eigendom
v1-20250318-8G0A1573E
Interesse in deze woning?

Robert helpt u graag

Gratis waardebepaling

U denkt erover uw woning te verkopen en wilt graag weten wat het waard is? We komen graag bij u langs en bepalen de waarde van uw woning.

Gratis waardebepaling

Deel deze woning

Uw persoonlijke adviseur in de regio

Maak kennis met de HypotheekWeter

Ligging

Afspraak maken voor een bezichtiging? Neem contact met ons op

Vergelijkbare woningen