0183 - 635011 0183 - 635011 Stel een vraag Stel een vraag
Beschikbaar

Wethouder de Joodestraat 39

WOUDRICHEM
€ 399.000,- k.k.
  • Woonoppervlakte 132 m2
  • Perceeloppervlakte 139 m2
  • Aantal slaapkamers 5
  • Bouwjaar 1978

Omschrijving

Heerlijk ruim gezinshuis op een rustige, groene plek!

Wat een fijne plek om thuis te komen! Aan de voorzijde kijk je uit over een brede groenstrook – autovrij en rustig. Achter het huis ligt een parkeerplein, dus altijd plek voor de auto.

Binnen is het verrassend ruim: een sfeervolle tussenwoning met vijf slaapkamers, waaronder een royale ‘master bedroom’ op zolder. De keuken en badkamer zijn modern, beneden ligt een mooie tegelvloer en boven vind je hardhouten kozijnen met draai/kiepramen. De zolder is een echte bonus met een brede dakkapel, kunststof kozijnen én handige kastenwanden. Alles keurig afgewerkt en instapklaar!

En dan de ligging: kindvriendelijk, groen en alles dichtbij. Binnen vijf minuten wandel je naar het winkelcentrum voor verse croissantjes of dat vergeten pak melk. Ook de vesting, het water en de natuur zijn vlakbij – ideaal voor een wandeling, fietstocht of boottochtje.

Kortom: ruimte, comfort en de gezelligheid van Woudrichem – wat wil je nog meer?

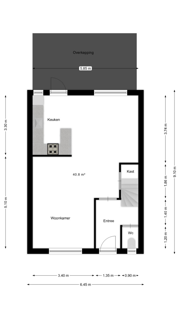
INDELING BEGANE GROND

Welkom!
Via het autovrije voetpad loop je langs het groen richting de voordeur. In de zonnige voortuin met kunstgras en trampoline spelen de kinderen lekker veilig voor het huis. Onder de luifel stap je binnen in de hal – met toegang tot de lichte woonkamer, het moderne toilet, de meterkast en de trap naar boven.

Wonen & Koken
Wat een fijne plek om te leven! De lichte Z-vormige woonkamer (ca. 41 m²) heeft twee grote raampartijen waardoor de zon royaal binnenvalt. Voorin een gezellig zitgedeelte waar je lekker neerploft na een lange dag, achterin ruimte voor een royale eettafel – dicht bij de keuken, wel zo handig. En die trapkast? Perfect voor alles wat je liever niet in het zicht hebt (lees: kinderspeelgoed of de voorraad chips).

De luxe keuken in U-opstelling is een echte eyecatcher. Strakke houtlook kastfronten met zwarte grepen, een natuurstenen werkblad en natuurlijk voorzien van alle gemakken: inductiekookplaat, rvs-afzuigkap, combi-oven, magnetron, koelkast, vaatwasser, quooker én – voor de levensgenieters – een wijnklimaatkast.
Via de deur loop je zó de tuin in, richting de veranda: ideaal voor een kop koffie in de ochtendzon of een borrel aan het eind van de dag.

Veranda
Zeg nou zelf: dit is pas lekker buiten zitten!
Over de volle breedte van de achtergevel vind je een heerlijke veranda van ca. 19 m² – met daklicht, zodat het altijd licht en luchtig blijft. Dankzij de glazen schuifpanelen kun je hem helemaal afsluiten: open in de zomer voor dat buitengevoel, dicht in de winter met een dekentje en een glas wijn (of twee).
Het is een echte verlenging van de woonkamer – een extra leefruimte waar je het hele jaar door geniet van ontbijt in de ochtendzon, knusse borrels met vrienden of gewoon even niks.

INDELING EERSTE VERDIEPING

Vier slaapkamers – ja, vier! – allemaal keurig afgewerkt en lekker licht dankzij de draai/kiepramen (twee aan de voorzijde, twee aan de achterzijde). De laminaatvloeren lopen mooi door en in de meeste kamers vind je rolluiken én airconditioning – heerlijk koel slapen in de zomer en uitslapen zonder het ochtendzonnetje dat je te vroeg wakker kust.

Opfrissen
De badkamer is fris en compleet: met een inloopdouche met douchedeur voor de snelle start van de dag en een ligbad voor de relaxte avond. Verder een modern wastafelmeubel met spiegel en extra bergruimte, een zwevend toilet en een designradiator om je handdoek lekker warm te houden. Alles bij elkaar: praktisch, comfortabel en gewoon lekker fris!

INDELING TWEEDE VERDIEPING

Via de vaste trap kom je op de voorzolder, waar alles slim is ingedeeld: een praktische washoek met aansluitingen voor wasmachine en droger, de cv-opstelling en een royale schuifwandkast voor al die spullen die je liever uit het zicht houdt.

Slaapkamer 5 – de verrassing boven!
En dan… de royale slaapkamer – of beter gezegd: de master bedroom. Dankzij de woningbrede dakkapel met kunststof kozijnen voelt de ruimte heerlijk licht en ruim aan. Hier past met gemak een groot bed én nog wat extra’s. Verder is er volop bergruimte, een grote schuifwandkast en zelfs een Velux-dakraam voor extra daglicht (of sterren kijken voor het slapengaan).

Tuin & Buitenruimte

Buiten leven wordt hier wel héél makkelijk! De onderhoudsvriendelijke achtertuin, gelegen op het noordwesten, is slim ingedeeld met tegels en een stukje kunstgras – altijd groen, nooit maaien. Direct aan de achtergevel vind je de heerlijke veranda, waar je het hele jaar door kunt genieten van een koffie in de ochtendzon of een gezellige borrel in de avond.

Achterin de tuin staat een ruime berging (ca. 10 m²) met elektra – ideaal voor fietsen, klusspullen of dat ene hobbyproject dat nét wat ruimte vraagt. De tuin is volledig omheind met privacy-schuttingen en heeft een achterom die direct uitkomt op het parkeerplein. Boodschappen tillen over een modderig pad? Dat is dus verleden tijd!
Ook de voortuin is onderhoudsvriendelijk met kunstgras én een trampoline – gegarandeerd kinder succes zonder dat je zelf hoeft te harken.

Kortom: een tuin met weinig werk, veel plezier en volop buitenleven!

Highlights
•Bouwjaar ca. 1978
•Woonoppervlakte: ca. 132 m²
•Perceel: 139 m²
•Energielabel C – comfortabel én betaalbaar wonen
•Ruime woonkamer met halfopen keuken (samen ca. 41 m²)
•Woningbrede veranda van ca. 19 m² – binnen wordt buiten!
•Maar liefst 5 slaapkamers
•Moderne badkamer met ligbad, inloopdouche, toilet en strak wastafelmeubel
•Kunststof dakkapel op de tweede verdieping
•Onderhoudsvriendelijke achtertuin met veel privacy
•Stenen berging (ca. 10 m²) met elektra
•Autovrije ligging aan een brede groenstrook – ideaal voor gezinnen
•Airconditioning en rolluiken voor extra comfort

Lees de volledige omschrijving

Kenmerken

Overdracht

Status Beschikbaar
Aanvaarding In overleg

Bouwvorm

Soort object Woonhuis
Soort woning Eengezinswoning
Type woning Tussenwoning
Bouwjaar 1978
Bouwvorm Bestaande bouw
Ligging In een woonwijk, beschutte ligging

Indeling

Woonoppervlakte 132 m²
Perceeloppervlakte 139 m²
Inhoud 460 m³
Aantal kamers 6
Aantal slaapkamers 5
Aantal woonlagen 3

Energie

Energieklasse C
Energie einddatum zaterdag 24 maart 2029
Isolatie Muurisolatie, dubbel glas
Verwarming Cv ketel

Buitenruimte

Tuin Achtertuin, voortuin
Hoofdtuin Achtertuin
Oppervlakte hoofdtuin 59 m²
Ligging hoofdtuin Noord-west
Achterom Ja
Kwaliteit tuin Verzorgd

Bergruimte

Garage Geen garage
Schuur / Berging Vrijstaand steen

Parkeergelegenheid

Voorzieningen Openbaar parkeren

Dak

Dak Zadeldak

Overig

Permanente bewoning Ja
Onderhoud binnen Goed tot uitstekend
Onderhoud buiten Goed tot uitstekend
Huidig gebruik Woonruimte
Huidige bestemming Woonruimte

Voorzieningen

Voorzieningen Mechanische ventilatie, rolluiken, tv kabel, airconditioning, natuurlijke ventilatie

Kadastrale gegevens

Gemeente Woudrichem
Sectie D
Perceelnummer 916
Oppervlakte 139 m²
Eigendomssituatie Volle eigendom
PLR55485
Interesse in deze woning?

Dionne helpt u graag

Gratis waardebepaling

U denkt erover uw woning te verkopen en wilt graag weten wat het waard is? We komen graag bij u langs en bepalen de waarde van uw woning.

Gratis waardebepaling

Deel deze woning

Uw persoonlijke adviseur in de regio

Maak kennis met de HypotheekWeter

Ligging

Afspraak maken voor een bezichtiging? Neem contact met ons op

Vergelijkbare woningen