0183 - 635011 0183 - 635011 Stel een vraag Stel een vraag
Verkocht onder voorbehoud

Drossaard 5

WOUDRICHEM
€ 475.000,- k.k.
  • Woonoppervlakte 110 m2
  • Perceeloppervlakte 216 m2
  • Aantal slaapkamers 4
  • Bouwjaar 1987

Omschrijving

Een geschakelde tweekapper met garage: rustig wonen, veel ruimte en volop potentie—met een diepe tuin als bonus.

Deze geschakelde twee-onder-een-kapwoning met aangebouwde garage en oprit ligt heerlijk rustig aan de rand van Woudrichem. Een fijne, kindvriendelijke buurt waar je je snel thuis voelt: gezellig, veilig en met alle dagelijkse voorzieningen dichtbij. Winkels, scholen, sportvoorzieningen en een speeltuintje zijn binnen handbereik. Zin om te tennissen of te voetballen? De vereniging bereik je gewoon lopend.

De woning is gebouwd in 1987 en staat op een perceel van 216 m². Dankzij de drie woonlagen biedt dit huis verrassend veel leefruimte: een lichte woonkamer met keuken, vier slaapkamers en een garage met extra bergzolder.

Een extra pluspunt is de mogelijkheid om deze bergzolder bij het woongedeelte te betrekken. Met het toevoegen van daglicht, bijvoorbeeld via een dakraam of dakkapel, kan hier relatief eenvoudig een volwaardige extra kamer worden gerealiseerd—ideaal als thuiswerkplek, hobbyruimte of logeerkamer.

Op de eerste verdieping zorgen dakkapellen aan zowel de voor- als achterzijde voor extra licht, ruimte en comfort.

Achter het huis ligt een lekker diepe tuin met veel potentie.

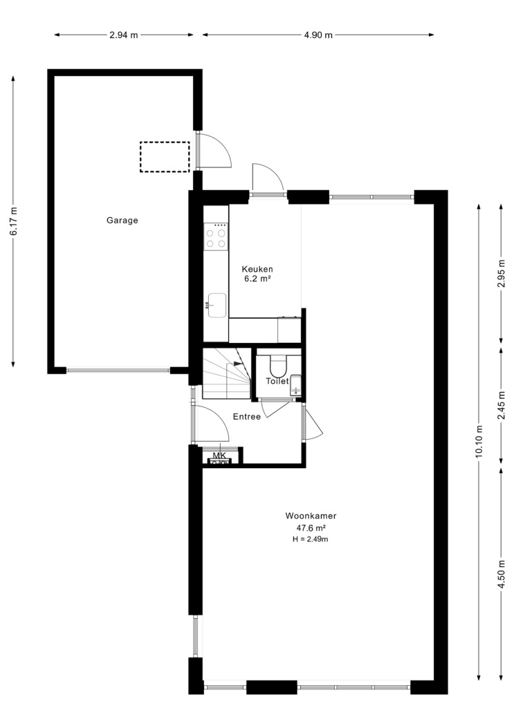
INDELING BEGANE GROND

Welkom!
Via de zij-entree kom je in de hal met toegang tot de woonkamer, het toilet, de meterkast en de trap naar de verdieping.

Wonen & koken
De royale woonkamer (ca. 48 m²) met houten vloerdelen is heerlijk licht en praktisch ingedeeld. Aan de voorzijde is een gezellig zitgedeelte gecreëerd, terwijl je aan de achterzijde alle ruimte hebt voor een ruime eettafel met fijn zicht op de tuin.

De keuken in hoekopstelling is voorzien van diverse inbouwapparatuur, waaronder een elektrische kookplaat, afzuigkap, combi-oven en een koel-/vriescombinatie. Vanuit de keuken geeft een deur direct toegang tot de tuin, waardoor binnen en buiten mooi in elkaar overlopen.

Garage
De garage (ca. 18 m²) beschikt over een deur naar de tuin en een vlizotrap naar de zolderberging. Een extra pluspunt is de mogelijkheid om deze zolderberging om te vormen tot een prettige extra ruimte. Met het toevoegen van daglicht, bijvoorbeeld via een dakraam of dakkapel, kan hier bijvoorbeeld een fijne werkplek of hobbykamer worden gerealiseerd.

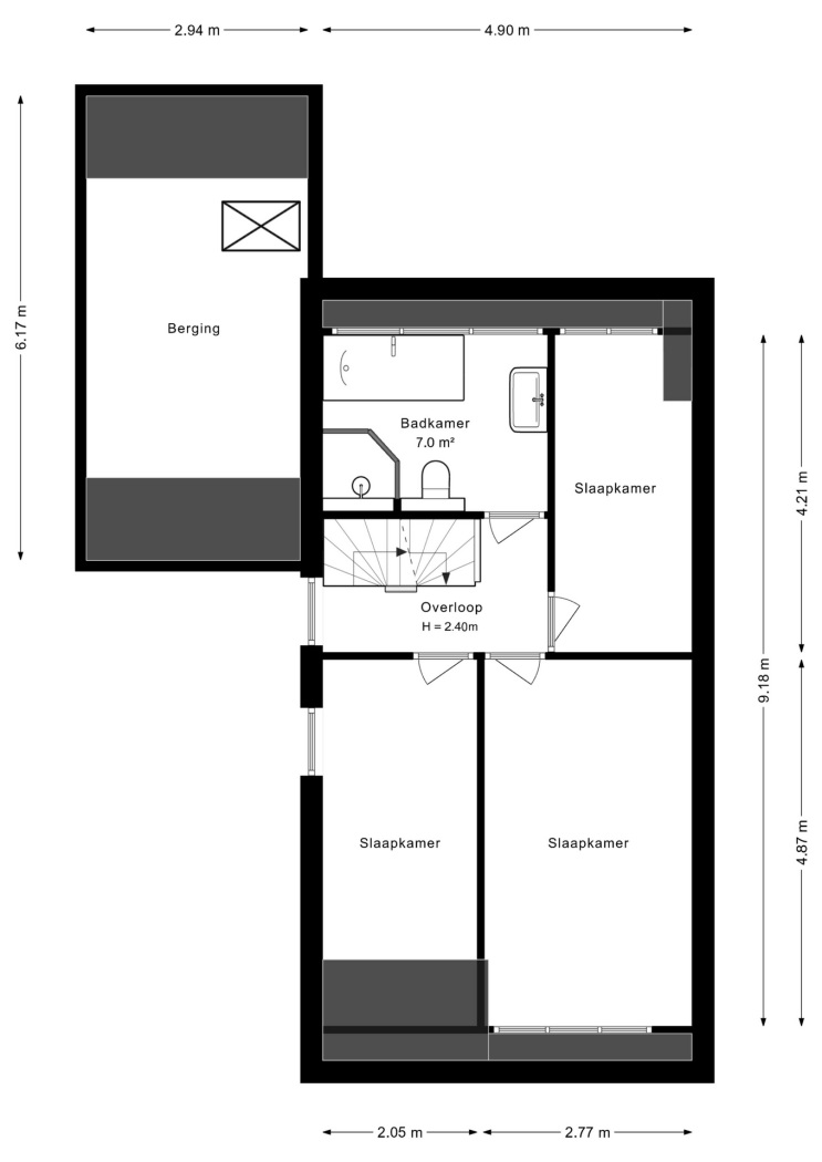
INDELING EERSTE VERDIEPING

Slaapkamers
Op de eerste verdieping vind je drie slaapkamers: twee aan de voorzijde en één aan de achterzijde. De slaapkamer aan de achterzijde is uitgerust met een praktische driedeurs schuifwandkast.
Dankzij dakkapellen aan zowel de voor- als achterzijde—waarbij de achterste dakkapel over de volledige breedte van de woning loopt—ontstaat er extra ruimte én profiteer je van een prettige hoeveelheid daglicht.

Badkamer
De badkamer aan de achterzijde, eveneens met dakkapel, is uitgevoerd met een ligbad, wastafel met spiegelkast, een zwevend toilet en een aparte kwartronde douchecabine.

INDELING TWEEDE VERDIEPING

Op de tweede verdieping vind je een fijne vierde kamer, perfect als slaapkamer, thuiswerkplek, hobbyruimte of compacte home gym. Het dakraam zorgt voor prettig daglicht. Daarnaast is er ruimte voor de wasmachine en de opstelplaats van de cv-ketel. Extra handig: aan beide zijden zijn knieschotten met schuifkastjes voor volop bergruimte.

Tuin – buitenruimte
De ruime achtertuin op het (zuid)oosten biedt volop mogelijkheden om heerlijk buiten te leven. Direct achter de woning ligt een terras, bereikbaar vanuit zowel de keuken als de garage—ideaal voor een kop koffie in de ochtendzon. De tuin is groen en biedt veel potentie: met een looppad van sierbestrating en een tweede, beschut terrasje waar je fijn privé kunt zitten. Dankzij de schuttingen rondom geniet je van veel privacy.

Highlights
• Bouwjaar: 1987
• Woonoppervlakte: ca. 110 m²
• Perceeloppervlakte: 216 m²
• Energielabel: C
• Goede isolatie en dubbele beglazing
• Aangebouwde garage 18 m2 met vlizotrap naar ruime bergzolder
• Parkeren op eigen terrein (oprit)
• Fijne lichte woonkamer met halfopen keuken
• 1e verdieping: 3 slaapkamers
• Badkamer met ligbad, douchecabine, wastafel en 2e toilet
• 2e verdieping: 4e slaapkamer
• Lekkere diepe tuin met volop mogelijkheden
• Voorzieningen (winkels, scholen, sport) dichtbij
• Rustige, autoluwe straat aan de rand van het dorp
• Bij de verkoop zal er een niet-zelfbewoningsclausule worden opgenomen

LIGGING

Fijn wonen in Woudrichem
Aan de Drossaard 5 woon je heerlijk rustig aan de rand van het dorp, met sport en spel letterlijk voor de deur: tegenover de tennisbaan en het voetbalveld, en een speeltuin om de hoek. Supermarkten en winkels (o.a. Lidl, Action en Trekpleister) liggen dichtbij, net als de basisschool en kinderopvang. Even de deur uit voor een boodschap of een vers visje van de markt? Dat kan gewoon.

Leuk weetje – Drossaard
De straatnaam verwijst naar vroeger: een drossaard was een hoge lokale bestuurder, vergelijkbaar met een schout of baljuw. Hij hield toezicht op bestuur en openbare orde en had vaak ook rechterlijke taken.

Woudrichem (Woerkum)
De vesting van Woudrichem voelt als een mini-stadje uit een ansichtkaart: eeuwenoude stadsmuren, een gezellige haven en knusse straatjes vol fijne doorkijkjes. Hier wandel of fiets je zó naartoe, pal bij het drierivierenpunt waar Waal, Maas en Merwede samenkomen. Zin in een uitstapje? Met het pontje sta je in no-time in Gorinchem of bij Slot Loevestein. En dankzij de A27 rijd je bovendien vlot richting Utrecht, Breda of ’s-Hertogenbosch.

Lees de volledige omschrijving

Kenmerken

Overdracht

Status Verkocht onder voorbehoud
Aanvaarding In overleg

Bouwvorm

Soort object Woonhuis
Soort woning Eengezinswoning
Type woning Geschakelde twee onder één kapwoning
Bouwjaar 1987
Bouwvorm Bestaande bouw
Ligging Aan een rustige weg, in een woonwijk

Indeling

Woonoppervlakte 110 m²
Perceeloppervlakte 216 m²
Inhoud 518 m³
Aantal kamers 5
Aantal slaapkamers 4
Aantal woonlagen 3

Energie

Energieklasse C
Energie einddatum zaterdag 1 december 2035
Isolatie Dakisolatie, muurisolatie, vloerisolatie, dubbel glas
Warmwater Cv ketel
Verwarming Cv ketel

Buitenruimte

Tuin Achtertuin, voortuin
Hoofdtuin Achtertuin
Oppervlakte hoofdtuin 80 m²
Ligging hoofdtuin Zuid-oost
Achterom Nee
Kwaliteit tuin Normaal

Bergruimte

Garage Aangebouwd steen
Voorzieningen Elektra, vliering

Parkeergelegenheid

Voorzieningen Op eigen terrein

Dak

Dak Zadeldak

Overig

Permanente bewoning Ja
Onderhoud binnen Goed
Onderhoud buiten Goed
Huidig gebruik Woonruimte
Huidige bestemming Woonruimte

Voorzieningen

Voorzieningen Mechanische ventilatie, tv kabel, dakraam, natuurlijke ventilatie

Kadastrale gegevens

Gemeente Woudrichem
Sectie D
Perceelnummer 1491
Oppervlakte 216 m²
Eigendomssituatie Volle eigendom
PLR55485
Interesse in deze woning?

Dionne helpt u graag

Gratis waardebepaling

U denkt erover uw woning te verkopen en wilt graag weten wat het waard is? We komen graag bij u langs en bepalen de waarde van uw woning.

Gratis waardebepaling

Deel deze woning

Uw persoonlijke adviseur in de regio

Maak kennis met de HypotheekWeter

Ligging

Afspraak maken voor een bezichtiging? Neem contact met ons op

Vergelijkbare woningen