0183 - 635011 0183 - 635011 Stel een vraag Stel een vraag
Verkocht

Uitermeer 36

GORINCHEM
€ 650.000,- k.k.
  • Woonoppervlakte 140 m2
  • Perceeloppervlakte 216 m2
  • Aantal slaapkamers 4
  • Bouwjaar 2017

Omschrijving

Ruimte, licht en woongenot in Hoog Dalem

Veel ruimte, licht en een fijne ligging in Hoog Dalem! Deze prachtige hoekwoning biedt een moderne uitstraling, praktische indeling en een complete afwerking. Met vier slaapkamers, een zonnige tuin op het zuiden en een woonoppervlakte van 140 m² is dit een huis waar u direct kunt intrekken en volop woongenot ervaart.

Hoogtepunten
Hoekwoning uit 2017
Woonoppervlakte: 140 m²
Ruime woonkamer van 39,4 m² met schuifpui over de volledige breedte
Volledig geïsoleerd & HR++ glas
Moderne keuken
Airconditioning aanwezig op de eerste verdieping en tweede verdieping
9 zonnepanelen + zonneboiler (150 L)
Gezellige tuin op het zuiden
Garage met directe toegang vanuit de tuin
Vloerverwarming door de gehele woning

Indeling — begane grond
U komt binnen in de hal met toilet, trapopgang en de deur naar de woonkamer. De ruime woonkamer van 39,4 m² voelt uitnodigend en licht dankzij de grote schuifpui over de volledige breedte, die direct toegang geeft tot de tuin. De moderne keuken ligt aan de voorzijde en heeft een verbindend keukenblok naar de woonkamer, waardoor koken hier gezellig wordt en u gemakkelijk contact heeft met uw gezelschap.

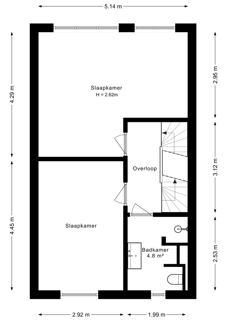
Indeling — eerste verdieping
Op de eerste verdieping vindt u twee slaapkamers, waarvan beide van groot formaat. Daarnaast is er een moderne badkamer die praktisch en stijlvol is ingericht met een dubbele wastafel, inloopdouche en tweede toilet. Vloerverwarming zorgt hier voor een aangename temperatuur, perfect afgestemd per kamer. Ook is op deze verdieping airconditioning aanwezig voor extra wooncomfort.

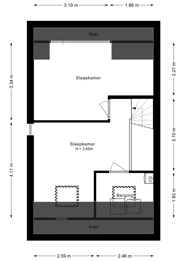
Indeling — tweede verdieping
De tweede verdieping is verrassend licht dankzij de dakkapel aan de achterzijde. Hier bevinden zich twee extra slaapkamers die flexibel in te delen zijn als slaapkamer, werk- of hobbyruimte. Op deze verdieping vindt u tevens een apart washok met wasmachine-aansluiting. Ook is er airconditioning aanwezig in één ruimte, zodat het hier heerlijk koel blijft. Daarnaast is er voldoende opbergruimte.

Tuin & buitenruimte
De tuin ligt op het zonnige zuiden en is gezellig en praktisch ingedeeld. Achterin staat een berging/tuinhuisje, ideaal voor fietsen of tuingereedschap. Vanuit de tuin is er directe toegang tot de garage, die ruimte biedt voor één auto en extra opslag.

Ligging — Hoog Dalem
Hoog Dalem is een jonge, kindvriendelijke wijk met alle dagelijkse voorzieningen dichtbij: een modern winkelcentrum, scholen, kinderopvang en sportvoorzieningen. Voor kinderen is de buurt ideaal met veel speelplekken en veilige straten. Binnen tien minuten fietsen staat u in de historische binnenstad van Gorinchem en met de auto bereikt u snel de A15 en A27. Hier woon je op een plek waar stad en land elkaar ontmoeten.

Lees de volledige omschrijving

Kenmerken

Overdracht

Status Verkocht
Aanvaarding In overleg

Bouwvorm

Soort object Woonhuis
Soort woning Eengezinswoning
Type woning Hoekwoning
Bouwjaar 2017
Bouwvorm Bestaande bouw
Ligging Aan een rustige weg, in een woonwijk

Indeling

Woonoppervlakte 140 m²
Perceeloppervlakte 216 m²
Inhoud 568 m³
Aantal kamers 5
Aantal slaapkamers 4
Aantal woonlagen 3

Energie

Energieklasse A
Energie einddatum vrijdag 5 maart 2027
Isolatie Volledig geïsoleerd
Warmwater Cv ketel, zonneboiler
Verwarming Cv ketel

Buitenruimte

Tuin Achtertuin, zijtuin
Hoofdtuin Achtertuin
Oppervlakte hoofdtuin 89 m²
Ligging hoofdtuin Zuid-oost
Achterom Nee
Kwaliteit tuin Fraai aangelegd

Bergruimte

Garage Aangebouwd steen
Schuur / Berging Vrijstaand hout
Voorzieningen Elektra

Parkeergelegenheid

Voorzieningen Openbaar parkeren, op eigen terrein

Dak

Dak Zadeldak

Overig

Permanente bewoning Ja
Onderhoud binnen Goed
Onderhoud buiten Goed
Huidig gebruik Woonruimte
Huidige bestemming Woonruimte

Voorzieningen

Voorzieningen Mechanische ventilatie, airconditioning, zonnepanelen, natuurlijke ventilatie

Kadastrale gegevens

Gemeente Gorinchem
Sectie P
Perceelnummer 2190
Oppervlakte 216 m²
Eigendomssituatie Volle eigendom
v1-20250318-8G0A1538EE
Interesse in deze woning?

Stefan helpt u graag

Gratis waardebepaling

U denkt erover uw woning te verkopen en wilt graag weten wat het waard is? We komen graag bij u langs en bepalen de waarde van uw woning.

Gratis waardebepaling

Deel deze woning

Uw persoonlijke adviseur in de regio

Maak kennis met de HypotheekWeter

Ligging

Afspraak maken voor een bezichtiging? Neem contact met ons op

Vergelijkbare woningen