0183 - 635011 0183 - 635011 Stel een vraag Stel een vraag
Beschikbaar

Rijnauwen 20

GORINCHEM
€ 1.850.000,- k.k.
  • Woonoppervlakte 312 m2
  • Perceeloppervlakte 653 m2
  • Aantal slaapkamers 5
  • Bouwjaar 2014

Omschrijving

Wonen op hoog niveau krijgt aan de Rijnauwen 20 een geheel eigen betekenis. Deze indrukwekkende villa combineert uitgesproken architectuur met luxe, ruimte en een verfijnde afwerking. Met een woonoppervlakte van maar liefst 312 m² biedt deze woning alles wat u zich kunt wensen: royale leefruimtes, een hoogwaardig afwerkingsniveau, een stijlvolle woonkeuken, comfortabele slaapkamers, een wellnessbeleving in eigen huis en een buitenruimte die naadloos aansluit op het exclusieve karakter van de woning.

Al bij aankomst maakt deze villa direct indruk. De markante kapvorm, de hoogwaardige materiaalkeuze en de verzorgde uitstraling zorgen voor een statig en eigentijds geheel. De woning heeft een onderscheidende architectuur en een krachtige uitstraling, maar voelt tegelijk warm en uitnodigend aan. De brede oprit, de nette erfafscheidingen en de fraai aangelegde voortuin vormen samen een representatief welkom dat volledig in lijn ligt met wat u binnen mag verwachten.

Eenmaal binnen wordt direct duidelijk dat hier is gekozen voor comfort, kwaliteit en beleving. De woning is met veel zorg en gevoel voor stijl ingericht, waarbij luxe materialen, rustige kleurtonen en maatwerk op fraaie wijze samenkomen. De leefruimtes zijn royaal opgezet en profiteren van een prachtige lichtinval. Grote raampartijen zorgen in meerdere vertrekken voor een open sfeer en versterken de connectie met buiten. Dit geeft de woning niet alleen een ruimtelijk gevoel, maar ook een bijzonder prettige woonbeleving.

De woonkamer is een absolute eyecatcher. Hier komen sfeer en comfort op sublieme wijze samen. De ruimte is royaal van opzet en biedt alle gelegenheid voor een grote zithoek waarin ontspannen, ontvangen en genieten centraal staan. De afwerking is stijlvol en krachtig, met warme materialen en een luxe uitstraling. De karaktervolle wandafwerking geeft de ruimte extra diepte en sfeer, terwijl de directe verbinding met de tuin ervoor zorgt dat binnen en buiten op natuurlijke wijze in elkaar overlopen. Dit is een woonkamer waarin design en leefbaarheid perfect in balans zijn.

Aansluitend bevindt zich de woonkeuken, die zonder twijfel het hart van het huis vormt. De keuken is modern, strak vormgegeven en uitgevoerd met hoogwaardige materialen en luxe inbouwapparatuur. Het royale kook- en spoeleiland biedt niet alleen veel werkruimte, maar is ook een centrale ontmoetingsplek binnen het dagelijks leven. Hier kookt u in stijl, met alle comfort binnen handbereik. De combinatie van donkere fronten, een krachtig lijnenspel en de open verbinding met het eetgedeelte geeft deze ruimte een exclusieve en bijna hotel-chique uitstraling. Het eetgedeelte is royaal en sfeervol opgezet en vormt de ideale plek voor lange diners, een uitgebreid ontbijt of gezellige avonden met familie en vrienden.

Wat deze woning extra bijzonder maakt, is de manier waarop het buitenleven volledig is geïntegreerd in het wooncomfort. Vanuit de leefruimtes is er een prachtige overgang naar de overdekte buitenruimte en de fraai aangelegde tuin. Hier is duidelijk aandacht besteed aan luxe en ontspanning. De serre en buitenruimte voelen aan als een verlengstuk van de woning en maken het mogelijk om in ieder seizoen comfortabel van buiten te genieten. De overkapping met baropstelling en glazen afsluiting geeft deze villa een extra exclusieve dimensie. Dit is een plek waar u in alle rust kunt ontspannen, gasten kunt ontvangen of juist tot in de late uurtjes kunt genieten van lange avonden in een beschutte setting.

Ook op de verdiepingen zet de woning haar hoogwaardige karakter overtuigend voort. De slaapkamers zijn stuk voor stuk ruim, sfeervol en comfortabel ingericht. De master bedroom straalt luxe en rust uit, met een warme afwerking en een indeling die helemaal past bij het niveau van de woning. Hier ervaart u dagelijks het comfort van een luxe hotelsuite, maar dan in uw eigen huis. De afwerking, de maatvoering en de sfeer zorgen samen voor een slaapkamer van uitzonderlijke kwaliteit. De kinderkamer was voorheen verdeeld in 2 kamers, dit is gemakkelijk terug te realiseren.

De badkamer brengt wellness en comfort op indrukwekkende wijze samen. Deze ruimte is royaal opgezet en luxe afgewerkt, met hoogwaardige materialen en een stijlvolle, rustige uitstraling. Het ligbad vormt hier een bijzonder fraai element en maakt van de badkamer een plek om echt tot rust te komen. De combinatie van design, ruimte en comfort zorgt voor een exclusieve spa-beleving in eigen huis.

Deze villa blinkt niet alleen uit in uitstraling, maar ook in functionaliteit. Dankzij de royale woonoppervlakte van 312 m² is er volop ruimte om de woning af te stemmen op verschillende woonwensen. Denk aan meerdere slaapkamers, werkruimte aan huis, een speel- of hobbykamer, een kleedruimte of een gastenverblijf. De woning biedt een grote mate van flexibiliteit, zonder in te leveren op sfeer of luxe. Juist die combinatie maakt dit huis zo bijzonder: een woning met allure, maar ook met een zeer praktische en comfortabele basis voor het dagelijks leven.

Highlights:
* Luxe villa met een woonoppervlakte van 312 m²
* Energielabel A+++
* 38 zonnepanelen
* Warmtepomp met 3 bronnen + extra boiler voor warm water
* Opvallende en karakteristieke architectuur
* Hoogwaardig afwerkingsniveau met luxe materialen
* Royale en sfeervolle woonkamer met veel lichtinval
* Exclusieve woonkeuken met groot kook- en spoeleiland
* Alle inbouwapparatuur in de hoofdkeuken vernieuwd in 2022
* Ruime eetkamer, ideaal voor lange diners en samenzijn
* Fraaie overgang tussen binnen en buiten
* Overdekte buitenruimte / buitenkamer met luxe uitstraling
* Overkapping van ca. 26 m²
* Overkapping voorzien van koelkast, wijkoelkast, vaatwasser, quooker, televisie, geluidsinstallatie
* Serre van ca. 19 m²
* Elektrische zonnedoeken in de tuin, separaat bedienbaar
* Sfeervol aangelegde tuin passend bij de woning
* Schilderwerk binnen en buiten gedaan in 2024
* Royale slaapkamers met veel comfort en rust
* Luxe badkamer met wellnessuitstraling en ligbad
* Veel leefruimte en flexibel in te delen vertrekken
* Een villa met uitstraling, comfort en een uniek woonniveau
* Rieten kap heeft in 2026 groot onderhoud gehad

Wonen in Gorinchem
Gorinchem is een geliefde vestingstad waar historie, levendigheid en wooncomfort op unieke wijze samenkomen. De sfeervolle binnenstad met haar monumentale panden, gezellige terrassen, boetieks en uitstekende restaurants geeft de stad een charmante en bruisende uitstraling. Tegelijkertijd biedt Gorinchem alle dagelijkse voorzieningen die u mag verwachten, zoals supermarkten, scholen, sportverenigingen en zorgvoorzieningen, allemaal binnen handbereik.

De ligging is bovendien bijzonder gunstig. Dankzij de centrale positie in Nederland en de uitstekende bereikbaarheid via de A15 en A27 zijn steden als Utrecht, Breda, Rotterdam en ’s-Hertogenbosch snel bereikbaar. Ook het openbaar vervoer is goed geregeld met een treinstation en diverse busverbindingen.

Wat Gorinchem extra aantrekkelijk maakt, is de combinatie van stads gemak en groen wonen. In en rondom de stad vindt u volop natuur, wandelroutes en recreatiemogelijkheden langs rivier de Merwede en in de omliggende polders. Zo geniet u hier dagelijks van rust en ruimte, zonder concessies te doen aan comfort en bereikbaarheid. Kortom: wonen in Gorinchem betekent wonen op een plek waar sfeer, voorzieningen en centrale ligging perfect samenkomen.

Rijnauwen 20 is een woning voor wie op zoek is naar ruimte, exclusiviteit en een afwerkingsniveau dat direct opvalt. Een villa met een onderscheidend karakter, ontworpen om indruk te maken én om iedere dag van te genieten. Hier woont u stijlvol, royaal en comfortabel, op een fijne locatie in Gorinchem.

Lees de volledige omschrijving

Kenmerken

Overdracht

Status Beschikbaar
Aanvaarding In overleg

Bouwvorm

Soort object Woonhuis
Soort woning Villa
Type woning Vrijstaande woning
Bouwjaar 2014
Bouwvorm Bestaande bouw
Ligging In een woonwijk, vrij uitzicht, open ligging

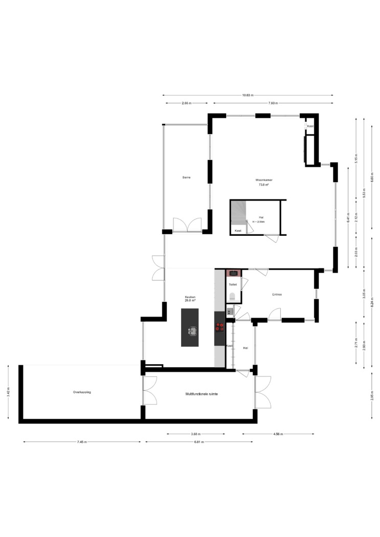
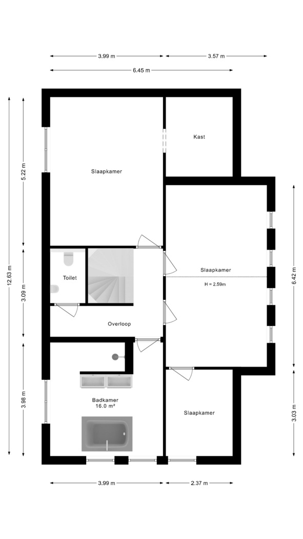
Indeling

Woonoppervlakte 312 m²
Perceeloppervlakte 653 m²
Inhoud 1190 m³
Aantal kamers 6
Aantal slaapkamers 5
Aantal woonlagen 3

Energie

Energieklasse A+++
Energie einddatum donderdag 3 april 2036
Warmwater Cv ketel
Verwarming Cv ketel

Buitenruimte

Tuin Tuin rondom
Hoofdtuin Tuin rondom
Achterom Ja
Kwaliteit tuin Fraai aangelegd

Bergruimte

Garage Aangebouwd steen
Schuur / Berging Aangebouwd steen
Voorzieningen Verwarming, elektra, water

Parkeergelegenheid

Voorzieningen Op eigen terrein

Dak

Dak Samengesteld dak

Overig

Permanente bewoning Ja
Onderhoud binnen Uitstekend
Onderhoud buiten Uitstekend
Huidig gebruik Woonruimte
Huidige bestemming Woonruimte

Voorzieningen

Voorzieningen Mechanische ventilatie, tv kabel, buitenzonwering, airconditioning, zonnepanelen

Kadastrale gegevens

Gemeente Gorinchem
Sectie P
Perceelnummer 1754
Oppervlakte 653 m²
Eigendomssituatie Volle eigendom
v1-20250318-8G0A1538EE
Interesse in deze woning?

Stefan helpt u graag

Gratis waardebepaling

U denkt erover uw woning te verkopen en wilt graag weten wat het waard is? We komen graag bij u langs en bepalen de waarde van uw woning.

Gratis waardebepaling

Deel deze woning

Uw persoonlijke adviseur in de regio

Maak kennis met de HypotheekWeter

Ligging

Afspraak maken voor een bezichtiging? Neem contact met ons op

Vergelijkbare woningen