0183 - 635011 0183 - 635011 Stel een vraag Stel een vraag
Open huis

Talud 17

GORINCHEM
€ 425.000,- k.k.
Open huis

Meld u telefonisch aan voor de kijkdag op dinsdag 12 mei 2026 van 13:15 tot 16:45 uur.

  • Woonoppervlakte 122 m2
  • Perceeloppervlakte 122 m2
  • Aantal slaapkamers 3
  • Bouwjaar 1970

Omschrijving

Open Dag | Dinsdag 12 mei | 13:15 – 16:45 uur
Ontdek deze woning tijdens ons speciale kijkmoment met persoonlijke bezichtigingen. Bel ons vooraf om je eigen tijdslot te reserveren. Wij ontvangen je graag voor een rustige, ontspannen rondleiding, helemaal afgestemd op jou.

Ben je op zoek naar een woning waar je écht je eigen stempel op kunt drukken? Dan is deze verrassend ruime tussenwoning aan het Talud 17 precies wat je zoekt. Met een woonoppervlakte van ca. 122 m², een inpandige garage, meerdere balkons en een fijne tuin biedt deze woning volop mogelijkheden om hier jouw ideale thuis te creëren.

Bij aankomst valt direct de speelse opzet van de woning op. De inpandige garage zorgt niet alleen voor praktische bergruimte maar biedt ook mogelijkheden voor hobby’s of het stallen van fietsen en een auto. Op de begane grond vind je een extra tuinkamer en berging wat zorgt voor praktisch woongemak.

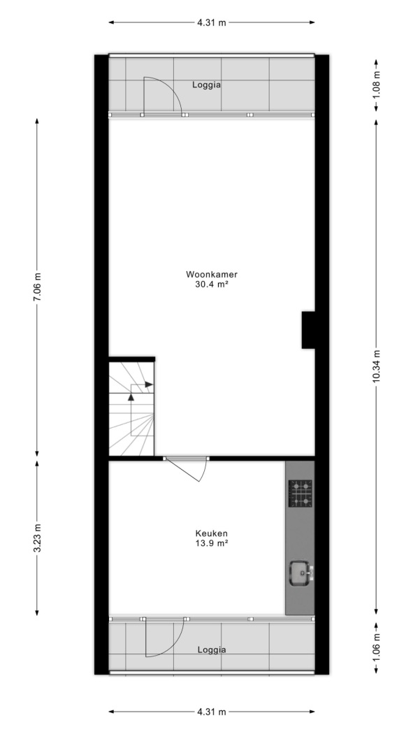
Op de eerste verdieping tref je een lichte woonkamer met grote raampartijen en een directe verbinding naar het balkon. Hier geniet je van een vrij uitzicht en een prettige lichtinval wat zorgt voor een aangename leefruimte.

De halfgesloten keuken is functioneel ingericht en staat in verbinding met de woonkamer. Hoewel de woning op onderdelen gemoderniseerd kan worden, vormt dit juist de perfecte kans om alles geheel naar eigen smaak en woonwensen aan te passen.

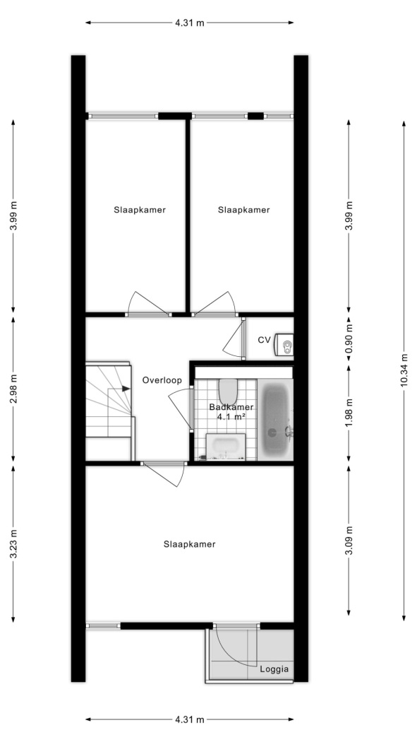
De woning beschikt over drie slaapkamers van goed formaat, stuk voor stuk licht en praktisch in te delen. Ook vanuit de slaapkamers is er toegang tot een balkon, wat zorgt voor een fijne buitenbeleving op ieder niveau. De badkamer is compact en netjes onderhouden en voorzien van een ligbad, wastafel en toilet.

Achter de woning ligt een gezellige tuin, waar je in alle rust kunt genieten van het buitenleven. Dankzij het groen en de beschutte ligging is dit een fijne plek voor een zit- of eethoek.

Kortom: een ruime woning met een goede basis, volop potentie en een speelse indeling op een rustige locatie.

Highlights:
* Woonoppervlakte ca. 122 m²
* Bouwjaar 1970
* Energielabel C
* Tussenwoning met speelse indeling
* Inpandige garage
* Lichte woonkamer met grote raampartijen
* Meerdere balkons met vrij uitzicht
* Meerdere slaapkamers van goed formaat
* Fijne, beschutte achtertuin
* Volop mogelijkheden om naar eigen smaak te moderniseren
* Gelegen in een rustige en groene woonomgeving

Wonen in Gorinchem
Gorinchem is een sfeervolle vestingstad met een rijke historie en een levendige binnenstad. Je vindt hier gezellige terrassen, winkels en restaurants, maar ook prachtige wandelroutes langs de stadswallen en de rivier. De stad ligt centraal in Nederland en heeft een uitstekende bereikbaarheid via de A15 en A27. Daarnaast zijn er goede voorzieningen, zoals scholen, sportverenigingen en openbaar vervoer, in de directe omgeving. Hier woon je rustig, maar met alle gemakken binnen handbereik.

Lees de volledige omschrijving

Kenmerken

Overdracht

Status Beschikbaar
Aanvaarding In overleg

Bouwvorm

Soort object Woonhuis
Soort woning Eengezinswoning
Type woning Tussenwoning
Bouwjaar 1970
Bouwvorm Bestaande bouw

Indeling

Woonoppervlakte 122 m²
Perceeloppervlakte 122 m²
Inhoud 444 m³
Aantal kamers 5
Aantal slaapkamers 3
Aantal woonlagen 3

Energie

Energieklasse C
Energie einddatum maandag 31 maart 2036
Isolatie Muurisolatie, dubbel glas
Warmwater Cv ketel
Verwarming Cv ketel

Buitenruimte

Tuin Achtertuin, voortuin
Achterom Nee
Kwaliteit tuin Normaal

Bergruimte

Garage Inpandig
Voorzieningen Elektra

Parkeergelegenheid

Voorzieningen Openbaar parkeren, op eigen terrein

Dak

Dak Plat dak

Overig

Permanente bewoning Ja
Onderhoud binnen Redelijk tot goed
Onderhoud buiten Redelijk tot goed
Huidig gebruik Woonruimte
Huidige bestemming Woonruimte

Voorzieningen

Voorzieningen Buitenzonwering, natuurlijke ventilatie

Kadastrale gegevens

Gemeente Gorinchem
Sectie F
Perceelnummer 2
Oppervlakte 122 m²
Eigendomssituatie Volle eigendom
v1-20250318-8G0A1573E
Interesse in deze woning?

Robert helpt u graag

Gratis waardebepaling

U denkt erover uw woning te verkopen en wilt graag weten wat het waard is? We komen graag bij u langs en bepalen de waarde van uw woning.

Gratis waardebepaling

Deel deze woning

Uw persoonlijke adviseur in de regio

Maak kennis met de HypotheekWeter

Ligging

Afspraak maken voor een bezichtiging? Neem contact met ons op

Vergelijkbare woningen