0183 - 635011 0183 - 635011 Stel een vraag Stel een vraag
Beschikbaar

Dokter Bauerstraat 88

GORINCHEM
€ 410.000,- k.k.
  • Woonoppervlakte 114 m2
  • Perceeloppervlakte 172 m2
  • Aantal slaapkamers 4
  • Bouwjaar 1975

Omschrijving

Open Dag | Vrijdag 24 april | 13:00 – 17:00 uur
Ontdek deze woning tijdens een speciaal kijkmoment met persoonlijke bezichtigingen. Reserveer vooraf je tijdslot en geniet van een rustige, ontspannen rondleiding, volledig afgestemd op jouw wensen. We verwelkomen je graag!

Rust, ruimte en een diepe achtertuin die het verschil maakt.

Aan de buitenrand van de gewilde wijk Stalkaarsen ligt deze nette en sfeervolle tussenwoning. Met vier slaapkamers en een diepe achtertuin met berging en achterom is dit een ideale gezinswoning.

De woning is comfortabel en energiezuinig dankzij kunststof kozijnen met HR++ glas, gevelisolatie, 15 zonnepanelen, rolluiken en energielabel B.

De ligging is een absolute troef: aan de rand van de wijk, met uitsluitend bestemmingsverkeer, woon je hier heerlijk rustig en in een kindvriendelijke omgeving. Op korte afstand vind je een speeltuin en een basisschool, ideaal voor jonge gezinnen. Binnen vijf minuten fietsen sta je in het ‘Piazza Center’ voor je dagelijkse boodschappen, terwijl het ‘Gijs van Andelpark’ met natuurcentrum letterlijk om de hoek ligt – een fijne plek om te ontspannen en te genieten van groen. Ook middelbare scholen, sportvoorzieningen en uitvalswegen zijn vlot en eenvoudig bereikbaar.

Een fijne plek waar rust, ruimte en gemak perfect samenkomen.

INDELING BEGANE GROND

Welkom!
Via de entree met deurluifel kom je binnen in de hal, die direct toegang biedt tot de woonkamer, de toiletruimte en de meterkast.

Wonen & koken
De lichte, Z-vormige woonkamer heeft een speelse indeling en een prettige lichtinval. Aan de voorzijde bevindt zich het zitgedeelte, terwijl aan de achterzijde ruimte is voor een gezellige eethoek, gelegen nabij de halfopen keuken. De open trap in de woonkamer vormt een mooie verbinding met de eerste verdieping en versterkt het ruimtelijke gevoel.

De keuken is uitgevoerd in een praktische L-opstelling met moderne, lichtgrijze kastfronten en voorzien van diverse apparatuur, waaronder een gasfornuis, afzuigkap, oven en een koel-vriescombinatie. Vanuit de keuken is er toegang tot de tuin, wat zorgt voor een fijne overgang tussen binnen en buiten.
De begane grond is afgewerkt met een laminaatvloer, wat het geheel een warme en verzorgde uitstraling geeft.

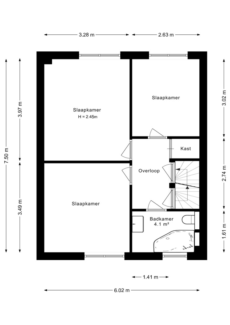
INDELING EERSTE VERDIEPING

Slaapkamers
Via de overloop, voorzien van een praktische kast, heb je toegang tot drie goed bemeten slaapkamers. Eén slaapkamer is gelegen aan de voorzijde, terwijl de twee andere zich aan de achterzijde bevinden. Alle kamers bieden voldoende ruimte en een prettige lichtinval.

Opfrissen
De badkamer (2012) is compleet uitgevoerd en van alle gemakken voorzien. Je vindt hier een comfortabel hoekbad met bad douchewand en een handig nisje voor shampoo en verzorgingsproducten, een tweede zwevend toilet, een stijlvol badkamermeubel en een designradiator.

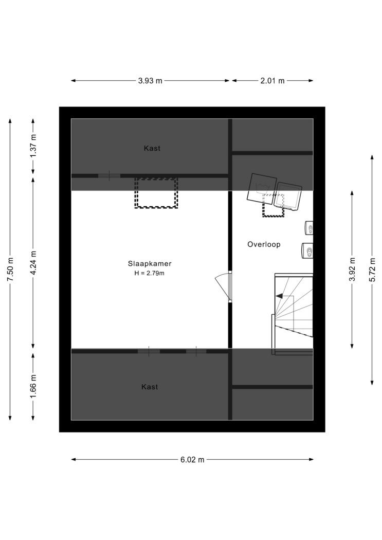
INDELING TWEEDE VERDIEPING

De tweede verdieping is verrassend ruim en praktisch ingedeeld. Op de voorzolder, voorzien van een dakraam, bevinden zich de aansluitingen voor de was- en droogapparatuur en de opstelplaats van de cv-ketel.

De royale vierde slaapkamer is een volwaardige kamer en beschikt over een groot dakraam, wat zorgt voor een fijne lichtinval en een aangename sfeer. Ideaal als extra slaapkamer, werkruimte of hobbykamer.
Daarnaast is er achter de knieschotten, aan beide zijden van de verdieping, volop bergruimte aanwezig – perfect voor het netjes opbergen van seizoens spullen en andere benodigdheden.

Tuin - buitenruimte
De achtertuin is heerlijk diep (circa 14 meter) en gelegen op het noordoosten, waardoor er altijd wel een fijn plekje in de zon of juist in de schaduw te vinden is. De tuin is onderhoudsvriendelijk aangelegd met sierbestrating en wordt omlijst door een strakke borderstrook langs de schuttingen, wat zorgt voor een verzorgde uitstraling.

Achter in de tuin bevindt zich een stenen fietsenberging van circa 9 m², met daaraan een gezellige overkapping waar je heerlijk kunt genieten van het zonnetje of juist beschut buiten kunt zitten. De tuin is tevens bereikbaar via een praktische achterom. De containers zijn netjes uit het zicht geplaatst en afgewerkt met een houten ombouw.

Ook de voortuin is verzorgd aangelegd met verhoogde antracietkleurige stapelblokken, siergrind en stapstenen die leiden naar de voordeur.

Highlights
•Bouwjaar 1975
•Woonoppervlakte 114 m2
•Perceel 172 m2
•Energielabel B
•Kunststof kozijnen HR++ beglazing
•Spouwmuurisolatie (HR++ Thermoparels)
•15 zonnepanelen
•4 slaapkamers
•Nette, complete badkamer
•Rolluiken voorzijde
•Diepe tuin + achterom
•Vrijstaande stenen berging

Maak van deze woning jouw thuis en geniet elke dag van alles wat deze plek te bieden heeft.

Lees de volledige omschrijving

Kenmerken

Overdracht

Status Beschikbaar
Aanvaarding In overleg

Bouwvorm

Soort object Woonhuis
Soort woning Eengezinswoning
Type woning Tussenwoning
Bouwjaar 1975
Bouwvorm Bestaande bouw
Ligging Aan een rustige weg, in een woonwijk

Indeling

Woonoppervlakte 114 m²
Perceeloppervlakte 172 m²
Inhoud 397 m³
Aantal kamers 5
Aantal slaapkamers 4
Aantal woonlagen 3

Energie

Energieklasse B
Energie einddatum dinsdag 27 november 2035
Isolatie Muurisolatie, dubbel glas
Warmwater Cv ketel
Verwarming Cv ketel

Buitenruimte

Tuin Achtertuin, voortuin
Hoofdtuin Achtertuin
Oppervlakte hoofdtuin 84 m²
Ligging hoofdtuin Noord-oost
Achterom Ja
Kwaliteit tuin Normaal

Bergruimte

Garage Geen garage
Schuur / Berging Vrijstaand steen

Parkeergelegenheid

Voorzieningen Openbaar parkeren

Dak

Dak Zadeldak

Overig

Permanente bewoning Ja
Onderhoud binnen Goed
Onderhoud buiten Goed
Huidig gebruik Woonruimte
Huidige bestemming Woonruimte

Voorzieningen

Voorzieningen Mechanische ventilatie, rolluiken, tv kabel, zonnepanelen, natuurlijke ventilatie

Kadastrale gegevens

Gemeente Gorinchem
Sectie E
Perceelnummer 1694
Oppervlakte 172 m²
Eigendomssituatie Volle eigendom
v1-20250318-8G0A1608E
Interesse in deze woning?

Leo helpt u graag

Gratis waardebepaling

U denkt erover uw woning te verkopen en wilt graag weten wat het waard is? We komen graag bij u langs en bepalen de waarde van uw woning.

Gratis waardebepaling

Deel deze woning

Uw persoonlijke adviseur in de regio

Maak kennis met de HypotheekWeter

Ligging

Afspraak maken voor een bezichtiging? Neem contact met ons op

Vergelijkbare woningen