0183 - 635011 0183 - 635011 Stel een vraag Stel een vraag
Open huis

Sergeant 37

GORINCHEM
€ 600.000,- k.k.
Open huis

Meld u telefonisch aan voor de kijkdag op woensdag 06 mei 2026 van 13:00 tot 17:00 uur.

  • Woonoppervlakte 129 m2
  • Perceeloppervlakte 148 m2
  • Aantal slaapkamers 5
  • Bouwjaar 2020

Omschrijving

Open Dag | Woensdag 6 mei | 13:00 – 17:00 uur
Ontdek deze woning tijdens ons speciale kijkmoment met persoonlijke bezichtigingen. Bel ons vooraf om je eigen tijdslot te reserveren. Wij ontvangen je graag voor een rustige, ontspannen rondleiding, helemaal afgestemd op jou.

Gasloze eindwoning in de geliefde wijk ‘De Eilanden’ in Hoog-Dalem

Deze fijne, instapklare eindwoning combineert comfort, ruimte en duurzaamheid op een stijlvolle manier. De uitgebouwde tuingerichte woonkamer is heerlijk licht en vormt samen met de openslaande deuren naar de tuin een fijne leefruimte. De strakke, moderne keuken aan de voorzijde is een echte eyecatcher en dé plek om te kokkerellen en samen te komen.

Op de eerste verdieping vind je drie comfortabele slaapkamers en een complete badkamer. De tweede verdieping biedt verrassend veel extra ruimte dankzij de dakkapel en het dakraam, en is momenteel ingericht met twee kamers, waarvan één in gebruik is als inloopkast. Ideaal als extra slaapkamer, werkplek of kleedruimte. En er is nog een handige vliering.

De woning is volledig gasloos en klaar voor de toekomst, met onder andere een warmtepomp, zonnepanelen, HR+++ beglazing en vloerverwarming én -koeling op alle verdiepingen. Hier geniet je het hele jaar door van een aangenaam en energiezuinig binnenklimaat.

Gelegen in de populaire wijk ‘De Eilanden’ in Hoog-Dalem woon je hier in een groene, ruim opgezette omgeving met een speelse architectuur. Winkels, scholen en speelplekken liggen op korte afstand, net als de dijk en de gezellige binnenstad van Gorinchem.

Kortom: een duurzame, ruime en instapklare woning op een toplocatie waar comfort en woonplezier samenkomen.

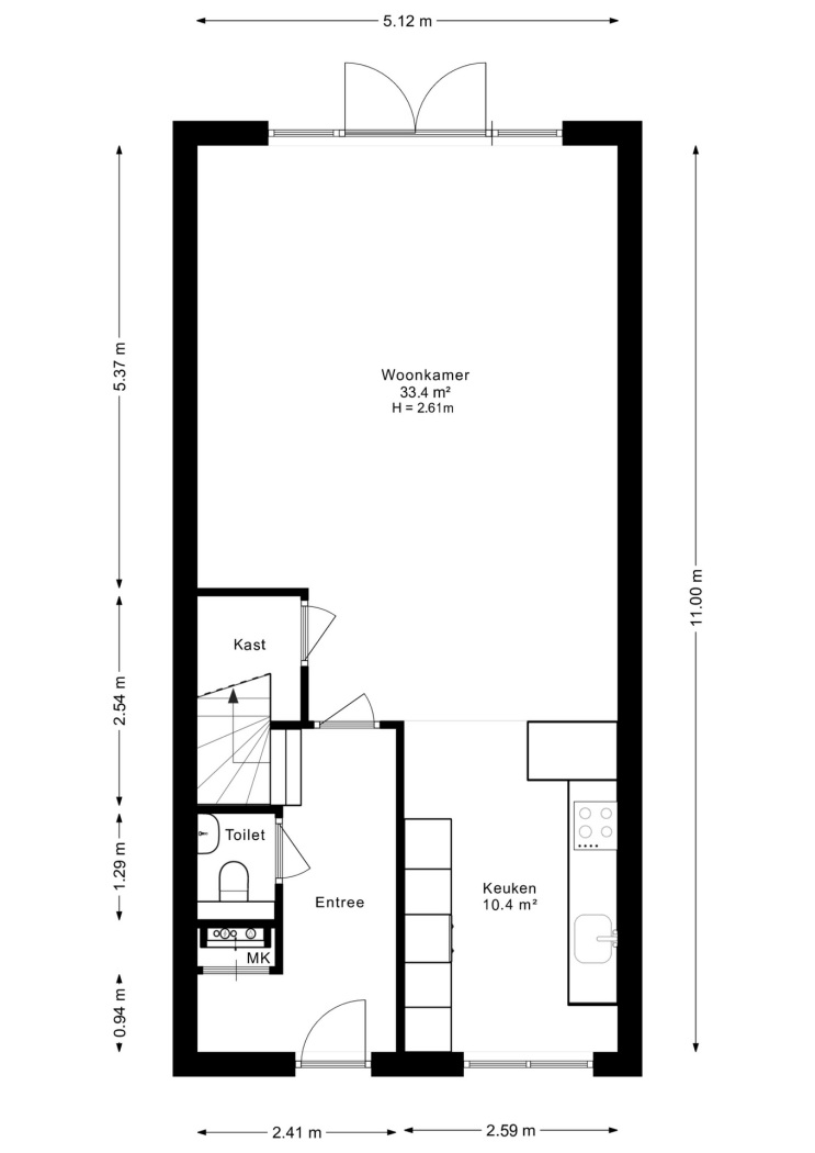
INDELING BEGANE GROND

Welkom thuis
Zodra je binnenstapt, voel je het meteen: dit huis is met zorg en stijl ingericht. De sfeervolle PVC- vloer springt direct in het oog en vormt samen met de strakke afwerking een warm welkom. Vanuit de hal heb je toegang tot het moderne toilet, de meterkast, de trapopgang en natuurlijk de royale woonkamer.

Wonen & Koken
De woonkamer is een heerlijke leefruimte waar licht, ruimte en comfort naadloos samenkomen en voorzien van een trapkast. De uitbouw over de volledige breedte en de dubbele openslaande deuren zorgen voor een open en luchtig gevoel, terwijl de PVC-vloer met vloerverwarming én -koeling in elk seizoen een aangenaam binnenklimaat garandeert. De grote tuindeuren verbinden binnen met buiten en nodigen uit tot lange zomeravonden in de tuin.

Aan de voorzijde van de woning bevindt zich de moderne, stijlvolle keuken, een echte eyecatcher. Het grote raam tot aan de vloer zorgt voor een prachtige lichtinval en geeft de ruimte een open en frisse uitstraling. De trendy, witte keuken is uitgevoerd in een strakke parallel opstelling: aan de ene zijde een recht keukenblok met een gezellig eetgedeelte voor twee barkrukken, en aan de andere zijde een praktische apparatenwand.
De keuken is niet alleen fraai vormgegeven, maar ook zeer functioneel. Zo kook je op een inductiekookplaat met afzuigkap en beschik je over een oven, vaatwasser en een koel-/vriescombinatie. Een fijne plek om te kokkerellen en samen te komen.

INDELING EERSTE VERDIEPING

3 slaapkamers
Vanaf de overloop bereik je drie comfortabele slaapkamers. Aan de voorzijde bevindt zich een ruime kamer met een charmant Frans balkon, terwijl de twee slaapkamers aan de achterzijde rustig en praktisch zijn ingedeeld. Ideaal als slaap-, werk- of kinderkamer.

Badkamer
De badkamer is een stijlvolle en serene ruimte waar rust, luxe en comfort samenkomen. De moderne afwerking in neutrale tinten zorgt voor een tijdloze uitstraling. Je vindt hier een ligbad, een douchecabine, een zwevend toilet met daarboven een praktische nis, en een dubbel wastafelmeubel met spiegelkast. De extra designradiator maakt het geheel compleet en zorgt voor extra comfort.

INDELING TWEEDE VERDIEPING

De overloop biedt ruimte aan de wasmachine- en droger aansluitingen en praktische kastruimte. Op deze verdieping bevinden zich nog twee fijne kamers (in totaal vijf kamers in de woning): aan de voorzijde een slaapkamer met dakkapel, extra zijraam en vaste kast, en daarnaast een kamer met een nieuw dakraam (2026), momenteel ingericht als stijlvolle inloopkast.
Daarnaast beschikt deze verdieping over een ruime vliering, ideaal voor extra opslag.

Tuin & buitenruimte
Met een perceel van 148 m² is deze achtertuin een heerlijke plek om elke dag tot rust te komen. De tuin is sfeervol aangelegd met een combinatie van moderne terrastegels, een verzorgd gazon en twee speels gevormde, halfronde verhoogde borders.
Dankzij de indeling vind je hier altijd wel een fijne plek in de zon of juist in de schaduw; achterin bij de schuur is een prettig zonneterras gecreëerd. Direct aan de achtergevel bevindt zich bovendien een praktische buitenkraan. De erfafscheidingen, deels begroeid met groene klimop en leibomen, zorgen voor een groene en privacyrijke setting.
Achterin de tuin staat een houten berging van ca. 6 m² en via de achterom bereik je eenvoudig het parkeerplein.

Highlights van deze instapklare woning:
• Moderne eindwoning (bouwjaar 2019, opgeleverd in 2020)
• Ca. 129 m² woonoppervlak op een perceel van 148 m²
• Energielabel A, HR++ (U=1,1) beglazing en 10 zonnepanelen
• Lichte, uitgebouwde woonkamer met dubbele openslaande deuren naar de tuin
• Luxe, moderne keuken, compleet voorzien van inbouwapparatuur
• Drie comfortabele slaapkamers op de eerste verdieping
• Sfeervolle badkamer met douchecabine, ligbad, toilet, dubbel wastafelmeubel en designradiator
• Tweede verdieping met twee extra kamers, waarvan één ingericht als inloopkast
• Dakkapel en nieuw dakraam (2026) voor extra licht en ruimte
• Ruime vliering, ideaal voor extra opslag
• Vloerverwarming én -koeling op alle drie de woonlagen
• Voorzien van bodem warmtepomp en zonnepanelen (huur via BAM Energy)
• Stijlvolle PVC-vloeren en trapafwerking (Forbo Allura Light Honey Oak)
• Buitenschilderwerk uitgevoerd in 2024
• Verzorgde achtertuin en houten berging van ca. 6 m²

Wonen tussen water, groen en gezelligheid – dat is Hoog Dalem
In deelplan De Eilanden woon je in een sfeervolle wijk met een groen karakter, brede waterpartijen en een knipoog naar de Hollandse Waterlinie. Geen straat is hetzelfde dankzij de variatie in architectuur en woningtypes. De wijk leeft: kinderen spelen buiten, tuinen zijn mooi aangelegd en bewoners voelen zich hier snel thuis.

Op loopafstand vind je basisscholen, kinderopvang, sportfaciliteiten en het winkelcentrum van Hoog Dalem met supermarkten en leuke winkels, allemaal in de herkenbare fort architectuur. Midden in de wijk ligt een langgerekt park van 800 meter waar je kunt wandelen, sporten of gewoon ontspannen. Dit park verbindt het groen en water tot één samenhangend geheel. Ook de bereikbaarheid is uitstekend: binnen enkele minuten bereik je de A15 en A27, waardoor steden als Utrecht, Rotterdam en Breda snel en eenvoudig te bereiken zijn. Een wijk waar natuur, ruimte en levendigheid perfect samenkomen, welkom in Hoog Dalem!

Tot snel!

Lees de volledige omschrijving

Kenmerken

Overdracht

Status Beschikbaar
Aanvaarding In overleg

Bouwvorm

Soort object Woonhuis
Soort woning Eengezinswoning
Type woning Eindwoning
Bouwjaar 2020
Bouwvorm Bestaande bouw
Ligging Aan een rustige weg, in een woonwijk

Indeling

Woonoppervlakte 129 m²
Perceeloppervlakte 148 m²
Inhoud 494 m³
Aantal kamers 6
Aantal slaapkamers 5
Aantal woonlagen 4

Energie

Energieklasse A
Energie einddatum zondag 5 mei 2030
Isolatie Dakisolatie, muurisolatie, vloerisolatie, dubbel glas, volledig geïsoleerd
Verwarming Vloerverwarming geheel, warmtepomp, aardwarmte

Buitenruimte

Tuin Achtertuin, voortuin
Hoofdtuin Achtertuin
Oppervlakte hoofdtuin 61 m²
Ligging hoofdtuin Noord-oost
Achterom Ja
Kwaliteit tuin Verzorgd

Bergruimte

Garage Geen garage
Schuur / Berging Vrijstaand hout

Parkeergelegenheid

Voorzieningen Openbaar parkeren

Dak

Dak Zadeldak

Overig

Permanente bewoning Ja
Onderhoud binnen Uitstekend
Onderhoud buiten Uitstekend
Huidig gebruik Woonruimte
Huidige bestemming Woonruimte

Voorzieningen

Voorzieningen Mechanische ventilatie, tv kabel, frans balkon, dakraam, zonnepanelen, natuurlijke ventilatie

Kadastrale gegevens

Gemeente Gorinchem
Sectie P
Perceelnummer 2423
Oppervlakte 148 m²
Eigendomssituatie Volle eigendom
OK-Kopie-van-v1-20250318-8G0A1414
Interesse in deze woning?

Chanel helpt u graag

Gratis waardebepaling

U denkt erover uw woning te verkopen en wilt graag weten wat het waard is? We komen graag bij u langs en bepalen de waarde van uw woning.

Gratis waardebepaling

Deel deze woning

Uw persoonlijke adviseur in de regio

Maak kennis met de HypotheekWeter

Ligging

Afspraak maken voor een bezichtiging? Neem contact met ons op

Vergelijkbare woningen