0183 - 635011 0183 - 635011 Stel een vraag Stel een vraag
Verkocht

Rivierdijk 8

HARDINXVELD-GIESSENDAM
€ 425.000,- k.k.
  • Woonoppervlakte 99 m2
  • Perceeloppervlakte 275 m2
  • Aantal slaapkamers 2
  • Bouwjaar 1926

Omschrijving

Dit prachtige 2-onder-1-kapwoning aan de Rivierdijk 8 in Hardinxveld Giessendam is werkelijk een verborgen parel, landelijk gelegen aan het water, omgeven door groen. De woning biedt een geweldige combinatie van rust, ruimte en potentie.

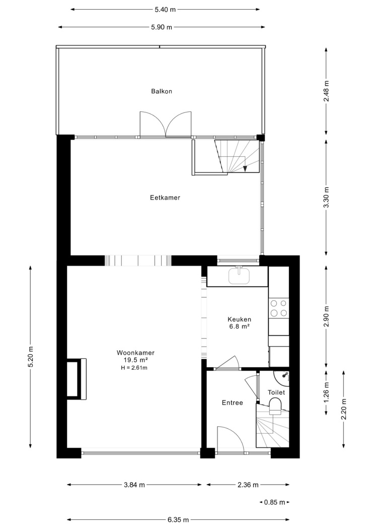
Bij binnenkomst op de eerste verdieping betreed je direct de open keuken. Deze is volledig uitgevoerd en voorzien van inbouwapparatuur. Vanuit de keuken stap je zo de woonkamer binnen, een lichte, open ruimte met een gezellige houtkachel die zorgt voor warmte en sfeer. De woonkamer is ideaal voor het creëren van een comfortabele zithoek. Aansluitend aan de woonkamer vind je het eetgedeelte, een ruimte die veel mogelijkheden biedt om naar eigen smaak in te richten.

Kenmerkend voor deze etage zijn de bogen die de woonkamer, eetkamer en keuken met elkaar verbinden, wat een unieke sfeer creëert. De eetkamer heeft toegang tot een ruim balkon, dat als het ware een verlengstuk van de ruimte is. Door de openslaande deuren komt de frisse buitenlucht naar binnen, wat de ruimte nog aangenamer maakt.

Op de benedenverdieping vind je een ruime bijkeuken, perfect voor opslag of als wasruimte. De grote tuin is een van de hoogtepunten van deze woning. Het groene karakter van de tuin, grenzend aan het water, maakt deze plek ideaal voor buitenactiviteiten en ontspanning. De tuin biedt talloze mogelijkheden voor zit- en speelplekken voor kinderen. Tevens is er een extra berging aanwezig voor tuinspullen en een garage voor nog extra bergruimte.

Op de tweede verdieping bevinden zich twee goed bemeten slaapkamers en een badkamer van compact formaat met een moderne uitstraling. De badkamer is voorzien van een ruime douche en wastafelmeubel, en is goed onderhouden. De ruime overloop biedt extra ruimte voor een kast, wat bijdraagt aan het comfort van de woning.

Highlights:
* Woonoppervlakte: 99 m²
* Ruime tuin, grenzend aan het water
* Losse berging voor tuinspullen
* Losse garage voor extra opbergruimte
* Vrij parkeren voor de deur
* Grote bijkeuken, ideaal voor opslag of wasruimte
* Balkon, bereikbaar via openslaande deuren vanuit de eetkamer
* Landelijk gelegen aan het water, met veel groen rondom
* Gezellige houtkachel in de woonkamer voor extra sfeer en warmte
* Energielabel E
* Kenmerkende bogen die de woon-, eetkamer en keuken verbinden
* 2 goed bemeten slaapkamers op de tweede verdieping
* Moderne badkamer met ruime douche en wastafelmeubel
* Prachtige, rustige locatie voor ontspanning en buitenactiviteiten
* Goede bereikbaarheid per openbaar vervoer en/of auto
* Alle dagelijkse voorzieningen om de hoek

Wonen in Hardinxveld Giessendam
Hardinxveld Giessendam is een charmante gemeente gelegen in de provincie Zuid-Holland, die de perfecte balans biedt tussen het landelijke leven en de nabijheid van stedelijke voorzieningen. Het dorp heeft een rustige, groene uitstraling en is omringd door natuur, water en landerijen, wat het ideaal maakt voor mensen die op zoek zijn naar een ontspannen levensstijl. Tegelijkertijd biedt het dorp een uitstekende verbinding naar grotere steden zoals Gorinchem en Rotterdam, waardoor het een strategische locatie is voor forenzen.

In Hardinxveld Giessendam vind je een sfeervolle en vriendelijke gemeenschap, met voldoende winkels, scholen en sportfaciliteiten voor zowel jong als oud. Het dorp heeft een rijke geschiedenis en een gezellige dorpskern met diverse horecagelegenheden en culturele bezienswaardigheden. Daarnaast biedt de omgeving talloze mogelijkheden voor wandel- en fietstochten langs het water en door het groen, waardoor het een geweldige plek is voor natuurliefhebbers.

Kortom, een woning met veel potentie, landelijk gelegen met prachtig uitzicht en volop ruimte om te genieten van het buitenleven. Het is een unieke kans voor de liefhebber van rust en ruimte!

Lees de volledige omschrijving

Kenmerken

Overdracht

Status Verkocht
Aanvaarding In overleg

Bouwvorm

Soort object Woonhuis
Soort woning Eengezinswoning
Type woning Twee onder één kapwoning
Bouwjaar 1926
Bouwvorm Bestaande bouw
Ligging Aan water, aan een rustige weg, vrij uitzicht, landelijk gelegen

Indeling

Woonoppervlakte 99 m²
Perceeloppervlakte 275 m²
Inhoud 320 m³
Aantal kamers 4
Aantal slaapkamers 2
Aantal woonlagen 3

Energie

Energieklasse E
Energie einddatum woensdag 13 februari 2036
Isolatie Dakisolatie, muurisolatie
Warmwater Cv ketel
Verwarming Cv ketel, houtkachel

Buitenruimte

Tuin Achtertuin, voortuin
Hoofdtuin Achtertuin
Oppervlakte hoofdtuin 136 m²
Ligging hoofdtuin West
Achterom Nee
Kwaliteit tuin Normaal

Bergruimte

Garage Aangebouwd hout
Schuur / Berging Vrijstaand hout
Voorzieningen Elektra

Parkeergelegenheid

Voorzieningen Openbaar parkeren, op eigen terrein

Dak

Dak Zadeldak

Overig

Permanente bewoning Ja
Onderhoud binnen Goed
Onderhoud buiten Goed
Huidig gebruik Woonruimte
Huidige bestemming Woonruimte

Voorzieningen

Voorzieningen Tv kabel, buitenzonwering, rookkanaal

Kadastrale gegevens

Gemeente Hardinxveld-Giessendam
Sectie L
Perceelnummer 515
Oppervlakte 275 m²
Eigendomssituatie Volle eigendom
v1-20250318-8G0A1608E
Interesse in deze woning?

Leo helpt u graag

Gratis waardebepaling

U denkt erover uw woning te verkopen en wilt graag weten wat het waard is? We komen graag bij u langs en bepalen de waarde van uw woning.

Gratis waardebepaling

Deel deze woning

Uw persoonlijke adviseur in de regio

Maak kennis met de HypotheekWeter

Ligging

Afspraak maken voor een bezichtiging? Neem contact met ons op

Vergelijkbare woningen