0183 - 635011 0183 - 635011 Stel een vraag Stel een vraag
Beschikbaar

Bagijnenwalstraat 17

GORINCHEM
€ 799.000,- k.k.
  • Woonoppervlakte 199 m2
  • Perceeloppervlakte 104 m2
  • Aantal slaapkamers 4
  • Bouwjaar 2021

Omschrijving

Markant, karakteristiek en verrassend praktisch: dit statige herenhuis van maar liefst vier woonlagen met uitbouw én zonnige tuin biedt het allemaal!

Wonen én werken in een sfeervol herenhuis met zonnige achtertuin en inpandige werk- of kantoorruimte? Dat kan, midden in het hart van het historische centrum van Gorinchem.

Ideaal voor de creatieve ondernemer of zzp’er die wonen en werken wil combineren. Maar ook een droomplek voor iedereen die houdt van royaal en stijlvol wonen.

Gelegen in het oudste en meest charmante deel van Gorinchem, direct achter het Merwedekanaal en het knusse jachthaventje. Vanuit de woonkamer kijk je uit over de groene vestingwal: een uitzicht dat nooit verveelt.

En dat is nog niet alles: op loopafstand vind je een breed scala aan winkels, restaurants, sportfaciliteiten, scholen en openbaar vervoer. Alles wat je nodig hebt, ligt hier letterlijk aan je voeten.

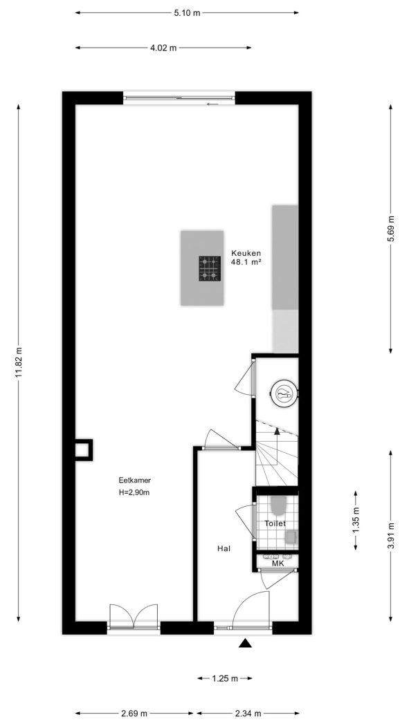
INDELING BEGANE GROND

Hal
Bij binnenkomst tref je een nette entree/hal met toilet en trapopgang naar de bovenverdiepingen.

De royale begane grond is uitgebouwd aan de achterzijde en voorzien van een schuifpui die zorgt voor een zee aan licht. Deze verdieping combineert wonen en werken op stijlvolle wijze, met een grote werkruimte en een riante woon- of kantoorkeuken met hoge raampartijen.

De voorzijde van deze verdieping is eenvoudig af te scheiden van de keuken, waardoor hier perfect een aparte kantoor- of behandelruimte kan worden gerealiseerd. Dankzij een eigen entree aan de straatzijde is dit dé ideale plek voor een zelfstandige praktijk of kantoor aan huis.

De open keuken is een echte eyecatcher: modern vormgegeven en uitgerust met een luxe kookeiland. De keuken beschikt over hoogwaardige inbouwapparatuur, waaronder twee combi-ovens, een sous-vide lade, een combi kookplaat (gas én inductie), een vaatwasser, een ruime koelkast en een stijlvolle design afzuigkap.

Tuin & berging
Achter de woning ligt een zonnige, onderhoudsvriendelijke tuin met een royale berging voorzien van een groen mos-sedumdak. Deze buitenruimte biedt volop plek om met het hele gezin te genieten van de zon en buitenlucht.

Optie tot privé parkeerplaats: te koop voor € 25.000
En alsof dat nog niet genoeg is: via de achterom in de tuin kom je bij de privé parkeerplaats met voorbereiding voor een laadpaal: een zeldzame luxe in het levendige centrum!

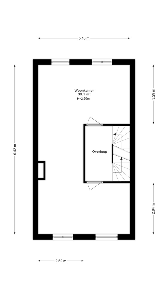
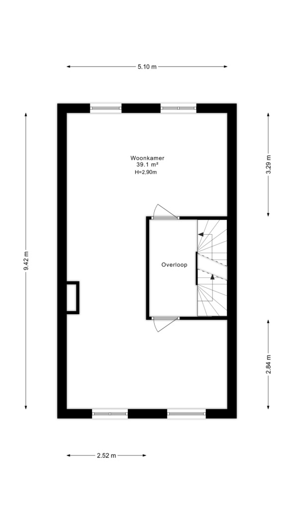
INDELING 1E VERDIEPING

Via de overloop kom je in de royale, lichte doorzonwoonkamer: een heerlijke leefruimte met een prachtig uitzicht op de groene stadswal.

De woonkamer is voorzien van een tweede, stijlvol afgewerkt keukenblok met moderne inbouwapparatuur, waaronder een oven, een koelkast en een strak vormgegeven kookplaat met geïntegreerde afzuigkap.

Deze verdieping is, net als de rest van de woning, volledig voorzien van comfortabele vloerverwarming. De strakke gietvloer versterkt het moderne, minimalistische karakter en zorgt voor een serene, stijlvolle sfeer.

En het uitzicht? Dat is simpelweg betoverend. Vanuit je favoriete stoel kijk je uit over de groene stadswal, een levend schilderij dat elk seizoen opnieuw verrast.

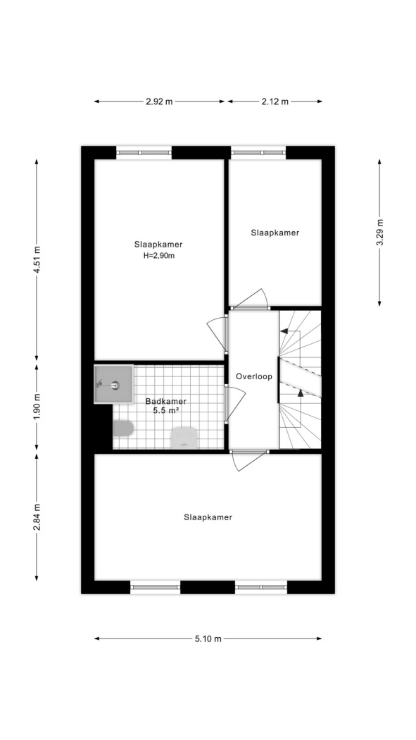
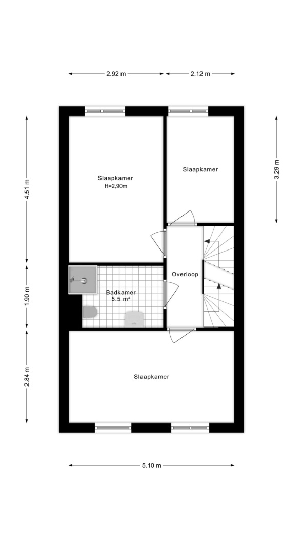
INDELING 2E VERDIEPING

Via de overloop bereik je het hart van deze slaapverdieping: een royale en stijlvol afgewerkte badkamer, centraal gepositioneerd voor optimaal comfort.

Opfrissen
De badkamer is uitgerust met een ruime inloopdouche met glazen wand, een moderne wastafel, een tweede toilet en een elegante designradiator.

3 slaapkamers
Aan weerszijden van de badkamer bevinden zich drie volwaardige slaapkamers. De ouderslaapkamer beslaat de volledige breedte van de woning en biedt volop ruimte voor een kingsize bed én een garderobekast, een rustige, royale plek om de dag ontspannen te beginnen of af te sluiten.

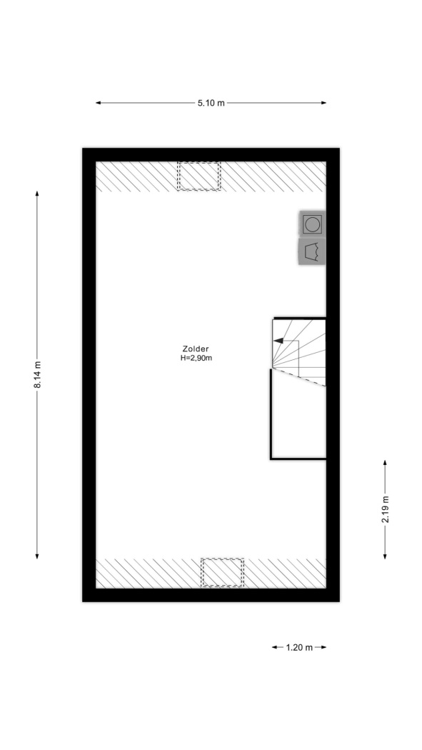
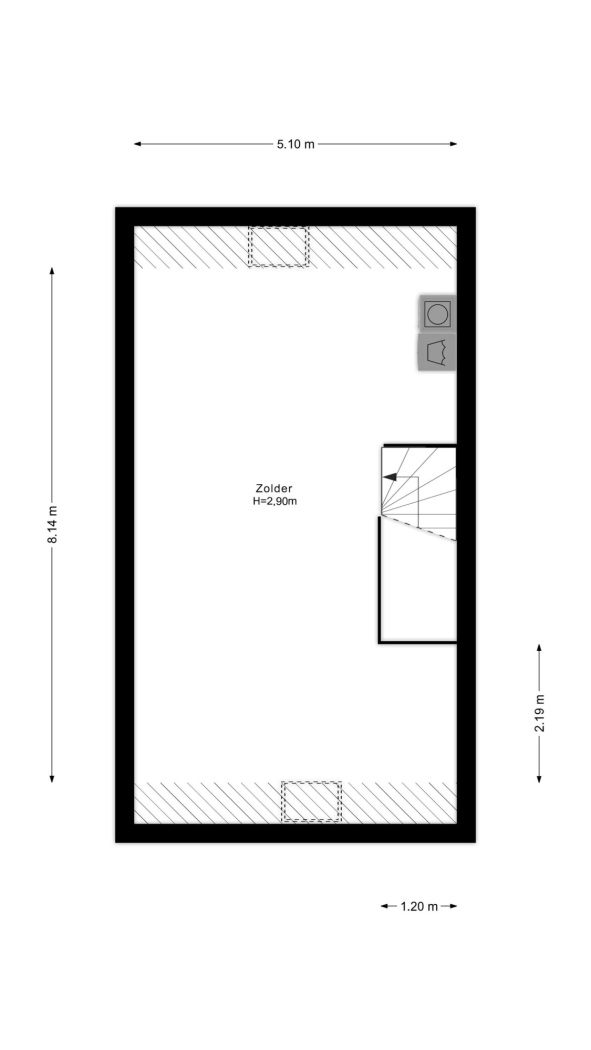
INDELING 3E VERDIEPING

4e of 5e slaapkamer
De royale doorzon-zolderkamer doet nu dienst als indrukwekkende vierde slaapkamer, maar biedt zó veel ruimte dat hier eenvoudig een vijfde slaapkamer kan worden gerealiseerd. Ideaal voor een groter gezin of een combinatie van wonen en werken.

Deze multifunctionele verdieping is uitgerust met twee grote Velux-dakramen die het daglicht rijkelijk binnenlaten en de ruimte een lichte, open sfeer geven. Praktisch is het zeker ook: de aansluitingen voor was- en droogapparatuur zijn al aanwezig, én er is een voorbereiding getroffen voor een tweede badkamer.

Highlights van deze indrukwekkende woning:
•Woonoppervlak ca. 199 m²
•Perceeloppervlak ca. 104 m²
•Bouwjaar 2021
•Energielabel A+++
•Verwarming middels een warmtepomp en boiler (gasloos)
•Vloerverwarming op alle verdiepingen
•Luxe woonkeuken met kookeiland op de begane grond met schuifpui naar de tuin
•Franse balkons op de eerste- en tweede verdieping aan zowel- voor als achterzijde met openslaande deuren
•Drie grote slaapkamers, waarvan één woningbreed
•Optie voor 4de en 5de slaapkamer op zolder, én voorbereiding voor een 2e badkamer op zolder
•Optie tot eigen parkeerplaats met voorbereiding voor laadpaal
•VvE-bijdrage: slechts € 20,07 per maand (voor het achtergebied/parkeerplaats)
•Berging in de tuin voorzien van mos-sedumdak
•Toplocatie aan de groene stadswal en in het centrum.

Lees de volledige omschrijving

Kenmerken

Overdracht

Status Beschikbaar
Aanvaarding In overleg

Bouwvorm

Soort object Woonhuis
Soort woning Herenhuis
Type woning Geschakelde woning
Bouwjaar 2021
Bouwvorm Bestaande bouw
Ligging In het centrum

Indeling

Woonoppervlakte 199 m²
Perceeloppervlakte 104 m²
Inhoud 609 m³
Aantal kamers 6
Aantal slaapkamers 4
Aantal woonlagen 4

Energie

Energieklasse A+++
Energie einddatum zondag 24 augustus 2031
Isolatie Dakisolatie, muurisolatie, vloerisolatie, volledig geïsoleerd, hr glas
Warmwater Elektrische boiler eigendom
Verwarming Vloerverwarming geheel, warmtepomp, warmtepomp terugwininstallatie

Buitenruimte

Tuin Achtertuin
Hoofdtuin Achtertuin
Oppervlakte hoofdtuin 31 m²
Ligging hoofdtuin Noord-oost
Achterom Ja
Kwaliteit tuin Verzorgd

Bergruimte

Garage Geen garage
Schuur / Berging Vrijstaand hout

Parkeergelegenheid

Voorzieningen Op eigen terrein, op afgesloten terrein

Dak

Dak Samengesteld dak

Overig

Permanente bewoning Ja
Onderhoud binnen Uitstekend
Onderhoud buiten Uitstekend
Huidig gebruik Woonruimte
Huidige bestemming Woonruimte

Voorzieningen

Voorzieningen Mechanische ventilatie, tv kabel, schuifpui, frans balkon, zonnepanelen, balansventilatie

Kadastrale gegevens

Gemeente Gorinchem
Sectie D
Perceelnummer 4773
Oppervlakte 104 m²
Eigendomssituatie Volle eigendom
v1-20250318-8G0A1538EE
Interesse in deze woning?

Stefan helpt u graag

Gratis waardebepaling

U denkt erover uw woning te verkopen en wilt graag weten wat het waard is? We komen graag bij u langs en bepalen de waarde van uw woning.

Gratis waardebepaling

Deel deze woning

Uw persoonlijke adviseur in de regio

Maak kennis met de HypotheekWeter

Ligging

Afspraak maken voor een bezichtiging? Neem contact met ons op

Vergelijkbare woningen