0183 - 635011 0183 - 635011 Stel een vraag Stel een vraag
Verkocht

Prins Hendrikstraat 45

HARDINXVELD-GIESSENDAM
€ 525.000,- k.k.
  • Woonoppervlakte 143 m2
  • Perceeloppervlakte 160 m2
  • Aantal slaapkamers 4
  • Bouwjaar 2005

Omschrijving

Wat een uitzicht! Wonen met weids vergezicht over polder, weilanden én waterpartij

Stel je voor: je zit op de bank met een kop koffie en kijkt uit over de polder, de weilanden en een waterpartij. Geen tv nodig, dit uitzicht verveelt nooit!

De woning
Deze tussenwoning (gebouwd in 2005) heeft de charme van de jaren ’30 met z’n gezellige erker aan de voorzijde, maar biedt alle gemakken van nu. Hij staat in een rijtje van vier, en dankzij de hoge puntkap is er verrassend veel ruimte binnen.

Wat je binnen aantreft:
•Een lichte, instapklare woonkamer met schuifpui, vloerverwarming én tegelvloer
•Drie slaapkamers op de eerste verdieping
•Een tweede verdieping met voorzolder, een ruime vierde slaapkamer met grote dakkapel én nog een handige vliering bovenin

En buiten?
De tuin ligt op het westen, dus altijd plek voor de avondzon. Met sierbestrating, zonwering, een fijn terras en een stenen berging is het hier heerlijk vertoeven. Extra leuk: achter het hekje ligt een brede waterpartij… ideaal om te dobberen met een bootje of op een warme dag gewoon een duik te nemen.

De wijk
‘Over het Spoor’ is één van de meest geliefde wijken van Hardinxveld: een sfeervolle, groene en kindvriendelijke buurt met een fijne mix van karakter en modern comfort. In 2005 zijn hier verschillende woningen opnieuw gebouwd – waaronder deze charmante woning. Zo geniet je van de uitstraling van een jaren ’30 wijk, gecombineerd met het gemak van een jonge woning.

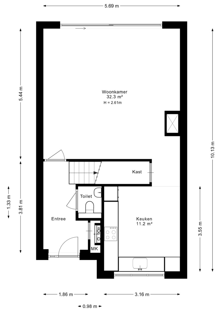
INDELING BEGANE GROND

Welkom!
Hal met meterkast, toilet, trapopgang naar de verdieping en toegang tot de woonkamer.

Woonkamer & Keuken
De woonkamer is heerlijk breed en dankzij de woningbrede schuifpui baadt de ruimte in het licht. Vanuit hier kijk je zo de tuin in – met dat geweldige uitzicht over water en polder. Dat voelt elke dag weer als een cadeautje.
De cinewall met tv en houtkachel geven de ruimte een moderne, spectaculaire uitstraling. De lichte tegelvloer met vloerverwarming maakt het plaatje compleet: strak, stijlvol én comfortabel.
Slim detail: de ruime trapkast steekt iets de kamer in, waardoor de keuken aan de voorzijde mooi uit het zicht ligt. Samen vormen keuken en woonkamer maar liefst 44 m² aan leefruimte – een perfecte mix van ruimte, sfeer en gemak. De keuken zelf is geplaatst in een L-opstelling bij het sfeervolle erkerraam. De lichte, landelijk-strakke kastfronten en alle gewenste inbouwapparatuur maken het een plek waar koken een plezier wordt. Denk aan een inductiekookplaat, rvs afzuigkap, combi-oven, koel-/vriescombinatie, vaatwasser én een Quooker.

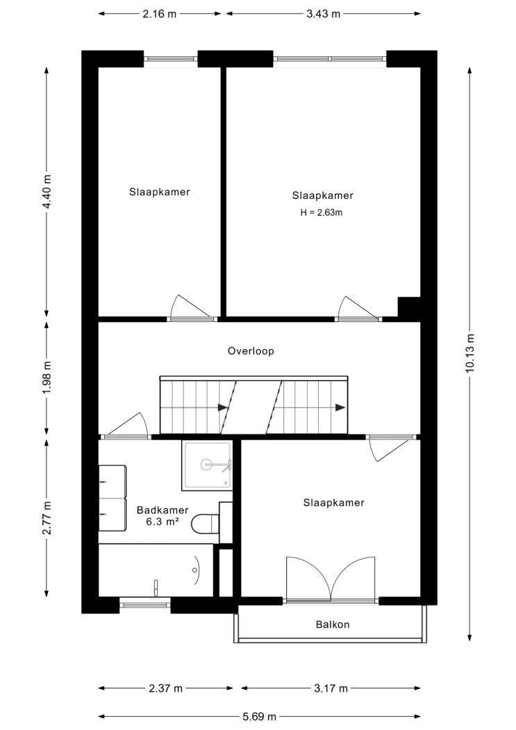
INDELING EERSTE VERDIEPING

Op de eerste verdieping bevinden zich drie goed ingedeelde slaapkamers.
• Aan de voorzijde ligt een fijne kamer met dubbele deuren naar het balkon.
• De ruime hoofdslaapkamer aan de achterzijde is voorzien van airco en trakteert je op een waanzinnig uitzicht over de polder.
• De derde kamer, eveneens aan de achterzijde, is momenteel ingericht als praktische kastenkamer.

Badkamer
De moderne badkamer ligt aan de voorzijde en heeft alles wat je maar kunt wensen. Een ligbad om heerlijk in te ontspannen, een dubbele wastafel met spiegelkast (handig, zo hoef je nooit meer te vechten om plek), een fijne douchecabine, een strak zwevend toilet én een designradiator. Kortom: hier begin én eindig je je dag met plezier.

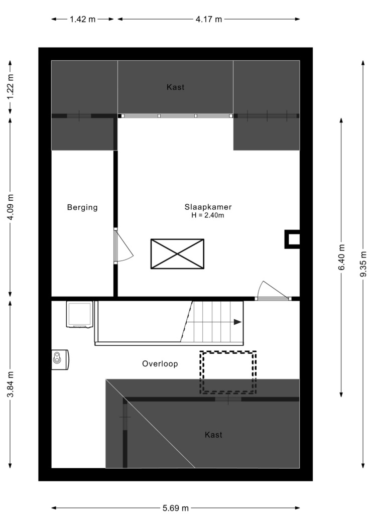
INDELING TWEEDE VERDIEPING

De bovenste etage zit vol mogelijkheden!
De voorzolder is praktisch ingedeeld met een dakraam, aansluitingen voor wasmachine en droger en de opstelplaats van de cv-ketel.

De vierde slaapkamer is een volwaardige kamer met dakkapel, airco, een praktische bergkast en extra bergruimte achter de knieschotten. En natuurlijk – hoe kan het ook anders – weer dat fijne uitzicht over de polder. Deze ruimte leent zich ook uitstekend als inspirerende werkkamer of hobbyruimte.
Via een luik met vlizotrap bereik je tenslotte nog de vliering: extra bergruimte, altijd handig!

Tuin - buitenruimte
Welkom in je eigen vakantieresort! De tuin is volledig bestraat, dus overal plek om lekker te zitten. Zet een eettafel naast de schuur en geniet van dat waanzinnige uitzicht over water en weilanden.
Achter het huis zit je heerlijk onder de pergola zonwering: die houdt de zon tegen en voorkomt dat je terras in een sauna verandert. Wordt het tóch te warm? Dan plons je gewoon het water in, pak je de sup of een klein bootje… of gooi je een hengel uit voor een relaxed vismoment.
En ja hoor, er is ook een achterom – lekker makkelijk via het poortje.

Praktisch detail: een stenen berging van ca. 7 m² voor al je spullen.

Highlights
•Sfeervolle jaren ’30 stijl, comfort van nu
•Bouwjaar 2005, helemaal instapklaar
•Woonoppervlakte ca. 143 m² op een perceel van 160 m²
•Energielabel A – goed geïsoleerd en dus lage lasten
•Royale woonkamer (32 m²) met brede schuifpui en veel licht
•Gezellige keuken (11 m²) met erkerraam
•3 slaapkamers op de eerste verdieping
•Complete badkamer met ligbad, douche, dubbele wastafel en toilet
•4e slaapkamer met dakkapel op de tweede verdieping
•Handige vliering voor extra bergruimte
•Zonnige tuin op het westen met achterom
•Rolluiken, screens en zonwering
•Airconditioning
•Vloerverwarming begane grond
•Spectaculair uitzicht over de polder en brede waterpartij
•Gelegen in een geliefde woonwijk met voorzieningen en speelplaatsen om de hoek

Wonen met polder, weilanden en water als decor – dat moet je gewoon beleven. Tot snel!

Lees de volledige omschrijving

Kenmerken

Overdracht

Status Verkocht
Aanvaarding In overleg

Bouwvorm

Soort object Woonhuis
Soort woning Eengezinswoning
Type woning Tussenwoning
Bouwjaar 2005
Bouwvorm Bestaande bouw
Ligging Aan water, aan een rustige weg, in een woonwijk, vrij uitzicht, open ligging, landelijk gelegen

Indeling

Woonoppervlakte 143 m²
Perceeloppervlakte 160 m²
Inhoud 513 m³
Aantal kamers 5
Aantal slaapkamers 4
Aantal woonlagen 4

Energie

Energieklasse A
Energie einddatum maandag 25 juni 2029
Isolatie Dubbel glas, volledig geïsoleerd
Warmwater Cv ketel
Verwarming Cv ketel, vloerverwarming gedeeltelijk, houtkachel

Buitenruimte

Tuin Achtertuin, voortuin
Hoofdtuin Achtertuin
Oppervlakte hoofdtuin 72 m²
Ligging hoofdtuin West
Achterom Ja
Kwaliteit tuin Fraai aangelegd

Bergruimte

Garage Geen garage
Schuur / Berging Vrijstaand steen

Parkeergelegenheid

Voorzieningen Openbaar parkeren

Dak

Dak Zadeldak

Overig

Permanente bewoning Ja
Onderhoud binnen Uitstekend
Onderhoud buiten Uitstekend
Huidig gebruik Woonruimte
Huidige bestemming Woonruimte

Voorzieningen

Voorzieningen Mechanische ventilatie, rolluiken, tv kabel, buitenzonwering, airconditioning, rookkanaal, schuifpui, natuurlijke ventilatie

Kadastrale gegevens

Gemeente Hardinxveld-Giessendam
Sectie G
Perceelnummer 5606
Oppervlakte 160 m²
Eigendomssituatie Volle eigendom
v1-20250318-8G0A1608E
Interesse in deze woning?

Leo helpt u graag

Gratis waardebepaling

U denkt erover uw woning te verkopen en wilt graag weten wat het waard is? We komen graag bij u langs en bepalen de waarde van uw woning.

Gratis waardebepaling

Deel deze woning

Uw persoonlijke adviseur in de regio

Maak kennis met de HypotheekWeter

Ligging

Afspraak maken voor een bezichtiging? Neem contact met ons op

Vergelijkbare woningen