0183 - 635011 0183 - 635011 Stel een vraag Stel een vraag
Beschikbaar

Groot Veldsweer 125

HARDINXVELD-GIESSENDAM
€ 450.000,- k.k.
  • Woonoppervlakte 122 m2
  • Perceeloppervlakte 167 m2
  • Aantal slaapkamers 5
  • Bouwjaar 1973

Omschrijving

GROOTS wonen aan de Groot Veldsweer? Dat mag je hier letterlijk nemen!

Deze verrassend ruime woning heeft maar liefst vijf slaapkamers, een fijne garage mét carport en een zonnige tuin op het zuiden – ideaal voor wie van ruimte én zon houdt.

De woonkamer aan de tuinzijde is een heerlijke plek om te ontspannen, met dubbele tuindeuren die binnen en buiten moeiteloos verbinden. De moderne keuken met inbouwapparatuur nodigt uit tot lekker kokkerellen (of gewoon gezellig borrelen terwijl iemand anders kookt).

Op de eerste verdieping bevinden zich drie slaapkamers en een badkamer. De tweede verdieping is slim uitgebreid met een dakkapel/dakopbouw, waardoor extra leefruimte is ontstaan. In totaal telt de woning vijf slaapkamers en een heerlijk balkon.

Qua comfort is het hier uitstekend wonen: de woning is voorzien van een Daikin airconditioning (multi-split), rolluiken en volledig dubbele beglazing. De kunststof kozijnen met HR++ glas en houten kozijnen met HR+ glas dragen bij aan een goede isolatie, net als de gevelisolatie. Met maar liefst 13 zonnepanelen is de woning bovendien energiezuinig en duurzaam. Alles samen zorgt dit voor een aangenaam binnenklimaat en een comfortabel thuis met energielabel B.

De ligging? Ideaal! Direct naast de woning ligt een speeltuintje voor de kleintjes, en je woont dichtbij het centrum, met snelle verbindingen naar de snelweg en het openbaar vervoer.

En dan die zonnige tuin op het zuiden… daar wil je gewoon niet meer weg.

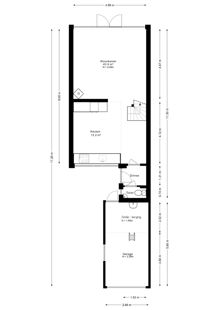
INDELING BEGANE GROND

Welkom!
Via de zij-entree kom je in de hal met toegang tot het toilet en de deur naar de woonkamer.

Garage & carport
Aan de voorzijde van de woning vind je de carport en de garage, voorzien van een elektrische roldeur én een praktische loopdeur. Boven de garage bevindt zich een handige insteek zolder, bereikbaar via een losse trap – ideaal voor extra bergruimte.

Wonen & koken
De woonkamer en keuken vormen samen een royale leefruimte van ca. 44 m². Aan de achterzijde bevindt zich de gezellige woonkamer, met dubbele openslaande deuren naar de tuin en het zonnige terras met zonnescherm – ideaal om binnen en buiten moeiteloos in elkaar te laten overlopen. In de hoek zorgt een sfeervolle schouw met tegeltjes en een houtkachel voor warmte, karakter en een vleugje nostalgie.

De laminaatvloer loopt mooi door en versterkt het gevoel van eenheid en huiselijkheid, terwijl de airconditioning in elk seizoen voor een aangenaam binnenklimaat zorgt. Via de open trap is de verdieping gemakkelijk bereikbaar.

De keuken aan de voorzijde is praktisch én sfeervol ingericht, met een rechte opstelling onder het raam en aan de overzijde een apparatenwand en een knusse koffiecorner. De witte kastfronten creëren een frisse, tijdloze uitstraling. De keuken is voorzien van diverse inbouwapparaten, waaronder een kookplaat met geïntegreerde afzuiging, een combi-oven, een stoomoven, een koelkast en een vaatwasser.

Dankzij de ruime opstelling is er tussen de twee keukenblokken volop plek voor een eettafel – dé plek waar koken, gezellig tafelen en samen genieten moeiteloos in elkaar overlopen.

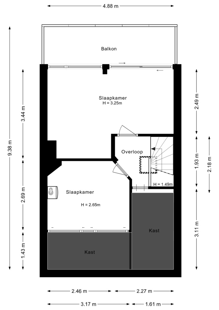
INDELING EERSTE VERDIEPING

3 slaapkamers
Overloop met kastruimte. Op de eerste verdieping bevinden zich drie goed bemeten slaapkamers, 1 slaapkamer aan de voorzijde met schuifwandkast en airconditioning en 2 slaapkamers aan de achterzijde met rolluiken

Opfrissen
De badkamer van ca. 6,4 m² is uitgerust met een doucheruimte met regendouche, een whirlpool-ligbad en een wastafelmeubel. Er is tevens een aansluiting voor wasmachine en droger, met daarnaast én erboven handige kastjes voor extra bergruimte. Voor de doucheruimte ligt een vloer lus die zorgt voor heerlijke warmte onder de voeten.

INDELING TWEEDE VERDIEPING

De overloop is voorzien van een dakraam en praktische kastruimte, en biedt toegang tot twee slaapkamers.

De slaapkamer aan de voorzijde is voorzien van een dakopbouw met dakkapel en beschikt over een praktische vaste kast waarin de cv-ketel is geplaatst.
De woningbrede slaapkamer aan de achterzijde is heerlijk ruim en uitgerust met een wastafelmeubel. Via de schuifpui stap je direct het zonnige balkon op het zuiden op (circa 7 m²). Een heerlijke plek om ’s ochtends de deuren open te zetten en meteen van de zon te genieten.

Tuin & buitenruimte
De zonnige tuin op het zuiden is een heerlijke plek om te ontspannen. Direct aan de achtergevel ligt een royaal terras met elektrisch bedienbaar zonnescherm, ideaal tijdens warme zomerdagen. De tuin is speels aangelegd met ronde vormen in de sierbestrating, een schutting en een groene haag voor de privacy, borders en enkele bomen die voor extra sfeer zorgen. Achter in de tuin een kleine lounge overkapping + extra overkapping voor haardhout. Via een poort in de schutting is er directe toegang tot de openbare weg.

Highlights
•Ruime tussenwoning
•Bouwjaar: 1973
•Woonoppervlakte: ca. 122 m²
•Inhoud: ca. 488 m³
•Perceeloppervlakte: 167 m²
•Garage: ca. 16 m² met handige insteekzolder én carport
•Ruime woonkamer met open keuken: samen ca. 44 m²
•5 slaapkamers
•Balkon: ca. 7 m²
•Complete badkamer
•Dakkapel/dakopbouw op de tweede verdieping
•Kozijnen: deels kunststof, deels hout
•Beglazing: HR++ glas in kunststof kozijnen en HR+ glas in houten kozijnen
•Gevelisolatie: HR++ isolatieparels (2018)
•Buitengevel: gereinigd, gehakt, gestraald, opnieuw gevoegd en geïmpregneerd (juni 2022)
•13 zonnepanelen voor een lage energierekening
•Airconditioning: Daikin multisplit (2021)
•Verwarming: Remeha c.v.-combiketel
•Tuin op het zuiden
•Elektrisch bedienbaar zonnescherm
•Fijne, rustige woonomgeving dichtbij alle voorzieningen

Lees de volledige omschrijving

Kenmerken

Overdracht

Status Beschikbaar
Aanvaarding In overleg

Bouwvorm

Soort object Woonhuis
Soort woning Eengezinswoning
Type woning Tussenwoning
Bouwjaar 1973
Bouwvorm Bestaande bouw
Ligging Aan een rustige weg, in een woonwijk

Indeling

Woonoppervlakte 122 m²
Perceeloppervlakte 167 m²
Inhoud 488 m³
Aantal kamers 6
Aantal slaapkamers 5
Aantal woonlagen 3

Energie

Energieklasse B
Energie einddatum zaterdag 3 februari 2035
Isolatie Muurisolatie, dubbel glas
Warmwater Cv ketel
Verwarming Cv ketel, houtkachel

Buitenruimte

Tuin Achtertuin, voortuin
Hoofdtuin Achtertuin
Oppervlakte hoofdtuin 47 m²
Ligging hoofdtuin Zuid
Achterom Ja
Kwaliteit tuin Fraai aangelegd

Bergruimte

Garage Aangebouwd steen
Voorzieningen Elektra, vliering, elektrische deur

Parkeergelegenheid

Voorzieningen Op eigen terrein

Dak

Dak Lessenaardak

Overig

Permanente bewoning Ja
Onderhoud binnen Goed
Onderhoud buiten Goed tot uitstekend
Huidig gebruik Woonruimte
Huidige bestemming Woonruimte

Voorzieningen

Voorzieningen Rolluiken, tv kabel, buitenzonwering, airconditioning, schuifpui, dakraam, zonnepanelen, natuurlijke ventilatie

Kadastrale gegevens

Gemeente Hardinxveld-Giessendam
Sectie H
Perceelnummer 311
Oppervlakte 167 m²
Eigendomssituatie Volle eigendom
v1-20250318-8G0A1608E
Interesse in deze woning?

Leo helpt u graag

Gratis waardebepaling

U denkt erover uw woning te verkopen en wilt graag weten wat het waard is? We komen graag bij u langs en bepalen de waarde van uw woning.

Gratis waardebepaling

Deel deze woning

Uw persoonlijke adviseur in de regio

Maak kennis met de HypotheekWeter

Ligging

Afspraak maken voor een bezichtiging? Neem contact met ons op

Vergelijkbare woningen