0183 - 635011 0183 - 635011 Stel een vraag Stel een vraag
Beschikbaar

Buitendams 131

HARDINXVELD-GIESSENDAM
€ 775.000,- k.k.
  • Woonoppervlakte 150 m2
  • Perceeloppervlakte 254 m2
  • Aantal slaapkamers 3
  • Bouwjaar 1935

Omschrijving

Wonen aan de Giessen: met eigen boot-, vis- en zwemsteiger en directe vaarverbinding naar de Merwede.

Aan de geliefde Buitendams, met de Giessen letterlijk als achtertuin, staat deze bijzondere vrijstaande jaren ’30-dijkwoning waar karakter en modern wooncomfort naadloos samenkomen. In de afgelopen jaren hebben zowel de woning als de tuin een complete en stijlvolle transformatie ondergaan.

Aan de voorzijde prijkt het charmante, oorspronkelijke jaren-dertig dijkhuis met zijn authentieke uitstraling en karaktervolle details. Aan de achterzijde zorgt een strakke, moderne tweelaagse aanbouw (2020), met royale serre en tuinkamer, voor een eigentijdse en lichte woonbeleving.
Het resultaat is een prachtig samenspel van oud en nieuw: twee stijlen die elkaar versterken en samen één harmonieus en stijlvol geheel vormen. Een woning waarin persoonlijke keuzes, hoogwaardige materialen en verfijnd design samenkomen en waar sfeer, comfort en kwaliteit op natuurlijke wijze in balans zijn.

De woning is fraai onder architectuur uitgebouwd en gerenoveerd en combineert authentieke sfeer met modern wooncomfort. Zo beschikt het huis met Energielabel C onder andere over 14 zonnepanelen, HR++ glas en HR++ zonwerende beglazing, drie airco’s en deels vloerverwarming in de serre, badkamer en de tuinkamer.

De royale serre biedt een prachtig panorama over de Giessen en laat binnen en buiten op een natuurlijke manier in elkaar overvloeien. Aan de achterzijde ligt de recent aangelegde, strak vormgegeven tuin over de volledige breedte van het perceel. Hier klopt alles: van de zorgvuldig gekozen materialen en de rust in de lijnen tot de doordachte indeling.
Met onder andere een praktische buitendouche, zwemtrap en een brede aanlegsteiger met beschoeiing, waar met gemak een boot kan aanleggen, ervaar je hier iedere dag het ultieme gevoel van vrijheid en wonen aan het water.

Het schilderachtige riviertje 'De Giessen' slingert door de gemeenten Molenlanden en Hardinxveld-Giessendam en mondt uit in de Merwede. Het water is geliefd bij recreanten: varen, zwemmen, suppen, vissen en in de winter en als het meezit, genieten van een schaatstocht.

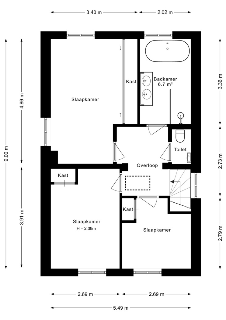
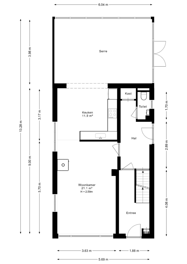
Indeling

Dijkniveau
Entree met meterkast en trapopgang, hal met zij ingang, toilet en vaste kast. Vanuit de hal kom je in de sfeervolle woonkamer met houtkachel en open keuken (ca. 33 m²). Aansluitend bevindt zich de prachtige, in 2020 gerealiseerde serre (ca. 24 m²), maar liefst 6 meter breed en volledig uitgevoerd met zonwerend HR++ glas. Dankzij de openslaande deuren aan de zijkant ontstaat een heerlijk lichte leefruimte waar binnen en buiten naadloos in elkaar overlopen. De stijlvolle cinewall vormt een echte eyecatcher, terwijl het panoramische uitzicht over de tuin en het water elke dag opnieuw voor een bijzonder woongevoel zorgt.

Eerste verdieping
Overloop, separaat toilet en drie slaapkamers. Aan de voorzijde bevinden zich twee slaapkamers, beide voorzien van vaste kastruimte. Aan de achterzijde ligt de royale slaapkamer met een praktische schuifwandkast. Ook beschikt deze kamer over airconditioning wat zorgt voor een extra gevoel van luxe en wooncomfort. Op deze verdieping bevindt zich tevens de in 2024 vernieuwde, stijlvolle badkamer. Wie hier binnenstapt, waant zich even in een luxe boetiekhotel. De badkamer is smaakvol uitgevoerd met een ovaal ligbad met vrijstaande kraan, een dubbel wastafelmeubel, een designradiator en een ruime inloopdouche.

Vliering
Praktische bergzolder, bereikbaar via een vlizotrap, met extra bergruimte en de mogelijkheid tot gebruik als slaapzolder.

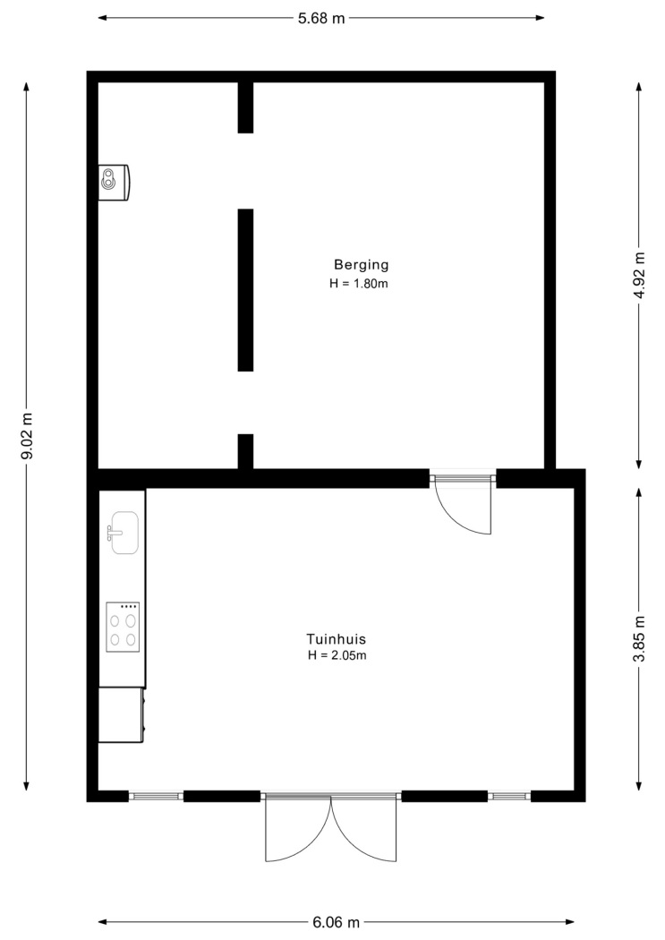
Souterrain / onderhuis
Sfeervolle tuinkamer, in 2020 uitgebouwd, met een moderne keuken en dubbele terrasdeuren die direct toegang geven tot de tuin. Een serene plek waar binnen en buiten op een natuurlijke manier in elkaar overvloeien. Daarnaast bevindt zich hier een praktische berging met de opstelplaats voor de cv-ketel.

Kelder
Uitgegraven kelderruimte (20 m2 - ca. 1,84 m hoog), momenteel ingericht als praktische wasruimte met aansluitingen voor wasmachine en droger.

Een unieke plek waar het karakter van een dijkwoning samenkomt met modern comfort, en waar het water letterlijk deel uitmaakt van het dagelijks leven.

Highlights
•Bouwjaar: 1930-1935
•Woonoppervlakte: ca. 150 m²
•Overige inpandige ruimte: ca. 59 m²
•Perceeloppervlakte: 254 m²
•Energielabel C
•In 2020 gerealiseerde moderne tweelaagse aanbouw met royale serre en tuinkamer
•Goed geïsoleerd met HR++ beglazing en HR++ zonwerend glas
•Volledig dak geïsoleerd en op de bovenverdieping voorzien van geïsoleerde voorzetwanden
•Voorzien van 14 zonnepanelen
•2 Daikin airco’s (verwarmen en koelen)
•Vloerverwarming in de tuinkamer, serre en badkamer
•In 2024 is de bovenverdieping geheel gerenoveerd
•Nieuwe, moderne badkamer: luxe uitgevoerd
•Tuin op het zuiden aan het vaarwater van de Giessen
•Rustige ligging, nabij het centrum van Hardinxveld-Giessendam en met snelle verbindingen richting Gorinchem, Dordrecht en Rotterdam

Lees de volledige omschrijving

Kenmerken

Overdracht

Status Beschikbaar
Aanvaarding In overleg

Bouwvorm

Soort object Woonhuis
Soort woning Eengezinswoning
Type woning Vrijstaande woning
Bouwjaar 1935
Bouwvorm Bestaande bouw
Ligging Aan water, aan een rustige weg, aan vaarwater

Indeling

Woonoppervlakte 150 m²
Perceeloppervlakte 254 m²
Inhoud 575 m³
Aantal kamers 7
Aantal slaapkamers 3
Aantal woonlagen 4

Energie

Energieklasse C
Energie einddatum dinsdag 4 maart 2036
Isolatie Dakisolatie, muurisolatie, hr glas
Warmwater Cv ketel
Verwarming Cv ketel, vloerverwarming gedeeltelijk, houtkachel

Buitenruimte

Tuin Achtertuin
Hoofdtuin Achtertuin
Oppervlakte hoofdtuin 123 m²
Ligging hoofdtuin Zuid
Achterom Ja
Kwaliteit tuin Fraai aangelegd

Bergruimte

Garage Geen garage

Parkeergelegenheid

Voorzieningen Openbaar parkeren

Dak

Dak Zadeldak

Overig

Permanente bewoning Ja
Onderhoud binnen Goed tot uitstekend
Onderhoud buiten Goed tot uitstekend
Huidig gebruik Woonruimte
Huidige bestemming Woonruimte

Voorzieningen

Voorzieningen Mechanische ventilatie, tv kabel, airconditioning, dakraam, zonnepanelen, natuurlijke ventilatie

Kadastrale gegevens

Gemeente Hardinxveld-Giessendam
Sectie E
Perceelnummer 1094
Oppervlakte 160 m²
Eigendomssituatie Volle eigendom
v1-20250318-8G0A1608E
Interesse in deze woning?

Leo helpt u graag

Gratis waardebepaling

U denkt erover uw woning te verkopen en wilt graag weten wat het waard is? We komen graag bij u langs en bepalen de waarde van uw woning.

Gratis waardebepaling

Deel deze woning

Uw persoonlijke adviseur in de regio

Maak kennis met de HypotheekWeter

Ligging

Afspraak maken voor een bezichtiging? Neem contact met ons op

Vergelijkbare woningen