0183 - 635011 0183 - 635011 Stel een vraag Stel een vraag
Verkocht onder voorbehoud

Paulus Potterstraat 2

HARDINXVELD-GIESSENDAM
€ 425.000,- k.k.
  • Woonoppervlakte 106 m2
  • Perceeloppervlakte 230 m2
  • Aantal slaapkamers 3
  • Bouwjaar 1964

Omschrijving

Een huis waar alles klopt: instapklaar, licht en verrassend ruim.

Welkom aan de Paulus Potterstraat 2: een moderne, stijlvol afgewerkte HOEKwoning met een eigen oprit, geschikt voor twee auto’s achter elkaar, direct naast de woning. De gunstige hoekligging zorgt voor extra privacy, veel natuurlijk licht en een heerlijk ruimtelijk woongevoel. Gelegen in een rustige en kindvriendelijke woonwijk van Hardinxveld-Giessendam woon je hier zorgeloos, comfortabel en in een fijne leefomgeving waar je echt tot rust komt.

De woning is met zorg onderhouden en tot in detail afgewerkt. Geen klussen, geen concessies – alleen maar verhuizen en genieten. Met 106 m² woonoppervlakte, een slimme indeling en energiezuinige voorzieningen biedt dit huis alles wat je zoekt. Volledig geïsoleerd, grotendeels voorzien van kunststof kozijnen en uitgerust met HR++ en HR+++ glas, is het klaar voor de toekomst. Vloerverwarming, airconditioning, zonwering en rolluiken zorgen het hele jaar door voor een prettig en constant binnenklimaat.

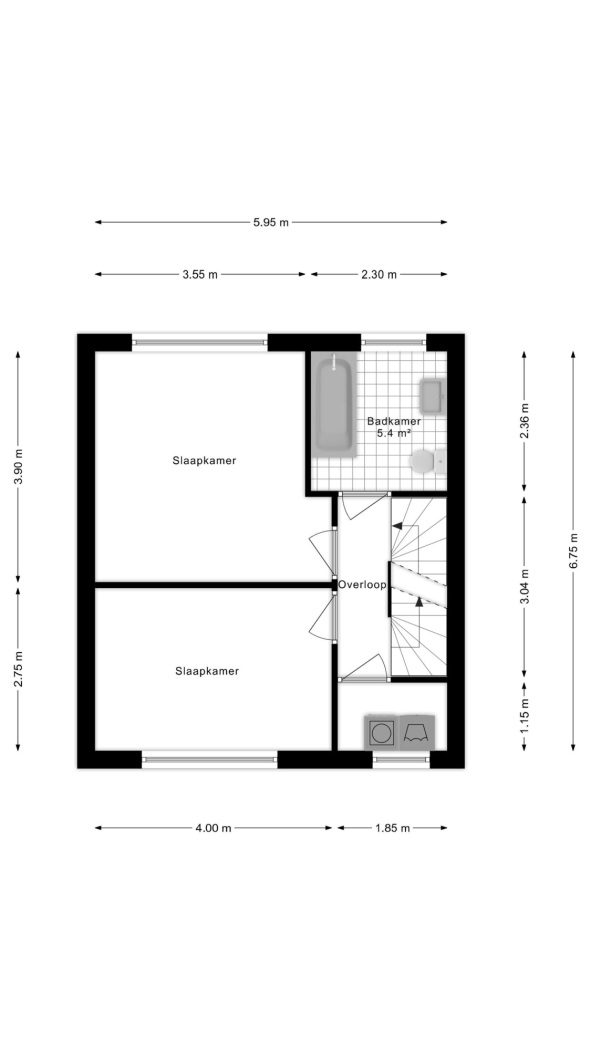
Op de eerste verdieping vind je twee comfortabele slaapkamers, een praktische aparte wasruimte en een stijlvolle badkamer. De tweede verdieping is dankzij de dakopbouw opvallend ruim en biedt een royale voorzolder, ideaal als thuiswerkplek, én een volwaardige derde slaapkamer.

Ook buiten is het heerlijk toeven: de verzorgde tuin met berging en strakke schuttingen vormt een fijne, beschutte plek om tot rust te komen.

Paulus Potterstraat 2 is zo’n woning waar je binnenstapt en denkt: dit is het. Comfortabel, compleet en gelegen op een plek waar je met plezier thuiskomt.

INDELING BEGANE GROND

Welkom: een stijlvolle eerste indruk
De entree zet direct de toon: een moderne hal met visgraatvloer, strakke wanden en stijlvolle deuren. De donkere trap vormt een elegant accent en leidt naar de eerste verdieping. Vanuit de hal bereik je de woonkamer, toiletruimte, meterkast en een praktische trapkast.

Wonen & koken
Via de stijlvolle industriële deur betreed je de lichte, strak afgewerkte woonkamer van ca. 26 m². Grote ramen aan voor- en achterzijde, aangevuld met een zijraam, zorgen voor een open en uitnodigende sfeer.

De indeling is perfect in balans: een gezellige zithoek aan de voorzijde en aan de achterzijde ruimte voor een royale eettafel met zicht op de tuin. De visgraatvloer met vloerverwarming verbindt wonen en koken op elegante wijze en biedt samen met de airconditioning comfort in elk seizoen. Een sfeervolle leefruimte waar licht, stijl en gemak samenkomen.

Keuken: warm en praktisch
De halfopen keuken (ca. 4,8 m²) sluit mooi aan op de woonkamer en is uitgevoerd in een warme, landelijke stijl. De hoekopstelling met granieten werkblad biedt verrassend veel werk- en bergruimte.
De keuken is compleet uitgerust met inbouwapparatuur, waaronder een 4-pits gasfornuis, oven, afzuigkap, koel-/vriescombinatie en vaatwasser. Gelegen aan de achterzijde met prettig zicht op de tuin en directe toegang via de achterdeur: een fijne, functionele keuken met een huiselijke sfeer.

INDELING EERSTE VERDIEPING

2 slaapkamers
Op de eerste verdieping bevinden zich twee goed bemeten slaapkamers, beide prettig van formaat en comfortabel in te richten met een volwaardig bed en kastruimte. Eén slaapkamer ligt aan de voorzijde, de andere aan de achterzijde van de woning, wat zorgt voor een fijne verdeling en extra rust. Ideaal als slaap-, kinder- of logeerkamers.

Wasruimte
Daarnaast is er op deze verdieping een aparte wasruimte aanwezig, een praktische toevoeging die zorgt voor rust en overzicht in het dagelijks leven.

Een functionele en comfortabele verdieping waar slapen, werken en ontspannen moeiteloos samenkomen.

Badkamer: stijlvol ontspannen
De moderne badkamer (ca. 5,4 m²), gelegen aan de achterzijde, is tot in detail verzorgd en straalt rust en luxe uit. Het comfortabele ligbad met douchecombinatie vormt de blikvanger, uitgevoerd met een matzwarte regendouche en kranen voor een eigentijdse uitstraling. Verder beschikt de badkamer over een zwevend toilet en een wastafelmeubel met ronde spiegel. Het grote raam zorgt voor veel daglicht en een frisse, ruimtelijke sfeer. Vloerverwarming maakt het comfort compleet.

INDELING TWEEDE VERDIEPING

De tweede verdieping is dankzij de dakopbouw aanzienlijk vergroot en biedt daardoor verrassend veel extra leefruimte. Bovenaan de trap kom je op een ruime en lichte voorzolder met de opstelplaats van de cv-ketel. Door het royale formaat is deze ruimte uitermate geschikt als thuiswerkplek, hobbyruimte of praktische extra bergruimte.

Aansluitend vind je een volwaardige derde slaapkamer. Door de dakopbouw is dit een lichte en comfortabele kamer met rechte wanden, waardoor de ruimte optimaal is in te richten. Of je deze kamer gebruikt als hoofdslaapkamer, kinderkamer of logeerkamer, hier ervaar je rust, ruimte en een prettig uitzicht.
Deze verdieping voegt niet alleen extra meters toe, maar ook extra flexibiliteit en wooncomfort.

Buitenleven: ruimte, rust en zon
Op een kavel van 230 m² ligt deze verrassend ruime achtertuin: een fijne plek om volop van het buitenleven te genieten. Met een ligging op het zuidoosten en een diepte van bijna 15 meter, is er altijd wel een zonnig of juist beschut plekje te vinden.

De tuin is verzorgd aangelegd met een combinatie van strak tegelwerk en groene accenten, waardoor hij zowel sfeervol als onderhoudsvriendelijk is. Er is alle ruimte voor een loungehoek én een royale eettafel, perfect voor lange zomeravonden of een ontspannen ontbijt in de ochtendzon.

Achterin staat een fraai gepotdekselde berging van zwart hout, ideaal voor opslag, hobby of klusruimte. Aansluitend vind je een zonnig terras van vlonders, omlijst door sfeervolle leibomen. Dankzij de zwarte schuttingdelen geniet je van veel privacy en via de dubbele poort loop je direct naar de oprit naast de woning.

Nieuwsgierig geworden? Kom dan snel zelf de charme en voordelen van dit fijne HOEKhuis ontdekken!

Highlights:
•Karaktervolle hoekwoning uit 1964, grondig gemoderniseerd in 2012–2013 en sindsdien met zorg onderhouden
•Woonoppervlakte ca. 106 m² | Perceeloppervlakte ca. 230 m²
•Parkeren op eigen terrein: ruime oprit direct naast de woning, geschikt voor twee auto’s achter elkaar
•Gelegen in een rustige en kindvriendelijke woonwijk
•Goed onderhouden en instapklaar
•Volledig geïsoleerd en voorzien van HR++ én HR+++ glas
•Energielabel C
•Grotendeels kunststof kozijnen (zij-raam hout)
•Elektra vernieuwd
•Vloerverwarming op de begane grond én in de badkamer
•Lichte woonkamer met grote raampartijen, airconditioning en stijlvolle visgraatvloer
•Halfopen landelijke keuken met inbouwapparatuur en directe toegang tot de tuin
•Drie goed bemeten slaapkamers plus aparte werkkamer
•Dakopbouw op de tweede verdieping, waardoor deze etage aanzienlijk is vergroot
•Moderne badkamer met ligbad/douchecombinatie, toilet, wastafelmeubel en stijlvolle zwarte accenten
•Aparte wasruimte op de eerste verdieping
•Royale, verzorgde achtertuin van ca. 128 m², gunstig gelegen op het zuidoosten
•Multifunctionele berging in de achtertuin
•Voorzien van zonwering en rolluiken

Lees de volledige omschrijving

Kenmerken

Overdracht

Status Verkocht onder voorbehoud
Aanvaarding In overleg

Bouwvorm

Soort object Woonhuis
Soort woning Eengezinswoning
Type woning Hoekwoning
Bouwjaar 1964
Bouwvorm Bestaande bouw
Ligging Aan een rustige weg, in een woonwijk

Indeling

Woonoppervlakte 106 m²
Perceeloppervlakte 230 m²
Inhoud 339 m³
Aantal kamers 5
Aantal slaapkamers 3
Aantal woonlagen 3

Energie

Energieklasse C
Energie einddatum maandag 19 juli 2032
Isolatie Dakisolatie, muurisolatie, vloerisolatie, volledig geïsoleerd, hr glas
Warmwater Cv ketel
Verwarming Cv ketel

Buitenruimte

Tuin Achtertuin, voortuin, zijtuin
Hoofdtuin Achtertuin
Oppervlakte hoofdtuin 128 m²
Ligging hoofdtuin Zuid-oost
Achterom Ja
Kwaliteit tuin Verzorgd

Bergruimte

Garage Geen garage
Schuur / Berging Vrijstaand hout

Parkeergelegenheid

Voorzieningen Openbaar parkeren, op eigen terrein

Dak

Dak Samengesteld dak

Overig

Permanente bewoning Ja
Onderhoud binnen Goed tot uitstekend
Onderhoud buiten Goed tot uitstekend
Huidig gebruik Woonruimte
Huidige bestemming Woonruimte

Voorzieningen

Voorzieningen Mechanische ventilatie, rolluiken, tv kabel, buitenzonwering, airconditioning, dakraam, glasvezel kabel, domotica, natuurlijke ventilatie

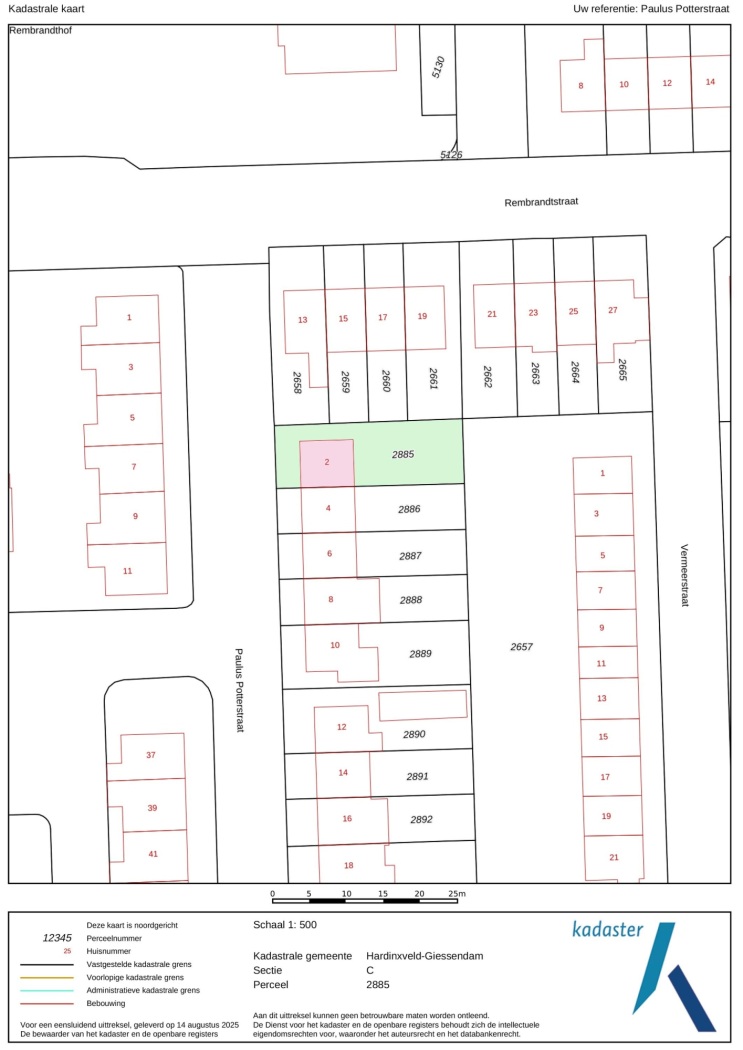
Kadastrale gegevens

Gemeente Hardinxveld-Giessendam
Sectie C
Perceelnummer 2885
Oppervlakte 230 m²
Eigendomssituatie Volle eigendom
v1-20250318-8G0A1608E
Interesse in deze woning?

Leo helpt u graag

Gratis waardebepaling

U denkt erover uw woning te verkopen en wilt graag weten wat het waard is? We komen graag bij u langs en bepalen de waarde van uw woning.

Gratis waardebepaling

Deel deze woning

Uw persoonlijke adviseur in de regio

Maak kennis met de HypotheekWeter

Ligging

Afspraak maken voor een bezichtiging? Neem contact met ons op

Vergelijkbare woningen