0183 - 635011 0183 - 635011 Stel een vraag Stel een vraag
Verkocht onder voorbehoud

Loevesteinlaan 85

GORINCHEM
€ 550.000,- k.k.
  • Woonoppervlakte 140 m2
  • Perceeloppervlakte 113 m2
  • Aantal slaapkamers 5
  • Bouwjaar 2022

Omschrijving

Op zoek naar een jonge, moderne, toekomstgerichte woning waar je zó in kunt? Welkom bij Loevesteinlaan 85: een instapklare tussenwoning uit 2022, tot in de puntjes afgewerkt en helemaal klaar voor de volgende stap.

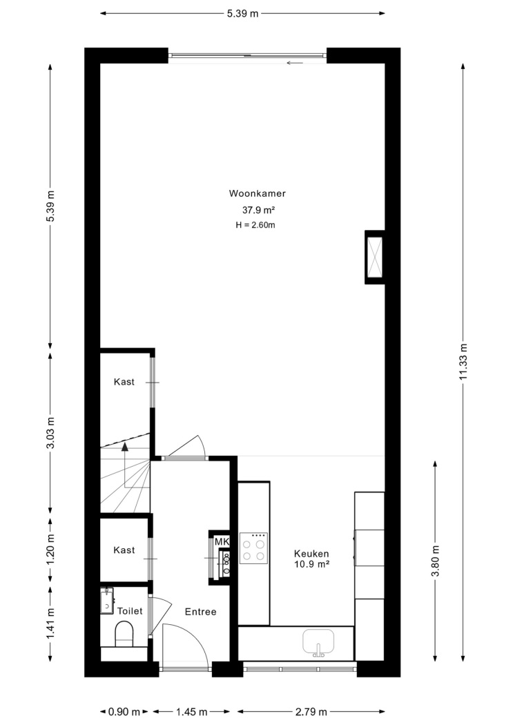
Bij binnenkomst valt direct de ruimte en het licht op. De woonkamer is royaal opgezet en dankzij de grote schuifpui naar de tuin heerlijk licht. In de woonkamer is voldoende ruimte voor een fijn zit- en eethoek, de elektrische haard in het midden zorgt voor warmte en verbondenheid. De schuifdeur maakt de tuin echt onderdeel van de leefruimte: binnen en buiten lopen hier moeiteloos in elkaar over. De open keuken sluit naadloos aan op de woonkamer en is strak en modern uitgevoerd, compleet met alle benodigde inbouwapparatuur én een Quooker. Een fijne plek voor lange diners en gezellige avonden.

De tuin is netjes onderhouden en biedt volop ruimte om te ontspannen. Achterin staat een losstaande houten berging, ideaal voor fietsen, tuinspullen en extra opslag.

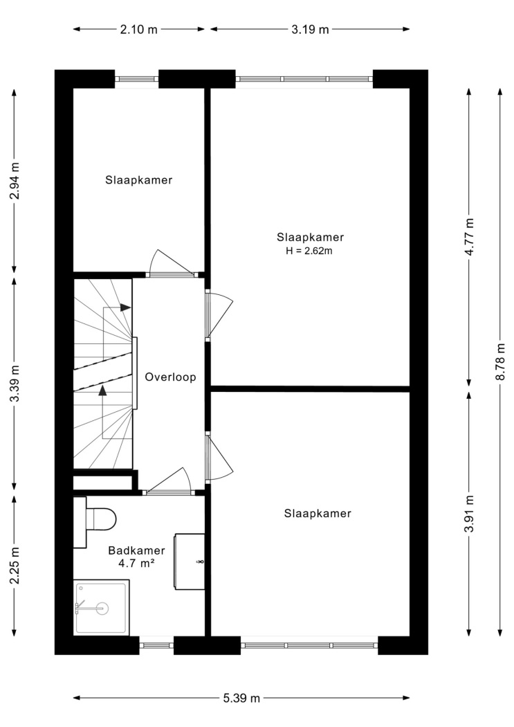
Op de eerste verdieping bevinden zich drie slaapkamers: twee ruime kamers en een kleinere kamer, perfect als werk-, kinder- of kleedkamer. Alle kamers zijn voorzien van grote raampartijen wat zorgt voor een licht en open gevoel. De badkamer is ruim van opzet en luxe afgewerkt met een grote regendouche, wastafel en toilet. Een extra voordeel van deze ruimte is dat de badkamer beschikt over een raam, dit zorgt niet alleen voor daglicht maar ook voor extra ventilatie, en dus extra woongemak. Zowel de begane grond als de eerste verdieping zijn voorzien van comfortabele vloerverwarming, deze kan ook koelen wat in de zomer voor extra wooncomfort zorgt.

De tweede verdieping verrast opnieuw. Hier zijn nog twee slaapkamers te vinden: één ruime en één kleinere, waarbij het hoge dak direct in het oog springt en zorgt voor een indrukwekkend ruimtelijk gevoel. Daarnaast is er een praktische wasruimte met volop extra opbergruimte.

Highlights:
- Woonoppervlakte ca. 140 m²
- Bouwjaar 2022
- Energielabel A+++
- Volledig geïsoleerd
- HR+++ beglazing
- 13 zonnepanelen (eigendom)
- Warmtepomp met boilercombinatie (eigendom)
- Gezellige elektrische haard in de woonkamer
- Vloerverwarming (met koeling) op begane grond en eerste verdieping
- Moderne open keuken met Quooker
- Grote schuifpui richting de tuin
- Goed onderhouden tuin met houten berging
- Glasvezelkabel aanwezig
- Instapklare, moderne afwerking
- Vijf slaapkamers verdeeld over twee verdiepingen
- Openbaar parkeren voor de deur
- Gelegen aan een rustige weg, in een woonwijk met vrij uitzicht
- Dichtbij alle stadse voorzieningen

Wonen aan de rand van het centrum van Gorinchem betekent wonen met karakter, levendigheid én comfort. Gorinchem staat bekend om zijn prachtige vestingstad, historische straatjes en sfeervolle havens. In het centrum vind je een gevarieerd aanbod aan winkels, boetieks, speciaalzaken en gezellige horecagelegenheden, van knusse koffietentjes tot restaurants aan het water.
De stad ademt historie, met de iconische stadswallen, oude stadspoorten en het uitzicht over de Merwede, maar voelt tegelijk modern en levendig aan. Regelmatig zijn er markten, evenementen en culturele activiteiten, wat het centrum een bruisende plek maakt voor jong en oud.
Wonen op deze locatie betekent dat je al dit moois op loop- of fietsafstand hebt, terwijl je thuis geniet van rust en ruimte. Daarbij zijn ook scholen, sportvoorzieningen, openbaar vervoer en uitvalswegen snel bereikbaar. Een ideale woonomgeving voor wie houdt van stadse gezelligheid, zonder in te leveren op wooncomfort.

Kortom: een moderne, energiezuinige en perfect onderhouden woning met verrassend veel ruimte, gelegen in een fijne woonomgeving in Gorinchem. Hier hoef je alleen nog maar je meubels neer te zetten.

Lees de volledige omschrijving

Kenmerken

Overdracht

Status Verkocht onder voorbehoud
Aanvaarding In overleg

Bouwvorm

Soort object Woonhuis
Soort woning Eengezinswoning
Type woning Tussenwoning
Bouwjaar 2022
Bouwvorm Bestaande bouw
Ligging Aan een rustige weg, in een woonwijk, vrij uitzicht, open ligging

Indeling

Woonoppervlakte 140 m²
Perceeloppervlakte 113 m²
Inhoud 508 m³
Aantal kamers 6
Aantal slaapkamers 5
Aantal woonlagen 3

Energie

Energieklasse A+++
Energie einddatum maandag 28 juni 2032
Isolatie Volledig geïsoleerd
Verwarming Vloerverwarming gedeeltelijk

Buitenruimte

Tuin Achtertuin
Hoofdtuin Achtertuin
Oppervlakte hoofdtuin 49 m²
Ligging hoofdtuin Zuid-oost
Achterom Ja
Kwaliteit tuin Verzorgd

Bergruimte

Garage Geen garage
Schuur / Berging Vrijstaand hout

Parkeergelegenheid

Voorzieningen Openbaar parkeren

Dak

Dak Zadeldak

Overig

Permanente bewoning Ja
Onderhoud binnen Goed tot uitstekend
Onderhoud buiten Goed tot uitstekend
Huidig gebruik Woonruimte
Huidige bestemming Woonruimte

Voorzieningen

Voorzieningen Mechanische ventilatie, tv kabel, schuifpui, dakraam, glasvezel kabel, zonnepanelen

Kadastrale gegevens

Gemeente Gorinchem
Sectie F
Perceelnummer 5194
Oppervlakte 113 m²
Eigendomssituatie Volle eigendom
OK-Kopie-van-v1-20250318-8G0A1414
Interesse in deze woning?

Chanel helpt u graag

Gratis waardebepaling

U denkt erover uw woning te verkopen en wilt graag weten wat het waard is? We komen graag bij u langs en bepalen de waarde van uw woning.

Gratis waardebepaling

Deel deze woning

Uw persoonlijke adviseur in de regio

Maak kennis met de HypotheekWeter

Ligging

Afspraak maken voor een bezichtiging? Neem contact met ons op

Vergelijkbare woningen