0183 - 635011 0183 - 635011 Stel een vraag Stel een vraag
Open huis

Koningin Wilhelminastraat 37

ARKEL
€ 385.000,- k.k.
Open huis

Meld u telefonisch aan voor de kijkdag op vrijdag 16 januari 2026 van 13:30 tot 16:30 uur.

  • Woonoppervlakte 97 m2
  • Perceeloppervlakte 130 m2
  • Aantal slaapkamers 4
  • Bouwjaar 1957

Omschrijving

Open Dag | vrijdag 16 januari | 13:30 – 16:30 uur
Ontdek deze woning tijdens ons speciale kijkmoment met persoonlijke bezichtigingen. Bel ons vooraf om je eigen tijdslot te reserveren. Wij ontvangen je graag voor een rustige, ontspannen rondleiding, helemaal afgestemd op jou.

Charmante tussenwoning op een heerlijke plek!

Geen achterburen die meekijken, maar een tuin die grenst aan een waterloop, een fietsdijk én het Merwedekanaal. Alsof je eigen achtertuin doorloopt in de natuur!

De afgelopen jaren is deze woning flink onder handen genomen: 24 zonnepanelen, HR+ beglazing en dus terecht een Energielabel A. Goed voor de wereld én voor je portemonnee.

Aan de voorkant vind je een verzorgde voortuin mét eigen parkeerplek voor de auto – nooit meer eindeloos rondjes rijden op zoek naar een plekje.

Binnen wacht een gezellige woonkamer met uitgebouwde keuken – ideaal voor kookliefhebbers die nét wat extra ruimte willen. Boven zijn er maar liefst vier slaapkamers, waarvan de bovenste een eigen dakopbouw én wastafel heeft (handig voor tieners die hun ‘eigen plek’ willen claimen ).

De badkamer is er eentje om trots op te zijn: modern, compleet met ligbad, stijlvol wastafelmeubel én een tweede toilet.

Kortom: een huis dat niet alleen slim en duurzaam is, maar ook gewoon heel fijn voelt.

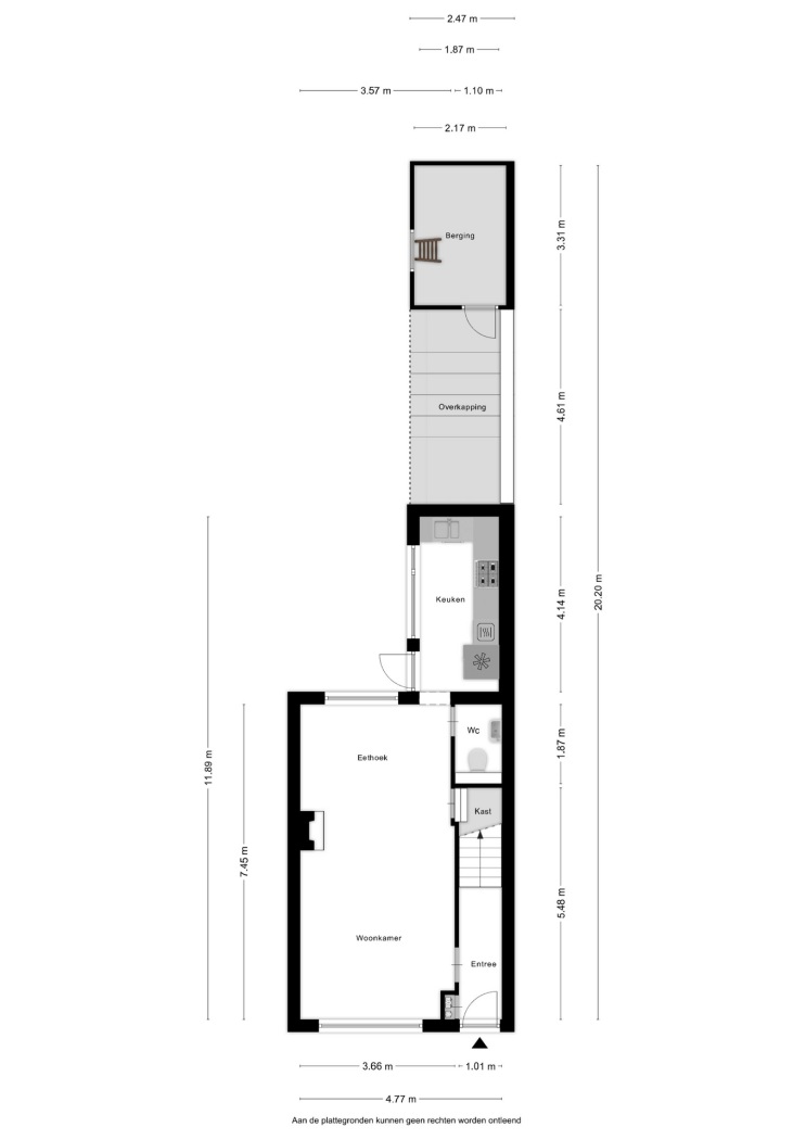
INDELING BEGANE GROND

Welkom!
Je kunt je auto parkeren op eigen terrein, in de voortuin.
Via de hal met meterkast kom je binnen en stap je zo de woonkamer in.

Wonen & Koken
De woonkamer voelt meteen als een plek waar je je thuis voelt. De strakke haard met gaskachel zorgt voor extra sfeer tijdens knusse avonden, terwijl de grote ramen aan de voor- en achterzijde de woonkamer vullen met natuurlijk daglicht en een vrij uitzicht bieden op de speeltuin aan de voorzijde van de woning. De laminaatvloer geeft het geheel een verzorgde uitstraling en voor extra comfort is er airconditioning aanwezig. Handig is ook de trapkast, ideaal voor al die spullen die je liever uit het zicht houdt. Daarnaast vind je op de begane grond een toiletruimte.

De keuken is slim uitgebouwd richting de tuin, met een deur die je zo naar buiten leidt. De L-vormige opstelling maakt koken makkelijk en overzichtelijk. Je hebt alles binnen handbereik: een 4-pits gascomfort, rvs-afzuigkap, oven, magnetron en een Amerikaanse koel-/vriescombinatie met ice & water dispenser — ideaal voor de warme zomerdagen of dat extra blokje ijs in je drankje.

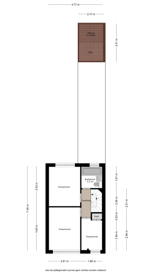
INDELING EERSTE VERDIEPING

Drie slaapkamers
Op de eerste verdieping vind je drie slaapkamers: één aan de achterzijde en twee aan de voorzijde. In één van de kamers is bovendien een praktische vaste kast aanwezig – ideaal voor al je spullen die je liever netjes uit het zicht houdt.

Opfrissen
De moderne badkamer aan de achterzijde is stijlvol én praktisch. Warme beige tegels en vloerverwarming zorgen voor comfort (dag koude voeten!). Het royale ligbad met douchefunctie is ideaal: snel douchen of uitgebreid genieten in bad, jij kiest. Verder vind je er een wastafelmeubel met spiegelkast en een tweede toilet. Kortom: alles wat je nodig hebt om je dag fris te beginnen of ontspannen af te sluiten.

INDELING TWEEDE VERDIEPING

Via een vaste trap bereik je de tweede verdieping. Dankzij de royale, woningbrede dakopbouw is hier een ruime vierde slaapkamer ontstaan, compleet met eigen wastafel. Daarnaast vind je er een praktische kast met de cv-installatie en wasmachineaansluiting. Achter de knieschotten is volop bergruimte aanwezig en de laminaatvloer maakt het geheel netjes af.

Tuin & buitenruimte
De voortuin is volledig bestraat en biedt de mogelijkheid om je auto op eigen terrein te parkeren. De achtertuin, gelegen op het noordwesten, is onderhoudsvriendelijk ingericht en voorzien van bestrating. Direct aan de uitgebouwde keuken bevindt zich een terrasoverkapping van circa 10 m²: een fijne plek om beschut te genieten. Achterin de tuin staat een stenen berging met handige vliering en er is natuurlijk een achterom.
Extra pluspunt: de tuin biedt veel privacy en grenst aan de kanaaldijk bij het Merwedekanaal – een heerlijke plek om even uit te waaien of een ontspannen wandeling te maken.

Highlights
•Bouwjaar: 1957
•Woonoppervlakte: ca. 97 m²
•Perceel: 130 m²
•Parkeren op eigen terrein
•Gezellige woonkamer met uitgebouwde keuken (totaal ca. 36 m²)
•Drie slaapkamers + moderne badkamer op de eerste verdieping
•Vierde slaapkamer op de tweede verdieping dankzij royale dakopbouw
•Duurzaam: 24 zonnepanelen, HR+ beglazing, dak- en vloerisolatie, Energielabel A
•Deels houten, deels kunststof kozijnen
•Comfortabel wonen met c.v.-ketel én airconditioning
•Onderhoudsvriendelijke achtertuin met lounge overkapping, stenen berging en handige vliering
•Duurzaam gemak: Laadpunt voor elektrische auto in de voortuin aanwezig
•Vrije ligging direct aan de kanaaldijk bij het Merwedekanaal – ideaal om te wandelen of te genieten van de rust

Lees de volledige omschrijving

Kenmerken

Overdracht

Status Beschikbaar
Aanvaarding In overleg

Bouwvorm

Soort object Woonhuis
Soort woning Eengezinswoning
Type woning Tussenwoning
Bouwjaar 1957
Bouwvorm Bestaande bouw
Ligging Aan een rustige weg, in een woonwijk

Indeling

Woonoppervlakte 97 m²
Perceeloppervlakte 130 m²
Inhoud 343 m³
Aantal kamers 5
Aantal slaapkamers 4
Aantal woonlagen 3

Energie

Energieklasse A
Energie einddatum dinsdag 31 juli 2035
Isolatie Dakisolatie, vloerisolatie, dubbel glas
Warmwater Cv ketel
Verwarming Cv ketel

Buitenruimte

Tuin Achtertuin, voortuin
Hoofdtuin Achtertuin
Oppervlakte hoofdtuin 45 m²
Ligging hoofdtuin Noord-west
Achterom Ja
Kwaliteit tuin Verzorgd

Bergruimte

Garage Geen garage
Schuur / Berging Vrijstaand steen

Parkeergelegenheid

Voorzieningen Openbaar parkeren, op eigen terrein

Dak

Dak Zadeldak

Overig

Permanente bewoning Ja
Onderhoud binnen Goed tot uitstekend
Onderhoud buiten Goed tot uitstekend
Huidig gebruik Woonruimte
Huidige bestemming Woonruimte

Voorzieningen

Voorzieningen Airconditioning, rookkanaal, zonnepanelen, natuurlijke ventilatie

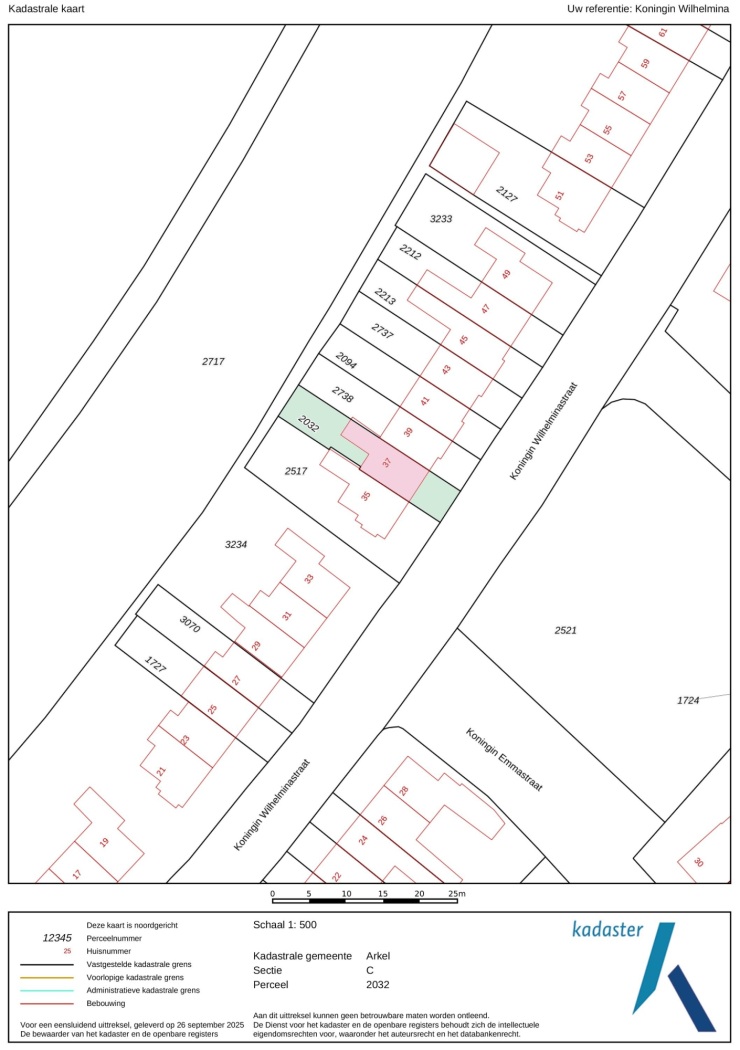
Kadastrale gegevens

Gemeente Arkel
Sectie C
Perceelnummer 2032
Oppervlakte 130 m²
Eigendomssituatie Volle eigendom
v1-20250318-8G0A1573E
Interesse in deze woning?

Robert helpt u graag

Gratis waardebepaling

U denkt erover uw woning te verkopen en wilt graag weten wat het waard is? We komen graag bij u langs en bepalen de waarde van uw woning.

Gratis waardebepaling

Deel deze woning

Uw persoonlijke adviseur in de regio

Maak kennis met de HypotheekWeter

Ligging

Afspraak maken voor een bezichtiging? Neem contact met ons op

Vergelijkbare woningen