0183 - 635011 0183 - 635011 Stel een vraag Stel een vraag
Verkocht onder voorbehoud

Kastanjelaan 40

ARKEL
€ 375.000,- k.k.
  • Woonoppervlakte 98 m2
  • Perceeloppervlakte 106 m2
  • Aantal slaapkamers 3
  • Bouwjaar 1985

Omschrijving

Welkom aan de Kastanjelaan 40: een fijne tussenwoning in een rustige, kindvriendelijke woonwijk aan de rand van Arkel. Hier woon je heerlijk groen en ontspannen, met alle dagelijkse voorzieningen binnen handbereik.

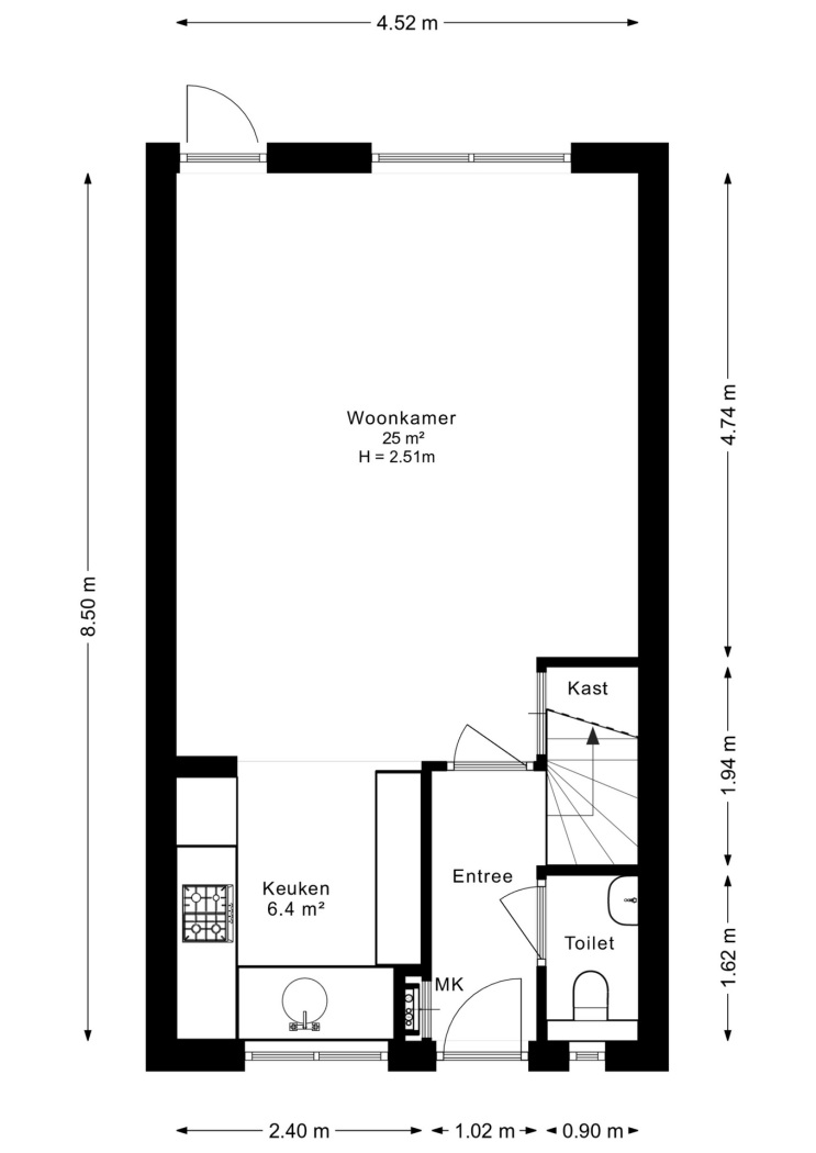
Bij binnenkomst valt direct de prettige lichtinval op. De woonkamer is ruim opgezet en dankzij de grote raampartijen aan zowel de voor- als achterzijde geniet je hier de hele dag van natuurlijk licht. Er is volop ruimte voor een comfortabele zithoek én een gezellige eethoek, waardoor dit een heerlijke plek is om samen te komen.
De open keuken sluit naadloos aan op de woonkamer en is van alle gemakken voorzien. Koken, eten en samenzijn lopen hier moeiteloos in elkaar over. Vanuit de woonkamer heb je toegang tot de diepe achtertuin: een echte plus! Of je nu wilt ontspannen, tuinieren of gezellig buiten wilt eten, hier is ruimte genoeg om het helemaal naar eigen wens in te richten. Achterin de tuin bevind zich een stenen berging, handig voor het opbergen van tuinspullen en het stallen van fietsen. Naast de berging is een overkapping gemaakt waar je heel het jaar door kunt relaxen.

Op de eerste verdieping bevinden zich twee goed bemeten slaapkamers en een complete badkamer. De badkamer is uitgerust met een ligbad, inloopdouche en wastafel, comfortabel en praktisch. De verdieping is voorzien van kunststof kozijnen, wat zorgt voor extra onderhoudsgemak.

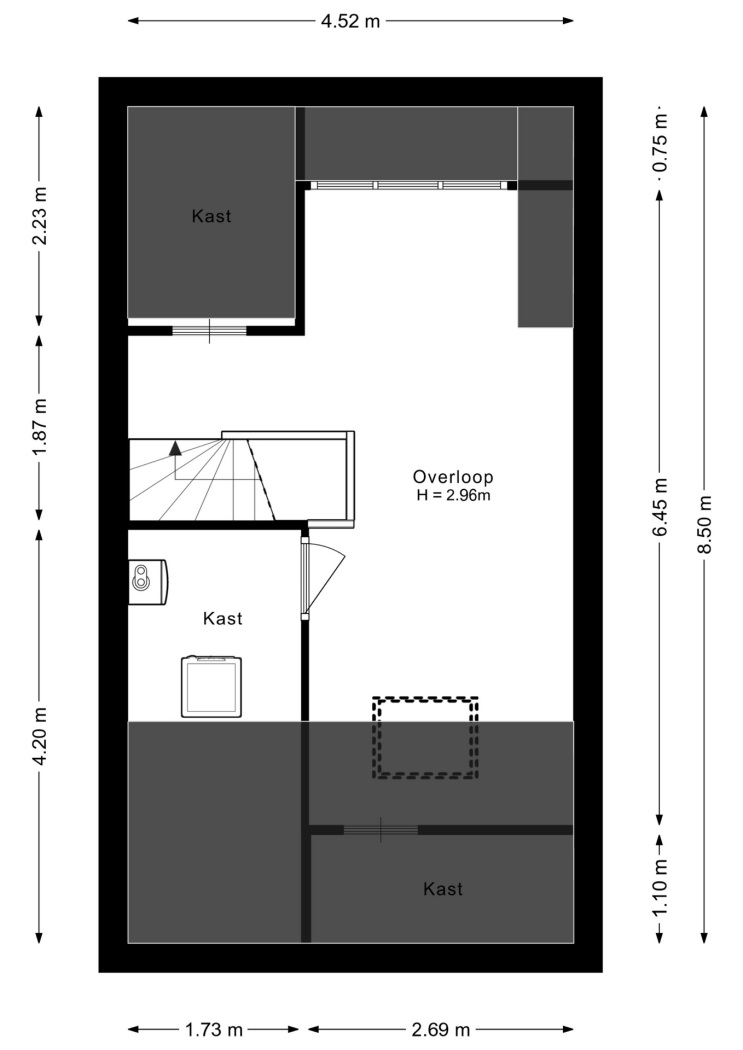
De zolderverdieping, met dakkapel en airconditioning, biedt volop mogelijkheden. Ideaal als extra bergruimte, maar ook zeer geschikt voor het creëren van een extra slaapkamer, werk- of hobbyruimte. Het houten kozijn van het dakraam op zolder us geplaatst in 2022, de dakkapel heeft kunststof kozijnen, wat bijdraagt aan de verzorgde uitstraling van de woning.

Met energielabel A is deze woning bovendien helemaal klaar voor de toekomst. Een fijne combinatie van comfort, ruimte en duurzaamheid op een rustige en groene locatie.

Highlights
* Tussenwoning in rustige, kindvriendelijke woonwijk
* Woonoppervlakte van ca. 98 m2
* Gelegen aan de rand van Arkel, wonen in het groen
* Lichte en ruime woonkamer met grote raampartijen
* Open keuken, volledig uitgerust en praktisch ingedeeld
* Diepe achtertuin met volop mogelijkheden
* 2 goed bemeten slaapkamers op de eerste verdieping
* Badkamer met ligbad, inloopdouche en wastafel
* Zolder met dakkapel en airco, mogelijkheid voor extra slaapkamer
* Kunststof kozijnen op de eerste verdieping
* Houten kozijnen begane grond en zolder, geplaatst in 2022
* Energielabel A: toekomstgericht en energiezuinig wonen

Wonen in Arkel
Wonen in Arkel betekent genieten van rust, ruimte en groen, met alle dagelijkse voorzieningen dichtbij. Dit charmante dorp ligt aan de rivier de Linge en heeft een prettige, dorpse sfeer waar je je snel thuis voelt. Arkel is bij uitstek geschikt voor gezinnen en rustzoekers die comfortabel willen wonen in een groene omgeving.
Het dorp beschikt over diverse voorzieningen zoals winkels, scholen, sportverenigingen en een treinstation met een goede verbinding richting Gorinchem en Dordrecht. Ook met de auto zijn uitvalswegen snel bereikbaar, waardoor je een fijne balans hebt tussen rustig wonen en goede bereikbaarheid.
De omgeving nodigt uit tot wandelen, fietsen en ontspannen in het groen. Tegelijkertijd ligt het gezellige centrum van Gorinchem op korte afstand voor wie graag de levendigheid opzoekt. In Arkel woon je ruim, veilig en kindvriendelijk, met volop aandacht voor kwaliteit van leven.

Kortom: Kastanjelaan 40 is een lichte, energiezuinige tussenwoning met een diepe achtertuin, volop ruimte en mogelijkheden, gelegen in een rustige en groene woonwijk: een heerlijke plek om comfortabel en toekomstgericht te wonen.

Lees de volledige omschrijving

Kenmerken

Overdracht

Status Verkocht onder voorbehoud
Aanvaarding In overleg

Bouwvorm

Soort object Woonhuis
Soort woning Eengezinswoning
Type woning Tussenwoning
Bouwjaar 1985
Bouwvorm Bestaande bouw
Ligging Aan een rustige weg, in een woonwijk, vrij uitzicht

Indeling

Woonoppervlakte 98 m²
Perceeloppervlakte 106 m²
Inhoud 341 m³
Aantal kamers 4
Aantal slaapkamers 3
Aantal woonlagen 3

Energie

Energieklasse A
Energie einddatum zondag 1 juli 2035
Isolatie Muurisolatie, gedeeltelijk dubbel glas
Warmwater Cv ketel
Verwarming Cv ketel

Buitenruimte

Tuin Achtertuin, voortuin
Hoofdtuin Achtertuin
Oppervlakte hoofdtuin 32 m²
Ligging hoofdtuin West
Achterom Ja
Kwaliteit tuin Verzorgd

Bergruimte

Garage Geen garage
Schuur / Berging Vrijstaand steen

Parkeergelegenheid

Voorzieningen Openbaar parkeren

Dak

Dak Zadeldak

Overig

Permanente bewoning Ja
Onderhoud binnen Goed
Onderhoud buiten Goed
Huidig gebruik Woonruimte
Huidige bestemming Woonruimte

Voorzieningen

Voorzieningen Mechanische ventilatie, rolluiken, tv kabel, airconditioning, glasvezel kabel, zonnepanelen

Kadastrale gegevens

Gemeente Arkel
Sectie D
Perceelnummer 362
Oppervlakte 106 m²
Eigendomssituatie Volle eigendom
OK-Kopie-van-v1-20250318-8G0A1414
Interesse in deze woning?

Chanel helpt u graag

Gratis waardebepaling

U denkt erover uw woning te verkopen en wilt graag weten wat het waard is? We komen graag bij u langs en bepalen de waarde van uw woning.

Gratis waardebepaling

Deel deze woning

Uw persoonlijke adviseur in de regio

Maak kennis met de HypotheekWeter

Ligging

Afspraak maken voor een bezichtiging? Neem contact met ons op

Vergelijkbare woningen