0183 - 635011 0183 - 635011 Stel een vraag Stel een vraag
Verkocht onder voorbehoud

Kersendreef 15

ARKEL
€ 400.000,- k.k.
  • Woonoppervlakte 102 m2
  • Perceeloppervlakte 126 m2
  • Aantal slaapkamers 4
  • Bouwjaar 1983

Omschrijving

Je nieuwe favoriete plek!

Wat een heerlijke, rustige en groene omgeving: helemaal autovrij, aan een voetpad en singel, en ook nog eens vlak bij het Merwedekanaal. Hier hoor je de vogels fluiten in plaats van autodeuren dichtklappen.

Ook de ligging van deze tussenwoning is top: lekker dicht bij het dorpscentrum met winkels, scholen, zwembad en voorzieningen binnen handbereik.

Binnen valt meteen op hoeveel licht de woning krijgt: een sfeervolle leefruimte met grote ramen en aan de achterzijde een woningbrede aluminium veranda met zonwering van maar liefst 17 m², zo loopt je woonkamer naadloos over naar buiten!

Boven vind je vier comfortabele slaapkamers en een moderne badkamer waar je dag fris begint (of eindigt).
En dan die tuin... een zonnige topper op het zuidwesten, compleet met stenen berging. Perfect voor de barbecue, een boek of gewoon niks doen.

De woning is grotendeels voorzien van rolluiken, goed geïsoleerd en heeft energielabel B, dus ook je energierekening blijft ontspannen.

Kortom: een heerlijke plek om thuis te komen.

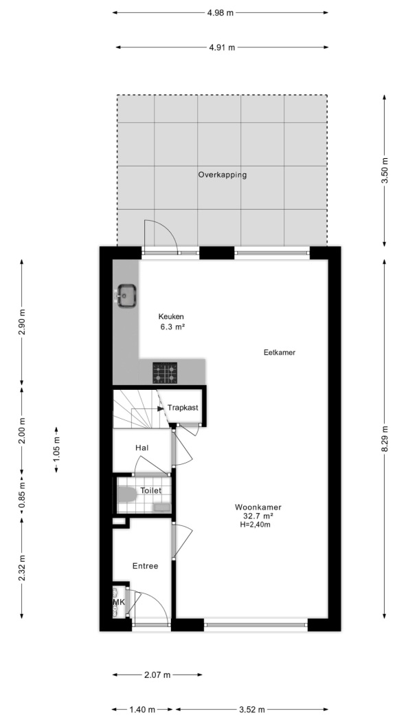
INDELING BEGANE GROND

Welkom
Via de entree met meterkast en een stijlvolle glasdeur met glas-in-lood betreed je de woonkamer.

Wonen & Koken
De lichte woonkamer beschikt over grote raampartijen aan zowel de voor- als achterzijde, waardoor er veel daglicht binnenvalt. Aan de voorzijde bevindt zich het zitgedeelte met uitzicht op de singel, terwijl aan de achterzijde ruimte is voor een eettafel met zicht op de tuin. De houten vloer en de praktische trapkast zorgen voor een warme en functionele leefruimte.

De half open keuken is voorzien van een plavuizenvloer en uitgevoerd in een L-opstelling met houtlook fronten. De keuken beschikt over diverse inbouwapparatuur, waaronder een kookplaat, afzuigkap, combi-oven, koelkast en vaatwasmachine. Vanuit de keuken is er een deur naar de veranda en tuin, wat het binnen- en buitenleven mooi met elkaar verbindt.

Veranda
Vanuit de keuken stap je direct de aluminium veranda op van circa 17 m², een stijlvolle en uitnodigende verlenging van de leefruimte. De geïntegreerde zonwering zorgt ervoor dat je het hele jaar door comfortabel kunt genieten, ongeacht het seizoen. Met de afstandsbediening regel je moeiteloos de stand van de zonwering, per segment of in één vloeiende beweging.
De veranda is afgewerkt met elegante vlonderplanken en stevig verankerd aan de achtergevel, waardoor een beschutte, sfeervolle buitenruimte ontstaat. De ideale plek om te ontspannen, te dineren of simpelweg te genieten van het buitenleven, in elk jaargetijde.

Tussenhal
In de woonkamer bevindt zich een tweede glasdeur met glas-in-lood, die toegang biedt tot de tussenhal met toilet en trapopgang naar de verdieping. De trap is afgewerkt met grijze overzettreden en voorzien van stijlvolle LED-verlichting, wat zorgt voor een moderne uitstraling.

INDELING EERSTE VERDIEPING

Drie slaapkamers
Op de eerste verdieping vind je drie goed bemeten slaapkamers – stuk voor stuk met een eigen karakter. De hoofslaapkamer aan de voorzijde is royaal van formaat, heeft een inloopkast (altijd fijn voor kledingliefhebbers!) en biedt een vrij uitzicht over het groen, de singel en het Merwedekanaal, wakker worden met een uitzicht waar je blij van wordt.

De twee slaapkamers aan de achterzijde zijn ideaal als kinderkamer, logeerkamer of thuiskantoor, wat maar het beste past bij jouw levensstijl.
Alle kamers zijn voorzien van aluminium kozijnen met rolluiken (lekker donker slapen!) en laminaatvloeren die zorgen voor een verzorgde, moderne uitstraling.

Opfrissen
De moderne badkamer aan de voorzijde is de plek waar je de dag stijlvol begint en ontspannen afsluit. Voorzien van een wastafelmeubel met spiegelkast, een kwartronde douchecabine, een tweede toilet en een designradiator die niet alleen zorgt voor warmte, maar ook voor een strakke, eigentijdse look.

INDELING TWEEDE VERDIEPING

Via een vaste trap bereik je de tweede verdieping. De overloop biedt ruimte voor de opstelling van de cv-combiketel en heeft een praktische verhoging met aansluitingen voor de wasmachine en droger – daaronder handig plaats voor de wasmand.

Aansluitend bevindt zich een ruime vierde slaapkamer (of werk-/hobbykamer, wat jij wilt!) met twee dakramen, een laminaatvloer en bergruimte achter de knieschotten. Vanuit de kamer is er bovendien een deur naar een extra bergkast.

Tuin & Buitenruimte
De onderhoudsvriendelijke achtertuin ligt heerlijk op het zuidwesten – dus zon gegarandeerd tot in de avond. Direct aan de woning bevindt zich een veranda met vlonderplanken, een perfecte plek om lekker buiten te zitten, ongeacht het weer. De tuin is fraai aangelegd met sierbestrating in een ronde vorm, groene borders aan beide zijden en schuttingen die zorgen voor optimale privacy. Achter in de tuin vind je een stenen berging voor fietsen en tuingereedschap, en er is een achterom voor extra gemak.

Highlights
•Comfortabel wonen op een groene, rustige locatie nabij het water
•Bouwjaar 1983
•Woonoppervlakte 102 m²
•Perceeloppervlakte 126 m²
•Dubbele beglazing, energielabel B
•Ruime woonkamer met open keuken
•Aluminium veranda/terrasoverkapping aan de achtergevel (ca. 17 m²)
•Eerste verdieping: drie slaapkamers, waarvan één met inloopkast
•Frisse badkamer met toilet, kwartronde douchecabine, wastafelmeubel en designradiator
•Tweede verdieping: vierde slaapkamer met dakramen en extra bergruimte
•Buitenschilderwerk uitgevoerd in 2025
•Voorzien van diverse rolluiken
•Begane grond met houten kozijnen, eerste verdieping met aluminium kozijnen
•Zonnige tuin op het zuidwesten, met veranda en stenen berging
•Groene, rustige ligging aan voetpad en singel, nabij het Merwedekanaal

Lees de volledige omschrijving

Kenmerken

Overdracht

Status Verkocht onder voorbehoud
Aanvaarding In overleg

Bouwvorm

Soort object Woonhuis
Soort woning Eengezinswoning
Type woning Tussenwoning
Bouwjaar 1983
Bouwvorm Bestaande bouw
Ligging Aan water, in een woonwijk, vrij uitzicht

Indeling

Woonoppervlakte 102 m²
Perceeloppervlakte 126 m²
Inhoud 333 m³
Aantal kamers 5
Aantal slaapkamers 4
Aantal woonlagen 3

Energie

Energieklasse B
Energie einddatum zondag 29 december 2030
Isolatie Dubbel glas, volledig geïsoleerd
Warmwater Cv ketel
Verwarming Cv ketel

Buitenruimte

Tuin Achtertuin, voortuin
Hoofdtuin Achtertuin
Oppervlakte hoofdtuin 59 m²
Ligging hoofdtuin Zuid-west
Achterom Ja
Kwaliteit tuin Fraai aangelegd

Bergruimte

Garage Geen garage
Schuur / Berging Vrijstaand steen

Parkeergelegenheid

Voorzieningen Openbaar parkeren

Dak

Dak Zadeldak

Overig

Permanente bewoning Ja
Onderhoud binnen Goed tot uitstekend
Onderhoud buiten Goed tot uitstekend
Huidig gebruik Woonruimte
Huidige bestemming Woonruimte

Voorzieningen

Voorzieningen Mechanische ventilatie, rolluiken, tv kabel, dakraam, natuurlijke ventilatie

Kadastrale gegevens

Gemeente Arkel
Sectie D
Perceelnummer 433
Oppervlakte 126 m²
Eigendomssituatie Volle eigendom
v1-20250318-8G0A1573E
Interesse in deze woning?

Robert helpt u graag

Gratis waardebepaling

U denkt erover uw woning te verkopen en wilt graag weten wat het waard is? We komen graag bij u langs en bepalen de waarde van uw woning.

Gratis waardebepaling

Deel deze woning

Uw persoonlijke adviseur in de regio

Maak kennis met de HypotheekWeter

Ligging

Afspraak maken voor een bezichtiging? Neem contact met ons op

Vergelijkbare woningen