0183 - 635011 0183 - 635011 Stel een vraag Stel een vraag
Verkocht onder voorbehoud

Keierskant 15

LEERDAM
€ 725.000,- k.k.
  • Woonoppervlakte 159 m2
  • Perceeloppervlakte 277 m2
  • Aantal slaapkamers 5
  • Bouwjaar 2016

Omschrijving

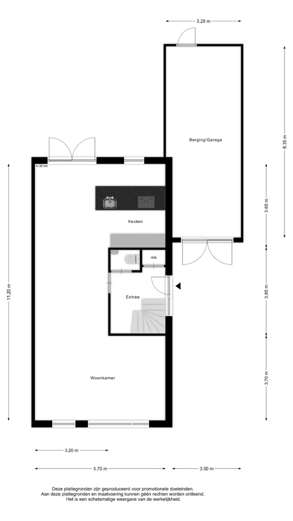
Ruime twee-onder-een-kapwoning met oprit, garage en volop leefruimte

In een rustige en prettige woonwijk van Leerdam staat deze fijne twee-onder-een-kapwoning met een verrassend ruime indeling en veel comfort. Dankzij de royale oprit en de ligging op de hoek van het perceel beschikt de woning over zowel een zij- als achtertuin, wat zorgt voor extra privacy en buitenruimte.

De begane grond voelt direct licht en ruim aan. De woonkamer biedt meer dan genoeg plek voor een royale zithoek, terwijl de eethoek de keuken en woonruimte op een natuurlijke manier met elkaar verbindt. Hierdoor ontstaat een open en gezellig geheel, ideaal voor zowel het dagelijks leven als voor het ontvangen van gasten.?
De moderne open keuken is strak uitgevoerd en voorzien van een spoel- en kookeiland en alle benodigde inbouwapparatuur. Via de openslaande deuren stap je zo de verzorgde achtertuin in, waar voldoende ruimte is voor een ontspannen zitplek om heerlijk van buiten te genieten.

Aan de woning vast bevindt zich een praktische garage/berging. Deze ruimte biedt volop mogelijkheden: van extra opslag tot het binnen parkeren van de auto of het creëren van een hobbyruimte.

Op de eerste verdieping zijn drie goed bemeten slaapkamers te vinden. De hoofdslaapkamer is extra comfortabel dankzij de ruime inloopkast, wat zorgt voor een luxe hotelgevoel. De badkamer is royaal en stijlvol afgewerkt en beschikt over een ligbad, inloopdouche, wastafel en toilet.

De tweede verdieping verrast met nog eens twee extra (slaap)kamers, ideaal als werk-, hobby- of logeerruimte. Daarnaast bevindt zich hier de technische ruimte met plek voor de wasmachine.

Highlights
* Bouwjaar 2016
* Woonoppervlakte ca. 159 m²
* Energielabel A+
* Voorzien van 16 zonnepanelen
* HR+++ beglazing
* Dak- en vloerisolatie
* Glasvezelkabel aanwezig
* Ruime, lichte woonkamer
* Moderne open keuken met kook- en spoeleiland
* Luxe, ruime badkamer
* Vijf slaapkamers met diverse mogelijkheden
* Hoofdslaapkamer met inloopkast
* Extra vliering voor opbergruimte
* Openslaande deuren naar de goed onderhouden achtertuin
* Ruime oprit en aangebouwde garage/berging
* Parkeren op eigen terrein
* Open ligging met vrij uitzicht
* Gelegen in een rustige woonwijk
* Aan de rand van Leerdam
* Dichtbij uitvalswegen A15 & A27
* Station Leerdam op fietsafstand

Wonen in Leerdam betekent genieten van een fijne combinatie van rust, historie en goede voorzieningen. De stad staat bekend om haar rijke glasgeschiedenis, gezellige centrum en prettige dorpssfeer, terwijl je toch profiteert van stedelijke gemakken. In het centrum vind je een gevarieerd aanbod aan winkels, supermarkten, horecagelegenheden en scholen.
Leerdam is bovendien gunstig gelegen met goede verbindingen richting Gorinchem, Utrecht en ’s-Hertogenbosch, zowel met de auto als het openbaar vervoer. De groene omgeving langs de Linge en in de nabijgelegen natuur nodigt uit tot wandelen, fietsen en ontspannen buiten. Dit maakt Leerdam een geliefde woonplaats voor gezinnen, stellen en iedereen die comfortabel wil wonen in een rustige, goed bereikbare omgeving.

Kortom: Keierskant 15 is een complete, ruime en comfortabele gezinswoning op een rustige locatie, met veel binnen- én buitenruimte en alle ingrediënten voor jarenlang woonplezier.

Lees de volledige omschrijving

Kenmerken

Overdracht

Status Verkocht onder voorbehoud
Aanvaarding In overleg

Bouwvorm

Soort object Woonhuis
Soort woning Eengezinswoning
Type woning Twee onder één kapwoning
Bouwjaar 2016
Bouwvorm Bestaande bouw
Ligging Aan een rustige weg, in een woonwijk, vrij uitzicht, open ligging

Indeling

Woonoppervlakte 159 m²
Perceeloppervlakte 277 m²
Inhoud 679 m³
Aantal kamers 6
Aantal slaapkamers 5
Aantal woonlagen 3

Energie

Energieklasse A+
Energie einddatum zaterdag 2 februari 2036
Isolatie Dakisolatie, vloerisolatie
Warmwater Cv ketel
Verwarming Cv ketel

Buitenruimte

Tuin Achtertuin, zijtuin
Hoofdtuin Achtertuin
Oppervlakte hoofdtuin 60 m²
Achterom Nee
Kwaliteit tuin Verzorgd

Bergruimte

Garage Aangebouwd steen
Schuur / Berging Aangebouwd steen
Voorzieningen Verwarming, elektra

Parkeergelegenheid

Voorzieningen Op eigen terrein

Dak

Dak Schilddak

Overig

Permanente bewoning Ja
Onderhoud binnen Goed tot uitstekend
Onderhoud buiten Goed tot uitstekend
Huidig gebruik Woonruimte
Huidige bestemming Woonruimte

Voorzieningen

Voorzieningen Mechanische ventilatie, tv kabel, buitenzonwering, dakraam, glasvezel kabel, zonnepanelen

Kadastrale gegevens

Gemeente Leerdam
Sectie K
Perceelnummer 767
Oppervlakte 277 m²
Eigendomssituatie Volle eigendom
v1-20250318-8G0A1573E
Interesse in deze woning?

Robert helpt u graag

Gratis waardebepaling

U denkt erover uw woning te verkopen en wilt graag weten wat het waard is? We komen graag bij u langs en bepalen de waarde van uw woning.

Gratis waardebepaling

Deel deze woning

Uw persoonlijke adviseur in de regio

Maak kennis met de HypotheekWeter

Ligging

Afspraak maken voor een bezichtiging? Neem contact met ons op

Vergelijkbare woningen