0183 - 635011 0183 - 635011 Stel een vraag Stel een vraag
Verkocht

Glasblazerstraat 21

LEERDAM
€ 625.000,- k.k.
  • Woonoppervlakte 132 m2
  • Aantal slaapkamers 2
  • Bouwjaar 2003

Omschrijving

Open dag | woensdag 24 september tussen 13:30 en 17:00 uur
Kom kijken tijdens ons kijkmoment met individuele bezichtigingen.
Bel ons vooraf voor een tijdslot – we laten je dit fijne penthouse graag zien tijdens een persoonlijke en ontspannen rondleiding!

Gelijkvloers wonen met klasse (én lift!) – welkom in Leerdam!

Wil je wonen op een plek waar ruimte, gemak en gezelligheid elkaar vinden? Dan is dit frisse 3-kamer penthouse op de bovenste (4e) verdieping van het charmante complex De Glasblazerstraat 1-23 in Ter Leede misschien wel liefde op het eerste gezicht.

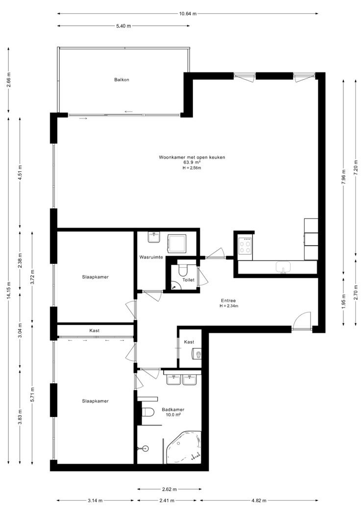
Stap binnen in de royale woonkamer van 64 m² – een zee van licht door de vele ramen, twee Franse balkons én een schuifpui die je rechtstreeks naar je zonnige balkon met groen uitzicht brengt. Hier geniet je van een kop koffie in de ochtendzon of een goed glas wijn bij de avondzon (want hé, Leerdam is niet voor niets dé glasstad).

De keuken? Fraai ingedeeld en voorzien van apparatuur, zodat je in no-time een sterrenmaaltijd (of gewoon een tosti) op tafel zet. Daarnaast vind je twee slaapkamers, waaronder een masterbedroom met directe toegang tot de comfortabele badkamer. Verder is er een apart gastentoilet en een handige berging/wasruimte.

En dat is nog niet alles: beneden beschik je over een royale privé-berging in het souterrain. Het complex is keurig onderhouden, met elektrische deuren en natuurlijk die fijne lift.

De ligging? Ideaal! Op loopafstand van het station én het centrum van Leerdam – alles binnen handbereik.

Kortom: dit appartement is niet alleen toekomstgericht, maar ook gewoon een heerlijke plek om nú al van te genieten.

INDELING

Begane grond
We beginnen beneden: een afgesloten entree met videofooninstallatie (je hoeft dus nooit meer op goed geluk open te doen), brievenbussen, lift en trappenhuis. De gemeenschappelijke ruimtes zijn keurig onderhouden en hebben volledig elektrische deuren – makkelijk én toekomstbestendig.

Vierde verdieping
Via de gemeenschappelijke hal met meterkast kom je bij je eigen entree. Binnen leidt de gang je naar alle woon- en slaapvertrekken.

Woonkamer
Hier klopt het hart van het appartement: een royale woonkamer van maar liefst 64 m². Dankzij de twee Franse balkons, diverse ramen en aluminium kozijnen baadt de ruimte in het licht. Een gezellige sierhaard zorgt voor sfeer, en via de schuifpui stap je zo op je zonnige balkon op het zuidoosten, mét uitzicht op groen. In de hoek vind je de nette halfopen keuken, compleet met alle gewenste inbouwapparatuur. De lichte plavuizen met vloerverwarming maken het plaatje helemaal af.

Bijkeuken & c.v.-kast
Praktisch gemak ontbreekt hier niet: in de hal vind je een kast met HR-combiketel én een aparte, betegelde bijkeuken met witgoedaansluitingen, uitstortgootsteen en extra bergruimte. Handig toch?

Slaapkamers
De masterbedroom is een fijne plek om tot rust te komen, met een grote 4-deurs schuifwandkast, twee lichtramen en directe toegang tot de badkamer. De tweede slaapkamer is ideaal als logeerkamer, werkplek of hobbyruimte – jouw keuze.

Badkamer
De badkamer (ca. 10 m²) is een waar wellnesshoekje: geheel betegeld en voorzien van een hoekligbad, inloopdouche, tweede zwevend toilet, dubbele wastafel én een hoge badkamerkast. Uiteraard ook hier comfortabele vloerverwarming, want koude voeten zijn nergens voor nodig.

Berging
Tot slot is er in het souterrain een royale privé berging van ca. 18 m² – perfect voor de fietsen, kerstspullen en alles waar je boven liever niet tegenaan kijkt.

Even de pluspunten op een rij:
•Ruim 3-kamer penthouse – geheel gelijkvloers en natuurlijk bereikbaar met de lift
•Bouwjaar 2003 – modern en goed onderhouden
•Woonoppervlakte ca. 132 m² – volop leefruimte
•Royale woonkamer van 64 m² met veel lichtinval en toegang tot een balkonterras
•2 slaapkamers, waarvan één met directe toegang tot de badkamer
•Badkamer ca. 10 m² – compleet, modern en voorzien van o.a. hoekligbad, inloopdouche, dubbele wastafel en vloerverwarming
•Handige c.v.-kast + aparte bijkeuken/wasruimte met gootsteen en extra bergruimte
•Privéberging van 18 m² in het souterrain
•Zonnepanelen op het dak – leveren stroom voor de gemeenschappelijke voorzieningen
•Tegelvloer met vloerverwarming in een groot deel van het appartement en deels radiatoren
•De maandelijkse bijdrage aan de VvE bedraagt circa € 228,-
•Elektrische installatie bevindt zich in de portiek, netjes en praktisch geregeld
•Toplocatie: op loopafstand van het station én het gezellige centrum van glasstad Leerdam
•Voor dit appartement geldt een niet-bewonersclausule

Lees de volledige omschrijving

Kenmerken

Overdracht

Status Verkocht
Aanvaarding In overleg

Bouwvorm

Soort object Appartement
Bouwjaar 2003
Bouwvorm Bestaande bouw
Ligging Aan een rustige weg, in een woonwijk, vrij uitzicht

Indeling

Woonoppervlakte 132 m²
Inhoud 405 m³
Aantal kamers 3
Aantal slaapkamers 2
Aantal woonlagen 1

Energie

Energieklasse B
Energie einddatum dinsdag 12 november 2030
Isolatie Volledig geïsoleerd
Warmwater Cv ketel
Verwarming Cv ketel, vloerverwarming gedeeltelijk

Buitenruimte

Tuin Geen tuin
Achterom Nee

Bergruimte

Garage Geen garage
Schuur / Berging Box

Parkeergelegenheid

Voorzieningen Parkeervergunningen

Dak

Dak Plat dak

Overig

Permanente bewoning Ja
Onderhoud binnen Uitstekend
Onderhoud buiten Uitstekend
Huidig gebruik Woonruimte
Huidige bestemming Woonruimte

Voorzieningen

Voorzieningen Mechanische ventilatie, tv kabel, schuifpui, frans balkon, zonnepanelen, natuurlijke ventilatie

Kadastrale gegevens

Gemeente Leerdam
Sectie B
Perceelnummer 10955
Eigendomssituatie Volle eigendom
OK-Kopie-van-v1-20250318-8G0A1414
Interesse in deze woning?

Chanel helpt u graag

Gratis waardebepaling

U denkt erover uw woning te verkopen en wilt graag weten wat het waard is? We komen graag bij u langs en bepalen de waarde van uw woning.

Gratis waardebepaling

Deel deze woning

Uw persoonlijke adviseur in de regio

Maak kennis met de HypotheekWeter

Ligging

Afspraak maken voor een bezichtiging? Neem contact met ons op

Vergelijkbare woningen