0183 - 635011 0183 - 635011 Stel een vraag Stel een vraag
Verkocht

Kapitein 4

GORINCHEM
€ 695.000,- k.k.
  • Woonoppervlakte 132 m2
  • Perceeloppervlakte 278 m2
  • Aantal slaapkamers 3
  • Bouwjaar 2019

Omschrijving

Modern wonen aan het water in Hoog Dalem

Duurzaam, licht en verrassend ruim – dit huis heeft het allemaal.

Deze stijlvolle twee-onder-één-kapwoning ligt direct aan het water in de gewilde wijk Hoog Dalem (De Eilanden). Gebouwd in 2019 met uitstekende isolatie, HR++-beglazing, 12 zonnepanelen, vloerverwarming én -koeling in de hele woning en een warmtepomp met twee eigen bodembronnen. Met parkeergelegenheid voor meerdere auto’s op de oprit en een handige achterom geniet je volop van de groene tuin aan het water.

Highlights
Bouwjaar 2019
Energielabel A
Uitstekend geïsoleerd + HR++-glas
Warmtepomp met twee eigen bodembronnen
vloerverwarming én -koeling door de gehele woning, inclusief de garage
12 zonnepanelen
Woonkamer ca. 36,1 m²
Keuken ca. 10,2 m²
Prachtige ligging aan het water
Oprit met plek voor meerdere auto’s
Achterom naar de tuin

Indeling

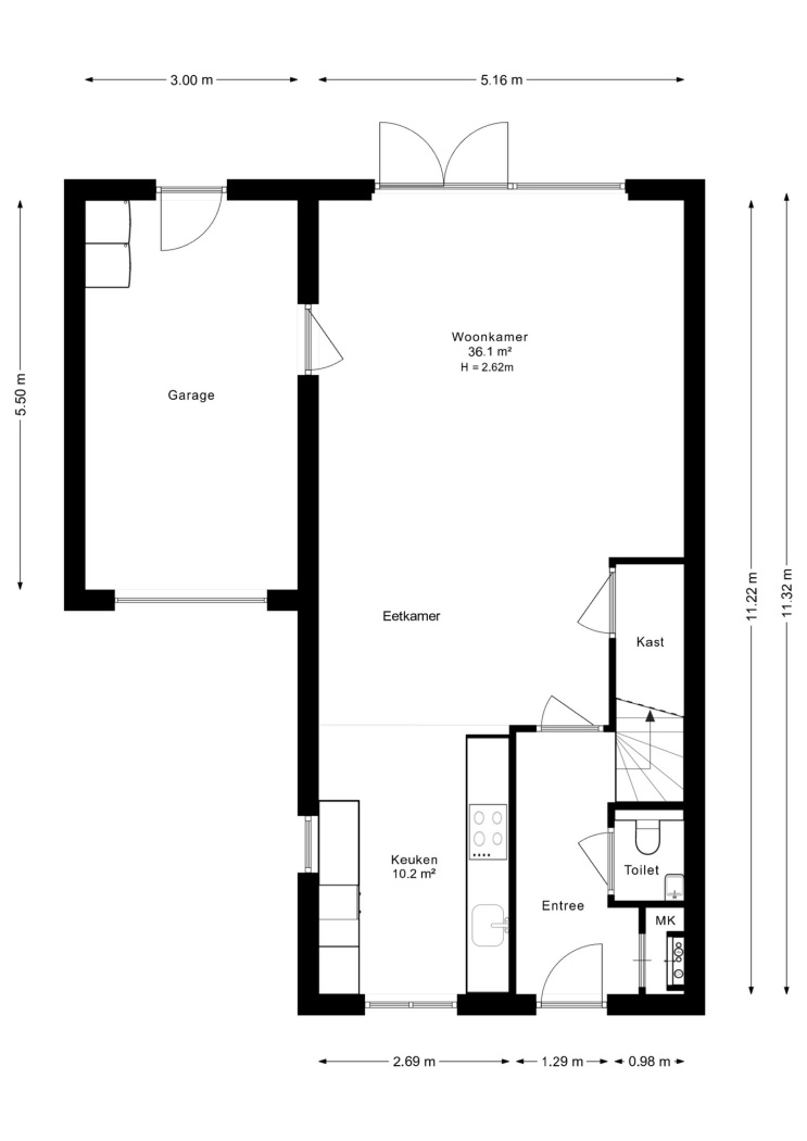
Begane grond
Je komt binnen in de hal met toilet, meterkast en de trapopgang. Vanuit hier stap je direct de leefruimte binnen.

Woonkamer
De tuingerichte woonkamer van 36,1 m² is ruim, licht en sluit perfect aan op de tuin. Dankzij de openslaande deuren loopt het binnen- en buitenleven vloeiend in elkaar over. De ruimte biedt plek voor een royale zithoek én een eettafel. Een praktische trap-/bergkast zorgt voor extra opbergruimte. Bovendien is er een deur naar de garage, waardoor je eenvoudig binnendoor toegang hebt. De woonkamer is daarmee niet alleen groot, maar ook verrassend praktisch en comfortabel in gebruik.

Keuken
Aan de voorzijde ligt de moderne open keuken met volop werk- en bergruimte. Grote ramen aan de voor- en zijkant zorgen voor een zee aan daglicht. De keuken staat in open verbinding met de woonkamer, met direct ernaast ruimte voor een royale eethoek. Koken en tafelen gaan hier moeiteloos samen – perfect voor lange avonden met familie of vrienden.

Garage
De aangebouwde garage is geïsoleerd, voorzien van vloerverwarming en vloerkoeling en daardoor het hele jaar door comfortabel in gebruik. Deze multifunctionele ruimte is ideaal als berging, klus-/hobbyruimte of sportplek. Via een loopdeur is de fijne tuin bereikbaar.

Tuin

Achter de openslaande deuren ligt het terras waar je heerlijk kunt zitten. De tuin is groen en sfeervol aangelegd met diverse beplanting en ligt aan het water, met vrij zicht op een groen eilandje. Dankzij de achterom en de doorgang langs de zijkant is de tuin ook praktisch bereikbaar. De combinatie van water en groen zorgt voor een intieme, ontspannen sfeer.

Eerste verdieping
Overloop met toegang tot drie ruime slaapkamers (twee aan de achterzijde, één aan de voorzijde). Alle kamers zijn netjes afgewerkt en dankzij de rechte gevels uitstekend in te richten – slapen, werken of spelen: het kan allemaal. De badkamer is verzorgd ingericht met wastafelmeubel, toilet en inloopdouche. Ook op deze verdieping: vloerverwarming én -koeling voor gelijkmatig comfort.

Tweede verdieping
Een royale, hoge zolder met twee grote dakramen en een extra zijraam maakt deze etage tot een heerlijk flexibele ruimte. Nu in gebruik als hobbykamer, maar eenvoudig in te delen als extra (slaap-/werk)kamer. Hier vind je ook de wasmachine-aansluiting en de technische installaties. De oppervlakte biedt volop mogelijkheden.

Wonen in Hoog Dalem – De Eilanden

De Eilanden is groen, ruimtelijk en ligt direct aan het water. De buurt is prettig voor wie rust zoekt, maar wel dicht bij voorzieningen wil wonen. Op korte afstand vind je scholen (waaronder de brede school Dalemplein), kinderopvang en zorg. In 10 minuten fiets je naar het sfeervolle, historische centrum van Gorinchem – één van de mooiste vestingsteden van Nederland. Tussen de ‘forten’ van de nieuwbouwwijk liggen besloten buurtjes, veel groen en speelplekken. Brede lanen met hagen en singelbeplanting geven de wijk een landelijke, lommerrijke uitstraling.

Bereikbaarheid – Gorinchem als ideale uitvalsbasis
Gorinchem ligt strategisch op het knooppunt van de A15 en A27. Rotterdam, Utrecht, ’s-Hertogenbosch en Breda zijn binnen circa een half uur te bereiken. Ook het openbaar vervoer is uitstekend geregeld met trein- en busverbindingen, en via de moderne passantenhaven is de stad zelfs goed over water bereikbaar.

Kortom
Een moderne, energiezuinige 2-onder-1-kap aan het water, met volop leefruimte, parkeergelegenheid op eigen erf en een heerlijke tuin. Klaar voor jarenlang comfortabel wonen in Hoog Dalem.

Lees de volledige omschrijving

Kenmerken

Overdracht

Status Verkocht
Aanvaarding In overleg

Bouwvorm

Soort object Woonhuis
Soort woning Eengezinswoning
Type woning Twee onder één kapwoning
Bouwjaar 2019
Bouwvorm Bestaande bouw
Ligging Aan water, aan een rustige weg, in een woonwijk, open ligging

Indeling

Woonoppervlakte 132 m²
Perceeloppervlakte 278 m²
Inhoud 544 m³
Aantal kamers 5
Aantal slaapkamers 3
Aantal woonlagen 3

Energie

Energieklasse A
Energie einddatum zondag 21 oktober 2029
Isolatie Volledig geïsoleerd
Verwarming Vloerverwarming geheel

Buitenruimte

Tuin Achtertuin, voortuin, zijtuin
Hoofdtuin Achtertuin
Oppervlakte hoofdtuin 103 m²
Ligging hoofdtuin Noord-oost
Achterom Ja
Kwaliteit tuin Verzorgd

Bergruimte

Garage Aangebouwd steen
Voorzieningen Elektra

Parkeergelegenheid

Voorzieningen Openbaar parkeren, op eigen terrein

Dak

Dak Zadeldak

Overig

Permanente bewoning Ja
Onderhoud binnen Uitstekend
Onderhoud buiten Uitstekend
Huidig gebruik Woonruimte
Huidige bestemming Woonruimte

Voorzieningen

Voorzieningen Mechanische ventilatie, dakraam, zonnepanelen, natuurlijke ventilatie

Kadastrale gegevens

Gemeente Gorinchem
Sectie P
Perceelnummer 2510
Oppervlakte 278 m²
Eigendomssituatie Volle eigendom
v1-20250318-8G0A1573E
Interesse in deze woning?

Robert helpt u graag

Gratis waardebepaling

U denkt erover uw woning te verkopen en wilt graag weten wat het waard is? We komen graag bij u langs en bepalen de waarde van uw woning.

Gratis waardebepaling

Deel deze woning

Uw persoonlijke adviseur in de regio

Maak kennis met de HypotheekWeter

Ligging

Afspraak maken voor een bezichtiging? Neem contact met ons op

Vergelijkbare woningen