0183 - 635011 0183 - 635011 Stel een vraag Stel een vraag
Beschikbaar

Jip en Janneke 8

GORINCHEM
€ 595.000,- k.k.
  • Woonoppervlakte 161 m2
  • Perceeloppervlakte 193 m2
  • Aantal slaapkamers 3
  • Bouwjaar 1997

Omschrijving

Welkom aan Jip en Janneke 8 in Gorinchem, een verrassend ruime en speels ingedeelde drive-inwoning met meerdere woonlagen, volop lichtinval en een prachtige ligging aan het water. Deze woning biedt een unieke combinatie van praktisch wonen, open leefruimtes en fijne buitenruimtes. Met onder andere een royale garage, meerdere woonkamers, drie slaapkamers, een complete badkamer én een tuin aan het water is dit een huis waar ruimte, comfort en woonplezier centraal staan.

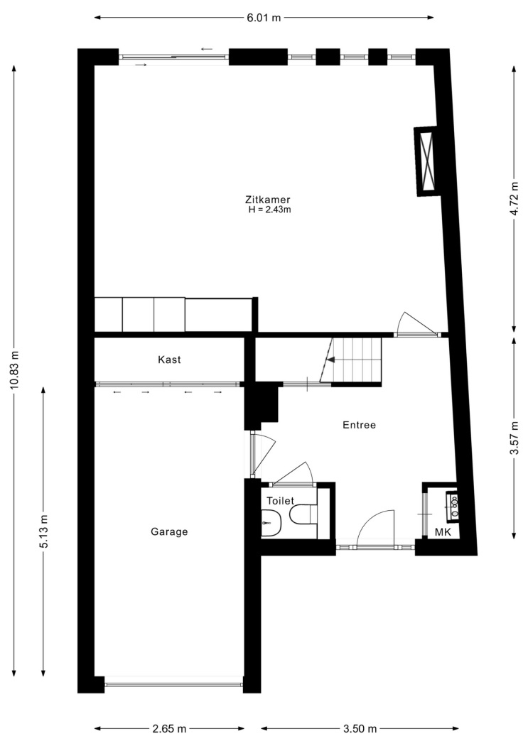
Entree & begane grond
Via de entree kom je binnen op de begane grond. In de hal bevinden zich het separaat toilet, de trapopgang en toegang tot de ruime garage, ideaal voor parkeren, opslag of hobby’s. Aan de achterzijde van de woning ligt een royale, lichte zitkamer die direct grenst aan de tuin. Dankzij de grote raampartijen en de ligging aan het water voelt deze ruimte bijzonder prettig en rustig aan. De tuin vormt een natuurlijke verlenging van de zitkamer en is een heerlijke plek om te ontspannen en te genieten van het uitzicht.

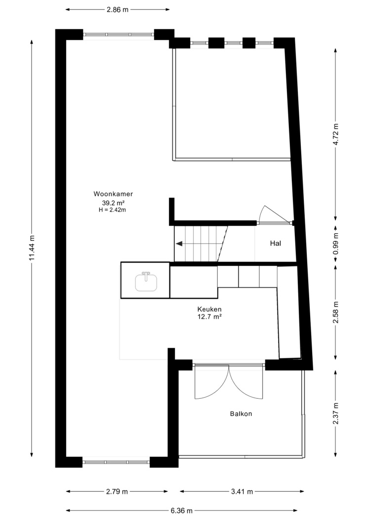
Wonen & koken
De eerste verdieping is ingericht als het centrale leefniveau van de woning. Hier bevindt zich de woonkamer met open keuken, speels ingedeeld en voorzien van een vide die zorgt voor een indrukwekkend ruimtelijk effect en extra daglicht. De open verbinding met de zitkamer beneden maakt deze verdieping extra bijzonder en geeft de woning een moderne, open uitstraling. De keuken sluit naadloos aan op de woonkamer en biedt volop ruimte om gezellig te koken en te tafelen. Aangrenzend aan deze verdieping bevindt zich een extra balkon, een fijne plek voor een moment buiten, of het nu ochtendzon of avondrust is.

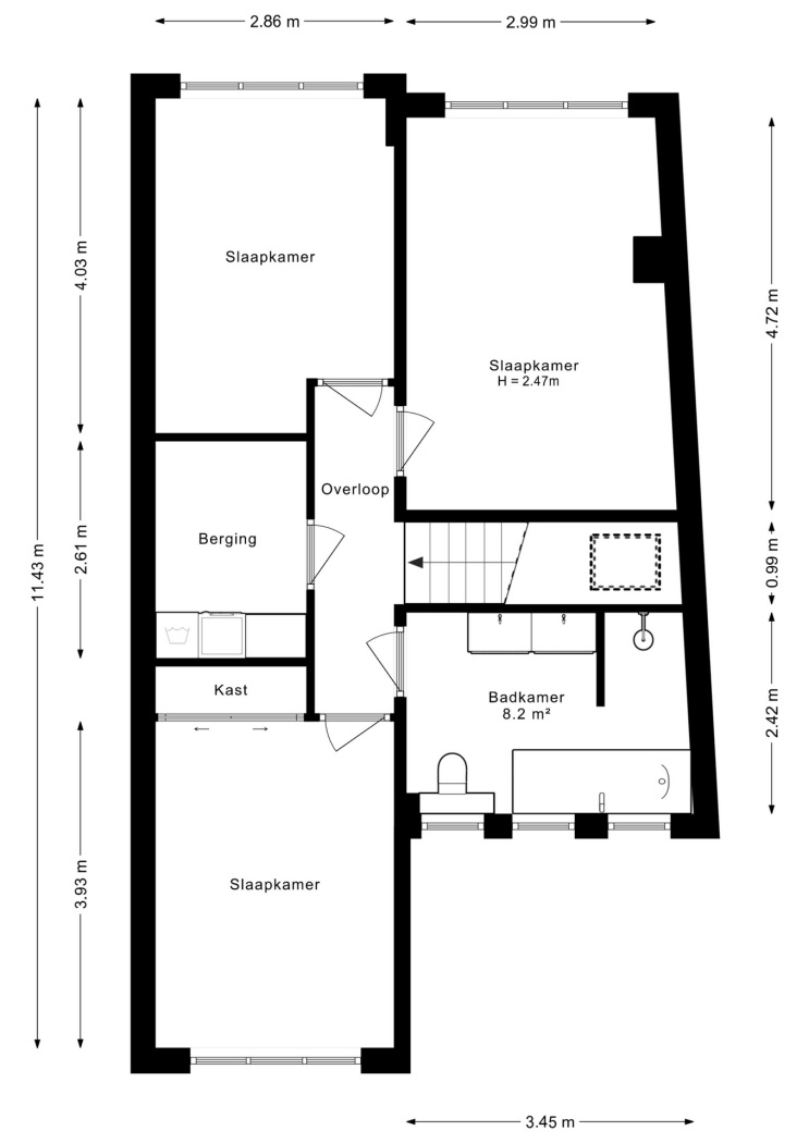
Slapen & badkamer
Op de tweede verdieping bevinden zich drie comfortabele slaapkamers, allemaal van goed formaat en flexibel in te delen als slaap-, werk- of hobbykamer. De ruime badkamer is compleet uitgevoerd met een inloopdouche, ligbad en dubbele wastafel, een fijne en luxe plek om de dag te beginnen of af te sluiten. Daarnaast beschikt deze verdieping over een praktisch washok met extra bergruimte, wat zorgt voor optimaal dagelijks comfort.

Buitenruimte & parkeren
De woning beschikt over meerdere buitenruimtes: een tuin aan het water op de begane grond en een balkon op de eerste verdieping. Hierdoor is er op elk moment van de dag een fijne plek om buiten te zitten. De ruime garage op de begane grond biedt plaats voor de auto en extra opslag, wat deze drive-inwoning bijzonder praktisch maakt.

Highlights
* Speels ingedeelde drive-in woning
* Meerdere volwaardige woonlagen
* Woonoppervlakte ca. 158 m2
* Energielabel B
* Ruime garage op de begane grond
* Lichte zitkamer met directe toegang tot de tuin
* Tuin gelegen aan het water
* Woonkamer met open keuken op de eerste verdieping
* Vide voor extra licht en ruimtelijk gevoel
* Extra balkon op de eerste verdieping
* Drie goed bemeten slaapkamers
* Ruime badkamer met ligbad, inloopdouche en dubbele wastafel
* Praktisch washok met bergruimte
* Veel lichtinval en een unieke indeling
* Prettige ligging in een rustige woonomgeving
* Parkeren op eigen terrein
* Kindvriendelijke buurt
* Alle stadse voorzieningen om de hoek

Wonen in Gorinchem
Jip en Janneke 8 is gelegen in een prettige woonomgeving in Gorinchem, met alle dagelijkse voorzieningen binnen handbereik. Scholen, winkels, sportvoorzieningen en uitvalswegen zijn goed bereikbaar, terwijl je thuis geniet van rust, ruimte en wonen aan het water. Het historische centrum van Gorinchem ligt op korte afstand en biedt gezellige horeca, winkels en fraaie wandelroutes langs de vestingwallen en de rivier.

Kortom: een unieke en ruime drive-inwoning met een speelse indeling, fijne buitenruimtes en een prachtige ligging aan het water: een ideaal huis voor wie comfortabel en bijzonder wil wonen.

Lees de volledige omschrijving

Kenmerken

Overdracht

Status Beschikbaar
Aanvaarding In overleg

Bouwvorm

Soort object Woonhuis
Soort woning Eengezinswoning
Type woning Tussenwoning
Bouwjaar 1997
Bouwvorm Bestaande bouw
Ligging Aan water, in een woonwijk, vrij uitzicht

Indeling

Woonoppervlakte 161 m²
Perceeloppervlakte 193 m²
Inhoud 587 m³
Aantal kamers 6
Aantal slaapkamers 3
Aantal woonlagen 3

Energie

Energieklasse B
Energie einddatum zaterdag 8 mei 2027
Isolatie Dubbel glas, volledig geïsoleerd
Warmwater Cv ketel
Verwarming Cv ketel, vloerverwarming gedeeltelijk

Buitenruimte

Tuin Achtertuin, voortuin
Hoofdtuin Achtertuin
Oppervlakte hoofdtuin 50 m²
Ligging hoofdtuin Noord-west
Achterom Nee
Kwaliteit tuin Verzorgd

Bergruimte

Garage Inpandig
Schuur / Berging Vrijstaand hout

Parkeergelegenheid

Voorzieningen Op eigen terrein

Dak

Dak Plat dak

Overig

Permanente bewoning Ja
Onderhoud binnen Goed tot uitstekend
Onderhoud buiten Goed tot uitstekend
Huidig gebruik Woonruimte
Huidige bestemming Woonruimte

Voorzieningen

Voorzieningen Mechanische ventilatie, alarminstallatie, rolluiken, tv kabel, schuifpui

Kadastrale gegevens

Gemeente Gorinchem
Sectie D
Perceelnummer 1026
Oppervlakte 193 m²
Eigendomssituatie Volle eigendom
OK-Kopie-van-v1-20250318-8G0A1414
Interesse in deze woning?

Chanel helpt u graag

Gratis waardebepaling

U denkt erover uw woning te verkopen en wilt graag weten wat het waard is? We komen graag bij u langs en bepalen de waarde van uw woning.

Gratis waardebepaling

Deel deze woning

Uw persoonlijke adviseur in de regio

Maak kennis met de HypotheekWeter

Ligging

Afspraak maken voor een bezichtiging? Neem contact met ons op

Vergelijkbare woningen