0183 - 635011 0183 - 635011 Stel een vraag Stel een vraag
Beschikbaar

Jip en Janneke 119

GORINCHEM
€ 420.000,- k.k.
  • Woonoppervlakte 122 m2
  • Perceeloppervlakte 140 m2
  • Aantal slaapkamers 3
  • Bouwjaar 1997

Omschrijving

Op zoek naar een ruime, moderne en energiezuinige gezinswoning? Deze goed onderhouden tussenwoning uit 1997 met maar liefst 122 m² woonoppervlakte, drie slaapkamers en een zonnige achtertuin op het oosten biedt alles wat je nodig hebt voor comfortabel wonen!

De woonkamer is speels ingedeeld en vormt een fijne leefruimte met een gezellige zithoek en een eethoek die de verbinding maakt met de keuken. De open keuken heeft een moderne, strakke afwerking en is voorzien van diverse inbouwapparatuur. Vanuit de keuken stap je zo de achtertuin in, een heerlijke plek om te ontspannen of te genieten van het zonnetje. De tuin is ruim opgezet en beschikt over voldoende ruimte voor een zit- en eethoek. Achterin vind je een stenen berging, ideaal voor fietsen en extra opslag, daarnaast is de tuin voorzien van een handige achterom.

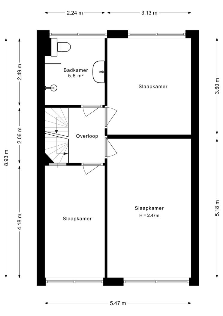
Op de eerste verdieping bevinden zich drie goed bemeten slaapkamers, waarvan twee aan de voorzijde en één aan de achterzijde van de woning. Dankzij de grote raampartijen zijn alle kamers heerlijk licht en flexibel in te richten. De badkamer is ruim en compleet uitgevoerd met een inloopdouche, toilet en wastafelmeubel. Ook de badkamer is voorzien van een raam wat niet alleen zorgt voor daglicht maar ook voor natuurlijke ventilatie, dit maakt deze ruimte extra comfortabel.

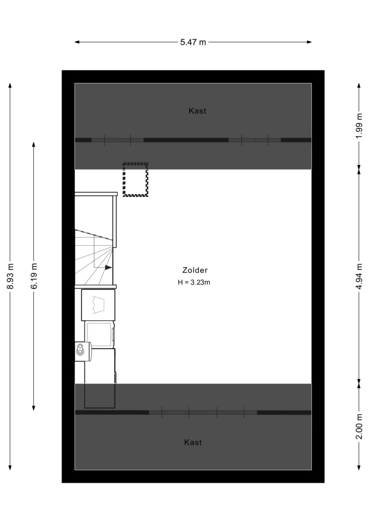
De zolderverdieping is verrassend ruim en biedt volop mogelijkheden. Of je nu een extra slaapkamer, werkkamer of hobbyruimte zoekt: hier kan het allemaal. Ook vind je hier de aansluitingen voor de wasmachine en droger.

Parkeren kan eenvoudig openbaar voor de deur, wat zorgt voor extra gemak in het dagelijks gebruik.

Kortom: een ruime en comfortabele woning op een fijne locatie in Gorinchem, perfect voor gezinnen die op zoek zijn naar ruimte, licht en energiezuinig wonen!

Highlights:
* Woonoppervlakte ca. 122 m²
* Bouwjaar 1997
* Energielabel A, volledig geïsoleerd en voorzien van HR-beglazing
* Moderne open keuken met inbouwapparatuur
* 3 slaapkamers
* Ruim opgezette badkamer met extra toilet
* Ruime zolderverdieping met aansluitingen voor de wasmachine en droger
* Ruime achtertuin op het oosten met berging en achterom
* Openbaar parkeren voor de deur
* Gelegen in een rustige woonwijk
* Dichtbij alle stadse voorzieningen

Wonen in Gorinchem, Laag Dalem

Wonen in de wijk Laag Dalem betekent comfortabel en rustig wonen in een moderne, ruim opgezette woonomgeving. De wijk staat bekend om haar kindvriendelijke karakter, brede straten en vele groenvoorzieningen. Hier woon je in een prettige, rustige buurt met volop speelgelegenheid voor kinderen en alle dagelijkse voorzieningen dichtbij. Supermarkten, scholen, sportverenigingen en openbaar vervoer zijn op korte afstand te vinden, wat het wonen hier extra praktisch maakt.

Wat Laag Dalem extra aantrekkelijk maakt, is de gunstige ligging ten opzichte van de historische binnenstad van Gorinchem. Binnen enkele minuten fietsen sta je midden in het gezellige centrum, waar je kunt genieten van sfeervolle straatjes, leuke winkels, horeca en terrassen. De vestingstad aan de Merwede ademt historie en biedt tegelijkertijd alle stadse voorzieningen die je nodig hebt.

Lees de volledige omschrijving

Kenmerken

Overdracht

Status Beschikbaar
Aanvaarding In overleg

Bouwvorm

Soort object Woonhuis
Soort woning Eengezinswoning
Type woning Tussenwoning
Bouwjaar 1997
Bouwvorm Bestaande bouw
Ligging Aan een rustige weg, in een woonwijk, vrij uitzicht

Indeling

Woonoppervlakte 122 m²
Perceeloppervlakte 140 m²
Inhoud 420 m³
Aantal kamers 4
Aantal slaapkamers 3
Aantal woonlagen 3

Energie

Energieklasse A
Energie einddatum dinsdag 11 maart 2036
Isolatie Volledig geïsoleerd, hr glas
Warmwater Cv ketel
Verwarming Cv ketel

Buitenruimte

Tuin Achtertuin, voortuin
Hoofdtuin Achtertuin
Oppervlakte hoofdtuin 72 m²
Ligging hoofdtuin Oost
Achterom Ja
Kwaliteit tuin Normaal

Bergruimte

Garage Geen garage
Schuur / Berging Vrijstaand steen

Parkeergelegenheid

Voorzieningen Openbaar parkeren

Dak

Dak Zadeldak

Overig

Permanente bewoning Ja
Onderhoud binnen Goed
Onderhoud buiten Goed
Huidig gebruik Woonruimte
Huidige bestemming Woonruimte

Voorzieningen

Voorzieningen Mechanische ventilatie, tv kabel, buitenzonwering, dakraam

Kadastrale gegevens

Gemeente Gorinchem
Sectie P
Perceelnummer 1116
Oppervlakte 140 m²
Eigendomssituatie Volle eigendom
OK-Kopie-van-v1-20250318-8G0A1414
Interesse in deze woning?

Chanel helpt u graag

Gratis waardebepaling

U denkt erover uw woning te verkopen en wilt graag weten wat het waard is? We komen graag bij u langs en bepalen de waarde van uw woning.

Gratis waardebepaling

Deel deze woning

Uw persoonlijke adviseur in de regio

Maak kennis met de HypotheekWeter

Ligging

Afspraak maken voor een bezichtiging? Neem contact met ons op

Vergelijkbare woningen