0183 - 635011 0183 - 635011 Stel een vraag Stel een vraag
Verkocht

Leeuwenhofje 6

GORINCHEM
€ 400.000,- k.k.
  • Woonoppervlakte 93 m2
  • Perceeloppervlakte 79 m2
  • Aantal slaapkamers 3
  • Bouwjaar 1889

Omschrijving

Wonen met allure in het betoverende Leeuwenhofje

Verscholen in een charmant, autovrij hofje in het historische hart van Gorinchem ligt deze karakteristieke stadswoning. Een plek waar rust, historie en modern wooncomfort samenkomen – en waar buren elkaar nog vriendelijk groeten.

De woning is de afgelopen jaren volledig en met zorg gerenoveerd. Hierdoor geniet je van het karakter van vroeger, gecombineerd met het comfort van nu. De lichte woonkamer en stijlvolle keuken vormen het hart van het huis, terwijl de moderne badkamer op de begane grond zorgt voor een vleugje luxe. Op de verdiepingen bevinden zich drie volwaardige slaapkamers, ideaal voor slapen, werken of logees.

Voor de woning ligt een zonnig terras op het zuiden, een heerlijke plek om te ontspannen. En dat alles op steenworp afstand van de gezellige binnenstad, de historische vestingwallen en de rivier.

Een unieke kans om te wonen op een bijzondere plek in Gorinchem – waar historie, charme en comfort elkaar perfect ontmoeten.

Plan snel een bezichtiging en laat je verrassen door de charme van deze bijzondere stadswoning.

Belangrijke vernieuwingen
•Volledige renovatie en modernisering in 2017
•Balklagen en constructieve vloeren van de eerste en tweede verdieping vernieuwd
•Kap en buitenmuren geïsoleerd
•Begane grond voorzien van een nieuwe cementdekvloer met vloerverwarming
•Elektrische installatie en meterkast vernieuwd
•Cv-installatie en cv-ketel vernieuwd
•Nieuwe trappen, binnenkozijnen en deuren geplaatst
•Nieuwe keuken, badkamer en aanbouw gerealiseerd
•Afwerking met laminaatvloeren en strak stucwerk
•Grotendeels vernieuwde kozijnen en volledig voorzien van dubbel glas
•Gevel gereinigd en opnieuw gevoegd
•Buitenschilderwerk uitgevoerd in 2025
•Voortuin recent opnieuw aangelegd

Highlights van deze woning
•In 2017 volledig gerenoveerd
•Bouwjaar ca. 1889 – gemeentelijk monument
•Woonoppervlakte ca. 93 m²
•Perceel ca. 79 m²
•Energielabel B
•Sfeervolle woon-/eetkamer ca. 30 m²
•Moderne keuken (2017) ca. 8,8 m²
•Badkamer (2020) ca. 6,6 m² met douche, wastafelmeubel en toilet
•Drie slaapkamers verdeeld over twee verdiepingen
•Dakkapel voor extra licht en ruimte
•Zonnig terras op het zuiden, aan de voorzijde met recht van overpad
•Houten vlonder aangelegd in 2020
•Dakramen in keuken en badkamer elektrisch bedienbaar (2020) voor eenvoudig openen en sluiten
•Bijkeuken gerealiseerd in 2025
•Nieuwe vaatwasser geplaatst in 2026
•Rustige ligging in autovrij hofje in het centrum
•Alle voorzieningen, vestingwallen en rivier op loopafstand
•Verkoop met ouderdoms- en asbestclausule

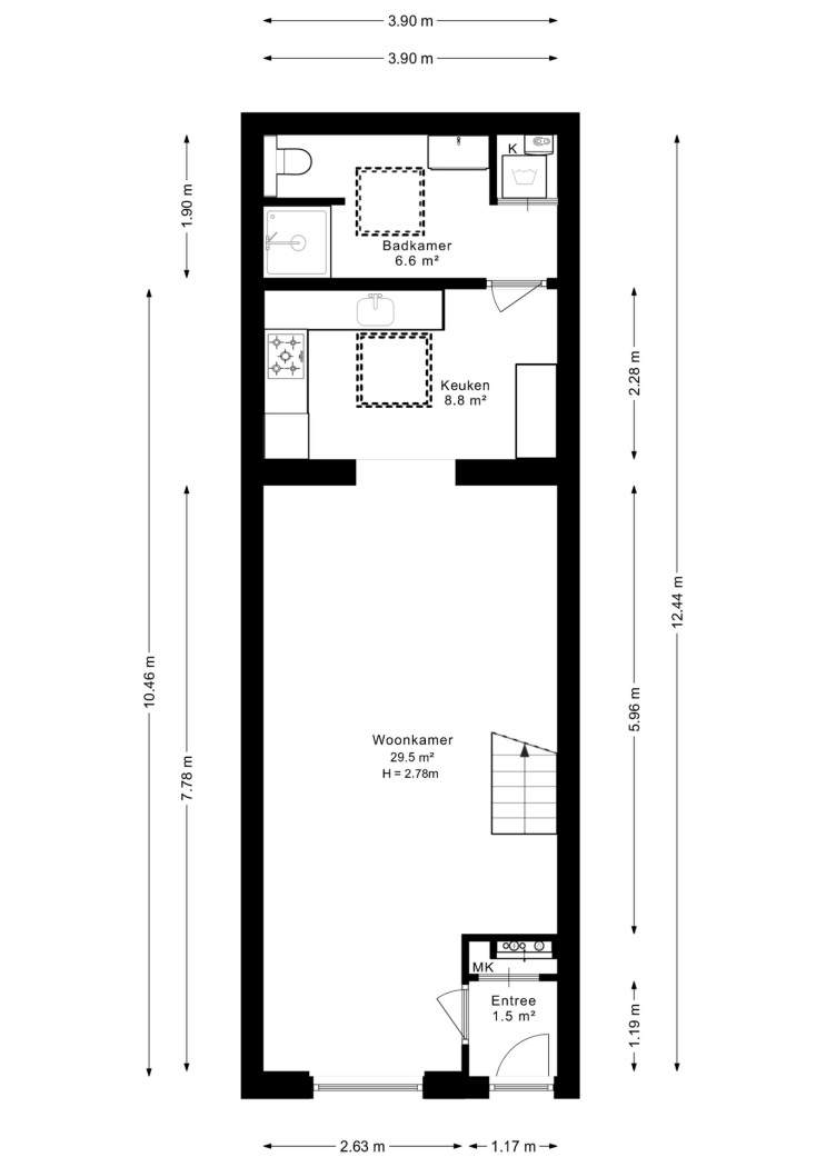
INDELING BEGANE GROND

Welkom!
Via de fraaie voordeur met sierlijk deurrooster betreed je de hal met meterkast. Vanuit hier stap je de sfeervolle woonkamer binnen, waar karakter en comfort direct samenkomen.

Wonen & koken
De stijlvolle woonkamer vormt het hart van de woning en is afgewerkt met strakke stucwanden, een nette vloer en vloerverwarming. Er is volop ruimte voor een gezellige zit- en eethoek en de trap naar boven bevindt zich sfeervol in de woonkamer.
Via een strakke doorgang bereik je de aangebouwde keuken met daklicht, betonlook tegelvloer en een tijdloze hoekkeuken. De keuken is compleet uitgerust met een 4-pits gaskookplaat, afzuigkap, oven, vaatwasser en koel-/vriescombinatie. Aan de tegenoverliggende wand bevindt zich een extra keukenblok met bergkasten en extra werkruimte – praktisch én stijlvol.

Opfrissen in stijl
De badkamer, bereikbaar via de keuken, is modern en verzorgd afgewerkt en voorzien van een extra daglicht voor prettig daglicht. Hier vind je een ruime douche met glazen douchedeur, een wastafelmeubel met spiegelkast, een zwevend toilet en een designradiator. Daarnaast is er een praktische kast met de opstelling voor het witgoed en de cv-ketel.

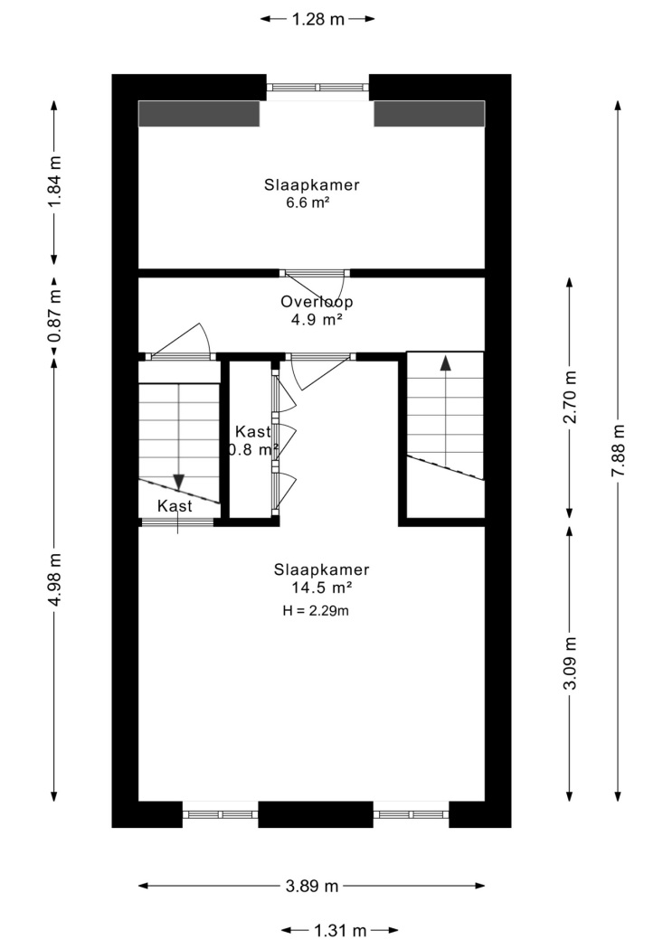
INDELING EERSTE VERDIEPING

Via de overloop bereik je twee comfortabele slaapkamers. De ruime hoofdslaapkamer aan de voorzijde strekt zich uit over de volle breedte van de woning (ca. 14,5 m²) en beschikt bij binnenkomst direct over drie praktische inbouwkasten en er is nog een extra trapkast.
De tweede slaapkamer (ca. 6,6 m²) bevindt zich aan de achterzijde en is voorzien van een dakkapel, wat zorgt voor extra licht en ruimte. De gehele verdieping is afgewerkt met nette laminaatvloeren, wat zorgt voor een rustige en verzorgde uitstraling.

INDELING TWEEDE VERDIEPING

De tweede verdieping is bereikbaar via een vaste trap en biedt een verrassend ruime derde slaapkamer, die ook uitstekend geschikt is als werk- of hobbyruimte. Dankzij de twee dakramen valt er prettig daglicht naar binnen, wat zorgt voor een lichte en aangename sfeer.
Daarnaast is er praktische bergruimte achter de knieschotten, ideaal voor het opbergen van seizoensspullen en andere benodigdheden.

Buitenruimte
Deze charmante woning staat op een kavel van 79 m² en beschikt aan de voorzijde, midden in het gezellige hofje, over een heerlijk verhoogd houten vlonderterras op het zonnige zuiden. Met de sfeervolle leiboom en de aanwezige vuurtafel is dit een plek waar je al snel wat langer blijft zitten dan gepland. Hier geniet je van de zon met een kop koffie in de ochtend of een goed glas wijn in de avond, terwijl vrienden aanschuiven en buren even een praatje maken. Een heerlijke, ontspannen plek waar het buitenleven vanzelf gezellig wordt.

LIGGING
Rustig wonen in het hart van de stad
Het Leeuwenhofje biedt het beste van twee werelden: de rust van een charmant, autovrij hofje én de levendigheid van het centrum op loopafstand. Binnen enkele minuten sta je in de gezellige binnenstad met winkels, supermarkten, de weekmarkt, scholen en het station. Ook de historische vestingwallen en het strandje Buiten de Waterpoort liggen dichtbij. Het hofje is uitsluitend toegankelijk voor voetgangers en wordt afgesloten met een karakteristiek poortje, wat zorgt voor een knusse en rustige woonomgeving.

Historisch wonen in Gorinchem
Het sfeervolle Leeuwenhofje is een bijzonder stukje Gorinchem met een rijke geschiedenis. Het hofje werd in 1889 gesticht door de familie Leeuw en bestaat uit vijftien karakteristieke woningen, ieder met een eigen indeling en charme. De iconische leeuwen pilaren in de Pompstraat herinneren nog altijd aan deze geschiedenis. Tegenwoordig is het hofje aangewezen als gemeentelijk monument en vormt het een geliefde, rustige woonplek midden in de stad – waar buren elkaar kennen en de authentieke sfeer nog altijd voelbaar is.

Lees de volledige omschrijving

Kenmerken

Overdracht

Status Verkocht
Aanvaarding In overleg

Bouwvorm

Soort object Woonhuis
Soort woning Eengezinswoning
Type woning Tussenwoning
Bouwjaar 1889
Bouwvorm Bestaande bouw
Ligging In het centrum, beschutte ligging

Indeling

Woonoppervlakte 93 m²
Perceeloppervlakte 79 m²
Inhoud 333 m³
Aantal kamers 4
Aantal slaapkamers 3
Aantal woonlagen 3

Energie

Energieklasse B
Energie einddatum zondag 9 maart 2036
Isolatie Dakisolatie, muurisolatie, vloerisolatie, dubbel glas, volledig geïsoleerd
Warmwater Cv ketel
Verwarming Cv ketel, vloerverwarming gedeeltelijk

Buitenruimte

Tuin Zonneterras
Achterom Nee
Kwaliteit tuin Fraai aangelegd

Bergruimte

Garage Geen garage

Parkeergelegenheid

Voorzieningen Betaald parkeren, parkeergarage, parkeervergunningen

Dak

Dak Zadeldak

Overig

Permanente bewoning Ja
Onderhoud binnen Goed tot uitstekend
Onderhoud buiten Goed tot uitstekend
Huidig gebruik Woonruimte
Huidige bestemming Woonruimte

Voorzieningen

Voorzieningen Mechanische ventilatie, tv kabel, dakraam, natuurlijke ventilatie

Kadastrale gegevens

Gemeente Gorinchem
Sectie D
Perceelnummer 3175
Oppervlakte 79 m²
Eigendomssituatie Volle eigendom
OK-Kopie-van-v1-20250318-8G0A1414
Interesse in deze woning?

Chanel helpt u graag

Gratis waardebepaling

U denkt erover uw woning te verkopen en wilt graag weten wat het waard is? We komen graag bij u langs en bepalen de waarde van uw woning.

Gratis waardebepaling

Deel deze woning

Uw persoonlijke adviseur in de regio

Maak kennis met de HypotheekWeter

Ligging

Afspraak maken voor een bezichtiging? Neem contact met ons op

Vergelijkbare woningen