0183 - 635011 0183 - 635011 Stel een vraag Stel een vraag
Open huis

Frans Halsstraat 30

HARDINXVELD-GIESSENDAM
€ 425.000,- k.k.
Open huis

Meld u telefonisch aan voor de kijkdag op dinsdag 10 februari 2026 van 13:00 tot 17:00 uur.

  • Woonoppervlakte 86 m2
  • Perceeloppervlakte 194 m2
  • Aantal slaapkamers 4
  • Bouwjaar 1961

Omschrijving

Open Dag | dinsdag 10 februari | 13:00 – 17:00 uur
Ontdek deze woning tijdens ons speciale kijkmoment met persoonlijke bezichtigingen. Bel ons vooraf om je eigen tijdslot te reserveren. Wij ontvangen je graag voor een rustige, ontspannen rondleiding, helemaal afgestemd op jou.

Wonen met klasse (en een glimlach)
Aan een rustige eenrichtingsstraat, sierlijk gescheiden door een singel, staat deze stijlvolle HOEKwoning met oprit, garage en aangrenzende berging. Een huis waar je binnenkomt en denkt: ja hoor, dit klopt gewoon. Strak afgewerkt, heerlijk licht en tot in de puntjes verzorgd.

De doorzonwoonkamer nodigt uit tot lange avonden, de moderne keuken is compleet (ja, inclusief koffiemachine) en via de aangebouwde serre/bijkeuken loop je zo de extra ruime tuin op het oosten in. Met 3 slaapkamers, een mooie badkamer en een zolder met extra kamer is er plek genoeg voor het hele gezin. Comfort? Check: airco (koelen én verwarmen), rolluiken rondom, zonwering, 8 zonnepanelen en goede isolatie (energielabel C).

Toplocatie in Boven-Hardinxveld
Binnen een paar minuten wandel je naar de rivier ‘de Merwede’, de waterbus, scholen, speeltuintjes en sportvoorzieningen. Boodschappen? Die haal je om de hoek bij supermarkt ‘Hoogvliet’. Rustig wonen, alles dichtbij.
Kortom: een licht, ruim en warm leefhuis in een kindvriendelijke wijk met vrij uitzicht aan de voorzijde.

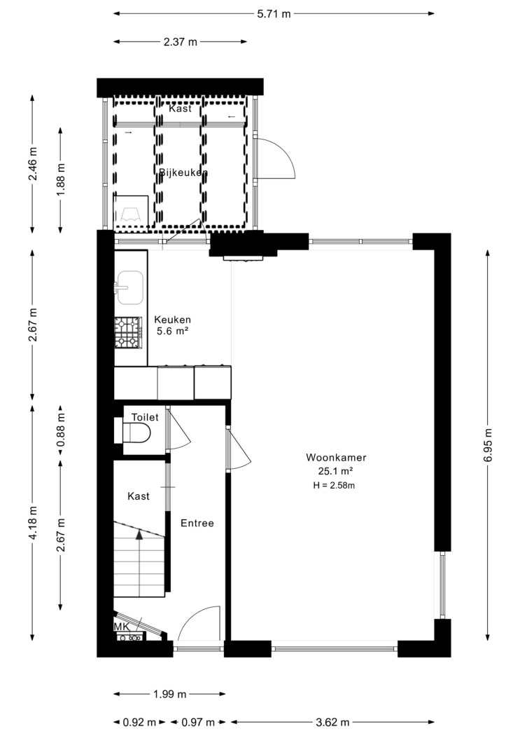
INDELING BEGANE GROND

Welkom!
Via de verzorgde voortuin met sierlijk hekwerk bereik je de voordeur. In de hal vind je het toilet, de meterkast, een praktische trapkast en de trap naar boven, met toegang tot de woonkamer.

Wonen & koken
De doorzonwoonkamer met open keuken (ca. 31 m²) is aangenaam licht en sfeervol ingedeeld. Aan de voorzijde bevindt zich het zitgedeelte met vrij uitzicht op de straat en de singel, terwijl aan de achterzijde ruimte is voor een royale eethoek. De grote raampartijen tot op de vloer zorgen hier voor een prachtig zicht op de tuin. Dankzij het extra zijraam, een fijn voordeel van de hoekligging, profiteert de woonkamer van nog meer daglicht.

De ruimte is afgewerkt met een laminaatvloer en voorzien van airconditioning voor zowel koelen als verwarmen. Het tv-meubel en dressoir kunnen desgewenst worden overgenomen.

Keuken
De moderne keuken bevindt zich aan de achterzijde van de woning en is uitgevoerd in een hoekopstelling met witte kastfronten en een hardstenen aanrechtblad. De keuken is voorzien van een 4-pits gaskookplaat, RVS afzuigkap, vaatwasser, combimagnetron en een inbouwkoffiemachine. De keuken is geplaatst in 2011 en verkeert in zeer nette, weinig gebruikte staat.

Serre / bijkeuken
De aangebouwde serre is ingericht als praktische bijkeuken met een ruime schuifwandkast en aansluitingen voor wasapparatuur. Vanuit deze ruimte is er direct toegang tot de achtertuin.

INDELING EERSTE VERDIEPING

De overloop vormt het centrale punt van de eerste verdieping en biedt toegang tot de drie slaapkamers en de badkamer. Daarnaast bevindt zich hier de vaste trap naar de tweede verdieping.

3 slaapkamers
Op de eerste verdieping bevinden zich drie goed bemeten slaapkamers, waarvan één aan de voorzijde en twee aan de achterzijde van de woning. De ruime hoofdslaapkamer ligt aan de achterzijde en is voorzien van airconditioning en directe toegang tot het balkon. Alle slaapkamers zijn afgewerkt met een laminaatvloer en beschikken over plafonds met inbouwspots, wat zorgt voor een verzorgde en moderne uitstraling.

Badkamer
De badkamer aan de voorzijde is verzorgd en functioneel ingericht met een ligbad voorzien van (regen)douche en spatscherm, een wastafelmeubel met spiegelkast en een zwevend tweede toilet. Dankzij zowel mechanische als natuurlijke ventilatie is de ruimte prettig fris en comfortabel in gebruik.

INDELING TWEEDE ZOLDERVERDIEPING

De voorzolder met dakraam biedt plaats aan de cv-installatie en beschikt over praktische bergruimte onder de schuine dakdelen. De vierde (zolder)kamer is eveneens voorzien van een dakraam en extra bergruimte onder de schuine kanten.

Tuin - buitenruimte
De achtertuin, gelegen op het oosten, is dankzij de hoekligging extra ruim en beschikt over een zijtuin/oprit met afsluitbare poort. De tuin is grotendeels bestraat, omsloten door schuttingen en biedt volop privacy.
Achter in de tuin bevindt zich de garage met elektrische roldeur, met aansluitend een praktische berging. Deze berging is zowel vanuit de tuin als via de garage bereikbaar. Samen bieden garage en berging circa 32 m² aan ruimte – ideaal voor auto, fietsen en opslag.

Highlights
• Bouwjaar 1961
• Woonoppervlakte ca. 86 m² | Perceel 194 m²
• Garage met berging ca. 32 m² en parkeermogelijkheid op eigen terrein
• Goed geïsoleerd met spouwmuurisolatie, dubbel glas, vloerisolatie en deels dakisolatie
• Energielabel C
• Hardhouten kozijnen geschilderd in 2023
• LG-airconditioning in woonkamer en slaapkamer, koelen en verwarmen
• Vernieuwde groepenkast met aardlekschakelaar
• Doorzonwoonkamer met open keuken, ca. 31 m²
• Aangebouwde praktische serre/bijkeuken met deur naar de tuin
• Eerste verdieping met 3 slaapkamers, waarvan één met balkon en airconditioning
• Tweede verdieping met vaste trap naar zolderkamer en bergruimte
• Badkamer met ligbad, douchemogelijkheid, wastafelmeubel en tweede toilet
• Zonwering en rolluiken rondom
• Tuin op het oosten
• Gelegen aan een brede, rustige eenrichtingsstraat met waterpartij

Kortom: een fijne hoekwoning met garage en uitzicht op de singel: kom snel kijken!

Lees de volledige omschrijving

Kenmerken

Overdracht

Status Beschikbaar
Aanvaarding In overleg

Bouwvorm

Soort object Woonhuis
Soort woning Eengezinswoning
Type woning Hoekwoning
Bouwjaar 1961
Bouwvorm Bestaande bouw
Ligging Aan water, aan een rustige weg, in een woonwijk

Indeling

Woonoppervlakte 86 m²
Perceeloppervlakte 194 m²
Inhoud 362 m³
Aantal kamers 5
Aantal slaapkamers 4
Aantal woonlagen 3

Energie

Energieklasse C
Energie einddatum zondag 16 december 2035
Isolatie Muurisolatie, vloerisolatie, dubbel glas
Warmwater Cv ketel
Verwarming Cv ketel

Buitenruimte

Tuin Achtertuin, voortuin, zijtuin
Hoofdtuin Achtertuin
Oppervlakte hoofdtuin 80 m²
Ligging hoofdtuin Oost
Achterom Ja
Kwaliteit tuin Verzorgd

Bergruimte

Garage Vrijstaand hout
Schuur / Berging Vrijstaand hout
Voorzieningen Elektra

Parkeergelegenheid

Voorzieningen Openbaar parkeren, op eigen terrein

Dak

Dak Zadeldak

Overig

Permanente bewoning Ja
Onderhoud binnen Goed tot uitstekend
Onderhoud buiten Goed tot uitstekend
Huidig gebruik Woonruimte
Huidige bestemming Woonruimte

Voorzieningen

Voorzieningen Mechanische ventilatie, rolluiken, tv kabel, buitenzonwering, airconditioning, zonnepanelen, natuurlijke ventilatie

Kadastrale gegevens

Gemeente Hardinxveld-Giessendam
Sectie C
Perceelnummer 2789
Oppervlakte 194 m²
Eigendomssituatie Volle eigendom
v1-20250318-8G0A1608E
Interesse in deze woning?

Leo helpt u graag

Gratis waardebepaling

U denkt erover uw woning te verkopen en wilt graag weten wat het waard is? We komen graag bij u langs en bepalen de waarde van uw woning.

Gratis waardebepaling

Deel deze woning

Uw persoonlijke adviseur in de regio

Maak kennis met de HypotheekWeter

Ligging

Afspraak maken voor een bezichtiging? Neem contact met ons op

Vergelijkbare woningen