0183 - 635011 0183 - 635011 Stel een vraag Stel een vraag
Beschikbaar

Dokter van Stratenweg 667

GORINCHEM
€ 315.000,- k.k.
  • Woonoppervlakte 85 m2
  • Aantal slaapkamers 2
  • Bouwjaar 1977

Omschrijving

Op de 11e verdieping van een verzorgd complex aan de Dokter van Stratenweg 667 bevindt zich deze fijne maisonnettewoning met twee volwaardige woonlagen en maar liefst twee balkons. Hier woon je in alle rust, omringd door groen, met een vrij uitzicht en alle comfort binnen handbereik.

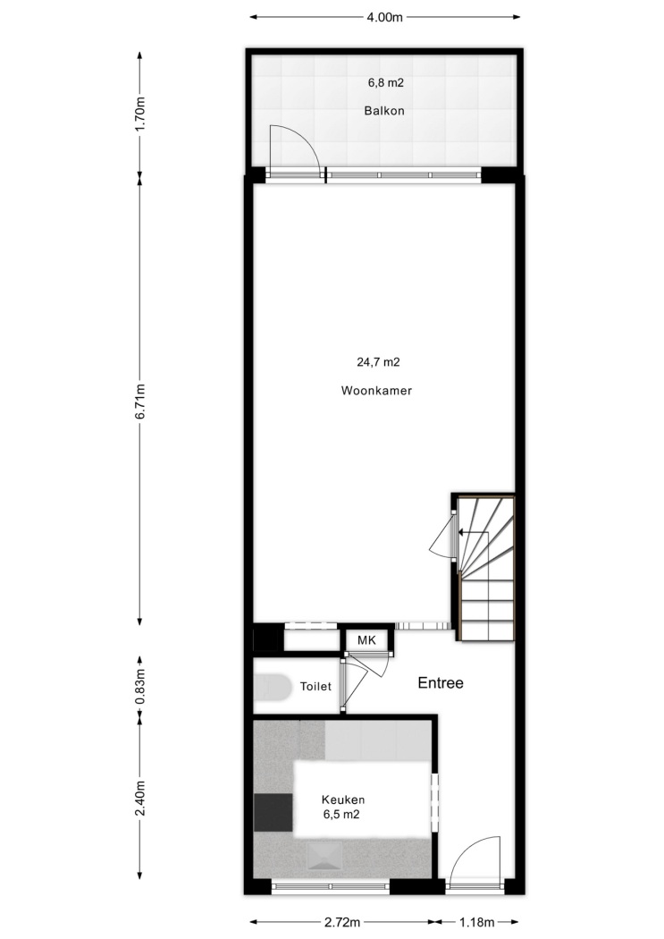
Eerste woonlaag: licht en leefruimte

Bij binnenkomst valt direct de lichte en ruime woonkamer op. Dankzij de grote raampartijen geniet je hier van een prettige lichtinval en een prachtig groen uitzicht. De woonkamer biedt volop ruimte voor een comfortabele zithoek én een gezellige eethoek.

Vanuit de woonkamer heb je toegang tot het eerste balkon: een heerlijke buitenruimte met voldoende plek voor een fijne zitplek waar je kunt ontspannen en genieten van de hoogte en het uitzicht.

De moderne, afgesloten keuken is strak uitgevoerd en van alle gemakken voorzien. Hier kook je in alle rust, met voldoende werk- en opbergruimte.

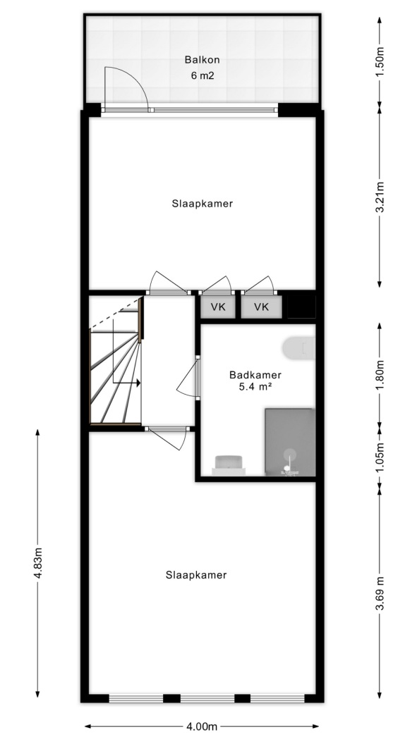
Tweede woonlaag: rust en privacy

Op de bovenverdieping bevinden zich twee slaapkamers van prima formaat. Beide kamers zijn licht dankzij de grote raampartijen en bieden voldoende ruimte voor een tweepersoonsbed en kastruimte.
De masterbedroom beschikt over een eigen balkon – een absolute meerwaarde die zorgt voor extra wooncomfort en een heerlijke privé buitenplek.

De badkamer is modern en strak afgewerkt en goed onderhouden. Je vindt hier een ruime inloopdouche, een stijlvol wastafelmeubel en een extra toilet. Tevens bevinden zich hier de aansluitingen voor de wasmachine en droger. Het separate toilet op de eerste verdieping is eveneens modern uitgevoerd.

Comfort en voorzieningen:
* Energielabel B
* Airconditioning voor extra comfort in zowel zomer als winter
* Eigen berging op de begane grond
* 2 buitenruimtes
* Ruime parkeergelegenheid bij het complex: altijd plek voor de deur

Het complex is gelegen in een parkachtige omgeving, waardoor je woont in het groen met een vrij uitzicht, terwijl voorzieningen zich op korte afstand bevinden.

De charme van Gorinchem zit ‘m in de kleinschaligheid en karakteristieke sfeer: smalle straatjes, sfeervolle gevels, horecagelegenheden en boetiekjes wisselen elkaar af. Tegelijkertijd vind je er alle dagelijkse voorzieningen die je nodig hebt: supermarkten, scholen, sportclubs, gezondheidszorg en uitstekende openbaar vervoerverbindingen.

Wonen dicht bij het centrum betekent dat je letterlijk de stad in kunt stappen zodra je deur uitgaat. Of je nu zin hebt in een kop koffie op een terras, een avondje uit, een bezoek aan de weekmarkt of een wandeling langs de vestingwallen en het water: alles is op loopafstand.

Daarnaast heeft Gorinchem een prettige balans tussen stedelijk gemak en rust: je woont er zonder de drukte van een grote stad, maar je hebt wél alle gemakken binnen handbereik. Met diverse groene parken, waterpartijen en een vriendelijke gemeenschap is het bovendien een omgeving waar je je snel thuis voelt.

Kortom: een comfortabele en lichte maisonnette op hoogte, met twee balkons, moderne afwerking en een groene woonomgeving. Een woning die je absoluut gezien moet hebben!

Lees de volledige omschrijving

Kenmerken

Overdracht

Status Beschikbaar
Aanvaarding In overleg

Bouwvorm

Soort object Appartement
Bouwjaar 1977
Bouwvorm Bestaande bouw
Ligging Aan een park, in een woonwijk, vrij uitzicht, open ligging

Indeling

Woonoppervlakte 85 m²
Inhoud 250 m³
Aantal kamers 3
Aantal slaapkamers 2
Aantal woonlagen 2

Energie

Energieklasse B
Energie einddatum donderdag 18 november 2032
Isolatie Muurisolatie, vloerisolatie
Warmwater Cv ketel
Verwarming Cv ketel

Buitenruimte

Tuin Geen tuin
Achterom Nee

Bergruimte

Garage Geen garage

Parkeergelegenheid

Voorzieningen Openbaar parkeren

Dak

Dak Plat dak

Overig

Permanente bewoning Ja
Onderhoud binnen Goed
Onderhoud buiten Goed
Huidig gebruik Woonruimte
Huidige bestemming Woonruimte

Voorzieningen

Voorzieningen Tv kabel, airconditioning, glasvezel kabel

Kadastrale gegevens

Gemeente Gorinchem
Sectie E
Perceelnummer 1216
Eigendomssituatie Volle eigendom
v1-20250318-8G0A1573E
Interesse in deze woning?

Robert helpt u graag

Gratis waardebepaling

U denkt erover uw woning te verkopen en wilt graag weten wat het waard is? We komen graag bij u langs en bepalen de waarde van uw woning.

Gratis waardebepaling

Deel deze woning

Uw persoonlijke adviseur in de regio

Maak kennis met de HypotheekWeter

Ligging

Afspraak maken voor een bezichtiging? Neem contact met ons op

Vergelijkbare woningen