0183 - 635011 0183 - 635011 Stel een vraag Stel een vraag
Verkocht onder voorbehoud

Dokter van Stratenweg 424

GORINCHEM
€ 300.000,- k.k.
  • Woonoppervlakte 85 m2
  • Aantal slaapkamers 2
  • Bouwjaar 1977

Omschrijving

Open Dag | Donderdag 26 maart | 13:00 – 17:00 uur
Ontdek deze maisonnette tijdens het kijkmoment met persoonlijke bezichtigingen. Bel vooraf om een tijdslot te reserveren, we laten je de woning graag rustig zien.

Starten op de woningmarkt? Dan wil je dit niet missen.

Je eerste eigen plek hoeft helemaal niet ingewikkeld te zijn. Deze verrassend ruime driekamer maisonnette maakt de stap naar de woningmarkt juist een stuk makkelijker. Met twee balkons, veel licht en een prettige indeling woon je hier comfortabel én centraal: een ideale start.

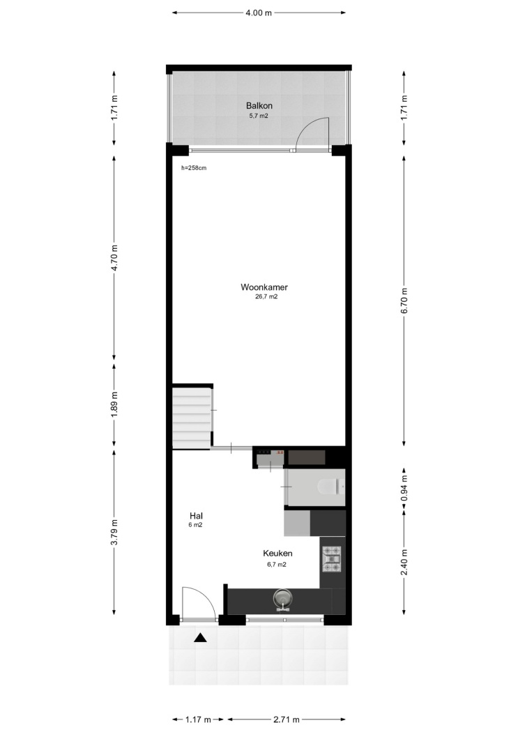
Op de zevende en achtste verdieping van het complex aan de Dokter van Stratenweg 424 bevindt zich deze lichte en verrassend ruime maisonnette. De woning beschikt over een royale woonkamer, een moderne keuken met apparatuur (2021), twee slaapkamers en een praktische berging. Dankzij de ligging op de hogere verdiepingen geniet je hier van veel licht en een prettig vrij gevoel.

In 2021 is de keuken open gemaakt, waarbij twee gipswanden zijn verwijderd. Hierdoor is een ruimtelijke en moderne leefruimte ontstaan waar koken en wonen naadloos in elkaar overlopen. Zodra je binnenkomt valt direct de open indeling en het zonnige karakter van de woning op.

Na een drukke werkdag maak je nog even een ontspannen rondje hardlopen in het stadspark om de hoek. De volgende ochtend rijd je binnen enkele minuten de snelweg op richting werk. Winkels, sportvoorzieningen, het park en gezondheidszorg liggen allemaal op loop- of fietsafstand.

En zin in gezelligheid? Het historische centrum van Gorinchem fiets je zo naartoe voor een drankje op het terras, een goed restaurant of een spontane avond met vrienden.

Kortom: comfortabel wonen, alles dichtbij en een perfecte kans om jouw woon avontuur te beginnen.

INDELING

Je komt binnen via de verzorgde centrale entree met intercom, brievenbussen en handige Bringme-boxen. Met de lift bereik je de verdieping en via de galerij stap je het appartement binnen.

Woonverdieping
De eerste woonlaag voelt direct ruim en licht. De open entree zorgt voor een prettige verbinding met de keuken, die is uitgevoerd in een praktische U-opstelling met volop werk- en kastruimte en diverse inbouwapparatuur. Door het openmaken van de keuken (2 (gips)muren uit de keuken verwijderd) valt bij binnenkomst direct het daglicht mooi naar binnen en kijk je als het ware het zonnetje in. Bovendien zorgt de open indeling ervoor dat je tijdens het koken gemakkelijk in contact blijft met anderen in de ruimte.

De lichte woonkamer biedt alle ruimte voor een comfortabele zithoek én een grote eettafel, ideaal om te ontspannen of gezellig te tafelen met familie en vrienden. Vanuit hier stap je zo het balkon op. Hier zit je heerlijk beschut en kijk je uit over het groen: een fijne plek om op zonnige dagen rustig te genieten. De woonkamer is bovendien voorzien van een fraaie laminaatvloer, airconditioning en een praktische trapkast.

Slaapverdieping
Via de trap bereik je de tweede woonlaag met overloop en vaste kast. Hier bevinden zich twee ruime slaapkamers (ca. 15,3 m² en 12,7 m²). Eén van de slaapkamers beschikt over een vaste kast, airconditioning en toegang tot het tweede balkon, een fijne plek om nog even van de avondzon te genieten. De badkamer is compleet ingericht met een douchecabine, wastafel, tweede toilet en de aansluiting voor de wasmachine.

Op de begane grond bevindt zich een extra grote privé berging van circa 9,5 m², ideaal voor fietsen en extra opslag.

Highlights
•Woonoppervlakte ca. 85 m²
•Energielabel B en HR++ beglazing
•Lichte woonkamer van ca. 26,7 m²
•Moderne U-keuken met inbouwapparatuur
•Twee slaapkamers
•Twee balkons
•Airconditioning in woonkamer en slaapkamer aanwezig
•Berging (ca. 5 m²) op de begane grond
•Lift aanwezig in het complex
•Meterkast vernieuwd in 2021: oude stoppenkast vervangen en 3-fase aansluiting gerealiseerd
•Ruime gratis parkeergelegenheid, ook voor elektrische auto’s
•BringMe-systeem voor pakketbezorging
•Bijdrage Vereniging van Eigenaren (VvE): circa € 174,74 per maand

Kortom: een licht en comfortabel appartement met twee balkons, veel bergruimte en een uitstekende ligging.

Lees de volledige omschrijving

Kenmerken

Overdracht

Status Verkocht onder voorbehoud
Aanvaarding In overleg

Bouwvorm

Soort object Appartement
Bouwjaar 1977
Bouwvorm Bestaande bouw
Ligging Aan een park, aan een rustige weg, in een woonwijk, vrij uitzicht

Indeling

Woonoppervlakte 85 m²
Inhoud 250 m³
Aantal kamers 3
Aantal slaapkamers 2
Aantal woonlagen 2

Energie

Energieklasse B
Energie einddatum maandag 10 maart 2036
Isolatie Volledig geïsoleerd
Warmwater Cv ketel
Verwarming Cv ketel

Buitenruimte

Tuin Geen tuin
Achterom Nee

Bergruimte

Garage Geen garage

Parkeergelegenheid

Voorzieningen Openbaar parkeren

Dak

Dak Plat dak

Overig

Permanente bewoning Ja
Onderhoud binnen Goed
Onderhoud buiten Goed tot uitstekend
Huidig gebruik Woonruimte
Huidige bestemming Woonruimte

Voorzieningen

Voorzieningen Tv kabel, lift, airconditioning, natuurlijke ventilatie

Kadastrale gegevens

Gemeente Gorinchem
Sectie E
Perceelnummer 1512
Eigendomssituatie Volle eigendom
v1-20250318-8G0A1573E
Interesse in deze woning?

Robert helpt u graag

Gratis waardebepaling

U denkt erover uw woning te verkopen en wilt graag weten wat het waard is? We komen graag bij u langs en bepalen de waarde van uw woning.

Gratis waardebepaling

Deel deze woning

Uw persoonlijke adviseur in de regio

Maak kennis met de HypotheekWeter

Ligging

Afspraak maken voor een bezichtiging? Neem contact met ons op

Vergelijkbare woningen