0183 - 635011 0183 - 635011 Stel een vraag Stel een vraag
Open huis

Chirurgijnstraat 23

GORINCHEM
€ 285.000,- k.k.
Open huis

Meld u telefonisch aan voor de kijkdag op dinsdag 28 april 2026 van 13:00 tot 17:00 uur.

  • Woonoppervlakte 70 m2
  • Aantal slaapkamers 2
  • Bouwjaar 1960

Omschrijving

Open Dag | Dinsdag 28 april | 13:00 – 17:00 uur
Ontdek deze woning tijdens ons speciale kijkmoment met persoonlijke bezichtigingen. Bel ons vooraf om je eigen tijdslot te reserveren. Wij ontvangen je graag voor een rustige, ontspannen rondleiding, helemaal afgestemd op jou.

Instapklaar, modern en twee heerlijke buitenplekken

Starters, hou je vast: dit is jouw kans om meteen goed te beginnen in Gorinchem. Dit is zo’n appartement waar je binnenkomt en denkt: ja, hier wil ik wonen. Een licht en ruim 3-kamer appartement op de derde (bovenste) verdieping, volledig gemoderniseerd, slimme nieuwe indeling én twee balkons. Eén daarvan op het zonnige zuiden dat je stress spontaan vergeet.

Met 70 m² woonplezier is dit appartement ideaal als je comfortabel wilt wonen in een rustige buurt, zonder dat je eerst drie weekenden in de bouwmarkt hoeft te bivakkeren. Denk aan: twee prettige slaapkamers, kunststof kozijnen met HR+, grotendeels laminaatvloeren, een frisse badkamer en een half open keuken waar je bijna zin van krijgt om te gaan koken.

De balkons zijn echte pluspunten:
•Het ruime balkon grenst aan zowel de woonkamer als de slaapkamer en ligt op het zonnige zuiden — dé plek voor je ochtendkoffie, een middag in de zon of een gezellige borrel. Hier maak je die “ik ga vaker buiten zitten”-plannen moeiteloos waar.
•Het tweede, inpandige balkon ligt aan de voorzijde bij de keuken en is een fijne extra plek om tijdens het koken even naar buiten te stappen en een frisse neus te halen.

De ligging is uitstekend: de Chirurgijnstraat ligt in de Gildenwijk, een rustige en centrale woonomgeving waar alle voorzieningen binnen handbereik zijn. Voor dagelijkse boodschappen fiets je zo naar het ‘Piazza Center’, en ook scholen en sportvoorzieningen bevinden zich in de directe nabijheid. Met de fiets ben je binnen enkele minuten in het centrum of op het station.

Verder reizen? Dankzij de gunstige ligging nabij de uitvalswegen bereik je eenvoudig steden als Utrecht en Rotterdam. Een ideale locatie om comfortabel en praktisch te wonen.

Kortom: netjes, modern, licht en klaar voor de start. Jij ook?

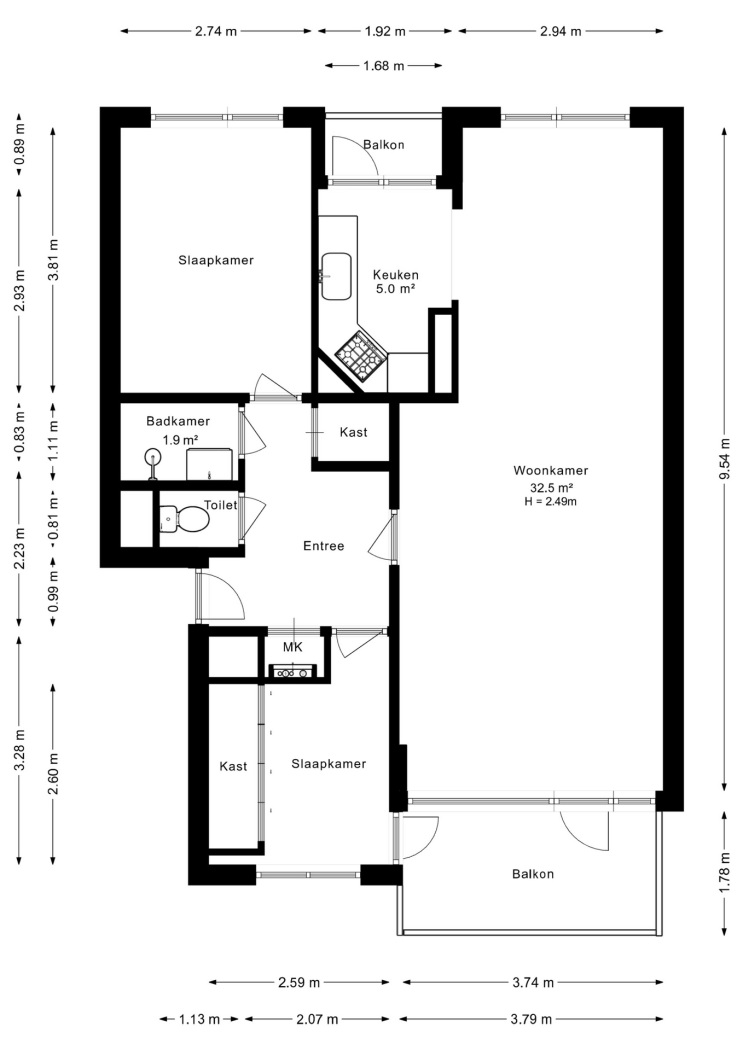
INDELING

Welkom!
De entree biedt toegang tot een ruime hal die fungeert als centraal punt in de woning. Vanuit hier bereik je de lichte woonkamer, maar ook het separate toilet, de badkamer, 2 slaapkamers, een vaste kast en de meterkast. Deze overzichtelijke indeling zorgt voor een prettig wooncomfort en een logische verbinding tussen de verschillende ruimtes.

Wonen & Koken
Via de glasdeur vanuit de hal stap je binnen in de woonkamer (32,5 m²), waar direct een warme en uitnodigende sfeer voelbaar is. De lichte wanden en nette laminaatvloer zorgen voor een frisse, open uitstraling. Er is volop ruimte voor een gezellige eethoek en een comfortabele zithoek: perfect voor ontspannen avonden in “Netflix-modus”.
Vanuit de woonkamer loop je zo het zonnige balkon (6,6 m², gelegen op het zuiden) op. Met de sfeervolle vlonders is dit een heerlijke plek om van de zon te genieten. Extra praktisch: het balkon is ook direct toegankelijk vanuit de slaapkamer.

De keuken (ca. 5 m2) staat via een rechte toog in directe verbinding met de eethoek, wat zorgt voor een open en gezellige sfeer tijdens het koken en tafelen. De praktische L-opstelling met lichte fronten geeft een frisse en ruimtelijke uitstraling en is van alle gemakken voorzien.
Extra pluspunt: het inpandige tweede balkon grenst direct aan de keuken, perfect voor een frisse neus of een kort moment buiten.

2 Slaapkamers
De eerste slaapkamer beschikt over een royale schuifwandkast en biedt directe toegang tot het balkon, een veelzijdige ruimte die zich perfect leent als werkplek, creatieve kamer of comfortabele logeerkamer. De tweede slaapkamer is ideaal als hoofdslaapkamer: ruim opgezet en moeiteloos geschikt voor een tweepersoonsbed, met alle rust en comfort die je zoekt.

Opfrissen
Via de hal bereik je zowel de badkamer als het separate toilet praktisch en logisch naast elkaar gesitueerd. De badkamer is volledig betegeld in een moderne stijl en uitgerust met een eigentijds wastafelmeubel met spiegelkast. De ruime inloopdouche, voorzien van zowel een regendouche als handdouche, maakt dit een heerlijke plek om de dag fris te beginnen of juist ontspannen af te sluiten.

Berging
Op de begane grond vind je een praktische berging van 6 m². Ideaal voor je fiets, seizoensspullen of alles wat je liever niet in huis laat slingeren. Superhandig, zo blijft je appartement zelf lekker ruim en overzichtelijk.

Highlights
•Portiek 3-kamer appartement
•Bouwjaar 1960
•Energielabel G
•Gelegen op de 3e (bovenste) verdieping, bereikbaar via de trap
•70 m² woonoppervlakte
•Twee slaapkamers
•Ruime woonkamer met directe toegang tot het balkon
•Half open keuken met inbouwapparatuur
•Twee balkons, waarvan één bereikbaar vanuit zowel de woonkamer als de slaapkamer
•Kunststof kozijnen, HR++ beglazing: comfortabel en energiezuiniger wonen
•Eigen berging, perfect voor fiets, sportuitrusting of seizoens spullen
•De servicekosten bedragen circa € 182,84,- per maand (VvE), met daarnaast een voorschot voor stookkosten van circa € 50,- per maand, wat neerkomt op een totaal van € 232,84,- per maand.
•Blokverwarming
•Rustige, prettige buurt dichtbij winkels, scholen, sport en uitvalswegen
•Er is een niet zelfbewoningsclausule van toepassing

Nieuwsgierig? Kom vooral langs, dit huis doet namelijk heel hard z’n best om jullie nieuwe favoriete plek te worden.

Lees de volledige omschrijving

Kenmerken

Overdracht

Status Beschikbaar
Aanvaarding In overleg

Bouwvorm

Soort object Appartement
Bouwjaar 1960
Bouwvorm Bestaande bouw
Ligging Aan een rustige weg, in een woonwijk

Indeling

Woonoppervlakte 70 m²
Inhoud 220 m³
Aantal kamers 3
Aantal slaapkamers 2
Aantal woonlagen 1

Energie

Energieklasse G
Energie einddatum dinsdag 15 april 2036
Isolatie Dubbel glas
Verwarming Blokverwarming

Buitenruimte

Tuin Geen tuin
Achterom Nee

Bergruimte

Garage Geen garage
Schuur / Berging Box

Parkeergelegenheid

Voorzieningen Openbaar parkeren

Dak

Dak Plat dak

Overig

Permanente bewoning Ja
Onderhoud binnen Goed
Onderhoud buiten Goed
Huidig gebruik Woonruimte
Huidige bestemming Woonruimte

Voorzieningen

Voorzieningen Tv kabel, glasvezel kabel, natuurlijke ventilatie

Kadastrale gegevens

Gemeente Gorinchem
Sectie E
Perceelnummer 1207
v1-20250318-8G0A1608E
Interesse in deze woning?

Leo helpt u graag

Gratis waardebepaling

U denkt erover uw woning te verkopen en wilt graag weten wat het waard is? We komen graag bij u langs en bepalen de waarde van uw woning.

Gratis waardebepaling

Deel deze woning

Uw persoonlijke adviseur in de regio

Maak kennis met de HypotheekWeter

Ligging

Afspraak maken voor een bezichtiging? Neem contact met ons op

Vergelijkbare woningen