0183 - 635011 0183 - 635011 Stel een vraag Stel een vraag
Open huis

Binnenbaan 27

GORINCHEM
€ 725.000,- k.k.
Open huis

Meld u telefonisch aan voor de kijkdag op donderdag 23 april 2026 van 13:00 tot 17:00 uur.

  • Woonoppervlakte 146 m2
  • Perceeloppervlakte 222 m2
  • Aantal slaapkamers 3
  • Bouwjaar 2011

Omschrijving

Open Dag | Donderdag 23 april | 13:00 – 17:00 uur
Ontdek deze woning tijdens ons speciale kijkmoment met persoonlijke bezichtigingen. Bel ons vooraf om je eigen tijdslot te reserveren. Wij ontvangen je graag voor een rustige, ontspannen rondleiding, helemaal afgestemd op jou.

Op een prachtige locatie aan het water, aan de rand van een rustige woonwijk, ligt deze moderne en ruime geschakelde 2-onder-1-kapwoning uit 2011. Met een woonoppervlakte van maar liefst ca. 146 m², een zonnig terras én een fijne tuin, is dit een woning die comfort, ruimte en een fraaie ligging perfect combineert.

Je komt binnen in een lichte en royale woonkamer, waar grote raampartijen zorgen voor een prettige sfeer en veel daglicht. Er is volop ruimte voor een comfortabele zithoek en een gezellige eettafel. Het woongedeelte loopt naadloos over in de open woonkeuken, die in 2023 volledig is vernieuwd. Deze moderne en strak afgewerkte keuken is van alle gemakken voorzien en beschikt over een stijlvol kook- en spoeleiland. Daarnaast is er nog ruimte voor een extra eethoek, wat deze ruimte ideaal maakt voor lange avonden tafelen met familie en vrienden.

Grenzend aan de woning bevindt zich de garage met berging, ideaal voor extra opslag en het stallen van fietsen. Parkeren kan gemakkelijk op de eigen oprit naast de woning of openbaar in de straat.

De achtertuin is ruim opgezet en keurig onderhouden. Hier vind je meerdere plekken om te ontspannen, van een gezellige loungehoek tot een fijne plek om buiten te eten en zelfs nog een overkapping waardoor je tijdens alle seizoenen gebruik kan maken van de buitenruimte. Achterin de tuin staat nog een extra houten berging, perfect voor het opbergen van tuingereedschap of in te richten als hobbyruimte.

Op de eerste verdieping bevinden zich twee goed bemeten slaapkamers, en een kamer die momenteel als extra opslag gebruikt wordt. De ruime hoofdslaapkamer biedt de mogelijkheid om eenvoudig op te splitsen, waardoor er gemakkelijk 3 slaapkamers op deze verdieping gerealiseerd kunnen worden. De badkamer is modern en netjes afgewerkt en voorzien van een ligbad, inloopdouche, wastafelmeubel en een extra toilet.

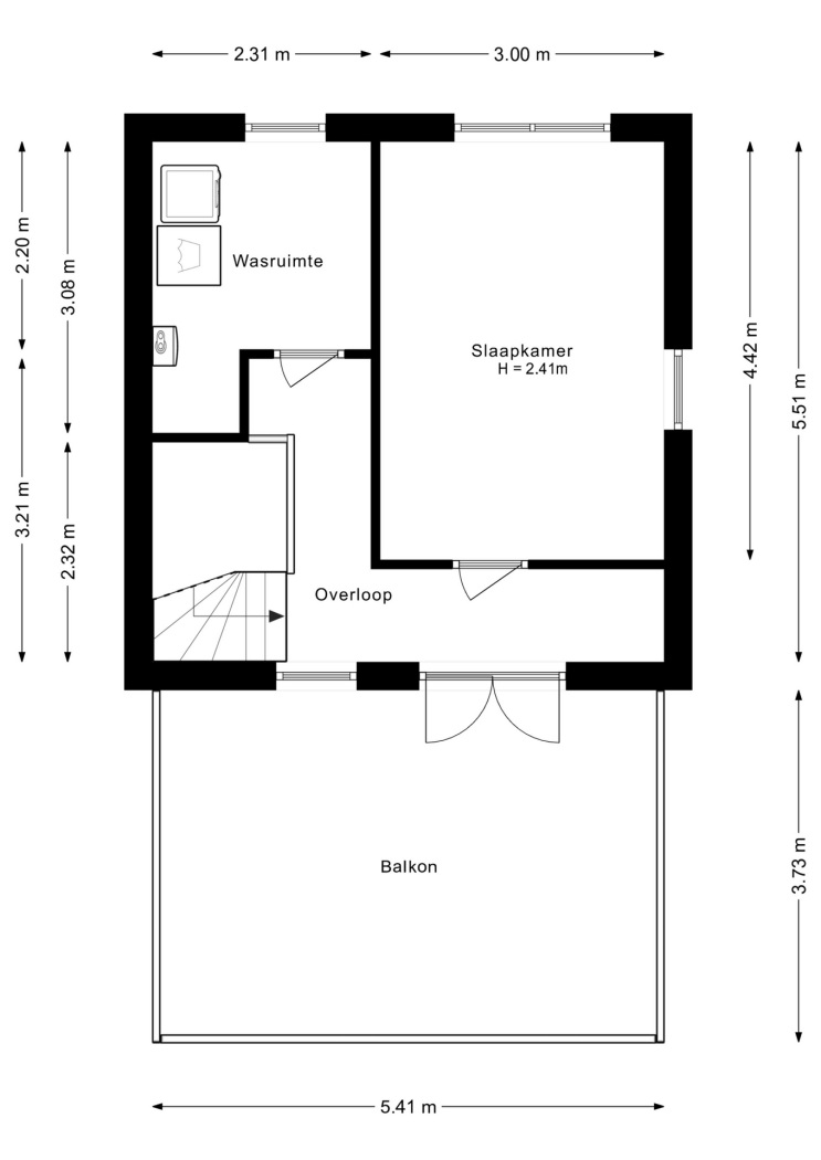
De tweede verdieping beschikt over een ruime overloop met een separate wasruimte, wat zorgt voor extra praktisch gebruiksgemak. Daarnaast vind je hier nog een extra slaapkamer, ideaal als slaap-, werk- of hobbyruimte. Vanuit deze verdieping heb je toegang tot het zonnige dakterras van ca. 3,73 meter diep, waar je in alle rust kunt genieten van de zon en het prachtige uitzicht over het water.

Kortom: een moderne, instapklare woning met volop ruimte, een heerlijke buitenbeleving en een unieke ligging aan het water!

Highlights:
* Geschakelde 2-onder-1-kapwoning uit 2011
* Woonoppervlakte ca. 146 m²
* Gelegen aan het water aan de rand van een rustige wijk
* Moderne woonkeuken (2023) met kook- en spoeleiland
* Ruime en lichte woonkamer
* 3 slaapkamers (mogelijkheid tot 4)
* Moderne badkamer met ligbad, inloopdouche en toilet
* Zonnig dakterras van ca. 3,73 m diep
* Ruime, netjes aangelegde achtertuin
* Garage met berging en eigen oprit
* Extra houten berging in de tuin
* Rustige en kindvriendelijke ligging

Wonen in Gorinchem
Wonen in Gorinchem betekent genieten van het beste van twee werelden. Deze sfeervolle vestingstad aan de Merwede staat bekend om haar historische binnenstad, gezellige horeca en diverse winkels. Binnen enkele minuten bereik je het centrum, waar je kunt struinen langs boetiekjes, genieten van een terrasje of een wandeling over de stadswallen.

Daarnaast biedt Gorinchem uitstekende voorzieningen zoals scholen, sportverenigingen en goede bereikbaarheid via uitvalswegen en openbaar vervoer. De combinatie van rust, ruimte, water en stedelijke voorzieningen maakt dit een zeer aantrekkelijke plek om te wonen.

Lees de volledige omschrijving

Kenmerken

Overdracht

Status Beschikbaar
Aanvaarding In overleg

Bouwvorm

Soort object Woonhuis
Soort woning Eengezinswoning
Type woning Geschakelde twee onder één kapwoning
Bouwjaar 2011
Bouwvorm Bestaande bouw
Ligging Aan water, in een woonwijk, vrij uitzicht

Indeling

Woonoppervlakte 146 m²
Perceeloppervlakte 222 m²
Inhoud 569 m³
Aantal kamers 5
Aantal slaapkamers 3
Aantal woonlagen 3

Energie

Energieklasse A+
Energie einddatum donderdag 20 maart 2036
Isolatie Volledig geïsoleerd
Warmwater Cv ketel
Verwarming Cv ketel, vloerverwarming gedeeltelijk

Buitenruimte

Tuin Achtertuin, zonneterras
Achterom Nee
Kwaliteit tuin Verzorgd

Bergruimte

Garage Aangebouwd steen
Schuur / Berging Vrijstaand hout
Voorzieningen Elektra

Parkeergelegenheid

Voorzieningen Openbaar parkeren, op eigen terrein

Dak

Dak Plat dak

Overig

Permanente bewoning Ja
Onderhoud binnen Goed tot uitstekend
Onderhoud buiten Goed tot uitstekend
Huidig gebruik Woonruimte
Huidige bestemming Woonruimte

Voorzieningen

Voorzieningen Mechanische ventilatie, airconditioning, glasvezel kabel, zonnepanelen

Kadastrale gegevens

Gemeente Gorinchem
Sectie F
Perceelnummer 4339
Oppervlakte 222 m²
Eigendomssituatie Volle eigendom
v1-20250318-8G0A1573E
Interesse in deze woning?

Robert helpt u graag

Gratis waardebepaling

U denkt erover uw woning te verkopen en wilt graag weten wat het waard is? We komen graag bij u langs en bepalen de waarde van uw woning.

Gratis waardebepaling

Deel deze woning

Uw persoonlijke adviseur in de regio

Maak kennis met de HypotheekWeter

Ligging

Afspraak maken voor een bezichtiging? Neem contact met ons op

Vergelijkbare woningen