0183 - 635011 0183 - 635011 Stel een vraag Stel een vraag
Beschikbaar

Wetering 1

GIESSENBURG
€ 750.000,- k.k.
  • Woonoppervlakte 156 m2
  • Perceeloppervlakte 465 m2
  • Aantal slaapkamers 4
  • Bouwjaar 1994

Omschrijving

‘De Ligplaats’ – Wonen aan het water, leven in rust

Gelijkvloers genieten in alle comfort
Welkom bij ‘De Ligplaats’. Een naam die precies vertelt wat deze vrijstaande villa belooft: een plek om tot rust te komen, om te leven in harmonie met het water, en om het buitenleven dagelijks te omarmen. Aan de rustige oevers van de Wetering ligt deze charmante semi-bungalow die comfort, privacy en sfeer naadloos combineert.

Aan de voorzijde parkeer je veilig op eigen terrein, beschut door een carport. De zorgvuldig aangelegde tuin omringt de woning met groen, gezellige zithoeken en volop zon. Het absolute hoogtepunt vormt het terras direct aan het kabbelende water. Hier begint en eindigt elke dag anders: koffie in de ochtendzon, rustig vissen, of een ontspannen tochtje met de sup of de boot.

De locatie is uitzonderlijk. De woning ligt op de hoek van de Johan de Kreijstraat en de Wetering, vlak bij een schilderachtig bruggetje en met voorzieningen, wandelroutes en een speeltuintje op korte afstand. Rust en bereikbaarheid in perfecte balans.

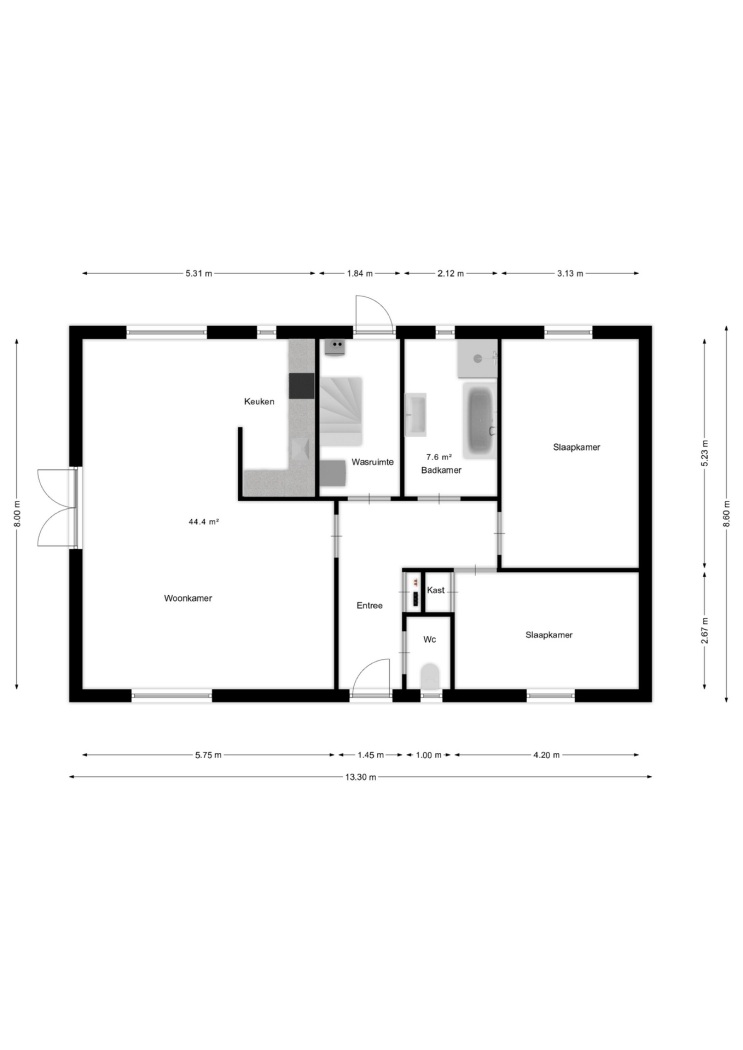
Binnen is alles ingericht voor gelijkvloers wooncomfort. De lichte woonkamer met halfopen keuken is het kloppend hart van het huis. De openslaande deuren laten het terras en de natuur moeiteloos onderdeel worden van het woongenot.
Naast de woonkamer bevinden zich op de begane grond twee slaap- of werkkamers, een nette badkamer en een praktische wasruimte. Een toekomstbestendige indeling die past bij elke woonwens.

Extra ruimte met mogelijkheden
Via de vaste trap kom je op de verdieping, waar twee royale multifunctionele kamers klaarstaan voor elke gewenste bestemming: hobbyruimte, atelier of logeerkamer, alles is denkbaar. Gevelramen en twee dakramen zorgen voor een prachtige lichtinval, waardoor de ruimtes ruim en vriendelijk aanvoelen.
‘De Ligplaats’ is meer dan een huis. Het is een leefstijl.

Een uitnodiging om te ontspannen, te genieten van de natuur en te wonen met karakter, direct aan het water.

Welkom
De entree met overdekte deurluifel vormt een uitnodigende binnenkomst. Vanuit de hal zijn alle vertrekken bereikbaar. Hier bevinden zich ook de meterkast en het toilet, praktisch en direct toegankelijk.

Wonen & Koken – comfort en sfeer aan het water
De woonkamer is een lichte en uitnodigende leefruimte, dankzij de grote raampartijen en de dubbele deuren naar het terras. Dit terras is stijlvol betegeld en omgeven door groene hagen, waardoor u hier in alle rust en privacy kunt genieten van het buitenleven. Een groot zonnescherm en rolluiken zorgen voor aangename beschutting tijdens zonnige dagen. Via een subtiel niveauverschil bereikt u het tweede terras, direct aan het water. Een zeldzaam mooie plek om te ontspannen, te genieten van het uitzicht en het kabbelende water als achtergrondgeluid te ervaren.

De woonkamer is afgewerkt met een fraaie tegelvloer en uitgerust met airconditioning. Hierdoor blijft het binnenklimaat het hele jaar door comfortabel en aangenaam.

Keuken – open en functioneel
De halfopen keuken vormt een mooi geheel met de woonkamer en is ingericht in een praktische hoekopstelling. De keuken beschikt over diverse inbouwapparatuur, waaronder een gaskookplaat, afzuigkap, koelkast, combi-oven/magnetron en een vaatwasser. Een fijne plek om te koken en tegelijkertijd in contact te blijven met de leefruimte.

Flexibel en toekomstgericht wonen
Op de begane grond bevinden zich twee sfeervolle kamers die volop mogelijkheden bieden. Of u kiest voor een slaapkamer, werkkamer of hobbyruimte, de indeling past zich moeiteloos aan uw levensstijl aan. Dankzij de nabijgelegen badkamer is gelijkvloers wonen hier comfortabel en praktisch ingericht.

De royale hoofdslaapkamer (slaapkamer 1) biedt volop rust en ruimte. Slaapkamer 2 is ideaal als logeerkamer of thuiswerkplek en beschikt over een vaste kast en airconditioning voor een aangenaam binnenklimaat, zelfs tijdens warme zomerdagen. Beide kamers kijken uit op de groene, rustige tuin, wat zorgt voor een ontspannen woonbeleving.

Badkamer – fris en functioneel
De badkamer is volledig betegeld in een neutrale kleurstelling en praktisch ingedeeld. U beschikt hier over een ligbad voor ontspannende momenten, een aparte douche met glazen deur en een royaal wastafelmeubel met veel opbergruimte. Het separate toilet bevindt zich in de hal, wat extra comfort en privacy biedt voor bewoners en gasten.

Bijkeuken – wasruimte en achterhal in één
De praktische bijkeuken vormt een ideale schakel tussen binnen en buiten. Via de achterdeur loopt u direct de tuin in, wat handig is voor het dagelijks gebruik. De ruimte is voorzien van aansluitingen voor wasmachine en droger, met daarnaast plaats voor bijvoorbeeld een extra vriezer of extra opslag. De cv-installatie is eveneens in deze ruimte geplaatst. Een vaste trap leidt hiervandaan naar de verdieping, wat de praktische indeling en het wooncomfort versterkt.

Verdieping – extra ruimte met mogelijkheden
De tweede verdieping is via een vaste trap bereikbaar en biedt verrassend veel extra ruimte. Hier bevinden zich twee lichte kamers die zich uitstekend lenen voor gebruik als hobbyruimte, werkkamer, logeerkamer of strijkkamer. De ruimtes staan met elkaar in verbinding, wat zorgt voor een prettig open en ruimtelijk gevoel.
Dankzij twee dakramen én twee gevelramen valt het daglicht royaal binnen, waardoor de kamers aangenaam en veelzijdig te gebruiken zijn. Langs de lengtezijde is praktische bergruimte gecreëerd achter de knieschotten, fraai afgewerkt met schuifdeuren. Ideaal voor het opbergen van seizoensspullen en alle items die u graag uit het zicht houdt.

Tuin & Buitenruimte – een oase aan het water
Rondom de woning ligt een fraai aangelegde tuin op een royaal perceel van circa 465 m². Aan de voorzijde springt de verzorgde uitstraling in het oog, met verhoogde plantenbakken, een strak looppad naar de voordeur en een brede oprit met rood split die leidt naar de carport met aangrenzende stenen berging van ongeveer 8 m².
De echte charme openbaart zich echter aan de achterzijde, waar de tuin uitloopt in het waterlandschap van de Wetering. Via de dubbele tuindeuren uit de woonkamer bereikt u een sfeervol terras, gesitueerd op het noordwesten en heerlijk beschut door groene hagen die optimale privacy bieden. Enkele treden lager bevindt zich een tweede, fraai bestraat terras direct aan de waterkant, omringd door smaakvol ingerichte plantenbakken.
Deze buitenruimte is meer dan een tuin. Het is een plek om te leven en te genieten van het moment.

Direct vanuit uw eigen achtertuin kunt u vissen, suppen, of met een klein bootje het water op. En wanneer de winter zich van zijn mooiste kant laat zien, biedt het bevroren water de mogelijkheid voor schaatsplezier voor de deur. Een unieke combinatie van rust, recreatie en natuurbeleving wordt hier dagelijks werkelijkheid.

Wonen in Giessenburg – rust, ruimte en uitstekende bereikbaarheid
Wonen aan de Wetering betekent genieten van vrijheid aan de rand van het dorp, terwijl alle voorzieningen binnen handbereik liggen. Scholen, sportfaciliteiten, het zwembad, winkels zoals de Albert Heijn aan het Lijnbaanplein en het gezellige dorpsplein bevinden zich op korte afstand. Binnen circa tien minuten bereikt u Gorinchem en via de A15 en A27 zijn steden zoals Rotterdam, Utrecht en Breda uitstekend bereikbaar.
Giessenburg ligt in het hart van de groene Alblasserwaard, omringd door molens, water en uitgestrekte weilanden. Een idyllische woonomgeving voor iedereen die rust en natuur waardeert, zonder afstand te doen van stedelijke voorzieningen. Op slechts een steenworp afstand stroomt de Giessen, een van de mooiste veenriviertjes van Nederland. Deze schilderachtige waterloop meandert door het karakteristieke landschap en is al eeuwen geliefd bij rustzoekers, natuurliefhebbers en watersporters.

Highlights
•Bouwjaar 1994 – Degelijke en goed onderhouden bouwkwaliteit
•Riant woonoppervlak van circa 156 m² – Ruimte om te wonen, werken en ontspannen
•Perceel van circa 465 m² eigen grond – Volop privacy en groen rondom de woning
•Eigen oprit met carport en extra parkeergelegenheid – Comfortabel voor bewoners én gasten
•Sfeervolle woonkamer met halfopen keuken van samen circa 44 m² – Met dubbele deuren naar het terras aan het water
•Twee slaap- of werkkamers op de begane grond, waarvan één met vaste kast – Klaar voor gelijkvloers wooncomfort
•Net afgewerkte badkamer op de begane grond – Praktisch en toegankelijk ingericht
•Twee multifunctionele kamers op de verdieping – Perfect voor hobby, thuiswerken of logeren
•11 zonnepanelen – Duurzame energie en lagere lasten
•Energielabel A – Uitstekende isolatie en energiezuinig wooncomfort
•Airconditioning in woonkamer en slaapkamer 2 – Aangename temperatuur in alle seizoenen
•Vrijwel geheel voorzien van rolluiken – Extra privacy, comfort en verkoeling
•Zonwering aanwezig – Beschut genieten van zonnige dagen
•Prachtige ligging aan de waterzijde – Rust, natuur en een blijvend fraai uitzicht

Lees de volledige omschrijving

Kenmerken

Overdracht

Status Beschikbaar
Aanvaarding In overleg

Bouwvorm

Soort object Woonhuis
Soort woning Villa
Type woning Vrijstaande woning
Bouwjaar 1994
Bouwvorm Bestaande bouw
Ligging Aan water, aan een rustige weg, in een woonwijk

Indeling

Woonoppervlakte 156 m²
Perceeloppervlakte 465 m²
Inhoud 545 m³
Aantal kamers 5
Aantal slaapkamers 4
Aantal woonlagen 2

Energie

Energieklasse A
Energie einddatum maandag 17 juni 2030
Isolatie Dubbel glas, volledig geïsoleerd
Warmwater Cv ketel
Verwarming Cv ketel

Buitenruimte

Tuin Tuin rondom
Hoofdtuin Tuin rondom
Achterom Ja
Kwaliteit tuin Fraai aangelegd

Bergruimte

Garage Carport, geen garage
Schuur / Berging Aangebouwd steen

Parkeergelegenheid

Voorzieningen Op eigen terrein

Dak

Dak Zadeldak

Overig

Permanente bewoning Ja
Onderhoud binnen Uitstekend
Onderhoud buiten Uitstekend
Huidig gebruik Woonruimte
Huidige bestemming Woonruimte

Voorzieningen

Voorzieningen Rolluiken, tv kabel, buitenzonwering, airconditioning, dakraam, zonnepanelen, natuurlijke ventilatie

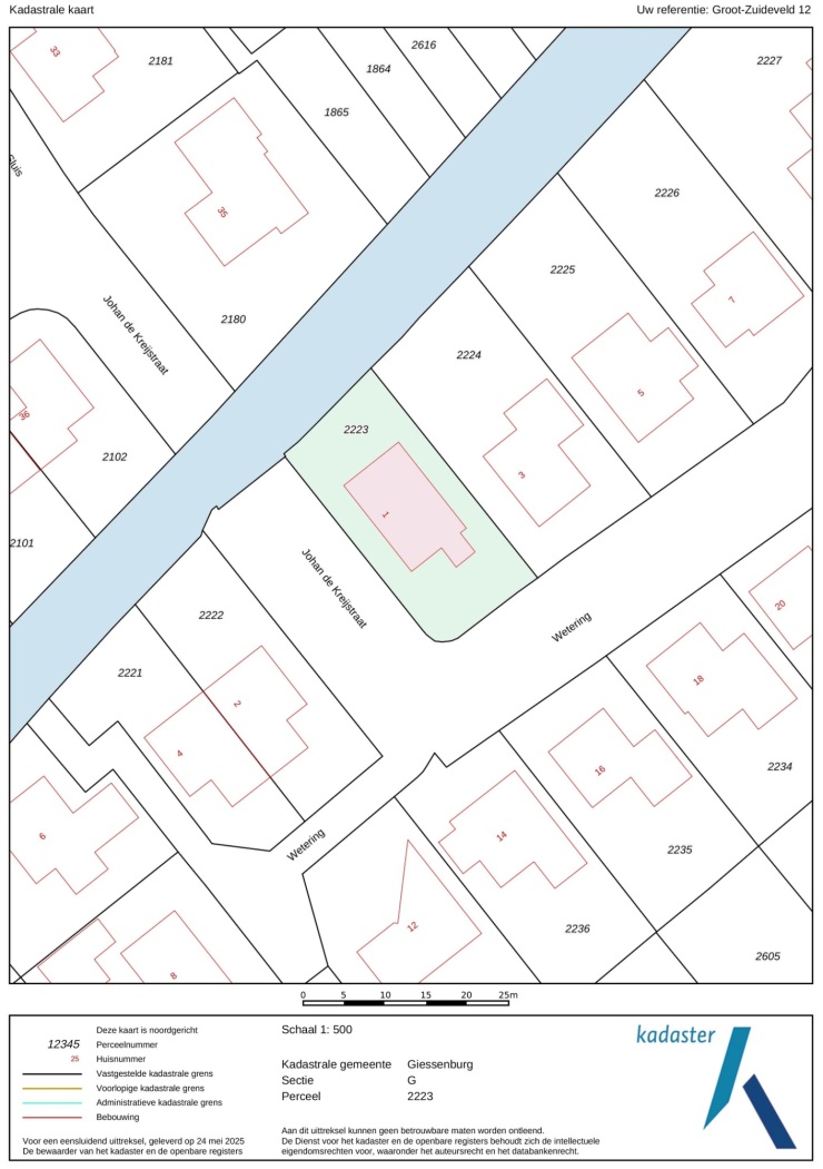
Kadastrale gegevens

Gemeente Giessenburg
Sectie G
Perceelnummer 2223
Oppervlakte 465 m²
Eigendomssituatie Volle eigendom
v1-20250318-8G0A1573E
Interesse in deze woning?

Robert helpt u graag

Gratis waardebepaling

U denkt erover uw woning te verkopen en wilt graag weten wat het waard is? We komen graag bij u langs en bepalen de waarde van uw woning.

Gratis waardebepaling

Deel deze woning

Uw persoonlijke adviseur in de regio

Maak kennis met de HypotheekWeter

Ligging

Afspraak maken voor een bezichtiging? Neem contact met ons op

Vergelijkbare woningen