0183 - 635011 0183 - 635011 Stel een vraag Stel een vraag
Beschikbaar

Muisbroekseweg 9

GIESSENBURG
€ 1.225.000,- k.k.
  • Woonoppervlakte 123 m2
  • Perceeloppervlakte 3400 m2
  • Aantal slaapkamers 5
  • Bouwjaar 1920

Omschrijving

Wonen in alle rust aan de Giessen – landelijk gelegen, omringd door natuur in stijl en comfort.

Aan de rand van het charmante Giessenburg, verscholen achter het groen en direct aan het water van de Giessen, ligt deze unieke vrijstaande woning uit 1920. Een plek waar rust, ruimte en karaktervolle architectuur samenkomen. De authentieke details dienen als eyecatchers en de woning biedt op een royaal perceel van maar liefst 3.400 m² een ongekend gevoel van vrijheid en privacy.

Vanaf de weg leidt een eigen oprijlaan je naar het hart van het perceel, waar de woning zich ontvouwt. Dankzij de beschutte ligging geniet je hier van optimale privacy, zonder concessies te doen aan uitzicht of licht. De woning wordt omringd door de tuin met begroeiing, diverse zitplekken en grenst direct aan het water. Vanuit de achtertuin stap je zó in je boot om op ontspannen wijze het water op te gaan. Varen over de Giessen is een beleving op zich.

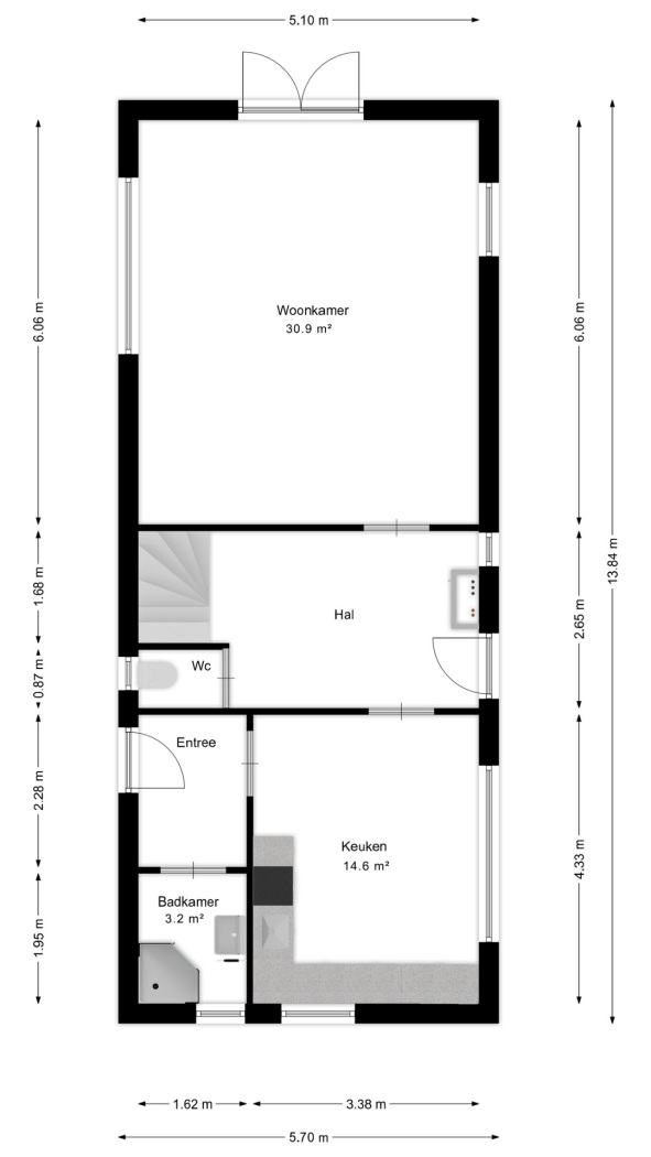
De woning is goed onderhouden, waarbij het authentieke karakter behouden is gebleven, maar het comfort van nu is toegevoegd. Binnen vind je een warme en huiselijke sfeer, met onder andere een gezellige woonkamer van 31 m², een moderne badkamer op de begane grond, vijf slaapkamers en volop bergruimte.

Rondom de woning kun je meerdere terrassen en zithoeken creëren, waar je elk moment van de dag kunt kiezen voor zon of schaduw. Of je nu 's ochtends in alle rust een kop koffie drinkt aan het water, of 's avonds met vrienden een goed glas wijn deelt. De vrijstaande stenen schuur van 29 m² is een waardevolle toevoeging: een geweldige plek voor hobbyisten of het opbergen van tuinmateriaal

Dankzij het grote perceel, de ligging langs het water en het landelijke karakter is dit ook een uitgelezen plek voor natuurliefhebbers of mensen die dromen van een eigen moestuin, kippenren of een paar schapen of geiten. Hier is het mogelijk.

Unieke kenmerken op een rij:
- Vrijstaande, karakteristieke woning uit 1920
- Stijlvol gerenoveerd met behoud van originele details
- Direct aan de Giessen – vaar vanuit je eigen tuin
- Perceel van maar liefst 3.400 m², beschut en met optimale privacy
- 5 slaapkamers en een badkamer op de begane grond
- Gezellige woonkamer van 31 m² met uitzicht op groen
- Vrijstaande stenen schuur van 29 m² voor hobby’s of opslag

Deze woning biedt niet alleen onderdak, maar ook een prettige woonomgeving waarin comfort en kwaliteit samenkomen. Het is een plek waar je de ruimte hebt om te leven zoals jij dat wilt – in alle rust, met privacy en omringd door groen en water. Dankzij de ligging aan de Giessen en het royale perceel ervaar je hier het buitenleven in alle seizoenen op z’n best.

Muisbroekseweg 9 is een zeldzame kans voor wie op zoek is naar een bijzondere, landelijke woonomgeving met comfort, charme én mogelijkheden.

Kom het ervaren en laat je betoveren door het leven aan het water.

Lees de volledige omschrijving

Kenmerken

Overdracht

Status Beschikbaar
Aanvaarding In overleg

Bouwvorm

Soort object Woonhuis
Soort woning Landhuis
Type woning Vrijstaande woning
Bouwjaar 1920
Bouwvorm Bestaande bouw
Ligging Aan water, aan een rustige weg, vrij uitzicht, beschutte ligging

Indeling

Woonoppervlakte 123 m²
Perceeloppervlakte 3400 m²
Inhoud 440 m³
Aantal kamers 6
Aantal slaapkamers 5
Aantal woonlagen 2

Energie

Energieklasse G
Energie einddatum maandag 30 december 2030
Warmwater Cv ketel

Buitenruimte

Tuin Tuin rondom
Hoofdtuin Tuin rondom
Achterom Ja
Kwaliteit tuin Verzorgd

Bergruimte

Garage Geen garage
Schuur / Berging Vrijstaand steen

Parkeergelegenheid

Voorzieningen Openbaar parkeren, op eigen terrein

Dak

Dak Zadeldak

Overig

Permanente bewoning Ja
Onderhoud binnen Goed
Onderhoud buiten Goed
Huidig gebruik Woonruimte
Huidige bestemming Woonruimte

Voorzieningen

Voorzieningen Dakraam

Kadastrale gegevens

Gemeente Giessenburg
Sectie G
Perceelnummer 2930
Oppervlakte 2215 m²
Eigendomssituatie Volle eigendom
v1-20250318-8G0A1608E
Interesse in deze woning?

Leo helpt u graag

Gratis waardebepaling

U denkt erover uw woning te verkopen en wilt graag weten wat het waard is? We komen graag bij u langs en bepalen de waarde van uw woning.

Gratis waardebepaling

Deel deze woning

Uw persoonlijke adviseur in de regio

Maak kennis met de HypotheekWeter

Ligging

Afspraak maken voor een bezichtiging? Neem contact met ons op

Vergelijkbare woningen