0183 - 635011 0183 - 635011 Stel een vraag Stel een vraag
Beschikbaar

Schotdeuren 8 C

ARKEL
€ 495.000,- k.k.
  • Woonoppervlakte 104 m2
  • Perceeloppervlakte 110 m2
  • Aantal slaapkamers 4
  • Bouwjaar 1983

Omschrijving

Wonen aan het water met vrij polderzicht – hier voelt elke dag als een beetje vakantie.
Droom je van wakker worden met kabbelend water, langsvarende boten en een uitzicht dat nooit verveelt? Dan is dit zo’n huis waar je spontaan langzamer gaat lopen om extra te genieten.

Aan het Zederikkanaal in Arkel ligt deze charmante twee-onder-een-kapwoning met inpandige garage, op misschien wel een van de mooiste plekjes van het dorp. Hier kijk je vrijuit over water en polder, met een dagelijks schouwspel van pleziervaart en beroepsvaart. Geen dag is hetzelfde – behalve dat het uitzicht altijd goed is.

Buitenleven? Dat is hier serieus genomen. Je beschikt over meerdere fijne buitenruimtes: een inpandig balkon, een balkon terras aan de woonkamer én een tuin direct aan het water. Begin je dag met koffie aan de waterkant, stap daarna op je sup of kano, of neem via het trapje een frisse duik. Zwemmen of varen vanuit je eigen tuin? Dit laat je toch niet aan je voorbijvaren.

De woning is verrassend ruim en speels ingedeeld over vier (woon)lagen. Op dijkniveau vind je de woonkamer met aansluitend een balkon terras en de inpandig bereikbare garage. De eerste verdieping telt drie slaapkamers, waaronder een royale master bedroom met toegang tot het inpandig balkon/loggia, een duobad en kastruimte, plus een complete badkamer. Op de tweede verdieping bevindt zich een vierde slaapkamer met volop bergruimte achter de knieschotten.
En dan is er nog het volwaardige souterrain: ideaal voor opslag, hobby’s of motoren, met een eigen deur naar de tuin aan het water van het Zederikkanaal – de sfeervolle verbinding tussen de Linge en het Merwedekanaal.

Kortom: een huis met karakter, ruimte en een uitzicht waar je nooit op uitgekeken raakt. Waarschuwing: eenmaal hier wil je eigenlijk niet meer weg.

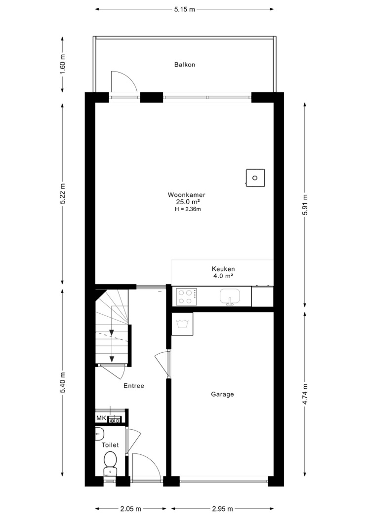
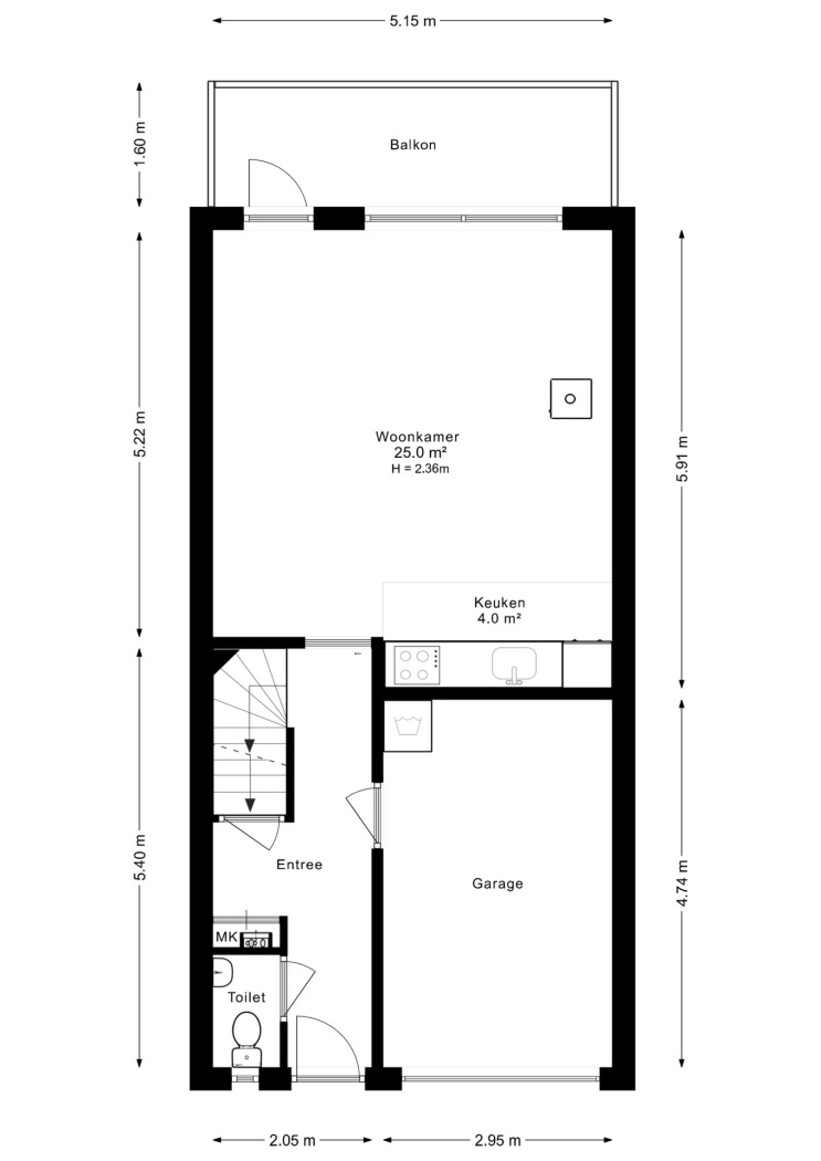
INDELING BEGANE GROND | DIJKNIVEAU

Welkom!
Via een fraaie deur met rooster betreed je de hal. Vanuit deze centrale entree heb je direct toegang tot de woonkamer, de toiletruimte en de meterkast. Ook bereik je hier de trap naar de eerste verdieping, het souterrain én de inpandige garage. Een praktische en overzichtelijke ontvangst die meteen laat zien hoe doordacht de woning is ingedeeld.

Inpandige garage
De inpandige garage van circa 14 m² is zowel praktisch als comfortabel en direct toegankelijk vanuit de hal. Dankzij de op afstand bedienbare elektrische garagedeur rijd je vanaf de weg moeiteloos naar binnen. Daarnaast is de garage voorzien van een wasmachine aansluiting, waardoor deze ruimte multifunctioneel te gebruiken is.

Wonen & koken
Via een robuuste barn schuifdeur met stoer beslag stap je de woonkamer binnen – en dan valt het uitzicht meteen op. Aan de achterzijde geniet je hier van vrij zicht over het water en het polderlandschap, met een deur naar het balkon terras van ca. 8,24 m²: een heerlijke plek om buiten te zitten en het landschap in je op te nemen.
De sfeer is warm en uitnodigend, met een gezellige houtkachel als blikvanger, een karakteristiek balkenplafond en een fraaie laminaatvloer. Rolluiken en airconditioning zorgen daarbij voor comfort in elk seizoen.
De open keuken (2017) is praktisch en stijlvol uitgevoerd in een rechte opstelling met lichte kastfronten. Voorzien van diverse inbouwapparatuur, waaronder een vaatwasmachine (2024), koelkast (2023), kookplaat, afzuigkap en combi-oven. Wonen en koken vloeien hier moeiteloos samen, met volop ruimte om te genieten van het uitzicht en het leven aan het water.

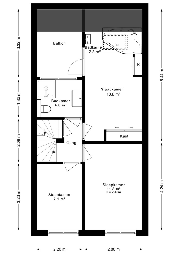
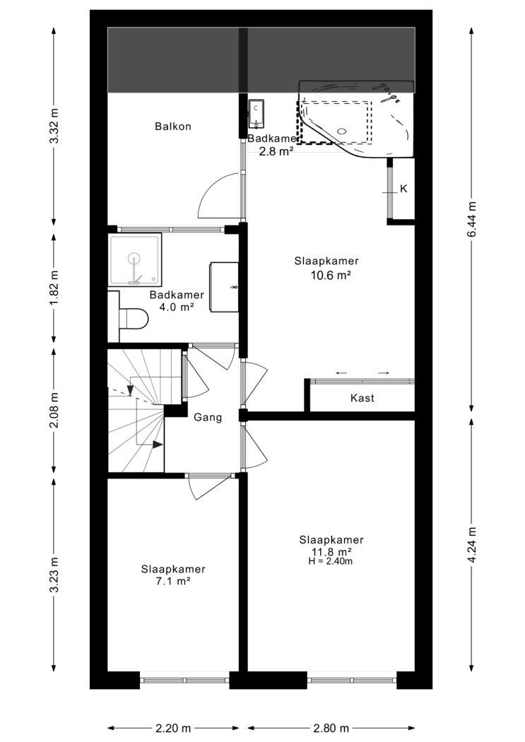
INDELING EERSTE VERDIEPING

Drie slaapkamers – comfortabel en verrassend
Op de eerste verdieping vind je drie goed bemeten slaapkamers: twee aan de voorzijde en een royale master bedroom aan de achterzijde. Deze laatste is een echte eyecatcher, ingericht met een schuifwandkast, extra kastruimte en een heerlijk duo-ligbad. Dankzij het dakraam valt er prettig daglicht binnen en via een deur stap je zo het inpandige balkon/loggia op (ca. 5,22 m²). Een fijne, privé plek om te zonnen of rustig te genieten van het uitzicht over water en polder. Alle slaapkamers zijn afgewerkt met een nette laminaatvloer, wat zorgt voor een rustige en verzorgde uitstraling.

Opfrissen & ontspannen
De moderne badkamer is strak en comfortabel ingericht met een ruime inloopdouche, een zwevend tweede toilet, een stijlvol wastafelmeubel en een elegante designradiator. Mechanische ventilatie en een klep raampje zorgen voor frisse lucht en daglicht. En wil je liever in bad ontspannen? Dat kan ook – in de master bedroom bevindt zich een heerlijk duo-ligbad voor dat extra hotelgevoel.

INDELING TWEEDE VERDIEPING

Via de overloop, met dakraam en opstelplaats voor de cv-ketel, bereik je de vierde slaapkamer. Deze kamer is licht en comfortabel dankzij het dakraam en leent zich perfect als slaap-, werk- of hobbykamer. Aan beide zijden is er volop bergruimte achter praktische schuifdeuren. De laminaatvloer zorgt voor een nette en verzorgde afwerking.

INDELING SOUTERRAIN - KELDER

Wat een verrassend fijne ruimte! Het souterrain van ca. 29,5 m² en 2 meter hoog biedt ongekend veel mogelijkheden. Dankzij ramen en een deur naar de tuin is het hier licht en prettig verblijven. De ruimte is zowel binnendoor bereikbaar via de trap in de hal als van buitenaf. Of je nu droomt van een hobbyruimte, werkplaats met werkbank, opslag voor motor, kano of sup, of gewoon een plek voor tuin- en buitenmeubels – hier kan het allemaal. Een multifunctionele ruimte die je helemaal naar eigen wens kunt invullen.

Tuin - buitenruimte
Dit is buitenleven op z’n mooist. De ca. 30 m² grote tuin ligt direct aan het Zederikkanaal en biedt een vrij, weids uitzicht over het polderlandschap. Met een eigen trapje het water in is een frisse duik zo gemaakt, of stap direct vanuit de tuin op je kano of sup. Liever ontspannen? Gooi een hengeltje uit of nestel je in de loungeset en kijk hoe de pleziervaart rustig voorbij glijdt. En ook in de winter is het hier betoverend: een stille, witte wereld aan het water die elk seizoen zijn eigen charme heeft. De tuin is gunstig gelegen op het oosten en daarmee de perfecte plek om te loungen, buiten te eten en vooral: eindeloos te genieten van het water en het uitzicht. Hier kom je vanzelf tot rust.

Highlights
•Charmante twee-onder-een-kapwoning
•Bouwjaar 1983
•Woonoppervlakte ca. 104 m²
•Overige inpandige ruimte ca. 44 m²
•Gebouwgebonden buitenruimte ca. 13 m²
•Perceeloppervlakte 110 m²
•Inpandige garage, binnendoor bereikbaar via de hal en voorzien van een op afstand bedienbare garagedeur
•Goed geïsoleerd, dubbele beglazing, 6 zonnepanelen en energielabel C
•Voorzijde dak geïsoleerd en geluidwerend
•Airconditioning en rolluiken voor extra comfort
•Woonkamer en keuken op dijkniveau, samen ca. 29 m²
•Balkon/terras aan de woonkamer van ca. 8,24 m²
•Eerste verdieping met 3 slaapkamers, waaronder een master bedroom met duobad, kastruimte en inpandig balkon/loggia
•Complete badkamer met inloopdouche, wastafelmeubel en tweede toilet
•Tweede verdieping met overloop en vierde slaapkamer, plus bergruimte
•Ruim souterrain van ca. 29,5 m² met deur naar de tuin – ideaal voor opslag, motoren of fietsen
•Tuin op het oosten, direct aan het Zederikkanaal, met trapje om te zwemmen
•Afsluitbare zijtuin met poort en achterom
•Idyllisch uitzicht over vaarwater en polders – elke dag opnieuw
•Gelegen in een fijn dorp, dichtbij voorzieningen en uitvalswegen

Lees de volledige omschrijving

Kenmerken

Overdracht

Status Beschikbaar
Aanvaarding In overleg

Bouwvorm

Soort object Woonhuis
Soort woning Eengezinswoning
Type woning Twee onder één kapwoning
Bouwjaar 1983
Bouwvorm Bestaande bouw
Ligging Aan water, aan een drukke weg, aan vaarwater, landelijk gelegen

Indeling

Woonoppervlakte 104 m²
Perceeloppervlakte 110 m²
Inhoud 522 m³
Aantal kamers 6
Aantal slaapkamers 4
Aantal woonlagen 4

Energie

Energieklasse C
Energie einddatum zondag 6 januari 2036
Isolatie Dakisolatie, muurisolatie, vloerisolatie, dubbel glas
Warmwater Cv ketel
Verwarming Cv ketel, houtkachel

Buitenruimte

Tuin Achtertuin
Hoofdtuin Achtertuin
Oppervlakte hoofdtuin 33 m²
Ligging hoofdtuin Oost
Achterom Ja
Kwaliteit tuin Verzorgd

Bergruimte

Garage Inpandig
Voorzieningen Elektra, elektrische deur

Parkeergelegenheid

Voorzieningen Openbaar parkeren

Dak

Dak Zadeldak

Overig

Permanente bewoning Ja
Onderhoud binnen Goed tot uitstekend
Onderhoud buiten Goed tot uitstekend
Huidig gebruik Woonruimte
Huidige bestemming Woonruimte

Voorzieningen

Voorzieningen Tv kabel, airconditioning, glasvezel kabel, zonnepanelen, natuurlijke ventilatie

Kadastrale gegevens

Gemeente Arkel
Sectie C
Perceelnummer 2854
Oppervlakte 110 m²
Eigendomssituatie Volle eigendom
v1-20250318-8G0A1573E
Interesse in deze woning?

Robert helpt u graag

Gratis waardebepaling

U denkt erover uw woning te verkopen en wilt graag weten wat het waard is? We komen graag bij u langs en bepalen de waarde van uw woning.

Gratis waardebepaling

Deel deze woning

Uw persoonlijke adviseur in de regio

Maak kennis met de HypotheekWeter

Ligging

Afspraak maken voor een bezichtiging? Neem contact met ons op

Vergelijkbare woningen