0183 - 635011 0183 - 635011 Stel een vraag Stel een vraag
Open huis

Richter 102

WERKENDAM
€ 450.000,- k.k.
Open huis

Meld u telefonisch aan voor de kijkdag op donderdag 19 maart 2026 van 13:00 tot 17:00 uur.

  • Woonoppervlakte 126 m2
  • Perceeloppervlakte 135 m2
  • Aantal slaapkamers 5
  • Bouwjaar 2017

Omschrijving

Open Dag | donderdag 19 maart | 13:00 – 17:00 uur
Ontdek deze woning tijdens ons speciale kijkmoment met persoonlijke bezichtigingen. Bel ons vooraf om je eigen tijdslot te reserveren. Wij ontvangen je graag voor een rustige, ontspannen rondleiding, helemaal afgestemd op jou.

Ruimte, comfort en een prachtig vrij uitzicht: welkom in deze goed onderhouden tussenwoning met maar liefst drie woonlagen en vijf slaapkamers. Een ideale gezinswoning waar je zó in kunt.

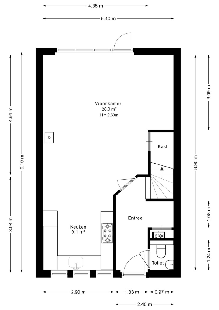
Bij binnenkomst ervaar je direct de verzorgde en moderne afwerking. De woonkamer en open keuken vormen samen het hart van de woning. Dankzij de prettige indeling is er volop ruimte voor een royale zithoek én een gezellige eethoek waar je met familie en vrienden samenkomt. De houtkachel zorgt niet alleen voor warmte maar geeft de ruimte echt extra sfeer.

De keuken is uitgevoerd in een praktische U-opstelling, modern afgewerkt en voorzien van diverse inbouwapparatuur. Hier kook je met gemak de lekkerste maaltijden terwijl je in contact blijft met het gezin of je gasten.

Vanuit de woonkamer loop je zo de achtertuin in. De tuin is ruim opgezet en keurig onderhouden, met voldoende plek voor een comfortabele loungehoek en speelruimte voor de kinderen. Wat deze tuin écht bijzonder maakt, is het vrije en groene uitzicht. De tuin grenst aan het water en een parkje, waardoor je hier volop privacy en rust ervaart, een heerlijke plek om na een lange dag tot ontspanning te komen.

Daarnaast vind je in de tuin een fijne overkapping, waardoor je het hele jaar door kunt genieten van het buitenleven, of het nu een zonnige zomerdag is of een frisse herfstavond. Achterin de tuin staat bovendien een losse berging, ideaal voor het stallen van fietsen en het opbergen van tuinspullen. Zo is ook het praktische gedeelte perfect geregeld.

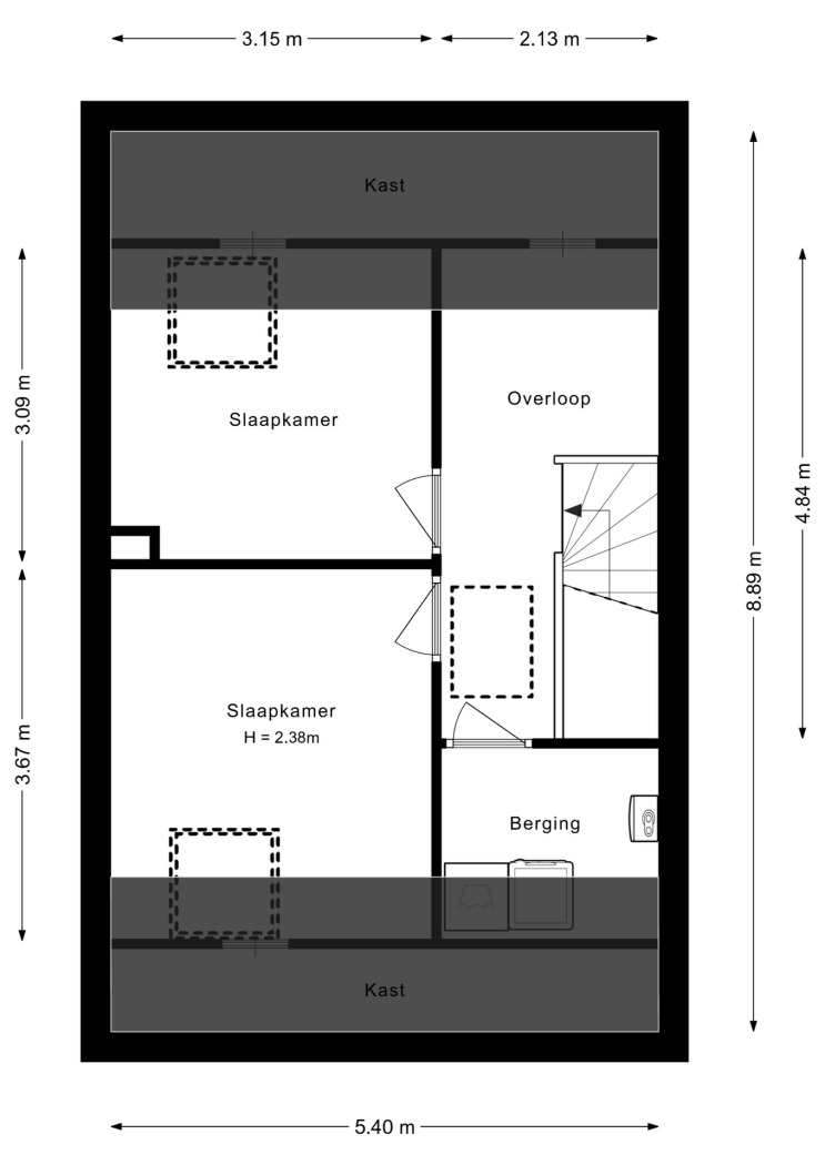
Op de eerste verdieping vind je drie goed bemeten slaapkamers, stuk voor stuk flexibel in te richten als slaap-, werk- of hobbykamer. De badkamer is verzorgd en compleet uitgevoerd met een ruime inloopdouche, tweede toilet en wastafel. De badkamer beschikt over een raam wat niet alleen zorgt voor een fijne lichtinval maar ook voor natuurlijke ventilatie.

De tweede verdieping biedt nog eens twee extra kamers. Daarnaast is er een separate ruimte met de aansluitingen voor de wasmachine en droger. Deze verdieping biedt bovendien extra opbergmogelijkheden, wat het wooncomfort verder vergroot.

Parkeren kan eenvoudig voor de deur, wat zorgt voor extra gemak in het dagelijks leven.

Kortom: een ruime, energiezuinige en instapklare woning op een fijne, groene locatie. Hier woon je comfortabel met alle ruimte die je nodig hebt.

Highlights:
* Tussenwoning met 3 woonlagen
* Woonoppervlakte van ca. 126 m2
* 5 slaapkamers
* Ruime achtertuin met vrij uitzicht
* Overkapping in de tuin met aansluitend een berging voor opslag
* Grenzend aan water en parkje
* Moderne open keuken in U-opstelling
* Goed onderhouden badkamer met inloopdouche en tweede toilet
* Separate wasruimte op zolder
* Parkeren voor de deur
* 3 zonnepanelen
* Energielabel A
* Volledig geïsoleerd
* HR++ glas
* Alle dagelijkse voorzieningen om de hoek

Wonen in Werkendam
Werkendam is een fijne plek voor wie rustig en groen wil wonen, met alle dagelijkse voorzieningen binnen handbereik. Het dorp ligt in de waterrijke omgeving van de Biesbosch en biedt een prettige combinatie van natuur en levendigheid. Scholen, winkels, sportverenigingen en horecagelegenheden zijn goed bereikbaar, en ook uitvalswegen richting omliggende steden zorgen voor een goede verbinding.

Hier woon je gemoedelijk, ruim en met volop natuur om je heen: precies wat deze woning aan de Richter 102 zo mooi weerspiegelt.

Lees de volledige omschrijving

Kenmerken

Overdracht

Status Beschikbaar
Aanvaarding In overleg

Bouwvorm

Soort object Woonhuis
Soort woning Eengezinswoning
Type woning Tussenwoning
Bouwjaar 2017
Bouwvorm Bestaande bouw
Ligging Aan water, aan een park, in een woonwijk, vrij uitzicht

Indeling

Woonoppervlakte 126 m²
Perceeloppervlakte 135 m²
Inhoud 458 m³
Aantal kamers 6
Aantal slaapkamers 5
Aantal woonlagen 4

Energie

Energieklasse A
Energie einddatum zondag 31 januari 2027
Isolatie Volledig geïsoleerd
Warmwater Cv ketel
Verwarming Cv ketel, vloerverwarming gedeeltelijk, houtkachel

Buitenruimte

Tuin Achtertuin, voortuin
Achterom Nee
Kwaliteit tuin Verzorgd

Bergruimte

Garage Geen garage
Schuur / Berging Vrijstaand hout

Parkeergelegenheid

Voorzieningen Openbaar parkeren

Dak

Dak Zadeldak

Overig

Permanente bewoning Ja
Onderhoud binnen Goed tot uitstekend
Onderhoud buiten Goed tot uitstekend
Huidig gebruik Woonruimte
Huidige bestemming Woonruimte

Voorzieningen

Voorzieningen Mechanische ventilatie, rolluiken, buitenzonwering, dakraam, glasvezel kabel, zonnepanelen

Kadastrale gegevens

Gemeente Werkendam
Sectie R
Perceelnummer 3495
Oppervlakte 135 m²
Eigendomssituatie Volle eigendom
PLR55485
Interesse in deze woning?

Dionne helpt u graag

Gratis waardebepaling

U denkt erover uw woning te verkopen en wilt graag weten wat het waard is? We komen graag bij u langs en bepalen de waarde van uw woning.

Gratis waardebepaling

Deel deze woning

Uw persoonlijke adviseur in de regio

Maak kennis met de HypotheekWeter

Ligging

Afspraak maken voor een bezichtiging? Neem contact met ons op

Vergelijkbare woningen