0183 - 635011 0183 - 635011 Stel een vraag Stel een vraag
Beschikbaar

Keizerstraat 43

WERKENDAM
€ 235.000,- k.k.
  • Woonoppervlakte 43 m2
  • Aantal slaapkamers 1
  • Bouwjaar 1930

Omschrijving

Open Dag | Donderdag 4 december | 13:00 – 17:00 uur
Ontdek deze woning tijdens ons speciale kijkmoment met persoonlijke bezichtigingen. Bel ons vooraf om je eigen tijdslot te reserveren. Wij ontvangen je graag voor een rustige, ontspannen rondleiding, helemaal afgestemd op jou.

Starters opgelet!
Ben je klaar om op jezelf te gaan wonen, maar wil je geen vermogen uitgeven? Dan hebben wij jouw nieuwe stekkie gevonden. Midden in het centrum van Werkendam staat deze super sfeervolle, recent gemoderniseerde starterswoning op de begane grond op je te wachten — fris, compleet, betaalbaar én helemaal gelijkvloers. Kortom: instappen en wonen maar.

Je komt binnen via de hal met toilet en frisse badkamer, stapt door naar een fijne woonkamer met praktische draai-kiepramen, een moderne keuken met apparatuur voor al je kookkunsten (of je pogingen daartoe), een aparte wasruimte en een slaapkamer met twee elektrische daklichten mét zonwering. Zo word je dus nooit per ongeluk door de zon gewekt—tenzij je dat wil.

De woning ligt heerlijk rustig, nét achter het gezellige dorpscentrum. Dus geen drukte, wél alle dagelijkse voorzieningen binnen handbereik. Even shoppen, een hapje eten of die ene vergeten boodschap halen? Het kan allemaal letterlijk om de hoek. En in het ergste geval zijn er altijd nog verschillende afhaalmogelijkheden.
Elke dag vers brood, verse groenten en vlees of vis… Alles ligt binnen loopafstand op je te wachten. Handig toch?

Highlights
•Bouwjaar 1930 – volledig gemoderniseerd in 2021
•Woonoppervlakte: 43 m² – compact, praktisch en sfeervol
•Energielabel C
•Volledige dubbele beglazing
•Moderne laminaatvloeren door de hele woning
•Woonkamer met open keuken: 23 m² – lichte en comfortabele leefruimte
•Keuken met inductiekookplaat, RVS-afzuigkap, combi-oven, koelkast en vaatwasser
•Slaapkamer met twee elektrische daklichten voorzien van zonwering
•Separate wasruimte met c.v.-opstelling
•Badkamer met douchecabine en wastafel
•Separaat toilet
•Remeha Avanta combiketel (2021)
•Kleinschalige VvE (Hoogstraat 105, 105A, 105B & Keizerstraat 43) met een bijdrage van ca. € 95 per maand
•Voorzien van rookmelders conform de huidige eisen
•Rustige centrale locatie op loopafstand van winkels en voorzieningen

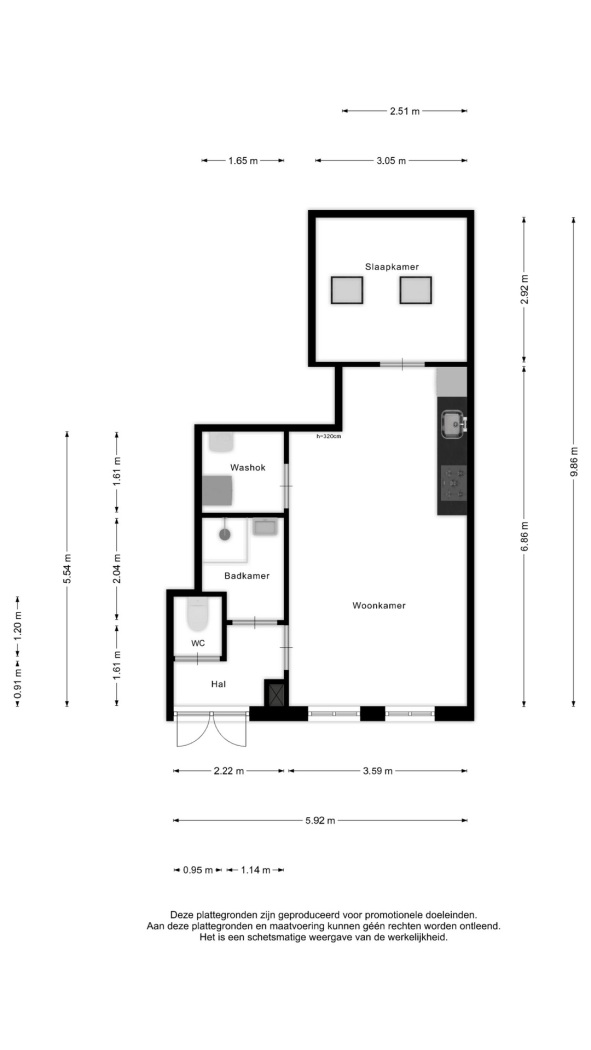
INDELING BEGANE GROND

Welkom!
Via de dubbele openslaande deuren stap je binnen in de hal, waar een stijlvolle donkere plavuizenvloer je meteen verwelkomt. Vanuit hier heb je toegang tot het moderne, zwevende toilet, de frisse badkamer en natuurlijk de gezellige woonkamer.

Wonen & Koken
De woonkamer met open keuken (ca. 23 m²) is een heerlijke, lichte ruimte dankzij de twee draai-kiepramen aan de voorzijde. Met een plafondhoogte van maar liefst 3,20 meter voelt het hier bijna alsof je in een mini-loft woont—maar dan zonder het bijbehorende prijskaartje. De laminaatvloer maakt het geheel strak en onderhoudsvriendelijk.
De keuken heeft een rechte opstelling met lichte fronten en is van alle gemakken voorzien: een inductiekookplaat voor je culinaire experimenten (of simpelweg je pasta), een RVS-afzuigkap, combi-oven, koelkast en natuurlijk een vaatwasser—want als starter heb je wel wat beters te doen dan afwassen.

Slaapkamer
Direct vanuit de leefruimte bereik je de slaapkamer, een fijne, rustige plek met twee elektrische daklichten die je met één druk op de knop opent of sluit. Dankzij de geïntegreerde zonwering bepaal je zelf of je wakker wordt met zonnestralen of juist nog even in je cocon blijft. De doorlopende laminaatvloer zorgt voor een rustige, moderne uitstraling.

Badkamer
Vanuit de hal bereik je de badkamer, die is uitgerust met een moderne douchecabine met zowel een regendouche als een handdouche. De wastafel wordt sfeervol aangevuld met een ronde spiegel. De ruimte is volledig betegeld met frisse witte wandtegels en stijlvolle, donker gekleurde vloertegels, wat zorgt voor een strakke en eigentijdse uitstraling.

Wasruimte & c.v.-ruimte
Een praktische en overzichtelijke ruimte met de opstelplaats voor de combiketel, mechanische ventilatie én de aansluiting voor de wasmachine. Ideaal om al je apparatuur netjes uit het zicht te houden — alles georganiseerd, precies zoals je het wilt.

Ligging
De woning grenst direct aan de Keizerstraat, en achter de woning ligt de levendige winkelstraat van Werkendam. Hier vind je een verrassend breed aanbod aan winkels, horeca en voorzieningen — ideaal voor een snelle boodschap of gewoon even lekker rondstruinen.
Scholen, sportclubs, zorgverleners en andere dagelijkse voorzieningen liggen allemaal op prettige fietsafstand. In de zomermaanden is de rivier De Merwede dé plek om te relaxen: zonnen aan het water, genieten van het uitzicht of met het pontje zo naar de binnenstad van Gorinchem.

Ben je een natuurliefhebber? Dan is Nationaal Park De Biesbosch praktisch je achtertuin. Dit prachtige waterrijke natuurgebied sluit direct aan op het dorp en biedt volop mogelijkheden om te wandelen, varen, suppen of gewoon even helemaal tot rust te komen.

Werkendam heeft daarnaast een actief verenigingsleven, genoeg sportmogelijkheden en een gezellige jachthaven. En qua bereikbaarheid zit je goed: binnen vijf minuten zit je op de A27 of A15, en het openbaar vervoer vanaf De Tol is prima geregeld.

Kortom: centrale ligging, veel voorzieningen, en volop natuur & gezelligheid binnen handbereik.

Lees de volledige omschrijving

Kenmerken

Overdracht

Status Beschikbaar
Aanvaarding In overleg

Bouwvorm

Soort object Appartement
Bouwjaar 1930
Bouwvorm Bestaande bouw
Ligging Aan een rustige weg, in het centrum

Indeling

Woonoppervlakte 43 m²
Inhoud 172 m³
Aantal kamers 2
Aantal slaapkamers 1
Aantal woonlagen 1

Energie

Energieklasse C
Energie einddatum maandag 31 mei 2032
Isolatie Dubbel glas
Warmwater Cv ketel
Verwarming Cv ketel

Buitenruimte

Tuin Geen tuin
Achterom Nee

Bergruimte

Garage Geen garage

Parkeergelegenheid

Voorzieningen Openbaar parkeren

Dak

Dak Plat dak

Overig

Permanente bewoning Ja
Onderhoud binnen Goed
Onderhoud buiten Goed
Huidig gebruik Woonruimte
Huidige bestemming Woonruimte

Voorzieningen

Voorzieningen Mechanische ventilatie, tv kabel, natuurlijke ventilatie

Kadastrale gegevens

Gemeente Werkendam
Sectie O
Perceelnummer 2956
Eigendomssituatie Volle eigendom
PLR55485
Interesse in deze woning?

Dionne helpt u graag

Gratis waardebepaling

U denkt erover uw woning te verkopen en wilt graag weten wat het waard is? We komen graag bij u langs en bepalen de waarde van uw woning.

Gratis waardebepaling

Deel deze woning

Uw persoonlijke adviseur in de regio

Maak kennis met de HypotheekWeter

Ligging

Afspraak maken voor een bezichtiging? Neem contact met ons op

Vergelijkbare woningen