0183 - 635011 0183 - 635011 Stel een vraag Stel een vraag
Open huis

Prattenburg 89

DORDRECHT
€ 395.000,- k.k.
Open huis

Meld u telefonisch aan voor de kijkdag op dinsdag 14 april 2026 van 13:00 tot 17:00 uur.

  • Woonoppervlakte 107 m2
  • Perceeloppervlakte 153 m2
  • Aantal slaapkamers 3
  • Bouwjaar 1977

Omschrijving

Open Dag | Dinsdag 14 april | 13:00 – 17:00 uur
Ontdek deze woning tijdens ons speciale kijkmoment met persoonlijke bezichtigingen. Bel ons vooraf om je eigen tijdslot te reserveren. Wij ontvangen je graag voor een rustige, ontspannen rondleiding, helemaal afgestemd op jou.

Aan de Prattenburg 89 in Dordrecht vind je deze fijne eengezinswoning met volop mogelijkheden en een prettige, rustige ligging.

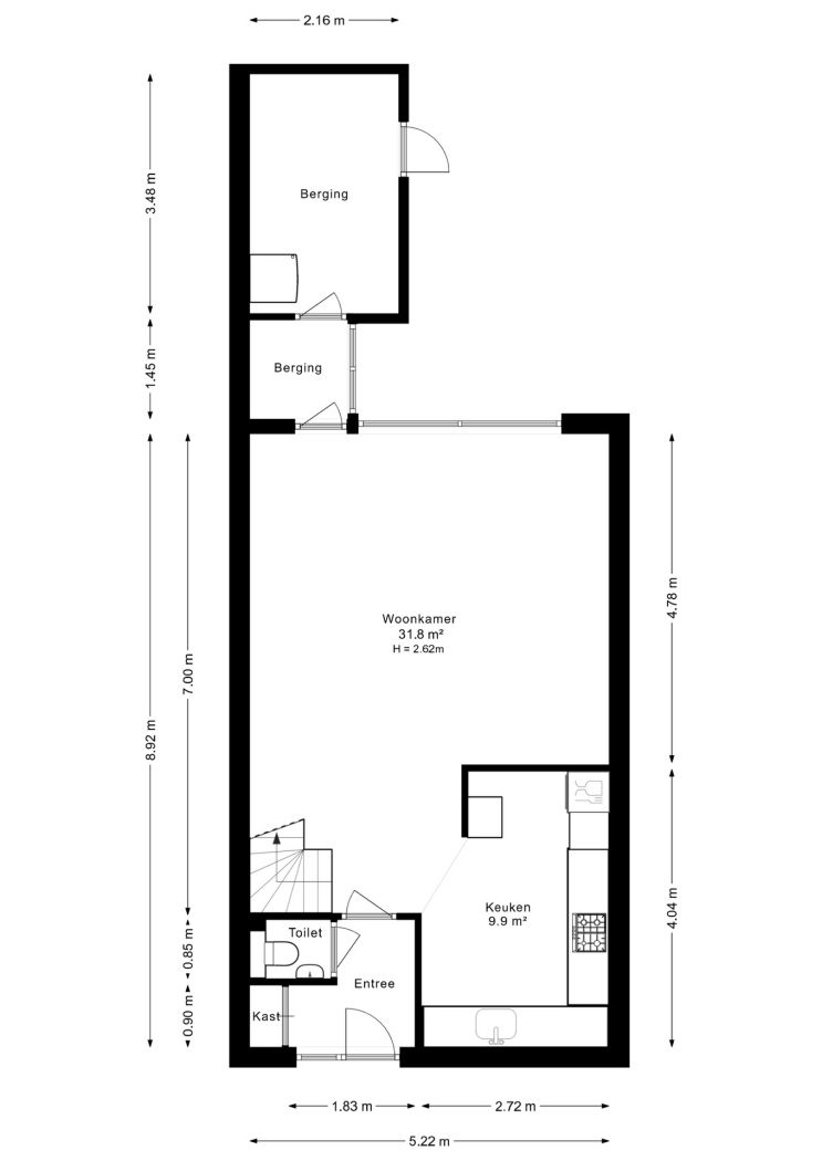
De woning beschikt over een lichte en open woonkamer met raampartijen aan zowel de voor- als achterzijde, wat zorgt voor een aangename lichtinval en een ruimtelijk gevoel. Hier is voldoende plek voor een comfortabele zit- en eethoek, ideaal om te ontspannen of gezellig samen te zijn.

Aansluitend bevindt zich de netjes onderhouden en ruim opgezette keuken, voorzien van inbouwapparatuur en alle gemakken voor dagelijks kookplezier. Vanuit de woonkamer stap je zo de achtertuin in: een ruime buitenruimte met genoeg plek voor een fijne loungehoek of eettafel om van het buitenleven te genieten. Aangebouwd aan de woning bevindt zich een stenen berging wat ideaal is voor het stallen van fietsen en het opbergen van tuinspullen.

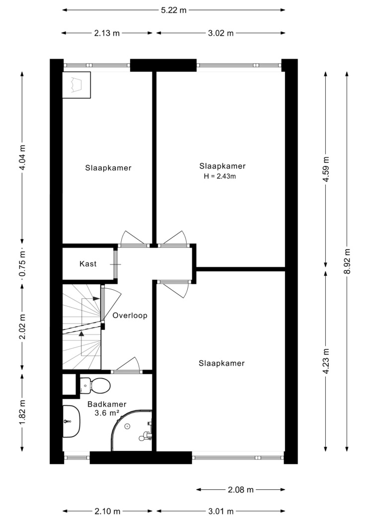
Op de eerste verdieping vind je drie goed bemeten slaapkamers, die flexibel zijn in te richten als slaap-, werk- of hobbykamer. De badkamer is ruim, verzorgd en compleet uitgevoerd, waardoor het hier aan comfort niet ontbreekt.

De zolderverdieping biedt extra potentie: deze ruimte dient nog gerenoveerd te worden, maar biedt volop mogelijkheden om naar eigen wens in te delen, bijvoorbeeld als extra slaapkamer of werkruimte. Tevens bevinden zich hier de aansluitingen voor de wasmachine en droger.

Highlights van de woning:
* Bouwjaar 1977
* Woonoppervlakte ca. 107 m²
* Energielabel C
* Voorzien van zonnepanelen
* CV installatie bestuurbaar via een app
* Glasvezelkabel aanwezig
* Lichte doorzon woonkamer
* Ruime en netjes onderhouden keuken met inbouwapparatuur
* Drie volwaardige slaapkamers op de eerste verdieping
* Ruime, verzorgde badkamer
* Zolderverdieping met veel potentie
* Achtertuin met voldoende ruimte voor een loungehoek
* Stenen berging aan de woning vast
* Vrij en groen uitzicht, nabij het water
* Recent vernieuwd dak
* Openbaar parkeren voor de deur
* Gelegen nabij winkels, scholen en openbaar vervoer
* Goede bereikbaarheid richting uitvalswegen

Wonen in Dordrecht betekent wonen in een stad met karakter, historie en volop levendigheid. Als oudste stad van Holland ademt Dordrecht sfeer: van de charmante, smalle straatjes in de historische binnenstad tot de indrukwekkende havens en monumentale panden langs het water. Hier wandel je zo langs gezellige terrassen, boetiekjes en goede restaurants, terwijl je tegelijkertijd geniet van een rustige en gemoedelijke woonomgeving.

Wat Dordrecht extra aantrekkelijk maakt, is de combinatie van stad en natuur. Nationaal Park De Biesbosch ligt praktisch om de hoek en biedt volop mogelijkheden voor wandelen, fietsen en varen. Ideaal voor wie graag even de drukte wil ontvluchten en de natuur in wil trekken.

De woning is gelegen op een prettige locatie met een vrij en groen uitzicht en nabij het water, wat zorgt voor een fijne woonbeleving. Parkeren kan openbaar voor de deur en alle dagelijkse voorzieningen, zoals winkels, scholen en openbaar vervoer, zijn binnen handbereik. Daarnaast is de bereikbaarheid richting omliggende steden uitstekend, zowel met de auto als met het OV.

Kortom: een comfortabele gezinswoning met veel licht, ruimte én mogelijkheden op een mooie locatie in Dordrecht!

Lees de volledige omschrijving

Kenmerken

Overdracht

Status Beschikbaar
Aanvaarding In overleg

Bouwvorm

Soort object Woonhuis
Soort woning Eengezinswoning
Type woning Eindwoning
Bouwjaar 1977
Bouwvorm Bestaande bouw

Indeling

Woonoppervlakte 107 m²
Perceeloppervlakte 153 m²
Inhoud 361 m³
Aantal kamers 4
Aantal slaapkamers 3
Aantal woonlagen 3

Energie

Energieklasse C
Energie einddatum zondag 9 maart 2036
Isolatie Dubbel glas
Warmwater Cv ketel
Verwarming Cv ketel

Buitenruimte

Tuin Achtertuin
Hoofdtuin Achtertuin
Oppervlakte hoofdtuin 83 m²
Ligging hoofdtuin West
Achterom Ja
Kwaliteit tuin Verzorgd

Bergruimte

Garage Geen garage
Schuur / Berging Aangebouwd steen

Parkeergelegenheid

Voorzieningen Openbaar parkeren

Dak

Dak Zadeldak

Overig

Permanente bewoning Ja
Onderhoud binnen Redelijk tot goed
Onderhoud buiten Redelijk tot goed
Huidig gebruik Woonruimte
Huidige bestemming Woonruimte

Voorzieningen

Voorzieningen Tv kabel, dakraam, zonnepanelen

Kadastrale gegevens

Gemeente Dordrecht
Sectie Q
Perceelnummer 7847
Oppervlakte 153 m²
Eigendomssituatie Volle eigendom
v1-20250318-8G0A1608E
Interesse in deze woning?

Leo helpt u graag

Gratis waardebepaling

U denkt erover uw woning te verkopen en wilt graag weten wat het waard is? We komen graag bij u langs en bepalen de waarde van uw woning.

Gratis waardebepaling

Deel deze woning

Uw persoonlijke adviseur in de regio

Maak kennis met de HypotheekWeter

Ligging

Afspraak maken voor een bezichtiging? Neem contact met ons op

Vergelijkbare woningen