0183 - 635011 0183 - 635011 Stel een vraag Stel een vraag
Beschikbaar

Nellie Bodenheimstraat 27

GORINCHEM
€ 425.000,- k.k.
  • Woonoppervlakte 97 m2
  • Perceeloppervlakte 137 m2
  • Aantal slaapkamers 3
  • Bouwjaar 1989

Omschrijving

Wonen met comfort en ruimte aan de Nellie Bodenheimstraat 27 in Gorinchem

Welkom aan de Nellie Bodenheimstraat 27 in Gorinchem! Deze fijne eindwoning met een woonoppervlakte van circa 97 m² biedt een prettige leefruimte, een praktische indeling en een fijne achtertuin op het noordwesten: een heerlijke plek om te ontspannen na een lange dag.

De woonkamer is ruim en licht en vormt samen met de open keuken een gezellige leefruimte waar koken, eten en ontspannen moeiteloos samenkomen. Vanuit de woonkamer stap je direct de achtertuin in, wat zorgt voor een fijne verbinding tussen binnen en buiten.

De achtertuin biedt voldoende ruimte voor een comfortabele lounge- of zithoek waar je kunt genieten van de middag- en avondzon. Achterin de tuin staat een stenen berging, ideaal voor het stallen van fietsen en extra opslag.

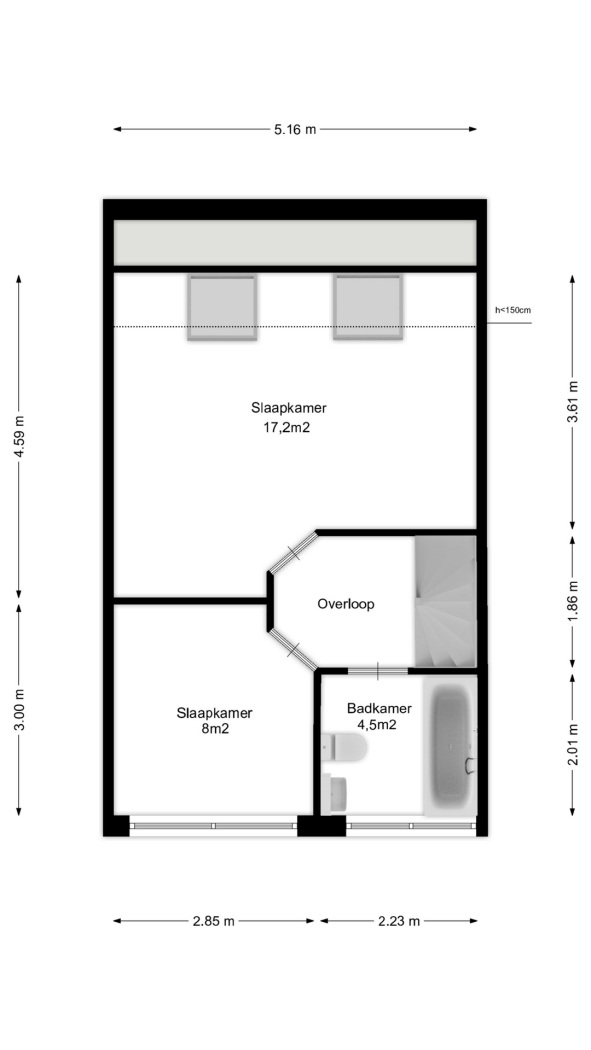
Op de eerste verdieping bevinden zich twee goed bemeten slaapkamers. Beide kamers zijn flexibel in te richten, bijvoorbeeld als slaapkamer, werkkamer of hobbyruimte. De badkamer is functioneel ingericht en voorzien van een ligbad, toilet en wastafelmeubel.

De tweede verdieping biedt nog een extra slaapkamer. Op de overloop vind je daarnaast de aansluitingen voor de wasmachine en droger, wat zorgt voor extra praktisch woongemak.

Highlights van de woning:
* Eindwoning met circa 97 m² woonoppervlakte
* Energielabel B
* 8 zonnepanelen
* Fijne achtertuin op het noordwesten met stenen berging
* Ruime en lichte woonkamer met open keuken
* 3 slaapkamers verdeeld over twee verdiepingen
* Badkamer met ligbad, toilet en wastafelmeubel
* Aansluitingen voor wasmachine en droger op de tweede verdieping
* Gelegen in een prettige woonwijk aan een rustige weg
* Parkeren voor de deur
* Voorzieningen zoals winkels, scholen en uitvalswegen op korte afstand

Wonen in Gorinchem
Gorinchem is een sfeervolle vestingstad waar historie, levendigheid en wooncomfort mooi samenkomen. De stad staat bekend om haar karakteristieke binnenstad met gezellige straatjes, leuke winkels, restaurants en terrassen aan de rivier de Merwede. De historische stadswallen en groene parken geven Gorinchem bovendien een unieke uitstraling en maken het een fijne plek om te wandelen of te ontspannen.

Naast de charme van de binnenstad biedt Gorinchem ook alle dagelijkse voorzieningen binnen handbereik. Denk aan scholen, sportverenigingen, supermarkten en diverse winkelcentra. Ook qua bereikbaarheid ligt de stad gunstig: met goede verbindingen richting onder andere Utrecht, Breda en Rotterdam via de A15 en A27 is Gorinchem een prettige uitvalsbasis voor forenzen.

Kortom: een comfortabele eindwoning met een prettige indeling, meerdere slaapkamers en een fijne tuin: een heerlijke plek om thuis te komen.

Lees de volledige omschrijving

Kenmerken

Overdracht

Status Beschikbaar
Aanvaarding In overleg

Bouwvorm

Soort object Woonhuis
Soort woning Eengezinswoning
Type woning Eindwoning
Bouwjaar 1989
Bouwvorm Bestaande bouw
Ligging Aan een rustige weg, in een woonwijk

Indeling

Woonoppervlakte 97 m²
Perceeloppervlakte 137 m²
Inhoud 370 m³
Aantal kamers 4
Aantal slaapkamers 3
Aantal woonlagen 3

Energie

Energieklasse B
Energie einddatum zaterdag 16 februari 2036
Isolatie Dakisolatie, vloerisolatie, dubbel glas, volledig geïsoleerd
Warmwater Cv ketel
Verwarming Cv ketel, vloerverwarming gedeeltelijk

Buitenruimte

Tuin Achtertuin, voortuin
Hoofdtuin Achtertuin
Oppervlakte hoofdtuin 54 m²
Ligging hoofdtuin Noord-west
Achterom Ja
Kwaliteit tuin Normaal

Bergruimte

Garage Geen garage
Schuur / Berging Vrijstaand steen

Parkeergelegenheid

Voorzieningen Openbaar parkeren

Dak

Dak Zadeldak

Overig

Permanente bewoning Ja
Onderhoud binnen Goed
Onderhoud buiten Goed
Huidig gebruik Woonruimte
Huidige bestemming Woonruimte

Voorzieningen

Voorzieningen Mechanische ventilatie, rolluiken, dakraam, zonnepanelen

Kadastrale gegevens

Gemeente Gorinchem
Sectie F
Perceelnummer 1576
Oppervlakte 137 m²
Eigendomssituatie Volle eigendom
v1-20250318-8G0A1573E
Interesse in deze woning?

Robert helpt u graag

Gratis waardebepaling

U denkt erover uw woning te verkopen en wilt graag weten wat het waard is? We komen graag bij u langs en bepalen de waarde van uw woning.

Gratis waardebepaling

Deel deze woning

Uw persoonlijke adviseur in de regio

Maak kennis met de HypotheekWeter

Ligging

Afspraak maken voor een bezichtiging? Neem contact met ons op

Vergelijkbare woningen