0183 - 635011 0183 - 635011 Stel een vraag Stel een vraag
Verkocht onder voorbehoud

Kleine Haarsekade 30

GORINCHEM
€ 525.000,- k.k.
  • Woonoppervlakte 151 m2
  • Perceeloppervlakte 175 m2
  • Aantal slaapkamers 4
  • Bouwjaar 1932

Omschrijving

Tijdloze klasse, met oog voor detail en comfort

Sommige huizen geven je direct een goed gevoel. Dit statige rijtje van drie, precies dit fijne huis in het midden, is daar een prachtig voorbeeld van. De sfeer van de jaren dertig is hier nog volop aanwezig en voelbaar in elk detail. Zelfs leeg is dit een huis dat indruk maakt.

Je komt binnen via de halfronde voordeur, in een vestibule met karakteristieke art-deco-tegellambrisering en een prachtig patroon onder je voeten. Paneeldeuren, een kamer-en-suite met schuifdeuren voorzien van kunstig glas-in-lood en vaste kasten zoals het hoort: authentiek, stijlvol en met zorg behouden. De marmeren haard met houtkachel zorgt voor extra warmte en gezelligheid. De voorkamer met erker en de achterkamer met dubbele openslaande deuren worden royaal verlicht en staan in directe verbinding met de tuin, waar bovenlichten met glas-in-lood het licht nog mooier maken.

De keuken is apart gelegen en beschikt eveneens over een deur naar de tuin — praktisch en prettig, precies zoals het ooit bedoeld is en nog altijd zo fijn werkt.

Op de eerste verdieping bevinden zich drie ruim bemeten slaapkamers, allen bereikbaar via karakteristieke paneeldeuren. Eén slaapkamer beschikt over een balkon en een royale inbouwkast; de overige kamers zijn eveneens voorzien van vaste kasten. Daarnaast is er een separaat toilet en een moderne badkamer, fraai afgewerkt en voorzien van een glas-in-lood raam, waardoor comfort en karakter naadloos samenkomen.

De tweede verdieping is recent voorzien van een dakkapel en dakramen. De mooie hoogte en lichte ruimte bieden volop mogelijkheden voor het creëren van extra slaapkamers, een werkruimte of geheel naar eigen wens in te delen.

De achtertuin ligt op het oosten en is een beschutte plek met een stenen berging en een overkapping. Via de achterom met poort is de tuin bereikbaar vanaf de Lange Slagenstraat. Op het dak zijn in 2023 bovendien 12 zonnepanelen geplaatst, wat bijdraagt aan het comfort van nu en de toekomst.

De recent vernieuwde straat is ingericht als 30 km/uur-zone en voorzien van parkeerruimte en groenstroken. Vanuit deze fijne plek in de Haarwijk wandel of fiets je in korte tijd naar zowel het centrum als het station.

Een huis met karakter, geschiedenis én toekomst. Zo’n woning waar je elke dag opnieuw blij van wordt.

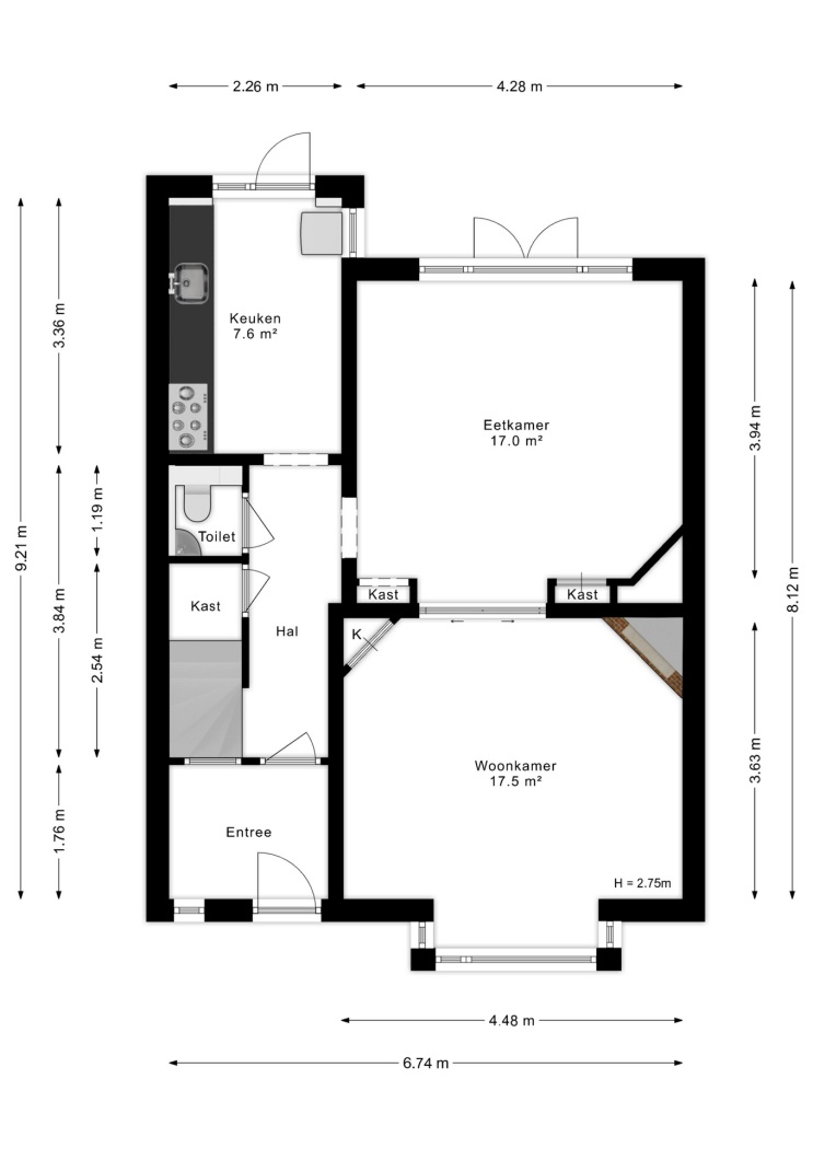
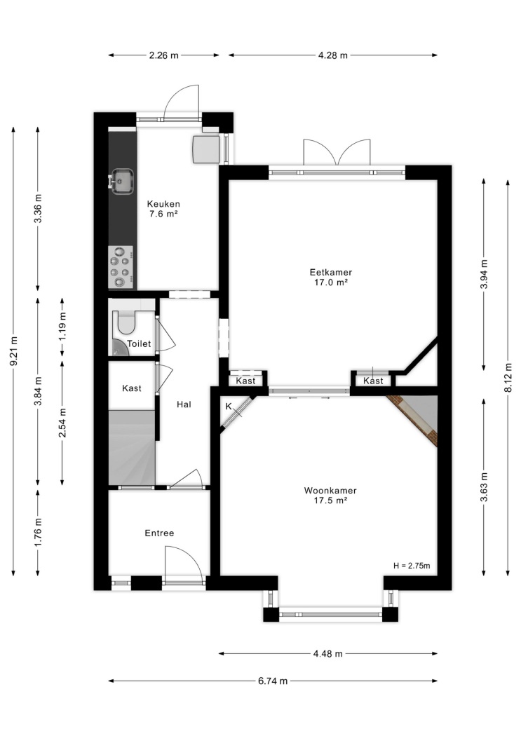
INDELING BEGANE GROND

Welkom!
Via de voortuin, waar tevens een praktische parkeerplaats is aangelegd, bereiken we de statige halfronde voordeur. Eenmaal binnen word je verwelkomd in de vestibule met karakteristieke jaren-dertig lambrisering tegels en bijpassende vloertegels. Een charmant kastje met meterkast en brievenbus onderstreept het authentieke karakter.
Vanuit de vestibule loop je door naar de lange gang met vintage bloemmotief tegels en fraaie paneeldeuren. Hier bevinden zich het toilet, stijlvol afgewerkt met jaren dertig tegels in zwaluwe motief en een zwarte rand, voorzien van een fontein, evenals de praktische kelderkast. Vanuit de gang heb je toegang tot de sfeervolle kamer-en-suite, terwijl rechtdoor de keuken bereikbaar is.

Kamer-en-suite
Wat een prettig en sfeervol leefgedeelte. De voorkamer (ca. 17,5 m²) is ingericht als zonnig zitgedeelte en valt direct op door de warme gele wanden, de erker en de visgraatvloer. De marmeren haard met houtkachel en de vaste kast vormen samen een gezellig en karaktervol geheel.
Via de kleurrijke schuifdeuren met glas-in-lood bereik je de achterkamer (ca. 17 m²), waar ruimte is voor een royale eettafel. Ook hier zorgen vaste kasten, een houten vloer met subtiel motief en de dubbele openslaande deuren naar de tuin voor een warme en uitnodigende sfeer. De glas-in-lood bovenlichten maken het geheel compleet.

Keuken
De keuken is bereikbaar vanuit de hal en heeft een deur naar de tuin. Het rechte keukenblok met houten kastfronten en een hardstenen aanrechtblad is geplaatst in 2020 en voorzien van diverse apparatuur, waaronder een 6-pits gasfornuis met oven, een vaatwasser (2023) en een close-in boiler. De antracietkleurige vloertegels vormen een rustige en tijdloze basis. Een charmante kast met ruitjes, afkomstig uit grootmoeders tijd, past hier perfect en onderstreept het karakter van de ruimte.

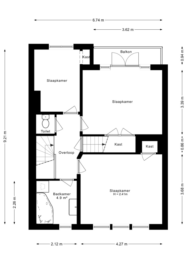
INDELING EERSTE VERDIEPING

De overloop met karakteristieke paneeldeuren biedt toegang tot het separate toilet, de drie slaapkamers en de badkamer.

Slaapkamers
Op deze verdieping bevinden zich drie comfortabele slaapkamers: één aan de voorzijde en twee aan de achterzijde. De royale master bedroom is een fijne plek om tot rust te komen en beschikt over een grote inbouwkast, een karakteristiek balkenplafond en dubbele deuren naar het balkon. Alle slaapkamers zijn voorzien van vaste kasten en afgewerkt met een laminaatvloer. De twee slaapkamers aan de achterzijde zijn bovendien voorzien van rolluiken en horren. De slaapkamer aan de voorzijde en de badkamer beschikken eveneens over horren.

Badkamer
De badkamer is aan de voorzijde gelegen en wordt gekenmerkt door een prachtig glas-in-loodraam. De ruimte is ingericht met een hoekligbad met douche, een wastafelmeubel en een aansluiting voor de wasmachine, wat zorgt voor een comfortabele en praktische indeling.

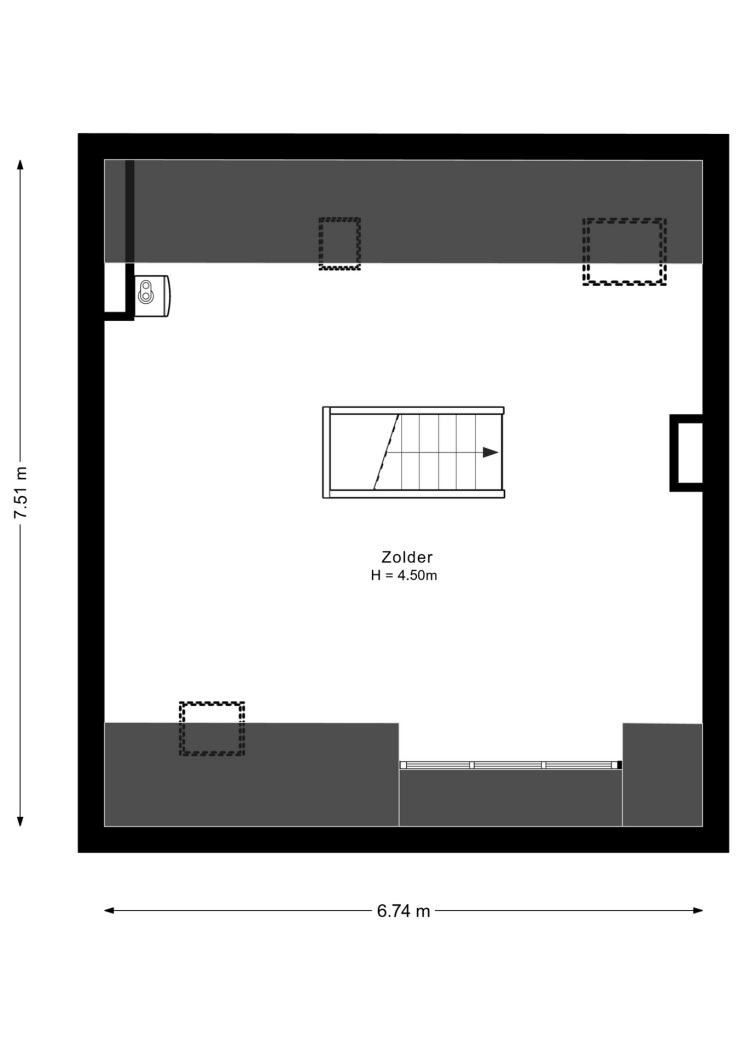
INDELING TWEEDE VERDIEPING
Deze bovenste verdieping biedt volop mogelijkheden. Via een vaste trap kom je uit op een ruime, lichte etage met hoge nok, drie dakramen en een recent geplaatste dakkapel. De verdieping is momenteel open van opzet, maar kan geheel naar eigen wens worden ingedeeld, bijvoorbeeld met twee extra (slaap)kamers, een werk- of studeerruimte. Een flexibele verdieping die zich moeiteloos aanpast aan jouw woonwensen.

Tuin – buitenruimte
De onderhoudsvriendelijke achtertuin is gelegen op het oosten en is grotendeels bestraat. In de tuin bevindt zich een stenen berging van ca. 6 m², met daaraan grenzend een prettige overkapping. Via de poort is er een achterom naar de Lange Slagenstraat.

De tuin is bereikbaar via de dubbele openslaande deuren vanuit de woonkamer, die uitkomen op een deels overdekt terras dankzij het balkon op de verdieping erboven. Ook vanuit de keuken is de tuin toegankelijk, met een overdekte overkapping richting de berging.

Highlights
•Bouwjaar 1932
•Woonoppervlakte ca. 151 m²
•Perceeloppervlakte ca. 175 m²
•Parkeergelegenheid op eigen terrein (voortuin)
•Sfeervolle kamer-en-suite met originele schuifdeuren voorzien van glas-in-lood, erkerraam en dubbele openslaande deuren naar de tuin
•Dichte keuken met inbouwapparatuur en deur naar de tuin
•Eerste verdieping met drie slaapkamers, allen voorzien van vaste kasten; één slaapkamer beschikt over een balkon en royale inbouwkast
•Separaat toilet op de eerste verdieping
•Badkamer met ligbad, douche, wastafelmeubel en aansluiting voor wasmachine
•Tweede verdieping met dakkapel en drie dakramen, geschikt voor het realiseren van meerdere (slaap)kamers of een werkruimte
•De voorkamer op de begane grond en de twee grote slaapkamers op de verdieping zijn voorzien van geïsoleerde voorzetwanden en vernieuwde elektra
•12 zonnepanelen geplaatst in 2023
•Verwarming en warm water via combiketel
•Grotendeels voorzien van dubbele beglazing, met uitzondering van de glas-in-loodramen
•Achtertuin op het oosten met achterom
•Stenen berging ca. 6 m² en een overkapping
•Prettige woonomgeving, nabij het centrum

Lees de volledige omschrijving

Kenmerken

Overdracht

Status Verkocht onder voorbehoud
Aanvaarding In overleg

Bouwvorm

Soort object Woonhuis
Soort woning Herenhuis
Type woning Tussenwoning
Bouwjaar 1932
Bouwvorm Bestaande bouw
Ligging Aan een rustige weg, in een woonwijk

Indeling

Woonoppervlakte 151 m²
Perceeloppervlakte 175 m²
Inhoud 500 m³
Aantal kamers 5
Aantal slaapkamers 4
Aantal woonlagen 3

Energie

Energieklasse E
Energie einddatum maandag 14 juni 2032
Isolatie Dubbel glas
Warmwater Cv ketel
Verwarming Cv ketel

Buitenruimte

Tuin Achtertuin, voortuin
Hoofdtuin Achtertuin
Oppervlakte hoofdtuin 49 m²
Ligging hoofdtuin Oost
Achterom Ja
Kwaliteit tuin Normaal

Bergruimte

Garage Geen garage
Schuur / Berging Vrijstaand steen

Parkeergelegenheid

Voorzieningen Openbaar parkeren, op eigen terrein

Dak

Dak Zadeldak

Overig

Permanente bewoning Ja
Onderhoud binnen Goed tot uitstekend
Onderhoud buiten Goed
Huidig gebruik Woonruimte
Huidige bestemming Woonruimte

Voorzieningen

Voorzieningen Mechanische ventilatie, rolluiken, tv kabel, rookkanaal, zonnepanelen, natuurlijke ventilatie

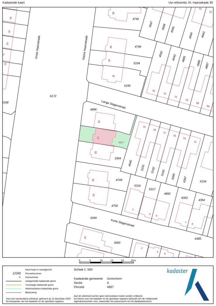
Kadastrale gegevens

Gemeente Gorinchem
Sectie A
Perceelnummer 4897
Oppervlakte 175 m²
Eigendomssituatie Volle eigendom
OK-Kopie-van-v1-20250318-8G0A1414
Interesse in deze woning?

Chanel helpt u graag

Gratis waardebepaling

U denkt erover uw woning te verkopen en wilt graag weten wat het waard is? We komen graag bij u langs en bepalen de waarde van uw woning.

Gratis waardebepaling

Deel deze woning

Uw persoonlijke adviseur in de regio

Maak kennis met de HypotheekWeter

Ligging

Afspraak maken voor een bezichtiging? Neem contact met ons op

Vergelijkbare woningen