0183 - 635011 0183 - 635011 Stel een vraag Stel een vraag
Beschikbaar

Henri Knapstraat 54

GORINCHEM
€ 400.000,- k.k.
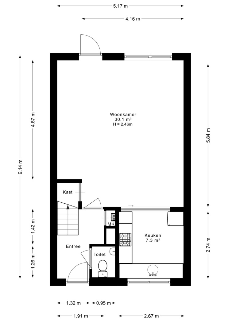
  • Woonoppervlakte 102 m2
  • Perceeloppervlakte 123 m2
  • Aantal slaapkamers 4
  • Bouwjaar 1992

Omschrijving

In een rustige en prettige woonwijk van Gorinchem staat deze fijne tussenwoning met een woonoppervlakte van ca. 102 m². Een woning met ruimte, licht én potentie: ideaal voor wie op zoek is naar een comfortabel gezinshuis dat geheel naar eigen smaak ingericht kan worden.

Bij binnenkomst valt direct de ruime en lichte woonkamer op. Dankzij de grote raampartijen – met als leuk en speels detail de half afgeronde ramen aan zowel de voor- als achterzijde, heeft de ruimte een eigen karakter en een prettige lichtinval. Er is volop plek voor een gezellige zithoek en een royale eettafel.
De open keuken sluit naadloos aan op de woonkamer en is van alle gemakken voorzien. Hier kook je in verbinding met het woongedeelte, wat zorgt voor een open en uitnodigende sfeer.
Via de achterdeur bereik je de diepe achtertuin. Deze biedt meer dan voldoende ruimte voor het creëren van een fijne loungeplek, een eethoek of een speelruimte voor kinderen. Achterin de tuin bevindt zich een stenen berging, ideaal voor het stallen van fietsen en het opbergen van tuinspullen.

Op de eerste verdieping vind je drie slaapkamers van prima formaat. De kamers zijn flexibel in te richten als slaap-, werk- of hobbyruimte. De badkamer is compact maar praktisch en voorzien van een douche, toilet en wastafelmeubel.

De tweede verdieping biedt nog meer mogelijkheden. Hier bevindt zich een extra slaapkamer, aanvullende opbergruimte én de opstelplaats voor de wasmachine. Deze verdieping maakt de woning extra geschikt voor grotere gezinnen of voor wie behoefte heeft aan een aparte werkruimte.

Highlights:
* Woonoppervlakte ca. 102 m²
* Ruime en lichte woonkamer
* Open keuken voorzien van de benodigde gemakken
* Diepe achtertuin met volop mogelijkheden voor een lounge- en eethoek
* Stenen berging achterin de tuin
* 4 slaapkamers (3 op de eerste verdieping, 1 op zolder)
* Tweede verdieping met extra opbergruimte en wasmachineaansluiting
* Badkamer voorzien van douche, toilet en wastafelmeubel
* Uniek detail: half afgeronde ramen aan voor- en achterzijde
* Gelegen in een rustige woonwijk in Gorinchem
* Volop ruimte en potentie om naar eigen smaak in te richten

Met zijn 102 m² woonoppervlakte, diepe tuin en vier slaapkamers biedt deze woning volop ruimte én de mogelijkheid om er een geheel eigen thuis van te maken.

Wonen in Gorinchem
De woning is gelegen in een rustige woonwijk in Gorinchem, een sfeervolle vestingstad aan de rivier de Merwede. Gorinchem combineert het beste van twee werelden: de charme van een historische binnenstad met alle dagelijkse voorzieningen binnen handbereik.
In het gezellige centrum vind je diverse winkels, boetiekjes, supermarkten, horeca en terrassen. Daarnaast zijn er meerdere basisscholen, middelbare scholen, sportverenigingen en speelvoorzieningen in de directe omgeving. Ook de bereikbaarheid is uitstekend: met de nabijgelegen uitvalswegen (A15 en A27) en een treinstation ben je snel onderweg richting steden als Utrecht, Breda en Rotterdam.
Voor ontspanning kun je terecht op de stadswallen, langs de rivier of in één van de omliggende natuurgebieden. Kortom, wonen in Gorinchem betekent comfortabel wonen in een levendige stad met een dorps karakter en een centrale ligging.

Kortom: een ruime tussenwoning met karakteristieke details, gelegen in een rustige woonomgeving in Gorinchem, klaar voor een nieuwe eigenaar die hier zijn of haar droomwoning van maakt.

Lees de volledige omschrijving

Kenmerken

Overdracht

Status Beschikbaar
Aanvaarding In overleg

Bouwvorm

Soort object Woonhuis
Soort woning Eengezinswoning
Type woning Tussenwoning
Bouwjaar 1992
Bouwvorm Bestaande bouw
Ligging In een woonwijk, vrij uitzicht

Indeling

Woonoppervlakte 102 m²
Perceeloppervlakte 123 m²
Inhoud 348 m³
Aantal kamers 5
Aantal slaapkamers 4
Aantal woonlagen 3

Energie

Energieklasse A
Energie einddatum zondag 17 februari 2036
Isolatie Dakisolatie, vloerisolatie, dubbel glas
Warmwater Cv ketel
Verwarming Cv ketel

Buitenruimte

Tuin Achtertuin, voortuin
Hoofdtuin Achtertuin
Oppervlakte hoofdtuin 47 m²
Ligging hoofdtuin Zuid-oost
Achterom Ja
Kwaliteit tuin Normaal

Bergruimte

Garage Geen garage
Schuur / Berging Vrijstaand steen

Parkeergelegenheid

Voorzieningen Openbaar parkeren

Dak

Dak Zadeldak

Overig

Permanente bewoning Ja
Onderhoud binnen Redelijk tot goed
Onderhoud buiten Goed
Huidig gebruik Woonruimte
Huidige bestemming Woonruimte

Voorzieningen

Voorzieningen Mechanische ventilatie, tv kabel, buitenzonwering, dakraam, natuurlijke ventilatie

Kadastrale gegevens

Gemeente Gorinchem
Sectie F
Perceelnummer 1939
Oppervlakte 123 m²
Eigendomssituatie Volle eigendom
v1-20250318-8G0A1573E
Interesse in deze woning?

Robert helpt u graag

Gratis waardebepaling

U denkt erover uw woning te verkopen en wilt graag weten wat het waard is? We komen graag bij u langs en bepalen de waarde van uw woning.

Gratis waardebepaling

Deel deze woning

Uw persoonlijke adviseur in de regio

Maak kennis met de HypotheekWeter

Ligging

Afspraak maken voor een bezichtiging? Neem contact met ons op

Vergelijkbare woningen